RSS
Благоустройство территории ЖК Holms Residence
Фотография © Людмила Мордовина / предоставлена ВЕЩЬ!

Благоустройство территории ЖК Holms Residence

информация:

  • статус
    реализовано
  • даты
    20222023 / 20232024
  • region= area= address=ул. Попова, 26 country_t=Россия city_t=Пенза
    место
    Пенза ул. Попова, 26
  • координаты
    53.186051, 44.978527
  • функция
    Ландшафт / Благоустройство территории
  • теги
    send.project
  • площадь участка
    1,5 га
  • площадь застройки
    0,7 м2
Мария Кутай
Евгений Кутай
Антон Белов
Антон Борисов
ВЕЩЬ!

авторский коллектив

Мария Кутай – сооснователь бюро; Евгений Кутай – сооснователь бюро; Антон Белов – сооснователь бюро, ГАП; Антон Борисов – сооснователь бюро; Екатерина Жаркова – графический дизайн и вёрстка; Александр Крутов – визуализатор

партнеры, заказчики, смежники

Соавторы: Sp Architect и Архдвор
Заказчик: СГ «РИСАН»
Благоустройство территории ЖК Holms Residence
Фотография © Людмила Мордовина / предоставлена ВЕЩЬ!

Архи.ру об этом объекте:

21.01.2026

Сдержанность и тайна

Для благоустройства территории премиального ЖК Holms в Пензе архитектурное бюро «Вещь!» выбрало путь сдержанности, не лишенной выдумки: в цветниках спрятаны атмосферные светильники, прогулочную зону украшают кинетические скульптуры, а зонировать пространства помогают перголы. Все малые архитектурные формы разработаны с нуля.

Описание предоставлено архитекторами Пожелание заказчика было четким: отказаться от кричащих цветов и экспрессивных форм. Для команды бюро это стало не ограничением, а возможностью кропотливой работы над характером места. Название жилого комплекса н...   читать дальше
Благоустройство территории ЖК Holms Residence
Фотография © Людмила Мордовина / предоставлена ВЕЩЬ!

описание:

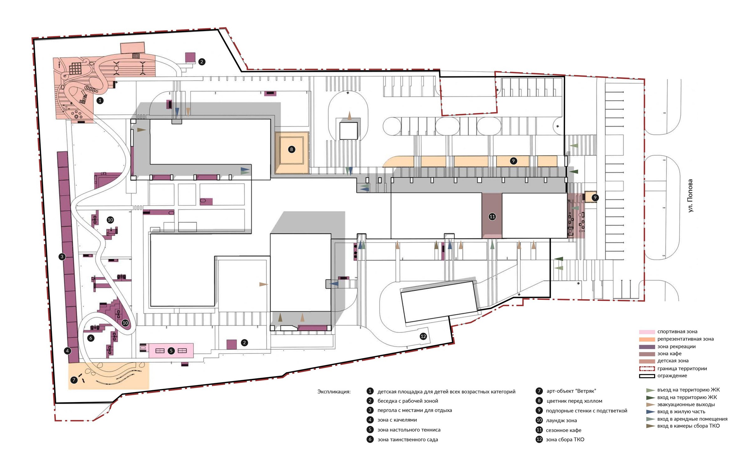
Генеральный план и зоны отдыха
Геометричная композиция генерального плана поддерживает строгий минималистичный фасад здания и отсылает к ортогональной планировке европейских городов. В проекте предусмотрено детское игровое пространство с нейтральным дизайном, стимулирующим детей к поиску собственных игровых сценариев. На территории комплекса размещены лаунж-зоны разных типов – для отдыха жителей, общения и восстановления после городской суеты.

Арт-объекты «Корабли» и «Ветряк»
История Англии неразрывно связана с судостроением и исследованием новых земель. Этот мотив отразился в архитектуре благоустройства: плавные волнообразные очертания подпорных стенок словно утопают в цветниках. В вечернее время декоративная подсветка в виде бумажных корабликов создаёт атмосферу спокойствия и уюта.
Вторая композиция – кинетический арт-объект «Ветряк», приводимый в движение ветром. Он становится точкой притяжения и фотозоной, символизируя использование возобновляемой энергии и экологическую направленность проекта.

Зона «Таинственного сада»
Вдохновлённая классическим английским садом, эта зона предназначена для уединённого отдыха среди растительности. В вечернее время декоративная подсветка создаёт мягкий световой ритм и деликатно подчеркивает минималистичный дизайн окружения.

Благоустройство территории ЖК Holms Residence
Фотография © Людмила Мордовина / предоставлена ВЕЩЬ!
Благоустройство территории ЖК Holms Residence
Фотография © Людмила Мордовина / предоставлена ВЕЩЬ!
Благоустройство территории ЖК Holms Residence
Фотография © Людмила Мордовина / предоставлена ВЕЩЬ!
Благоустройство территории ЖК Holms Residence
Фотография © Людмила Мордовина / предоставлена ВЕЩЬ!
Благоустройство территории ЖК Holms Residence
Фотография © Людмила Мордовина / предоставлена ВЕЩЬ!
Благоустройство территории ЖК Holms Residence
Фотография © Людмила Мордовина / предоставлена ВЕЩЬ!
Благоустройство территории ЖК Holms Residence
Фотография © Людмила Мордовина / предоставлена ВЕЩЬ!
Благоустройство территории ЖК Holms Residence
Фотография © Людмила Мордовина / предоставлена ВЕЩЬ!
Благоустройство территории ЖК Holms Residence
Фотография © Людмила Мордовина / предоставлена ВЕЩЬ!
Благоустройство территории ЖК Holms Residence
Фотография © Людмила Мордовина / предоставлена ВЕЩЬ!
Благоустройство территории ЖК Holms Residence
Фотография © Людмила Мордовина / предоставлена ВЕЩЬ!
Благоустройство территории ЖК Holms Residence
Фотография © Людмила Мордовина / предоставлена ВЕЩЬ!
Благоустройство территории ЖК Holms Residence. Генеральный план
© ВЕЩЬ!
Благоустройство территории ЖК Holms Residence. Схема функционального зонирования
© ВЕЩЬ!
Благоустройство территории ЖК Holms Residence. Объемная общая схема
© ВЕЩЬ!
Благоустройство территории ЖК Holms Residence. Арт-объекты
© ВЕЩЬ!
Благоустройство территории ЖК Holms Residence. Зона таинственного сада
© ВЕЩЬ!
Благоустройство территории ЖК Holms Residence. Схема детской плошадки
© ВЕЩЬ!

Архитекторы – партнеры Архи.ру:

  • Илья Машков
  • Раис Баишев
  • Татьяна Зульхарнеева
  • Дмитрий Ликин
  • Ерлан Бекмухамедов
  • Полина Воеводина
  • Андрей Романов
  • Антон Яр-Скрябин
  • Павел Андреев
  • Александра Кузьмина
  • Олег Мединский
  • Михаил Канунников
  • Василий Крапивин
  • Андрей Гнездилов
  • Владислав Андреев
  • Наталья Сидорова
  • Антон Надточий
  • Сергей Переслегин
  • Евгений Зеленов
  • Виталий Лутц
  • Александр Самарин
  • Ростислав Цайзер
  • Юлиана Княжевская
  • Николай Кикава
  • Зураб Басария
  • Юлий Борисов
  • Сергей Скуратов
  • Елена Пучкова
  • Владимир Плоткин
  • Никита Явейн
  • Анастасия Абашева
  • Андрей Михайлов
  • Николай Переслегин
  • Вера Бутко
  • Сергей Никешкин
  • Алексей Орлов
  • Энди Сноу
  • Константин Ходнев
  • Дмитрий Сухов
  • Григорий Мустафин
  • Иван Кожин
  • Игорь Шварцман
  • Дмитрий Остроумов
  • Евгений Новосадюк
  • Александр Скокан
  • Станислав Белых
  • Андрей Асадов
  • Игорь Членов
  • Юлия Солдатенкова
  • Сергей Чобан
  • Григориос Гавалидис
  • Евгений Подгорнов
  • Олег Шапиро
  • Михаил Давыдов
  • Екатерина Кузнецова
  • Наталия Шилова
  • Георгий Трофимов
  • Дмитрий Буш
  • Сергей Кузнецов
  • Борис Воскобойников
  • Валерий Каняшин
  • Марина Егорова
  • Всеволод Медведев
  • Александр Асадов
  • Юлия Тряскина
  • Степан Липгарт
  • Мария Ахременкова
  • Александр Котенков
  • Сергей Труханов
  • Даниил Лоренц
  • Тимур Абдуллаев
  • Екатерина Абдуллаева
  • Маргарита Авдышева
  • Левон Айрапетов
  • Александр Аношкин
  • Алексей Афоничкин
  • Владислав Бек-Булатов
  • Антон Белов
  • Татьяна Бузулукова
  • Петр Васильев
  • Данило Вукосавлевич
  • Алина Георгиевская
  • Павел Гордеев
  • Илья Гринберг
  • Никита Демидов
  • Никита Дергунов
  • Наталья Жилкина
  • Алексей Зародов
  • Екатерина Зырина
  • Алексей Ильин
  • Дарья Ильина
  • Олег Карлсон
  • Алексей Кибкало
  • Денис Кувшинников
  • Анна Куликова
  • Алексей Курков
  • Данил Куров
  • Мария Кутай
  • Евгений Кутай
  • Иван Кычкин
  • Антон Ладыгин
  • Дмитрий Лапин
  • Илья Левянт
  • Катерина Левянт
  • Борис Левянт
  • Валерий Лукомский
  • Антон Лукомский
  • Екатерина Ляпунова
  • Иса Магомедов
  • Сергей Марков
  • Елена Мерцалова
  • Николай Миловидов
  • Станислав Михаловский
  • Сергей Мичурин
  • Олеся Могилевская
  • Филипп Никандров
  • Мария Николаева
  • Дмитрий Овчаров
  • Сергей Пергаев
  • Виктор Перов
  • Алексей Полищук
  • Роман Пономарёв
  • Валерия Преображенская
  • Виктория Раубо
  • Василий Рыбаков
  • Николай Рыбаков
  • Мария Салех
  • Александр Стариков
  • Илья Уткин
  • Елисей Чакан
  • Бориша Чорович
  • Дмитрий Шурыгин
  • Олег Шурыгин

Проект из каталога (случайный выбор)

Постройки и проекты (новые записи):

  • Гостиница в Чите
  • ЖК Квартал 64
  • Деловое пространство «ПЛЭЙН»
  • Конкурсный проект ФИЦ / ТПО «Резерв»
  • Porta
  • Детский сад на 200 мест в Жилино-1
  • Архитектурная концепция кластера Ломоносов-2
  • Клубный дом в 1-м Казачьем переулке
  • Частный дом в Ленинградской области

Новости российской архитектуры:

Сплав мировых культур
13.05.2026

Сплав мировых культур

Александр Салов, Татьяна Осецкая
КиноГолограмма
12.05.2026

КиноГолограмма

Николай Переслегин, Сергей Переслегин, Георгий Трофимов
Форма как метод: ТПО «Резерв»
12.05.2026

Форма как метод: ТПО «Резерв»

Владимир Плоткин
Консервация как комментарий
12.05.2026

Консервация как комментарий

Наринэ Тютчева