Описание предоставлено архитекторами
Участок для гостиничного комплекса расположен в предгорной зоне, на террасированных склонах с видом на море и горы. Сложный ландшафт и геофизика потребовали обеспечить зданиям надежность и устойчивость. Еще одна задача – открыть панорамные виды из каждого номера.
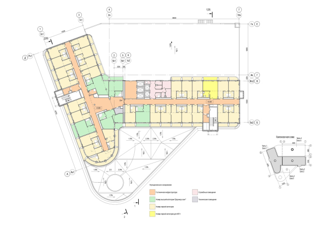
Объемно-пространственная структура комплекса повторяет природный профиль склона, на котором располагается. Корпуса с переменной этажностью от 1 до 7 уровней последовательно встраиваются в рельеф. Таким образом, они становятся его продолжением и не доминируют над ландшафтом.
Гостиничный комплекс
© ARCHIVISTA
Гостиничный комплекс
© ARCHIVISTA
За этой «естественностью» стоит жесткая инженерная дисциплина: укрепление склонов, дренажные системы, подпорные стены, специальные конструкции фундаментов. Все это требует выверенных решений, гарантируя сейсмоустойчивость и безопасность.
Гостиничный комплекс
© ARCHIVISTA
Архитектура комплекса строится на лаконичной геометрии и отказе от избыточной декоративности. Чистые линии, открытые террасы и протяженные балконы формируют выразительную, но сдержанную пластику фасадов. Панорамные виды из номеров усиливают чувство открытости.
Гостиничный комплекс
© ARCHIVISTA
К существующей структуре природного озеленения добавляются сады на крышах, природные ландшафтные зоны и зеленые буферы между корпусами.
Гостиничный комплекс
© ARCHIVISTA
Интерьеры и экстерьер создавались в единой концепции. От пространственной логики до материалов и отделки. Номерной фонд включает стандартные номера, люксы, сюиты, семейные апартаменты, пентхаусы и отдельные коттеджи. При этом для каждой возрастной группы предусмотрены свои приватные зоны.
Гостиничный комплекс
© ARCHIVISTA
Функциональное наполнение комплекса представляет собой полноценную экосистему для отдыха: СПА и wellness-зоны, фитнес-центры, бассейны с пул-барами, рестораны с разноформатными гастрономическими концепциями, конференц-залы, детские пространства, торговые галереи. Тем самым обеспечивая комфорт премиального уровня.
Гостиничный комплекс
© ARCHIVISTA
Гостиничный комплекс
© ARCHIVISTA
В итоге получился целостный проект, в котором архитектурные и функциональные решения работают согласованно.


