RSS
Master Sound Office
Фотография © Инна Каблукова / предоставлена Бердник Роман

Master Sound Office

информация:

Роман Бердник

авторский коллектив

​ГАП: Роман Сергеевич Бердник

партнеры, заказчики, смежники

Заказчик: компания Master Sound
Master Sound Office
Фотография © Инна Каблукова / предоставлена Бердник Роман
Master Sound Office
Фотография © Инна Каблукова / предоставлена Бердник Роман

описание:

Офис молодой компании, по ремонту и установке звукового оборудования, расположен в самом центре города Ростов-на-Дону  в бывшем здании часового завода, который долгое время был заброшен, а теперь постепенно заполняется молодыми и амбициозными предпринимателями.  Местный архитектор Роман Бердник был призван превратить бывший цех в современный офис.

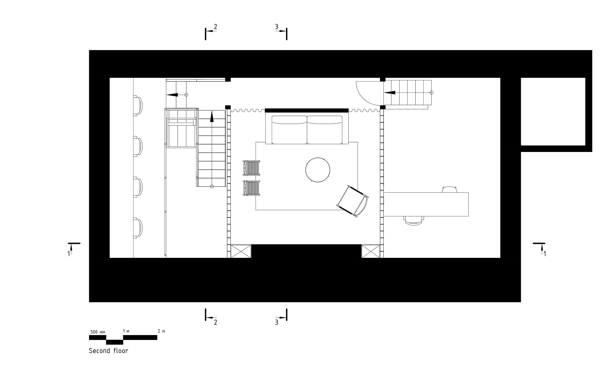
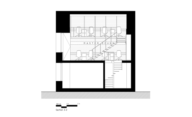
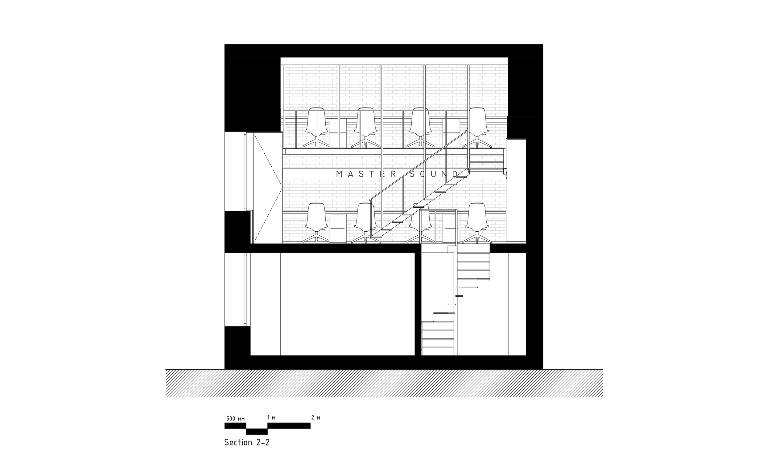
Помещение состоит из трех комнат расположенных вокруг сквозного проезда, при этом  за годы эксплуатации они много раз перестраивались и в результате архитектор получил комнаты с тонкими деревянными полами на разных уровнях.
Сложность помещения стала отправной точкой для проектирования. В самом высоком помещении было решено добавить подвесную металлическую конструкцию, которая одновременно служит инструментом коммуникации и дополнительным рабочим пространством.
Помещение с низким потолком и узким окном , расположенное над проездом переделали под офисную гостиную, которая одновременно служит местом для переговоров, отдыха и вечеринок. В третьем помещении расположился кабинет начальника.
 
У заказчика был скромный бюджет, основная часть которого пошла на оборудование второго уровня, поэтому архитектор максимально сохранил имеющиеся на стройке материалы и использовал их повторно. Например не было возможности сделать дорогую штукатурку и стены были очищены до кирпича, чтобы проявить его богатую текстуру. Также в помещении были перегородки из советского стеклоблока с разным узором, они были разобраны, тщательно очищены и уложены заново так, чтобы образовать рисунок эквалайзера, который напоминает о деятельности компании. Новые конструкции выполнены из белых и гладких материалов, чтобы на контрасте выделить достоинства старых покрытий.
 
Master Sound Office
Фотография © Инна Каблукова / предоставлена Бердник Роман
Master Sound Office
Фотография © Инна Каблукова / предоставлена Бердник Роман
Master Sound Office
Фотография © Инна Каблукова / предоставлена Бердник Роман
Master Sound Office
Фотография © Инна Каблукова / предоставлена Бердник Роман
Master Sound Office
Фотография © Инна Каблукова / предоставлена Бердник Роман
Master Sound Office
Фотография © Инна Каблукова / предоставлена Бердник Роман
Master Sound Office
Фотография © Инна Каблукова / предоставлена Бердник Роман
Master Sound Office
Фотография © Инна Каблукова / предоставлена Бердник Роман
Master Sound Office
Фотография © Инна Каблукова / предоставлена Бердник Роман
Master Sound Office
Фотография © Инна Каблукова / предоставлена Бердник Роман
Master Sound Office
Фотография © Инна Каблукова / предоставлена Бердник Роман
Master Sound Office
Фотография © Инна Каблукова / предоставлена Бердник Роман
Master Sound Office
© Бердник Роман
Master Sound Office
© Бердник Роман
Master Sound Office
© Бердник Роман
Master Sound Office
© Бердник Роман
Master Sound Office
© Бердник Роман
Master Sound Office
© Бердник Роман
Master Sound Office
© Бердник Роман

Архитекторы – партнеры Архи.ру:

  • Антон Яр-Скрябин
  • Татьяна Зульхарнеева
  • Ерлан Бекмухамедов
  • Илья Машков
  • Николай Кикава
  • Михаил Давыдов
  • Сергей Никешкин
  • Евгений Подгорнов
  • Владислав Андреев
  • Григорий Мустафин
  • Степан Липгарт
  • Александр Котенков
  • Александр Самарин
  • Георгий Трофимов
  • Екатерина Кузнецова
  • Александр Асадов
  • Наталия Шилова
  • Константин Ходнев
  • Евгений Новосадюк
  • Юлия Тряскина
  • Александр Скокан
  • Дмитрий Буш
  • Андрей Михайлов
  • Андрей Асадов
  • Александра Кузьмина
  • Анастасия Абашева
  • Дмитрий Сухов
  • Дмитрий Остроумов
  • Энди Сноу
  • Андрей Романов
  • Сергей Скуратов
  • Игорь Шварцман
  • Раис Баишев
  • Елена Пучкова
  • Зураб Басария
  • Юлия Солдатенкова
  • Сергей Кузнецов
  • Павел Андреев
  • Сергей Труханов
  • Виталий Лутц
  • Олег Шапиро
  • Ростислав Цайзер
  • Станислав Белых
  • Григориос Гавалидис
  • Полина Воеводина
  • Дмитрий Ликин
  • Сергей Переслегин
  • Алексей Орлов
  • Никита Явейн
  • Евгений Зеленов
  • Всеволод Медведев
  • Василий Крапивин
  • Иван Кожин
  • Антон Надточий
  • Игорь Членов
  • Михаил Канунников
  • Владимир Плоткин
  • Юлий Борисов
  • Олег Мединский
  • Валерий Каняшин
  • Вера Бутко
  • Наталья Сидорова
  • Даниил Лоренц
  • Марина Егорова
  • Сергей Чобан
  • Юлиана Княжевская
  • Андрей Гнездилов
  • Николай Переслегин
  • Тимур Абдуллаев
  • Екатерина Абдуллаева
  • Маргарита Авдышева
  • Левон Айрапетов
  • Александр Аношкин
  • Алексей Афоничкин
  • Владислав Бек-Булатов
  • Антон Белов
  • Татьяна Бузулукова
  • Петр Васильев
  • Данило Вукосавлевич
  • Алина Георгиевская
  • Павел Гордеев
  • Илья Гринберг
  • Никита Демидов
  • Никита Дергунов
  • Наталья Жилкина
  • Алексей Зародов
  • Екатерина Зырина
  • Алексей Ильин
  • Дарья Ильина
  • Олег Карлсон
  • Алексей Кибкало
  • Денис Кувшинников
  • Анна Куликова
  • Алексей Курков
  • Данил Куров
  • Мария Кутай
  • Евгений Кутай
  • Иван Кычкин
  • Антон Ладыгин
  • Дмитрий Лапин
  • Борис Левянт
  • Илья Левянт
  • Катерина Левянт
  • Валерий Лукомский
  • Антон Лукомский
  • Екатерина Ляпунова
  • Иса Магомедов
  • Сергей Марков
  • Елена Мерцалова
  • Николай Миловидов
  • Станислав Михаловский
  • Сергей Мичурин
  • Олеся Могилевская
  • Мария Николаева
  • Дмитрий Овчаров
  • Сергей Пергаев
  • Виктор Перов
  • Алексей Полищук
  • Роман Пономарёв
  • Валерия Преображенская
  • Виктория Раубо
  • Василий Рыбаков
  • Николай Рыбаков
  • Мария Салех
  • Александр Стариков
  • Илья Уткин
  • Елисей Чакан
  • Бориша Чорович
  • Олег Шурыгин
  • Дмитрий Шурыгин

Проект из каталога (случайный выбор)

Жилой дом в Ковенском переулке
Евгений Герасимов, 2011 – 2013
Жилой дом в Ковенском переулке

Постройки и проекты (новые записи):

  • Клубный дом в 1-м Казачьем переулке
  • Частный дом в Ленинградской области
  • Гостиничный комплекс Cosmos Selection Derbent 5
  • Офис компании АльфаСтрахование
  • MIDITI
  • Офис компании Kept
  • Дом Спорта
  • ЖК Camelia
  • Ежон Алтай

Новости российской архитектуры:

«Лотус» над пустыней
21.04.2026

«Лотус» над пустыней

Бориша Чорович, Данило Вукосавлевич, Елисей Чакан
Гипербола в кирпиче
17.04.2026

Гипербола в кирпиче

Олег Беляев
Маяк славы
16.04.2026

Маяк славы

Евгений Подгорнов
Теплый берег
15.04.2026

Теплый берег

Надежда Снигирёва