RSS
Частный дом для молодой семьи в пос. Николина Гора
© RESIDE

Частный дом для молодой семьи в пос. Николина Гора

информация:

  • статус
    проект
  • даты
    20142017
  • region= area=Одинцовский район address=проспект Шмидта country_t=Россия city_t=Николина гора
    место
    Николина гора Одинцовский район проспект Шмидта
  • координаты
    55.733971, 37.035841
  • функция
    Жилой / индивидуальный жилой дом
  • теги
    send.project
  • общая площадь
    125,3 м2
  • высота
    7,275
  • строительный объем
    623 м3
Ксения Рыбачук
Россия

авторский коллектив

ГАП:  Ксения Валентиновна Рыбачук

награды:

    Архновация в номинации «Лучший проект дома из дерева» 2017 г.
    Дом на Брестской, в номинации  «Архитектура индивидуальных и частных домов» 2019 г.
    Победитель в номинации «Лучший проект частного дома» Золотой Трезини, 2019 г.
Частный дом для молодой семьи в пос. Николина Гора
© RESIDE
Частный дом для молодой семьи в пос. Николина Гора
© RESIDE

описание:

Основная эстетическая идея заключается в намерении сохранить образ окружающей среды, не выделяясь и не вырываясь из контекста природы. Была поставлена задача добиться некой «прозрачности» здания, простоты формы, которая соединяется, сливается с лесным пейзажем, не создает шум своим объемом, дает возможность, находясь внутри дома, чувствовать природу.

Пространство интерьера открытое, свободное от перегородок. Дом разделен на два этажа. В интерьере дома используются материалы, которые также используются и снаружи здания, что помогает создать единый, но простой и спокойный образ. Пятно застройки окружено густым сосновым лесом.  Несколько сосен удалось включить в архитектуру дома, тем самым  достичь еще большей целостности с окружением.
Частный дом для молодой семьи в пос. Николина Гора
© RESIDE
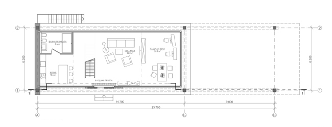
Частный дом для молодой семьи в пос. Николина Гора. План 1 этажа
© RESIDE
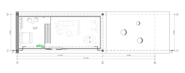
Частный дом для молодой семьи в пос. Николина Гора. План 2 этажа
© RESIDE
Частный дом для молодой семьи в пос. Николина Гора. Разрез
© RESIDE

Архитекторы – партнеры Архи.ру:

  • Виталий Лутц
  • Ростислав Цайзер
  • Дмитрий Остроумов
  • Евгений Новосадюк
  • Зураб Басария
  • Раис Баишев
  • Даниил Лоренц
  • Павел Андреев
  • Григориос Гавалидис
  • Алексей Орлов
  • Ерлан Бекмухамедов
  • Сергей Кузнецов
  • Иван Кожин
  • Евгений Зеленов
  • Александр Скокан
  • Александр Асадов
  • Дмитрий Ликин
  • Всеволод Медведев
  • Дмитрий Буш
  • Михаил Давыдов
  • Игорь Членов
  • Валерий Каняшин
  • Игорь Шварцман
  • Константин Ходнев
  • Вера Бутко
  • Никита Явейн
  • Антон Надточий
  • Мария Ахременкова
  • Полина Воеводина
  • Станислав Белых
  • Марина Егорова
  • Олег Шапиро
  • Юлиана Княжевская
  • Александра Кузьмина
  • Анастасия Абашева
  • Андрей Михайлов
  • Юлия Солдатенкова
  • Сергей Никешкин
  • Андрей Асадов
  • Энди Сноу
  • Елена Пучкова
  • Владислав Андреев
  • Андрей Романов
  • Наталья Сидорова
  • Михаил Канунников
  • Татьяна Зульхарнеева
  • Григорий Мустафин
  • Степан Липгарт
  • Сергей Переслегин
  • Александр Котенков
  • Олег Мединский
  • Антон Яр-Скрябин
  • Юлий Борисов
  • Екатерина Кузнецова
  • Илья Машков
  • Владимир Плоткин
  • Георгий Трофимов
  • Юлия Тряскина
  • Николай Переслегин
  • Николай Кикава
  • Дмитрий Сухов
  • Борис Воскобойников
  • Андрей Гнездилов
  • Сергей Труханов
  • Сергей Скуратов
  • Сергей Чобан
  • Наталия Шилова
  • Евгений Подгорнов
  • Василий Крапивин
  • Александр Самарин
  • Тимур Абдуллаев
  • Екатерина Абдуллаева
  • Маргарита Авдышева
  • Левон Айрапетов
  • Александр Аношкин
  • Алексей Афоничкин
  • Владислав Бек-Булатов
  • Антон Белов
  • Татьяна Бузулукова
  • Петр Васильев
  • Данило Вукосавлевич
  • Алина Георгиевская
  • Павел Гордеев
  • Илья Гринберг
  • Никита Демидов
  • Никита Дергунов
  • Наталья Жилкина
  • Алексей Зародов
  • Екатерина Зырина
  • Алексей Ильин
  • Дарья Ильина
  • Олег Карлсон
  • Алексей Кибкало
  • Денис Кувшинников
  • Анна Куликова
  • Алексей Курков
  • Данил Куров
  • Мария Кутай
  • Евгений Кутай
  • Иван Кычкин
  • Антон Ладыгин
  • Дмитрий Лапин
  • Борис Левянт
  • Илья Левянт
  • Катерина Левянт
  • Валерий Лукомский
  • Антон Лукомский
  • Екатерина Ляпунова
  • Иса Магомедов
  • Сергей Марков
  • Елена Мерцалова
  • Николай Миловидов
  • Станислав Михаловский
  • Сергей Мичурин
  • Олеся Могилевская
  • Мария Николаева
  • Дмитрий Овчаров
  • Сергей Пергаев
  • Виктор Перов
  • Алексей Полищук
  • Роман Пономарёв
  • Валерия Преображенская
  • Виктория Раубо
  • Василий Рыбаков
  • Николай Рыбаков
  • Мария Салех
  • Александр Стариков
  • Илья Уткин
  • Елисей Чакан
  • Бориша Чорович
  • Олег Шурыгин
  • Дмитрий Шурыгин

Проект из каталога (случайный выбор)

Постройки и проекты (новые записи):

  • Архитектурная концепция кластера Ломоносов-2
  • Клубный дом в 1-м Казачьем переулке
  • Частный дом в Ленинградской области
  • Гостиничный комплекс Cosmos Selection Derbent 5
  • Офис компании АльфаСтрахование
  • MIDITI
  • Офис компании Kept
  • Дом Спорта
  • ЖК Camelia

Новости российской архитектуры:

Высший уровень
24.04.2026

Высший уровень

Борис Воскобойников, Мария Ахременкова
Белые террасы в зеленом предгорье
24.04.2026

Белые террасы в зеленом предгорье

Маргарита Авдышева
Всматриваясь вдаль
21.04.2026

Всматриваясь вдаль

Иван Казадаев