Спортивный зал и керамическая мастерская в Сикоу
Фото © SCHRAIN
Хуаннишань был основан как поселок для рабочих в 1959, сейчас здесь порядка 500 домохозяйств и 1000 жителей. В ходе первой очереди трансформации в пустовавших зданиях создали предпринимательскую коммуну, библиотеку и столовую, соорудили спортивную площадку: все учреждения быстро стали популярными, и был дан старт второй очереди проекта.
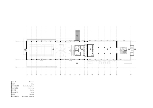
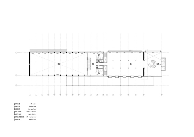
В ее рамках в двух смежных складах появились спортзал и профессиональная мастерская керамики с салоном-магазином.
Спортивный зал и керамическая мастерская в Сикоу
Фото © SCHRAIN
Для мастерской использовали двухэтажный склад с плоской крышей, к которому пристроили вестибюль. Для новых частей проекта выбрали тот же красный кирпич, что применен в старых, но здесь для фасада его соединили со стеклянным кирпичом в пропорции 1:1. Старую лестницу заменили на элегантную спиралевидную.
Спортивный зал и керамическая мастерская в Сикоу
Фото © SCHRAIN
Второй склад, с двускатной кровлей, был слишком низким для спортзала, поэтому его стены надстроили и возвели новую крышу, также двускатную. Он подходит для баскетбола и бадминтона, а еще для популярных у пожилых жителей занятий танцами.
Спортивный зал и керамическая мастерская в Сикоу
Фото © SCHRAIN
Акценты на фасадах созданы с помощью выступающих оконных рам-коробов из атмосферостойкой стали.
Спортивный зал и керамическая мастерская в Сикоу
Фото © SCHRAIN
Спортивный зал и керамическая мастерская в Сикоу
Фото © SCHRAIN
Спортивный зал и керамическая мастерская в Сикоу
Фото © SCHRAIN
Спортивный зал и керамическая мастерская в Сикоу
© y.ad studio
