Штаб-квартира компании BSH в Шаосине
Фотография © Metaviz studio / предоставлено Greater Dog Architects
Штаб-квартира компании BSH в Шаосине
Фотография © Metaviz studio / предоставлено Greater Dog Architects
Штаб-квартира компании BSH в Шаосине
Фотография © Metaviz studio / предоставлено Greater Dog Architects
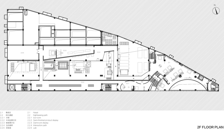
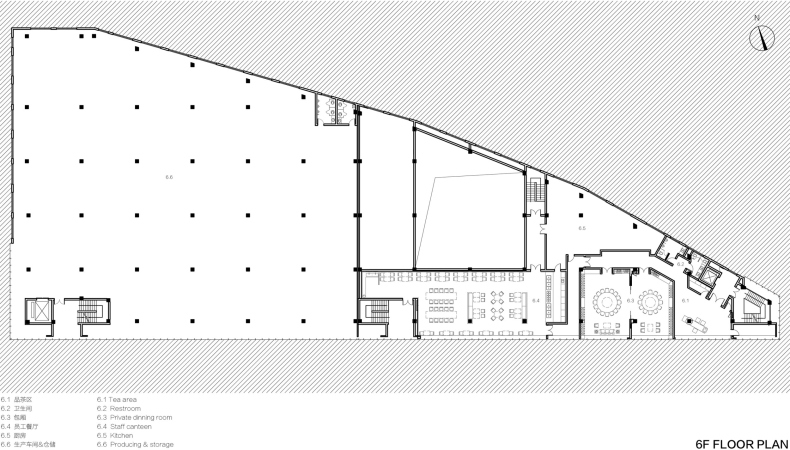
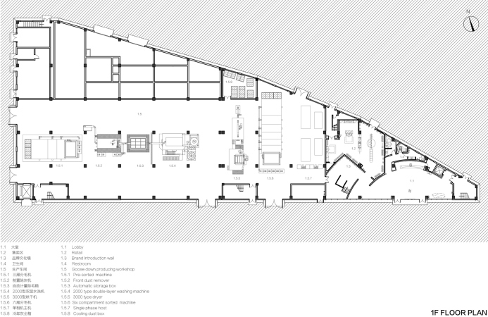
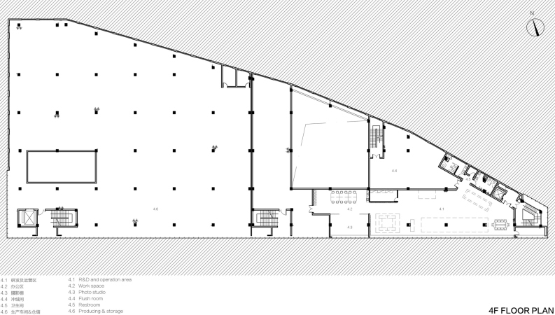
Неудобный участок задал жесткую, вытянутую форму здания с обрубленным острым концом, напоминающую прямоугольный треугольник, и расположен в плотно застроенном районе. Все это не слишком отвечало стремлению заказчиков и архитекторов бюро Greater Dog Architects отразить в визуальном решении специфику деятельности компании, которой, очевидно, больше соответствует легкость, воздушность и мягкие линии.
Штаб-квартира компании BSH в Шаосине
Фотография © Metaviz studio / предоставлено Greater Dog Architects
Штаб-квартира компании BSH в Шаосине
Фотография © Metaviz studio / предоставлено Greater Dog Architects
Со стороны дороги архитекторы отступили примерно 30 м, создав комфортную зеленую зону, и именно на нее смотрит главный фасад. Потоки посетителей разделили, разместив основной вход в посетительскую зону с юго-востока, а в производственную – с запада. Нижняя часть здания при этом выполнена из серого бетона и формирует устойчивое основание. Верхние этажи на контрасте закрыты стеклянным навесным фасадом. Белые панели с переменным матированием надежно скрывают все технические помещения, но обеспечивают достаточный уровень естественного освещения в общественных пространствах и административных помещениях.
Штаб-квартира компании BSH в Шаосине
Фотография © Metaviz studio / предоставлено Greater Dog Architects
На уровне третьего этажа вдоль всего фасада архитекторы подвесили крытый коридор, соединяющий офисную и производственную части здания. Полуоткрытое пространство становится важной зоной коммуникации и одновременно оказывается неким объединяющим швом между бетонным основанием и стеклянной верхней частью.
Штаб-квартира компании BSH в Шаосине
Фотография © Metaviz studio / предоставлено Greater Dog Architects
Наконец, вертикальные алюминиевые пластины разной формы, также выкрашенные в белый цвет, добавляют фасаду объем и создают эффектную игру света и тени на фасаде, постоянно меняющуюся в зависимости от положения солнца. Ночью же динамичная картинка при помощи светодиодной подсветки превращается в статичную.
Штаб-квартира компании BSH в Шаосине
© Greater Dog Architects
Штаб-квартира компании BSH в Шаосине
© Greater Dog Architects
Штаб-квартира компании BSH в Шаосине
© Greater Dog Architects
Штаб-квартира компании BSH в Шаосине
© Greater Dog Architects
