Комплекс Émergence Lafayette
Фото © Gaela Blandy
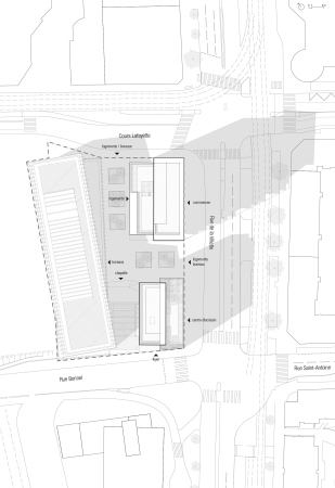
Он включает в сравнительно небольшом масштабе очень разные части, с разными заказчиками и «заинтересованными лицами». Разнообразие и смесь функций, социальных групп, материалов были целью проекта, особенно в контексте делового района, который вымирает по вечерам и в выходные.
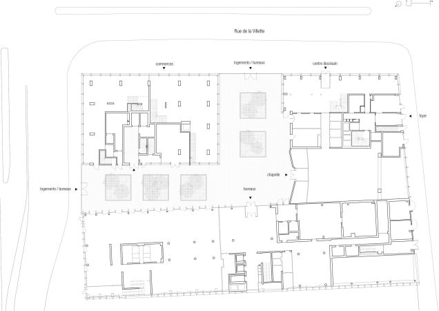
В Émergence Lafayette есть две основные половины. Меньшая – 8-этажный офисный корпус: его заказчик – инвестор Dentressangle, архитектор – Жан-Мишель Вильмотт (8600 м2). Большая – преимущественно жилая, девелопера OGIC. Ей занимались два архитектурных бюро – SUD Architectes и ITAR Architectures. Она включает 91 квартиру с постепенным переходом во владение жильцов (5500 м2; корпус из 17 этажей) и социальное жилье для молодых активных профессионалов, включая находившихся в детстве и юности на попечении государства. В их 9-этажном корпусе из небольших квартир и студий (всего 47; 2500 м2) первый этаж занят созданным по инициативе Лионского епископства коворкингом, при котором открыта часовня. В этом коворкинге молодежь должна формировать не только профессиональные, но и социальные, общинные связи. На первом этаже жилой части есть и коммерческие площади (1277 м2).
Комплекс Émergence Lafayette
Фото © Sergio Grazia
Новый комплекс-квартал сделан проницаемым, днем его могут пересекать все желающие: благоустроенный мини-бульвар ведет к часовне и офисам.
Комплекс Émergence Lafayette
Фото © Sergio Grazia
Офисная часть выделяется темным материалом фасадов: алюминиевые панели графитового цвета с подчеркнутыми ламелями. Тему вертикалей подхватывают остальные корпуса, с сеткой опор из бетона, окрашенного в массе под известняк. Таким же материалом покрыты и фасады, в тон выкрашены металлические детали. Просторные балконы позволяют любоваться видами города, большинство крыш – зеленые террасы, доступные жильцам и работникам офисов.
Комплекс Émergence Lafayette
Фото © Sergio Grazia
Комплекс Émergence Lafayette
Фото © Sergio Grazia
Комплекс Émergence Lafayette
Фото © Sergio Grazia
Комплекс Émergence Lafayette
Фото © Gaela Blandy
Комплекс Émergence Lafayette
Фото © Sergio Grazia
Комплекс Émergence Lafayette
Фото © Sergio Grazia
Комплекс Émergence Lafayette
Фото © Sergio Grazia
Комплекс Émergence Lafayette
Фото © Sergio Grazia
Комплекс Émergence Lafayette
Фото © Sergio Grazia
Комплекс Émergence Lafayette
Фото © Sergio Grazia
Комплекс Émergence Lafayette
Фото © Sergio Grazia
Комплекс Émergence Lafayette
Фото © Sergio Grazia
Комплекс Émergence Lafayette
Фото © Gaela Blandy
Комплекс Émergence Lafayette
Фото © Gaela Blandy
Комплекс Émergence Lafayette
Фото © Sergio Grazia
Комплекс Émergence Lafayette
Фото © Sergio Grazia
