Жилой комплекс Boréal. Фото © Stéphane Chalmeau
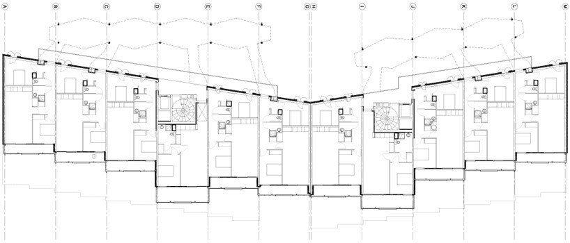
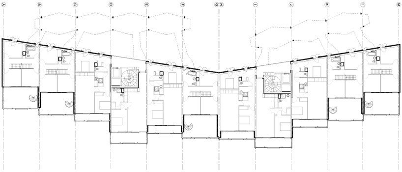
Во-первых, наличие пусть и небольшого, но своего участка земли с садовым домиком для каждой семьи: предполагается, что жители будут обеспечивать себя зеленью и свежими овощами. Во-вторых, сразу же привлекают внимание пристроенные к уличным фасадам деревянные конструкции, связанные с квартирами открытыми переходами. Это что-то вроде многоуровневых веранд или общественной прогулочной зоны. Кстати, авторы утверждают, что в архитектонике этих сооружений обыгрывается традиционное устройство французских надворных построек сельскохозяйственного назначения.
Жилой комплекс Boréal. Фото © Stéphane Chalmeau
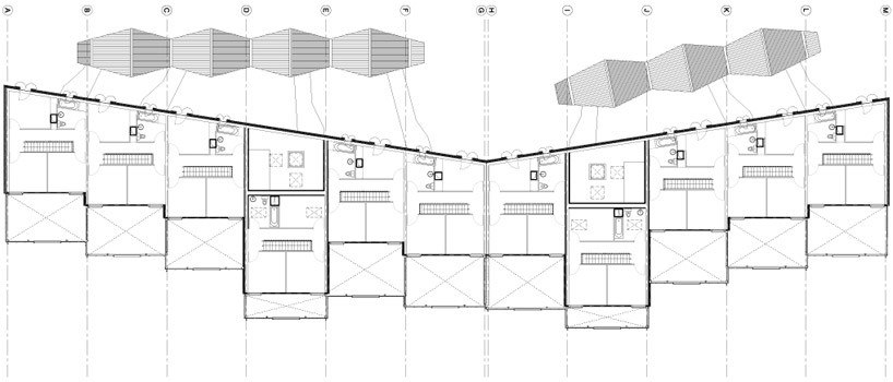
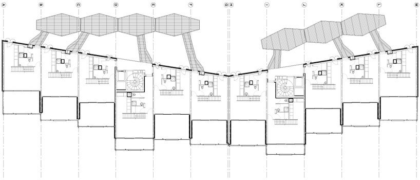
В-третьих, необычным кажется частичное остекление кровель и «садовых» фасадов части зданий. Вероятно, такое архитектурное решение объясняется необходимостью отыграть модную «зеленую» тему: при сплошном остеклении фронт освещения продвигается вглубь постройки, что позволяет экономить электроэнергию.
Жилой комплекс Boréal. Фото © Stéphane Chalmeau
Архитекторы выбрали для своего социального жилого комплекса Boréal недорогие экономичные материалы: профильные металлоконструкции, древесину вторичной переработки, поликарбонат различной степени прозрачности. Общая площадь комплекса Boréal составляет 3 525 м2, площадь пристроенных деревянных веранд – 380 м2, домиков для садоводства – 590 м2.
Жилой комплекс Boréal. Фото © Stéphane Chalmeau
Французам остается только позавидовать: к сожалению, у нас в стране социальное жилье не только архитектурой, но и уровнем комфорта пока не может сравниться с нантской «фермой» от Tetrarc architects.
Жилой комплекс Boréal. Фото © Stéphane Chalmeau
Жилой комплекс Boréal. Фото © Stéphane Chalmeau
Жилой комплекс Boréal. Фото © Stéphane Chalmeau
