Дом Jungalow 2
Фото © Ishita Sitwala / The Fishy Project
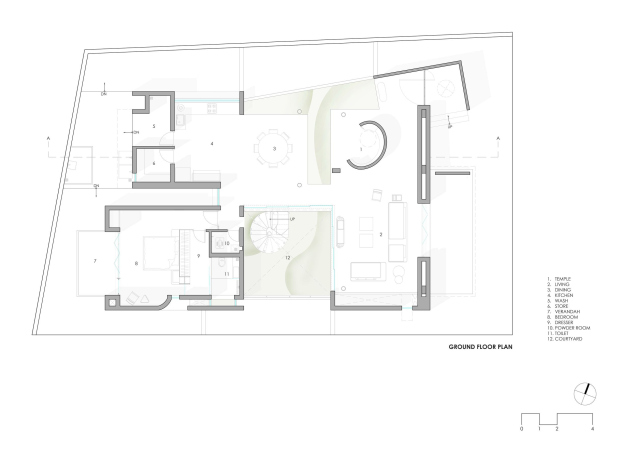
Секции различаются лишь оформлением входа, называемого отта: это традиционная платформа со ступенями, здесь она обращена в сад. Внутри почти у входа к перекрытиям подвешена криволинейная бетонная стена: она отделяет интерьер от двери, а в ее изгибе скрывается пространство для пуджи (поклонения), то есть молельная комната.
Дом Jungalow 2
Фото © Ishita Sitwala / The Fishy Project
В каждой секции четыре спальни, есть зеленый внутренний двор, большие окна и проемы в перекрытиях, наверху устроена терраса. Перегородок в интерьере минимум, как и мебели – чтобы дом был как можно просторнее.
Дом Jungalow 2
Фото © Ishita Sitwala / The Fishy Project
Использованы фактурные материалы – бетон, грунтовые прессованные блоки с добавлением пыли красного известняка, которая окрасила их в розовый цвет, сам известняк в виде плит на полу, дерево и фанера, частично вторично использованные. Мебель и светильники спроектированы архитекторами специально для этого проекта.
Дом Jungalow 2
Фото © Ishita Sitwala / The Fishy Project
Сад засажен привычными к сухому и жаркому климату растениями, включая травы типа перистощетинника щетинистого пурпурного, терминалию и так далее.
Дом Jungalow 2
Фото © Ishita Sitwala / The Fishy Project
Дом Jungalow 2
Фото © Ishita Sitwala / The Fishy Project
Дом Jungalow 2
Фото © Ishita Sitwala / The Fishy Project
Дом Jungalow 2
Фото © Ishita Sitwala / The Fishy Project
