RSS
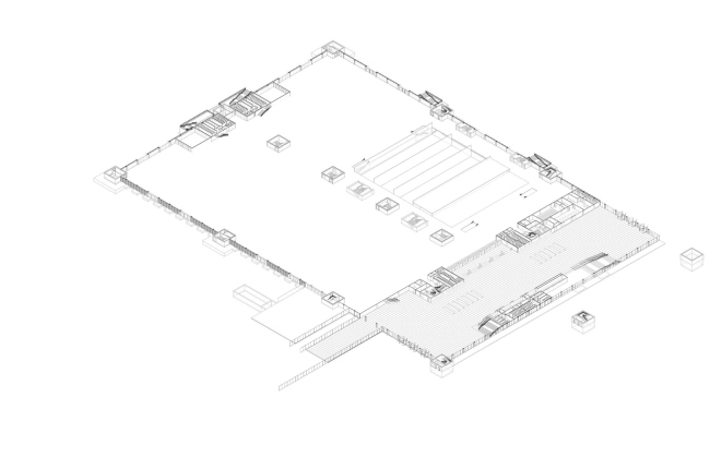
«Яшобхуми» – Индийский международный конгресс- и выставочный центр
Фото © Aitor Ortiz

«Яшобхуми» – Индийский международный конгресс- и выставочный центр


/ Yashobhoomi – India International Convention and Exhibition Centre

информация:

CP Kukreja Architects / Индия
IDOM
IDOM / Испания
«Яшобхуми» – Индийский международный конгресс- и выставочный центр
Фото © Aitor Ortiz

Архи.ру об этом объекте:

09.04.2025

Нина Фролова. «Индийский дворец для XXI века»

Новый конгресс- и Экспоцентр по проекту бюро IDOM и CP Kukreja Architects в Нью-Дели должен стать ключевой мировой площадкой для конференций и выставок.

читать дальше
«Яшобхуми» – Индийский международный конгресс- и выставочный центр. Здание конгресс-центра
Фото © Aitor Ortiz
«Яшобхуми» – Индийский международный конгресс- и выставочный центр. Здание конгресс-центра
Фото © Aitor Ortiz
«Яшобхуми» – Индийский международный конгресс- и выставочный центр. Здание конгресс-центра
Фото © Aitor Ortiz
«Яшобхуми» – Индийский международный конгресс- и выставочный центр. Здание конгресс-центра
Фото © Aitor Ortiz
«Яшобхуми» – Индийский международный конгресс- и выставочный центр. Здание конгресс-центра
Фото © Aitor Ortiz
«Яшобхуми» – Индийский международный конгресс- и выставочный центр. Здание конгресс-центра
Фото © Aitor Ortiz
«Яшобхуми» – Индийский международный конгресс- и выставочный центр. Здание конгресс-центра
Фото © Aitor Ortiz
«Яшобхуми» – Индийский международный конгресс- и выставочный центр. Здание конгресс-центра
Фото © Aitor Ortiz
«Яшобхуми» – Индийский международный конгресс- и выставочный центр. Здание конгресс-центра
Фото © Aitor Ortiz
«Яшобхуми» – Индийский международный конгресс- и выставочный центр. Здание конгресс-центра
Фото © Aitor Ortiz
«Яшобхуми» – Индийский международный конгресс- и выставочный центр. Здание конгресс-центра
Фото © Aitor Ortiz
«Яшобхуми» – Индийский международный конгресс- и выставочный центр. Здание конгресс-центра
Фото © Aitor Ortiz
«Яшобхуми» – Индийский международный конгресс- и выставочный центр. Здание конгресс-центра
Фото © Aitor Ortiz
«Яшобхуми» – Индийский международный конгресс- и выставочный центр. Здание конгресс-центра
Фото © Aitor Ortiz
«Яшобхуми» – Индийский международный конгресс- и выставочный центр. Здание конгресс-центра
Фото © Aitor Ortiz
«Яшобхуми» – Индийский международный конгресс- и выставочный центр. Выставочный комплекс
Фото © Aitor Ortiz
«Яшобхуми» – Индийский международный конгресс- и выставочный центр. Выставочный комплекс
Фото © Aitor Ortiz
«Яшобхуми» – Индийский международный конгресс- и выставочный центр. Выставочный комплекс
Фото © Aitor Ortiz
«Яшобхуми» – Индийский международный конгресс- и выставочный центр. Выставочный комплекс
Фото © Aitor Ortiz
«Яшобхуми» – Индийский международный конгресс- и выставочный центр. Выставочный комплекс
Фото © Aitor Ortiz
«Яшобхуми» – Индийский международный конгресс- и выставочный центр. Выставочный комплекс
Фото © Aitor Ortiz
«Яшобхуми» – Индийский международный конгресс- и выставочный центр. Выставочный комплекс
Фото © Aitor Ortiz
«Яшобхуми» – Индийский международный конгресс- и выставочный центр. Выставочный комплекс
Фото © Aitor Ortiz
«Яшобхуми» – Индийский международный конгресс- и выставочный центр. Выставочный комплекс
Фото © Aitor Ortiz
«Яшобхуми» – Индийский международный конгресс- и выставочный центр. Выставочный комплекс
Фото © Aitor Ortiz
«Яшобхуми» – Индийский международный конгресс- и выставочный центр. Выставочный комплекс
Фото © Aitor Ortiz
«Яшобхуми» – Индийский международный конгресс- и выставочный центр. Выставочный комплекс
Фото © Aitor Ortiz
«Яшобхуми» – Индийский международный конгресс- и выставочный центр. Выставочный комплекс
Фото © Aitor Ortiz
«Яшобхуми» – Индийский международный конгресс- и выставочный центр. Выставочный комплекс
Фото © Aitor Ortiz
«Яшобхуми» – Индийский международный конгресс- и выставочный центр. Выставочный комплекс
Фото © Aitor Ortiz
«Яшобхуми». Арена
© IDOM
«Яшобхуми». Арена
© IDOM
«Яшобхуми». Арена
© IDOM
«Яшобхуми». Арена
© IDOM
«Яшобхуми». Арена
© IDOM
«Яшобхуми». Фойе и «Глаз»
© IDOM
«Яшобхуми». Фойе и «Глаз»
© IDOM
«Яшобхуми». Фойе и «Глаз»
© IDOM
«Яшобхуми». Фойе и «Глаз»
© IDOM
«Яшобхуми». Фойе и «Глаз»
© IDOM
«Яшобхуми» – Индийский международный конгресс- и выставочный центр
© IDOM
«Яшобхуми» – Индийский международный конгресс- и выставочный центр
© IDOM
«Яшобхуми» – Индийский международный конгресс- и выставочный центр
© IDOM
«Яшобхуми» – Индийский международный конгресс- и выставочный центр
© IDOM
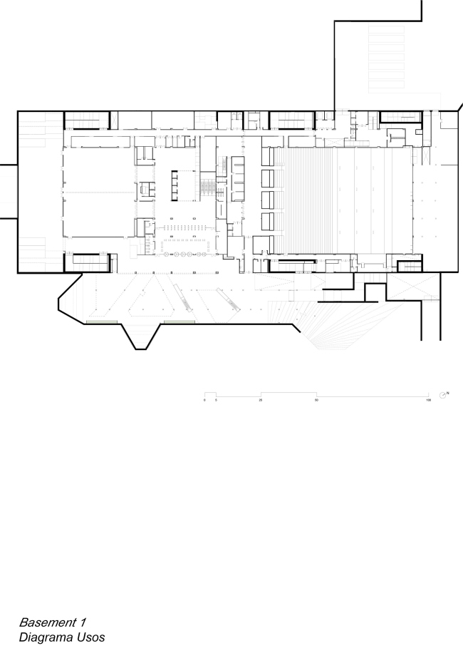
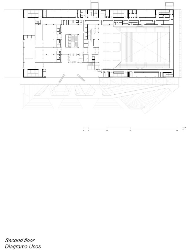
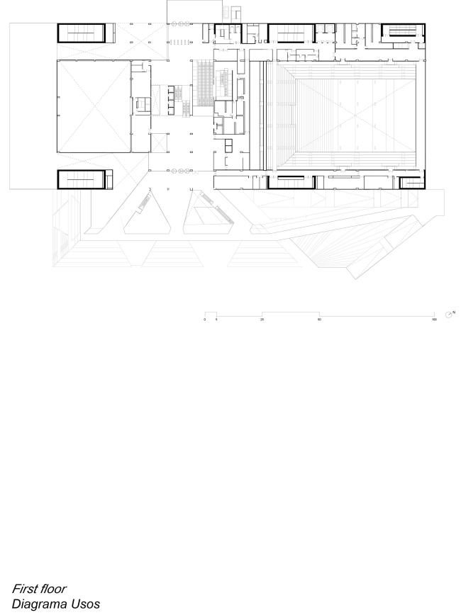
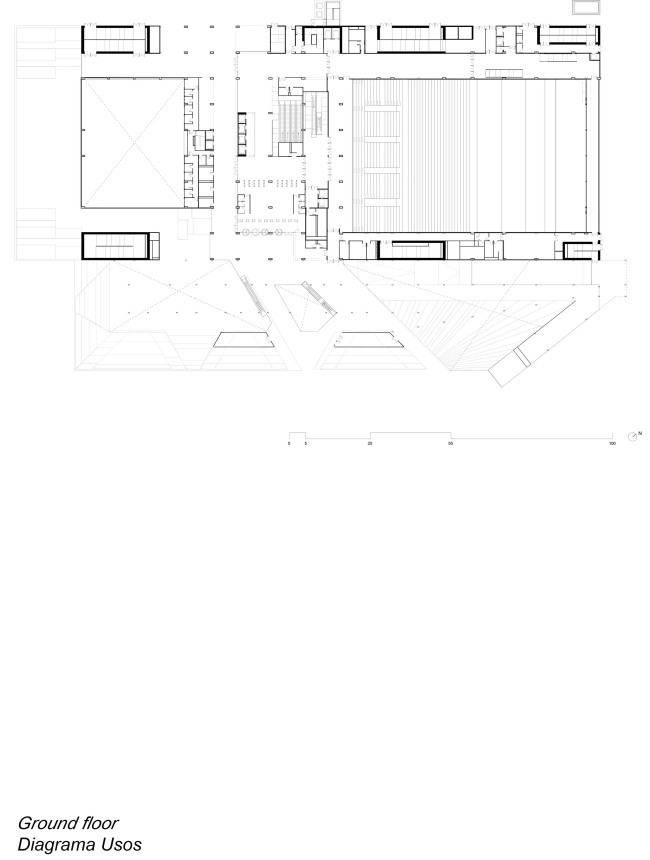
«Яшобхуми». Здание конгресс-центра
© IDOM
«Яшобхуми». Здание конгресс-центра
© IDOM
«Яшобхуми». Здание конгресс-центра
© IDOM
«Яшобхуми». Здание конгресс-центра
© IDOM
«Яшобхуми». Здание конгресс-центра
© IDOM
«Яшобхуми». Здание конгресс-центра
© IDOM
«Яшобхуми». Здание конгресс-центра
© IDOM
«Яшобхуми». Здание конгресс-центра
© IDOM
«Яшобхуми». Здание конгресс-центра
© IDOM
«Яшобхуми». Здание конгресс-центра
© IDOM
«Яшобхуми». Здание конгресс-центра
© IDOM
«Яшобхуми». Здание конгресс-центра
© IDOM
«Яшобхуми». Здание конгресс-центра
© IDOM
«Яшобхуми». Здание конгресс-центра
© IDOM
«Яшобхуми». Выставочный комплекс
© IDOM
«Яшобхуми». Выставочный комплекс
© IDOM
«Яшобхуми». Выставочный комплекс
© IDOM
«Яшобхуми». Выставочный комплекс
© IDOM
«Яшобхуми». Выставочный комплекс
© IDOM
«Яшобхуми». Выставочный комплекс
© IDOM
«Яшобхуми». Выставочный комплекс
© IDOM
«Яшобхуми». Выставочный комплекс
© IDOM
«Яшобхуми». Выставочный комплекс
© IDOM
«Яшобхуми». Выставочный комплекс
© IDOM
«Яшобхуми». Выставочный комплекс
© IDOM
«Яшобхуми» – Индийский международный конгресс- и выставочный центр
© IDOM
«Яшобхуми» – Индийский международный конгресс- и выставочный центр
© IDOM
«Яшобхуми» – Индийский международный конгресс- и выставочный центр
© IDOM
«Яшобхуми» – Индийский международный конгресс- и выставочный центр
© IDOM

Избранные архитекторы:

  • Арата Исодзаки
  • Алехандро Аравена
  • Бернар Чуми
  • Фрэнк Гери
  • Джон Поусон
  • Рафаэль Виньоли
  • Том Мейн
  • Заха Хадид
  • Хельмут Ян

Проект из каталога (случайный выбор)

Музей африканского искусства
Роберт А.М. Стерн, 2006 – 2007
Музей африканского искусства

Избранные постройки:

  • Пожарная часть на кампусе Vitra
  • Музей Ред Локейшн
  • Национальный музей изящных искусств Квебека – павильон Пьера Лассонда
  • Концертный зал Zénith – Сент-Этьен
  • Парк физической лаборатории MAX IV
  • Транспортный центр Salesforce
  • Жилой дом Mirador
  • Вилла «Дом в Бордо»
  • Церковь Блаженного Иоанна XXIII

Зарубежные новости