Многофункциональный центр Kalle Neukölln
Фото © Stefan Müller
Крупные универмаги в центре города, популярный послевоенный тип здания, сейчас требуют или полной замены, или продуманной трансформации. Не стал исключением Quelle, спроектированный видными архитекторами Клаусом Хенделем, Хорстом Хазелоффом и Вольфгангом Хоцелем и открывшийся на Карл-Маркс-штрассе в 1971. Его монолитный «брутальный» объем получил новый внешний облик в духе постмодернизма в 1990-х, когда здание заняла другая торговая компания, SinnLeffers, но и ее заведение в итоге закрылось.
Многофункциональный центр Kalle Neukölln
Фото © Stefan Müller
Затем возникла идея крупной перестройки с максимальным сохранением существующей структуры – как универмага, так и его многоярусного гаража. Это позволило существенно сократить углеродный след: снос и последующее строительство даже из дерева было бы значительно вреднее для окружающей среды, чем реконструкция.
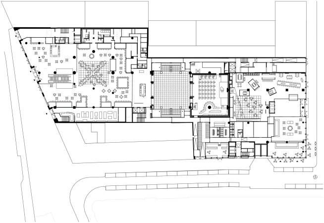
Функцию при этом поменяли радикально. Кроме офисов – как более традиционных, так и «гибких» (всего 26 тыс. м2), уже привлекших арендаторов типа Университета прикладных наук CODE и стриминга SoundCloud, здесь появились «знаковые» магазины, например, музыкальный Rough Trade (всего они заняли 4 тыс. м2), зал для мероприятий с кафе и фудмаркетом (6 тыс. м2), сады на крыше (4 тыс. м2) и супермаркет на цокольном этаже. Эффектные бетонные конструкции паркинга с пролетами 24 м теперь играют также и эстетическую роль, в то время как на месте спирального пандуса для автомобилей появился большой зимний сад (он связывает бывшие блоки универмага и гаража и служит для проведения мероприятий).
Многофункциональный центр Kalle Neukölln
Фото © Stefan Müller
Многие пространства нового сооружения общей площадью 40 тыс. м2 многофункциональны и подходят для нужд жителей Нойколльна (с ними советовались при разработке проекта), включая проведения местных фестивалей.
Бюро Макса Дудлера должно было согласовать все это разнообразие с окружением конца XIX – начала XX вв. и одновременно выделить Kalle Neukölln среди соседних построек. На Карл-Маркс-штрассе здание выходит светлым фасадом из искусственного камня, завершенным террасами и лоджиями, в то время как бывший гараж, обращенный на проходящую рядом Гангхоферштрассе, оформлен металлом бронзового цвета. Трансформацией интерьеров занималось бюро Aukett + Heese.
Многофункциональный центр Kalle Neukölln
Фото © Stefan Müller
