Электрическая подстанция Таммисто в Вантаа
Фотография © Tuomas Kivinen
Электрическая подстанция Таммисто в Вантаа
Фотография © Tuomas Kivinen
Электрическая подстанция Таммисто в Вантаа
Фотография © Tuomas Kivinen
Электрическая подстанция Таммисто в Вантаа
Фотография © Tuomas Kivinen
Постепенно оборудование устарело, имеющихся мощностей активно развивающемуся городу перестало хватать, и основной оператор электросетей Финляндии Fingrid Oyj решил построить на охраняемой территории, недалеко от исторического здания, современную распределительную подстанцию с использованием более эффективной элегазовой изоляции, рассчитанную на напряжение 110 кВ. Также необходимо было разместить новые опоры ЛЭП и резервный генератор, реконструировать ограждения и провести озеленение всей территории, а станция при этом должна была продолжать бесперебойную работу.
Электрическая подстанция Таммисто в Вантаа
Фотография © Tuomas Kivinen
Спецформы кирпича, разработанные для фасадов подстанции Таммисто
Фотография © Tuomas Kivinen
Авторами непростого проекта выступило местное бюро Kivinen Rusanen Architects (ранее носило название Virkkunen & Co), для которого это уже не первая работа с объектами энергетики: портал Архи.ру уже писал про их очень близкий по духу и задачам проект подстанции в Иматре, выполненный для того же заказчика. Главными целями было сохранить преемственность и обеспечить визуальное единство всех частей проекта, а также «подружиться» с соседним жилым районом.
Электрическая подстанция Таммисто в Вантаа
Фотография © Tuomas Kivinen
Электрическая подстанция Таммисто в Вантаа
Фотография © Tuomas Kivinen
Электрическая подстанция Таммисто в Вантаа
Фотография © Tuomas Kivinen
Электрическая подстанция Таммисто в Вантаа
Фотография © Max Plunger
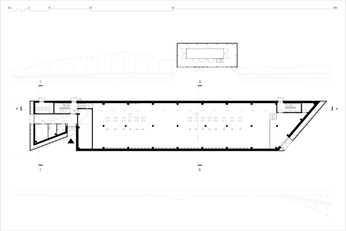
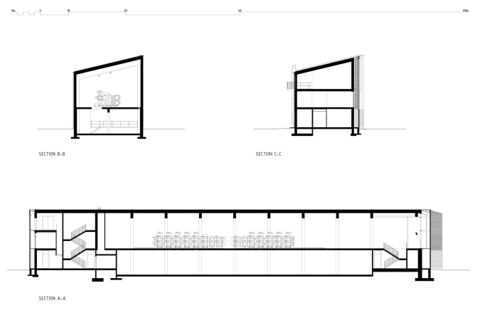
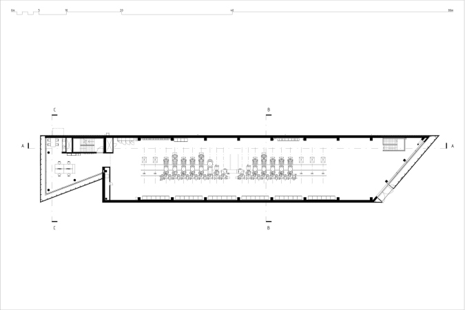
Простой прямоугольный объем нового корпуса получил эффектные срезы в торцевых частях, которые по замыслу архитекторов отсылают к двухчастной композиции исторического здания. На втором этаже самой большой – центральной – секции расположены оборудование и пункт управления, а первый уровень используется для его обслуживания. Постройка имеет сборные бетонные конструкции и дополнительную стальную решетку, на которой закреплены фасады из кирпича «вассерштрих» (формы для его изготовления, чтобы было легче извлечь глиняную заготовку, смачивают водой, а не применяют с этой целью более привычный песок): у него характерная «мягкая» фактура. При этом использовано сразу четыре разных рисунка кладки: от проницаемой решетки на торцах, за которой спрятано остекление, до плотной поверхности основного объема. Чтобы осуществить задуманное, понадобилось создать 3D-модели фасадов и на их основе разработать 13 спецформ кирпича.
Электрическая подстанция Таммисто в Вантаа
Фотография © Tuomas Kivinen
Еще одной задачей было включить в ансамбль два бетонных бункера, построенных в 1980-е. Их фасады обработали специальным патинирующим составом, который, проникая внутрь, реагирует с цементом и дает характерный красно-коричневый оттенок умбры.
Материалы предоставлены агентством v2com.
Электрическая подстанция Таммисто в Вантаа
© Kivinen Rusanen Architects
Электрическая подстанция Таммисто в Вантаа
© Kivinen Rusanen Architects
Электрическая подстанция Таммисто в Вантаа
© Kivinen Rusanen Architects
