Музей звука Audeum в Сеуле
Фотография © Namsun Lee / предоставлена Kengo Kuma & Associates
Музей звука Audeum в Сеуле
Фотография © Yongbaek Lee / предоставлена Kengo Kuma & Associates
Тонкие блестящие трубки установлены не регулярно, а как будто случайно, как и растут деревья в лесу, поэтому и атмосфера внутри постоянно меняется в зависимости от освещения, которое в свою очередь зависит от погоды и положения солнца в разное время дня и года. Прием в равной степени работает и для внешнего облика, и для пространства вестибюля. Чтобы попасть внутрь, надо спуститься с уровня улицы ко входу по массивной каменной лестнице, для отделки которой использовали грубо обработанный камень. Объемные фактурные блоки примерно на 10 см толще стандартной облицовки и потому вес материала ощущается очень явственно. У входа трубки «расступаются», обнажая остекленный фасад за ними, и можно оценить плотность их слоя. Этот срез напоминает причудливые формы, которые порой принимают акустические панели.
Музей звука Audeum в Сеуле
Фотография © Namsun Lee / предоставлена Kengo Kuma & Associates
Музей звука Audeum в Сеуле
Фотография © Yongbaek Lee / предоставлена Kengo Kuma & Associates
Легкий, пронизанный светом фасад и массивное, тяжеловесное основание образуют контрастное сочетание, но при этом оба демонстрируют твердость и жесткость. Уже подходя к зданию, а затем спускаясь по лестнице и проходя через вестибюль, посетитель плавно перемещается из городской суеты и шума в совершенно иное по своему характеру пространство.
Внутри превалируют теплые, мягкие фактуры, оптимальные для акустического комфорта. Для отделки выставочных залов был выбран особый сорт растущего на Аляске кипариса, древесина которого обладает довольно сильным запахом. Так, вслед за зрением, у посетителей пробуждаются обоняние и осязание, а затем и слух. При этом, как и в работе с фасадными материалами, Кума демонстрирует прежде всего их объем, так что даже деревянные панели напоминают драпировки.
Музей звука Audeum в Сеуле
Фотография © Yongbaek Lee / предоставлена Kengo Kuma & Associates
Музей звука Audeum в Сеуле
Фотография © Taiki Fukao / предоставлена Kengo Kuma & Associates
Кульминация темы наступает в аудитории, для отделки которой подобран светлый материал. Его активная пластика буквально продиктовала архитекторам прихотливый объемный рисунок, напоминающий цветок. Про то, как архитектура музея влияет на вкус, к сожалению, ничего не известно, но наверняка здесь откроется кафе? (пока торжественного открытия Audeum не было, он работает только три дня в неделю, по строгой предварительной регистрации и бесплатно).
Музей звука Audeum в Сеуле
Фотография © Taiki Fukao / предоставлена Kengo Kuma & Associates
Музей звука Audeum в Сеуле
Фотография © Taiki Fukao / предоставлена Kengo Kuma & Associates
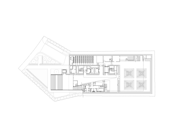
Кума признается, что его обширный опыт проектирования музеев (можно упомянуть, например, и музей Альбера Кана, и музей Андерсена, и филиал Музея Виктории и Альберта в Данди), в данном случае оказался нерелевантен: Audeum потребовал совершенно иного подхода, так как ориентирован не только и не столько на визуальное, сколько на аудиальное восприятие.
Музей звука Audeum в Сеуле
© Kengo Kuma & Associates
