RSS
Магазин Lavarice Store
Фотография @ Дмитрий Суворов / предоставлена Sinitsa Buro

Магазин Lavarice Store

информация:

  • статус
    реализовано
  • даты
    01.2025 / 01.2025
  • region= area= address=Киевское шоссе, 23-й километр, ТРЦ «Саларис» country_t=Россия city_t=Москва
    место
    Москва Киевское шоссе, 23-й километр, ТРЦ «Саларис»
  • координаты
    55.623138, 37.424429
  • функция
    Торгово-коммерческий / магазин
    Коммерческое пространство fashion-ритейла с торговым залом, примерочными, кассовой зоной и складскими помещениями.
  • теги
    send.project
  • общая площадь
    131 м2
  • этажность
    1
Россия

авторский коллектив

Руководитель авторского коллектива и главный архитектор – Анастасия Колчина 
Ведущие архитекторы – Варвара Сереброва, Анастасия Емельянова
Архитектор - Татьяна Бутринова
 

партнеры, заказчики, смежники

Заказчик - Бренд Lavarice
Магазин Lavarice Store
Фотография @ Дмитрий Суворов / предоставлена Sinitsa Buro

Архи.ру об этом объекте:

20.03.2026

Елена Петухова. Искушающая нежность

Бюро «Синица» умеет совершать большие и маленькие чудеса, создавая для магазинов не просто интерьеры, а целую философию. Магия дизайна привносит в пространство новую атмосферу и эстетику, а брендам – дает ключ к пониманию своей миссии.

От редакцииЦвет имеет решающее значение для восприятия интерьера. В некоторых случаях точно подобранный оттенок способен стать главным героем всего проекта и выразителем ценностей и преимуществ содержимого и функции пространства. Особенно в тех случ...   читать дальше
Магазин Lavarice Store
Фотография @ Дмитрий Суворов / предоставлена Sinitsa Buro

описание:

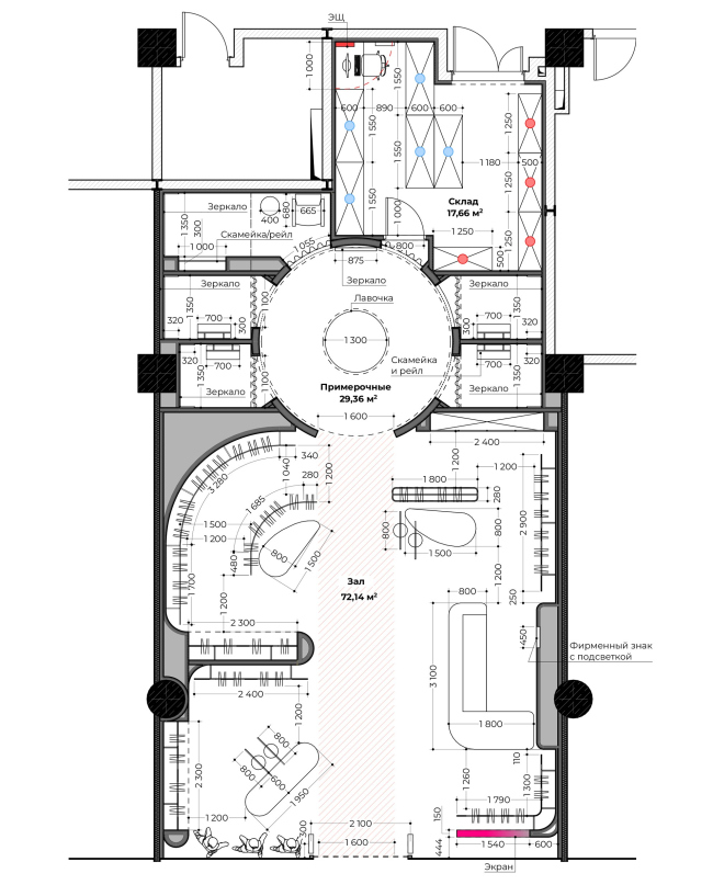
Интерьер Lavarice в ТРЦ «Саларис» – это развитие архитектурной концепции бренда через форму, масштаб и свет. Пространство построено на контрасте мягкой пластики и чёткой геометрии: цилиндрическая примерочная вступает в диалог с прямыми линиями колонн и потолка, формируя динамичную, но уравновешенную композицию.

Центральным элементом стала скульптурная примерочная – объём со своим световым сценарием, ставший эмоциональным ядром интерьера и прототипом для дальнейших магазинов сети. Свет здесь работает как архитектурный инструмент: он мягко переотражается в зеркалах, не искажает оттенки кожи и создаёт камерную атмосферу.

Монохромная песочная палитра, матовые фактуры штукатурки и тонкие металлические рейлы формируют ощущение естественности и визуальной чистоты. Пространство выстроено как прозрачная последовательность – от входа к демонстрационной зоне и далее к примерочным – с сохранением глубины перспективы и игры отражений.

Проект демонстрирует, как архитектура может транслировать ценности бренда не через декор, а через объём, материал и свет, превращая коммерческий интерьер в личный, почти ритуальный опыт.
Магазин Lavarice Store
Фотография @ Дмитрий Суворов / предоставлена Sinitsa Buro
Магазин Lavarice Store
Фотография @ Дмитрий Суворов / предоставлена Sinitsa Buro
Магазин Lavarice Store
Фотография @ Дмитрий Суворов / предоставлена Sinitsa Buro
Магазин Lavarice Store
Фотография @ Дмитрий Суворов / предоставлена Sinitsa Buro
Магазин Lavarice Store
Фотография @ Дмитрий Суворов / предоставлена Sinitsa Buro
Магазин Lavarice Store
Фотография @ Дмитрий Суворов / предоставлена Sinitsa Buro
Магазин Lavarice Store
Фотография @ Дмитрий Суворов / предоставлена Sinitsa Buro
Магазин Lavarice Store
Фотография @ Дмитрий Суворов / предоставлена Sinitsa Buro
Магазин Lavarice Store
Фотография @ Дмитрий Суворов / предоставлена Sinitsa Buro
Магазин Lavarice Store
Фотография @ Дмитрий Суворов / предоставлена Sinitsa Buro
Магазин Lavarice Store
Фотография @ Дмитрий Суворов / предоставлена Sinitsa Buro
Магазин Lavarice Store
Фотография @ Дмитрий Суворов / предоставлена Sinitsa Buro
Магазин Lavarice Store. Общий план
@ Sinitsa Buro

Архитекторы – партнеры Архи.ру:

  • Валерий Каняшин
  • Раис Баишев
  • Дмитрий Буш
  • Дмитрий Ликин
  • Андрей Асадов
  • Олег Шапиро
  • Игорь Шварцман
  • Юлий Борисов
  • Станислав Белых
  • Всеволод Медведев
  • Василий Крапивин
  • Дмитрий Сухов
  • Иван Кожин
  • Ростислав Цайзер
  • Андрей Гнездилов
  • Александр Самарин
  • Антон Яр-Скрябин
  • Евгений Подгорнов
  • Сергей Кузнецов
  • Даниил Лоренц
  • Андрей Романов
  • Михаил Давыдов
  • Степан Липгарт
  • Татьяна Зульхарнеева
  • Олег Мединский
  • Никита Явейн
  • Виталий Лутц
  • Михаил Канунников
  • Евгений Новосадюк
  • Полина Воеводина
  • Юлия Тряскина
  • Антон Надточий
  • Николай Кикава
  • Энди Сноу
  • Илья Машков
  • Константин Ходнев
  • Дмитрий Остроумов
  • Георгий Трофимов
  • Игорь Членов
  • Алексей Гинзбург
  • Сергей Переслегин
  • Сергей Труханов
  • Григориос Гавалидис
  • Андрей Михайлов
  • Анастасия Абашева
  • Сергей Чобан
  • Наталья Сидорова
  • Евгений Зеленов
  • Екатерина Кузнецова
  • Александр Котенков
  • Зураб Басария
  • Вера Бутко
  • Александра Кузьмина
  • Владислав Андреев
  • Юлиана Княжевская
  • Сергей Никешкин
  • Павел Андреев
  • Марина Егорова
  • Юлия Солдатенкова
  • Наталия Шилова
  • Сергей Скуратов
  • Елена Пучкова
  • Алексей Орлов
  • Николай Переслегин
  • Григорий Мустафин
  • Александр Асадов
  • Ерлан Бекмухамедов
  • Владимир Плоткин
  • Александр Скокан
  • Тимур Абдуллаев
  • Екатерина Абдуллаева
  • Маргарита Авдышева
  • Левон Айрапетов
  • Александр Аношкин
  • Алексей Афоничкин
  • Владислав Бек-Булатов
  • Антон Белов
  • Татьяна Бузулукова
  • Петр Васильев
  • Данило Вукосавлевич
  • Алина Георгиевская
  • Павел Гордеев
  • Илья Гринберг
  • Никита Демидов
  • Никита Дергунов
  • Наталья Жилкина
  • Алексей Зародов
  • Екатерина Зырина
  • Алексей Ильин
  • Дарья Ильина
  • Олег Карлсон
  • Алексей Кибкало
  • Денис Кувшинников
  • Анна Куликова
  • Алексей Курков
  • Данил Куров
  • Мария Кутай
  • Евгений Кутай
  • Иван Кычкин
  • Антон Ладыгин
  • Дмитрий Лапин
  • Илья Левянт
  • Катерина Левянт
  • Борис Левянт
  • Валерий Лукомский
  • Антон Лукомский
  • Екатерина Ляпунова
  • Сергей Марков
  • Елена Мерцалова
  • Николай Миловидов
  • Станислав Михаловский
  • Олеся Могилевская
  • Мария Николаева
  • Дмитрий Овчаров
  • Сергей Пергаев
  • Виктор Перов
  • Алексей Полищук
  • Роман Пономарёв
  • Валерия Преображенская
  • Виктория Раубо
  • Василий Рыбаков
  • Николай Рыбаков
  • Мария Салех
  • Александр Стариков
  • Илья Уткин
  • Елисей Чакан
  • Бориша Чорович
  • Олег Шурыгин
  • Дмитрий Шурыгин

Проект из каталога (случайный выбор)

Модернизация и ребрендинг ТЦ «Пятая Авеню»
Лукаш Качмарчик, Магда Кмита, 2016 – 2017
Модернизация и ребрендинг ТЦ «Пятая Авеню»

Постройки и проекты (новые записи):

  • Башни ЖК Руставели 14
  • Дом Спорта
  • Ежон Алтай
  • Навесы Ленинградского вокзала
  • МФК Лотус
  • Общежития Новосибирского государственного университета (НГУ)
  • Детский сад в квартале «СЕТ»
  • Клубный дом на Садовнической, 10
  • Торговый центр в ЖК «Одинбург»

Новости российской архитектуры:

Пространство посткубизма
08.04.2026

Пространство посткубизма

Сергей Чобан, Александра Шейнер
Ценность открытого места
08.04.2026

Ценность открытого места

Сергей Скуратов
Еловый храм
08.04.2026

Еловый храм

Иван Земляков