RSS
Клубный дом на Крылатской улице
© Kleinewelt Architekten

Клубный дом на Крылатской улице

информация:

  • статус
    в процессе реализации
  • даты
    20222023 / 2024
  • region= area= address=ул. Крылатская 23 country_t=Россия city_t=Москва
    место
    Москва ул. Крылатская 23
  • координаты
    55.771301, 37.414840
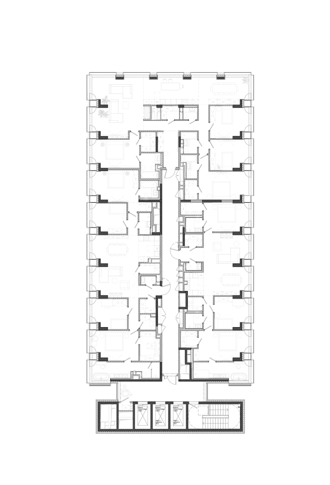
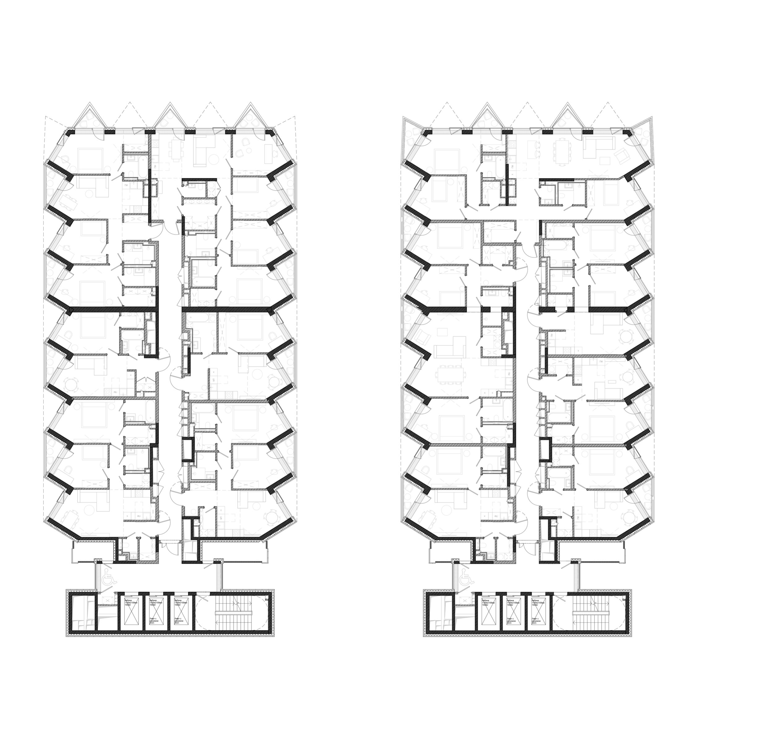
  • функция
    Жилой / жилой комплекс
  • площадь участка
    0,485 га
  • площадь застройки
    1 134 м2
  • площадь подземная
    5 336 м2
  • общая площадь
    22 333 м2
  • площадь жилая
    16 875 м2
  • высота
    250,3
  • этажность
    27
Николай Переслегин
Георгий Трофимов
Сергей Переслегин
Екатерина Мурашко
Kleinewelt Architekten

авторский коллектив

Николай Переслегин, Георгий Трофимов, Сергей Переслегин, Екатерина Мурашко, Алексей Солдатенков, Анастасия Мац, Екатерина Сергеева, Элина Мухарлямова,  Григорий Переслегин, Александр Сафрошкин, Софья Кромина

партнеры, заказчики, смежники

Заказчик:TOUCH
Клубный дом на Крылатской улице
© Kleinewelt Architekten
Клубный дом на Крылатской улице
© Kleinewelt Architekten

описание:

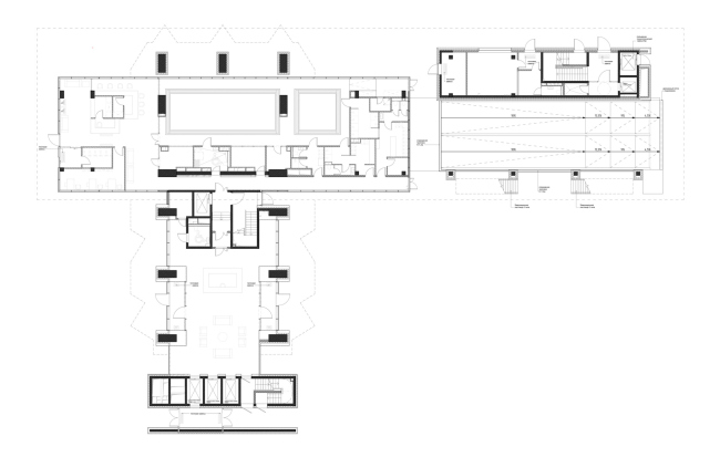
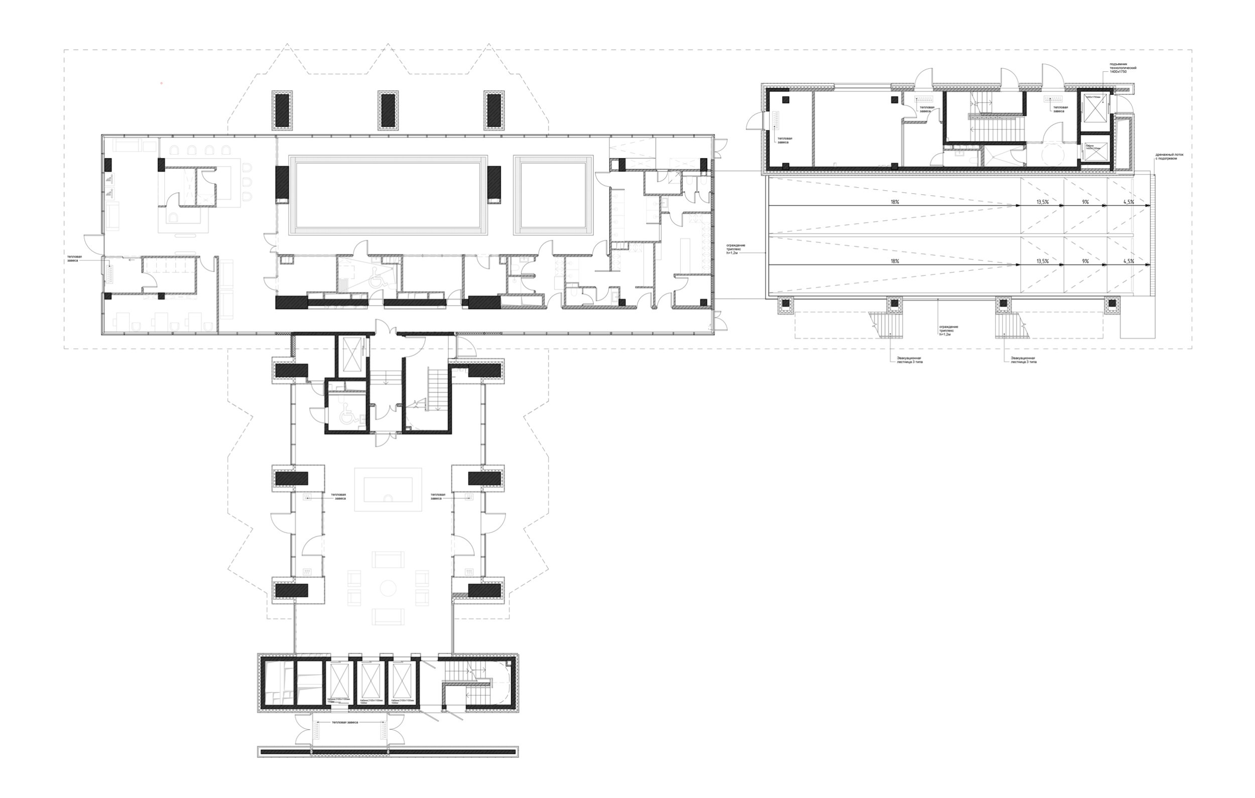
Здание располагается в знаковом месте и станет важной доминантой района Крылатское и узнаваемым лэндмарком города в целом.

Главная идея проекта – создание образа визуального маяка на берегу реки Москвы.
Клубный дом на Крылатской улице
© Kleinewelt Architekten
Клубный дом на Крылатской улице
© Kleinewelt Architekten
Клубный дом на Крылатской улице
© Kleinewelt Architekten
Клубный дом на Крылатской улице
© Kleinewelt Architekten
Клубный дом на Крылатской улице
© Kleinewelt Architekten
Клубный дом на Крылатской улице
© Kleinewelt Architekten
Клубный дом на Крылатской улице
© Kleinewelt Architekten
Клубный дом на Крылатской улице
© Kleinewelt Architekten
Клубный дом на Крылатской улице
© Kleinewelt Architekten
Клубный дом на Крылатской улице
© Kleinewelt Architekten
Клубный дом на Крылатской улице
© Kleinewelt Architekten
Клубный дом на Крылатской улице
© Kleinewelt Architekten
Клубный дом на Крылатской улице
© Kleinewelt Architekten
Клубный дом на Крылатской улице
© Kleinewelt Architekten
Клубный дом на Крылатской улице
© Kleinewelt Architekten
Клубный дом на Крылатской улице
© Kleinewelt Architekten

Архитекторы – партнеры Архи.ру:

  • Раис Баишев
  • Наталья Сидорова
  • Михаил Давыдов
  • Георгий Трофимов
  • Дмитрий Ликин
  • Юлиана Княжевская
  • Энди Сноу
  • Евгений Новосадюк
  • Полина Воеводина
  • Игорь Шварцман
  • Ерлан Бекмухамедов
  • Сергей Труханов
  • Ростислав Цайзер
  • Валерий Каняшин
  • Сергей Чобан
  • Николай Переслегин
  • Александр Асадов
  • Екатерина Кузнецова
  • Сергей Скуратов
  • Евгений Подгорнов
  • Зураб Басария
  • Григориос Гавалидис
  • Юлия Солдатенкова
  • Олег Шапиро
  • Александр Котенков
  • Владимир Плоткин
  • Татьяна Зульхарнеева
  • Никита Явейн
  • Дмитрий Остроумов
  • Андрей Асадов
  • Игорь Членов
  • Василий Крапивин
  • Сергей Никешкин
  • Андрей Чуйков
  • Дмитрий Сухов
  • Константин Ходнев
  • Александр Самарин
  • Андрей Михайлов
  • Александр Скокан
  • Григорий Мустафин
  • Елена Пучкова
  • Александра Кузьмина
  • Илья Машков
  • Алексей Гинзбург
  • Степан Липгарт
  • Олег Мединский
  • Михаил Канунников
  • Антон Яр-Скрябин
  • Иван Кожин
  • Сергей Переслегин
  • Алексей Орлов
  • Анна Иванова
  • Виталий Лутц
  • Юлий Борисов
  • Роман Леонидов
  • Николай Кикава
  • Марина Егорова
  • Станислав Белых
  • Всеволод Медведев
  • Антон Надточий
  • Анастасия Абашева
  • Наталия Шилова
  • Даниил Лоренц
  • Юлия Тряскина
  • Дмитрий Буш
  • Андрей Романов
  • Вера Бутко
  • Павел Андреев
  • Андрей Гнездилов
  • Евгений Зеленов
  • Владислав Андреев
  • Сергей Кузнецов
  • Тимур Абдуллаев
  • Екатерина Абдуллаева
  • Маргарита Авдышева
  • Левон Айрапетов
  • Александр Аношкин
  • Алексей Афоничкин
  • Владислав Бек-Булатов
  • Антон Белов
  • Татьяна Бузулукова
  • Петр Васильев
  • Алина Георгиевская
  • Павел Гордеев
  • Илья Гринберг
  • Никита Демидов
  • Никита Дергунов
  • Наталья Жилкина
  • Алексей Зародов
  • Екатерина Зырина
  • Алексей Ильин
  • Дарья Ильина
  • Олег Карлсон
  • Алексей Кибкало
  • Денис Кувшинников
  • Анна Куликова
  • Алексей Курков
  • Алексей Курков
  • Данил Куров
  • Евгений Кутай
  • Мария Кутай
  • Антон Ладыгин
  • Антон Ладыгин
  • Дмитрий Лапин
  • Илья Левянт
  • Борис Левянт
  • Катерина Левянт
  • Антон Лукомский
  • Валерий Лукомский
  • Екатерина Ляпунова
  • Сергей Марков
  • Николай Миловидов
  • Станислав Михаловский
  • Олеся Могилевская
  • Мария Николаева
  • Виктор Перов
  • Алексей Полищук
  • Роман Пономарёв
  • Валерия Преображенская
  • Виктория Раубо
  • Мария Салех
  • Александр Стариков
  • Илья Уткин
  • Дмитрий Шурыгин
  • Олег Шурыгин

Проект из каталога (случайный выбор)

Концепция гостиничного комплекса Radisson Blu Moscow Riverside
Всеволод Медведев, Зураб Басария, Михаил Канунников, Олег Мединский, 2015 – 2014
Концепция гостиничного комплекса Radisson Blu Moscow Riverside

Постройки и проекты (новые записи):

  • БЦ на Верейской улице
  • DELO HOUSE 3.2 с флигелем
  • Ледовый дворец Navka Arena
  • Благоустройство территории ЖК Holms Residence
  • Игровое пространство у театра им. Г.К. Камала
  • Вторая ось
  • Концепция проекта храмового комплекса в Куркино, Москва
  • Пять часовен
  • Концепция экспозиционного проекта «Русский логос» в культурно-просветительском центре «Башня»

Новости российской архитектуры:

Манифест натуральности
11.02.2026

Манифест натуральности

Мария Чудинова
Маленький домик, русская печка
10.02.2026

Маленький домик, русская печка

Александр Казаченко, Алексей Агарков, Вероника Давиташвили
От усадьбы до квартала
09.02.2026

От усадьбы до квартала

Петр Васильев, Вениамин Иванов, Иаков Иванов, Ирина Сивухина
Софт дизайн
07.02.2026

Софт дизайн

Ирина Потапова