RSS
DELO HOUSE 3.2 с флигелем
Фотография © Арсений Бродач, Варвара Топленникова / предоставлена Delo Design

DELO HOUSE 3.2 с флигелем

информация:

  • статус
    реализовано
  • даты
    2024
  • region=Ленинградская область area= address= country_t=Россия city_t=None
    место
    Ленинградская область
  • функция
    Жилой / индивидуальный жилой дом
  • общая площадь
    240 м2
  • площадь жилая
    125 м2
Россия

авторский коллектив

Архитекторы – Арсений Бродач; конструкторы – Иван Новиков, Никита Соколов

DELO HOUSE 3.2 с флигелем
Фотография © Арсений Бродач, Варвара Топленникова / предоставлена Delo Design
DELO HOUSE 3.2 с флигелем
Фотография © Арсений Бродач, Варвара Топленникова / предоставлена Delo Design

описание:

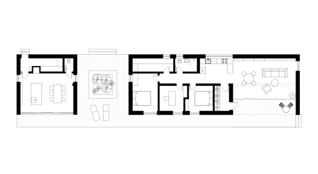
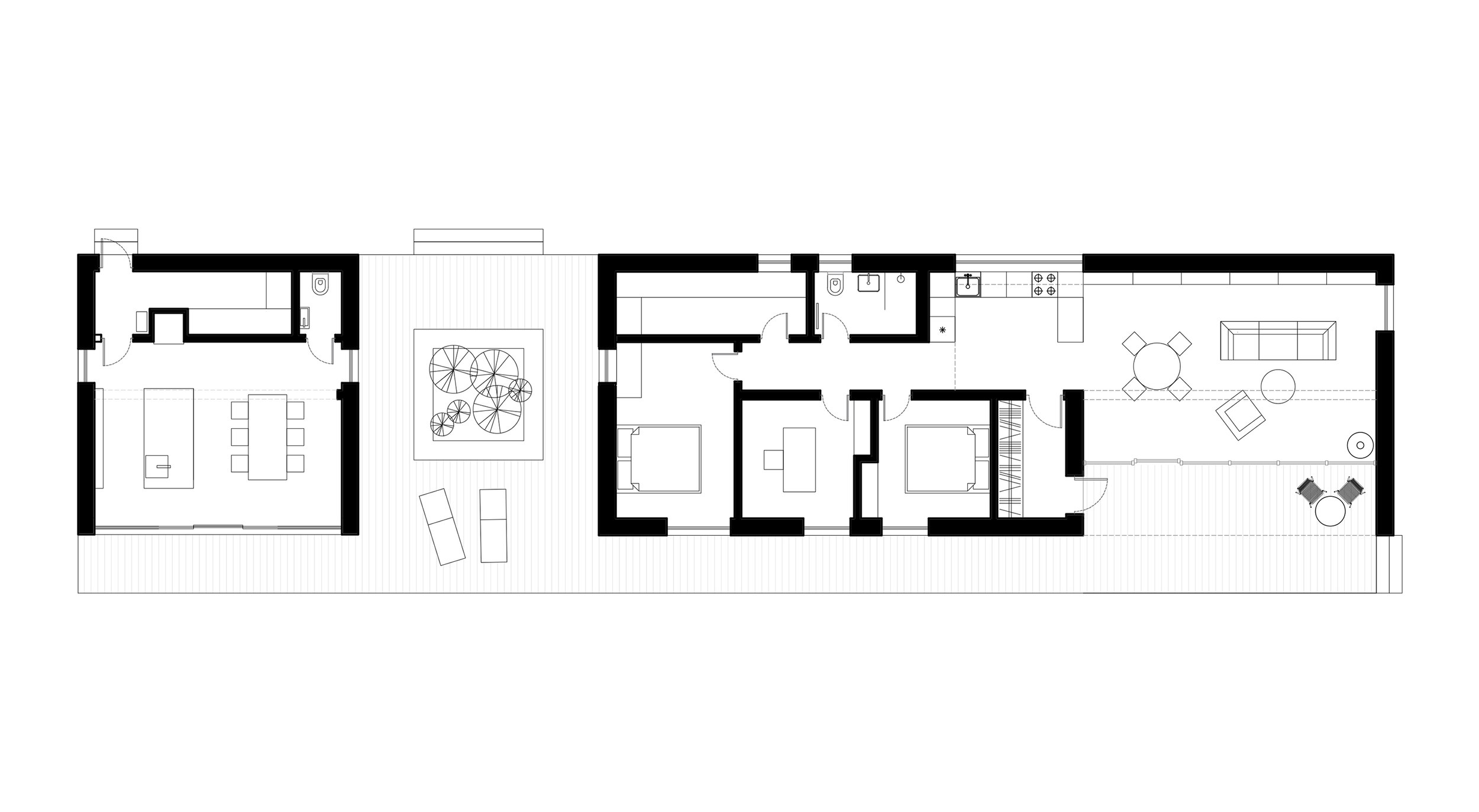
Delo House 3 – один из типовых быстровозводимых каркасных домов в линейке Delo, реализованный с полным инженерным оснащением, финишной отделкой и авторской мебелью студии. По запросу заказчика рядом с основным объемом был построен отдельный флигель с кухней-столовой и санузлом.

Дом расположен на возвышенности недалеко от берега Финского залива. Основной объем и флигель объединяет терраса из лиственницы, формирующая защищенное патио с клумбой, предназначенной для посадки плодовых растений. Линейная структура объекта продиктована генпланом участка: все ключевые помещения ориентированы таким образом, чтобы из них открывались виды на сосновую рощу и акваторию залива, а внутренние пространства были максимально связаны с окружающим ландшафтом.

Планировка дома выстроена с учетом рационального использования площади. В основном объеме размещены две спальни со встроенными шкафами, кабинет, кухня, гостиная, ванная комната, отдельный туалет, гардеробная и прихожая. Во флигеле находится кухня-столовая с печью для готовки и санузел – автономное пространство, дополняющее основной дом.

Материалы и конструктив
Delo House 3 построен по каркасной технологии с использованием префаб-элементов. Проектирование велось с учетом стандартных размеров материалов, что позволило оптимизировать процесс строительства, минимизировать количество отходов и рационально использовать ресурсы. Такой подход отражает философию Delo – отношение к архитектуре с ремесленной точностью, аналогичной созданию предметов мебели. Многие конструктивные элементы были специально разработаны и произведены для этого проекта.

Дом установлен на монолитной железобетонной плите. В стяжке над плитой расположен водяной теплый пол, обеспечивающий равномерный, комфортный и энергоэффективный обогрев помещений. Каждый объект оснащен интеллектуальной системой вентиляции и климат-контроля, поддерживающей стабильный микроклимат и высокое качество воздуха в течение всего года. Окна защищены ударопрочной пленкой, повышающей их износостойкость без потери прозрачности.

В отделке фасадов и интерьеров использована кедровая доска, изготовленная эксклюзивно для серии Delo House. Этот материал отсылает к традиционной деревянной архитектуре региона, при этом остается визуально сдержанным и современным. Натуральная текстура древесины и ее естественное старение становятся важной частью архитектурного образа дома. На полу использована плитка из терраццо – прочный и тактильно выразительный материал.

Интерьер и встроенные решения
Интерьер дома спроектирован как единая система, в которой архитектура и предметы обстановки неразделимы. Все встроенные элементы – кухня, шкафы и системы хранения – выполнены на заказ по чертежам студии, что обеспечивает целостность пространства и визуальную чистоту интерьеров.

Обеденные стулья в основном доме созданы совместно со студией Eburet. Сиденья выполнены методом 3D-печати из переработанного пластика.

Остальная мебель и предметы быта – продукция Delo, разработанная студией и выпускаемая серийно. Такой подход подчеркивает идею функционального дизайна, где каждый элемент является частью общего языка проекта.

DELO HOUSE 3.2 с флигелем
Фотография © Арсений Бродач, Варвара Топленникова / предоставлена Delo Design
DELO HOUSE 3.2 с флигелем
Фотография © Арсений Бродач, Варвара Топленникова / предоставлена Delo Design
DELO HOUSE 3.2 с флигелем
Фотография © Арсений Бродач, Варвара Топленникова / предоставлена Delo Design
DELO HOUSE 3.2 с флигелем
Фотография © Арсений Бродач, Варвара Топленникова / предоставлена Delo Design
DELO HOUSE 3.2 с флигелем
Фотография © Арсений Бродач, Варвара Топленникова / предоставлена Delo Design
DELO HOUSE 3.2 с флигелем
Фотография © Арсений Бродач, Варвара Топленникова / предоставлена Delo Design
DELO HOUSE 3.2 с флигелем
Фотография © Арсений Бродач, Варвара Топленникова / предоставлена Delo Design
DELO HOUSE 3.2 с флигелем
Фотография © Арсений Бродач, Варвара Топленникова / предоставлена Delo Design
DELO HOUSE 3.2 с флигелем
Фотография © Арсений Бродач, Варвара Топленникова / предоставлена Delo Design
DELO HOUSE 3.2 с флигелем
Фотография © Арсений Бродач, Варвара Топленникова / предоставлена Delo Design
DELO HOUSE 3.2 с флигелем
Фотография © Арсений Бродач, Варвара Топленникова / предоставлена Delo Design
DELO HOUSE 3.2 с флигелем
© Delo Design

Архитекторы – партнеры Архи.ру:

  • Полина Воеводина
  • Андрей Асадов
  • Андрей Романов
  • Сергей Кузнецов
  • Наталья Сидорова
  • Наталия Шилова
  • Раис Баишев
  • Валерий Каняшин
  • Алексей Гинзбург
  • Юлиана Княжевская
  • Андрей Гнездилов
  • Александр Скокан
  • Дмитрий Ликин
  • Юлия Тряскина
  • Вера Бутко
  • Татьяна Зульхарнеева
  • Станислав Белых
  • Виталий Лутц
  • Александр Самарин
  • Андрей Михайлов
  • Юлий Борисов
  • Игорь Членов
  • Антон Яр-Скрябин
  • Константин Ходнев
  • Анастасия Абашева
  • Степан Липгарт
  • Алексей Орлов
  • Сергей Скуратов
  • Михаил Давыдов
  • Никита Явейн
  • Антон Надточий
  • Даниил Лоренц
  • Михаил Канунников
  • Анна Иванова
  • Олег Мединский
  • Олег Шапиро
  • Дмитрий Остроумов
  • Екатерина Кузнецова
  • Александра Кузьмина
  • Владимир Плоткин
  • Сергей Переслегин
  • Юлия Солдатенкова
  • Всеволод Медведев
  • Евгений Новосадюк
  • Энди Сноу
  • Владислав Андреев
  • Евгений Подгорнов
  • Игорь Шварцман
  • Дмитрий Сухов
  • Марина Егорова
  • Зураб Басария
  • Ростислав Цайзер
  • Дмитрий Буш
  • Василий Крапивин
  • Андрей Чуйков
  • Александр Котенков
  • Сергей Труханов
  • Павел Андреев
  • Сергей Чобан
  • Григориос Гавалидис
  • Роман Леонидов
  • Евгений Зеленов
  • Елена Пучкова
  • Георгий Трофимов
  • Ерлан Бекмухамедов
  • Иван Кожин
  • Григорий Мустафин
  • Николай Кикава
  • Сергей Никешкин
  • Александр Асадов
  • Николай Переслегин
  • Илья Машков
  • Тимур Абдуллаев
  • Екатерина Абдуллаева
  • Маргарита Авдышева
  • Левон Айрапетов
  • Александр Аношкин
  • Алексей Афоничкин
  • Владислав Бек-Булатов
  • Антон Белов
  • Татьяна Бузулукова
  • Петр Васильев
  • Алина Георгиевская
  • Павел Гордеев
  • Илья Гринберг
  • Никита Демидов
  • Никита Дергунов
  • Наталья Жилкина
  • Алексей Зародов
  • Екатерина Зырина
  • Алексей Ильин
  • Дарья Ильина
  • Олег Карлсон
  • Алексей Кибкало
  • Денис Кувшинников
  • Анна Куликова
  • Алексей Курков
  • Алексей Курков
  • Данил Куров
  • Евгений Кутай
  • Мария Кутай
  • Антон Ладыгин
  • Антон Ладыгин
  • Дмитрий Лапин
  • Катерина Левянт
  • Илья Левянт
  • Борис Левянт
  • Антон Лукомский
  • Валерий Лукомский
  • Екатерина Ляпунова
  • Сергей Марков
  • Николай Миловидов
  • Станислав Михаловский
  • Олеся Могилевская
  • Мария Николаева
  • Виктор Перов
  • Алексей Полищук
  • Роман Пономарёв
  • Валерия Преображенская
  • Виктория Раубо
  • Николай Рыбаков
  • Василий Рыбаков
  • Мария Салех
  • Александр Стариков
  • Илья Уткин
  • Олег Шурыгин
  • Дмитрий Шурыгин

Проект из каталога (случайный выбор)

Постройки и проекты (новые записи):

  • ЖК Лесное ожерелье
  • Клубный дом «Хамовники 12»
  • Усадьба «Павлово»
  • Проект общественно-делового комплекса у станции метро «Ботанический Сад» / Genpro
  • Проект общественно-делового комплекса у станции метро «Ботанический Сад» / UNK
  • Бизнес-центр «Триград»
  • БЦ в Раменках
  • Бизнес-центр (на месте ТЦ «Старт»)
  • DELO HOUSE 3.2 с флигелем

Новости российской архитектуры:

Против ветра
12.03.2026

Против ветра

Олег Манов
Игра противоположностей
11.03.2026

Игра противоположностей

Наталья Башкова, Владислав Поляков
Анфилада архетипов
10.03.2026

Анфилада архетипов

Михаил Микадзе