Санаторный комплекс. Административный корпус со столовой
© Архитектурное бюро «А.Лен» / предоставлено пресс-слжбой КГА
Санаторный комплекс
информация:
-
статус
проект -
даты
— 2025 -
место
Санкт-Петербург Пос. Солнечный, Лесная ул., д.24, литер Б -
функция
Туризм/здравоохранение / Санаторий -
площадь участка
5,3961 га -
площадь застройки
12 638 м2 -
площадь жилая
18 224 м2 -
Площадь озеленения – 32 413 м2
Количество номеров – 532
-
кол-во машиномест
101

Сергей Орешкин
Sergey Oreshkin / РоссияАрхитектурное бюро «А.Лен»
A-Len / РоссияСанаторный комплекс. Главный вьезд. КПП
© Архитектурное бюро «А.Лен» / предоставлено пресс-слжбой КГА
Архи.ру об этом объекте:
22.08.2025
Алёна Кузнецова. У лесного пруда
Еще один санаторный комплекс, который рассмотрел Градостроительный совет Петербурга, находится недалеко от усадьбы «Пенаты». Исходя из ограничений, связанных с площадью застройки на данной территории, бюро «А.Лен» рассредоточило санаторно-курортные функции и гостиничные номера по 18 корпусам. Проект почти не обсуждался экспертами, однако коэффициент плотности все же вызвал сомнения.
Санаторий проектируется для участка, расположенного на территории лагеря Красный Выборжец в его недостроенном корпусе довольно выразительной модернистской архитектуры несколько лет встречались любители пейнтбола, но в последнее время здание, окру... читать дальшеСанаторный комплекс. Главный вьезд. КПП
© Архитектурное бюро «А.Лен» / предоставлено пресс-слжбой КГА
Санаторный комплекс. Административный корпус со столовой
© Архитектурное бюро «А.Лен» / предоставлено пресс-слжбой КГА
Санаторный комплекс. Административный корпус со столовой
© Архитектурное бюро «А.Лен» / предоставлено пресс-слжбой КГА
Санаторный комплекс. Административный корпус со столовой
© Архитектурное бюро «А.Лен» / предоставлено пресс-слжбой КГА
Санаторный комплекс. Вид на пруд
© Архитектурное бюро «А.Лен» / предоставлено пресс-слжбой КГА
Санаторный комплекс. Административный и СПА корпус
© Архитектурное бюро «А.Лен» / предоставлено пресс-слжбой КГА
Санаторный комплекс
© Архитектурное бюро «А.Лен» / предоставлено пресс-слжбой КГА
Санаторный комплекс
© Архитектурное бюро «А.Лен» / предоставлено пресс-слжбой КГА
Санаторный комплекс. Административный и СПА корпус
© Архитектурное бюро «А.Лен» / предоставлено пресс-слжбой КГА
Санаторный комплекс. Административный и СПА корпус
© Архитектурное бюро «А.Лен» / предоставлено пресс-слжбой КГА
Санаторный комплекс. Медицинские корпуса
© Архитектурное бюро «А.Лен» / предоставлено пресс-слжбой КГА
Санаторный комплекс. Медицинский корпус
© Архитектурное бюро «А.Лен» / предоставлено пресс-слжбой КГА
Санаторный комплекс. Медицинский корпус
© Архитектурное бюро «А.Лен» / предоставлено пресс-слжбой КГА
Санаторный комплекс. Медицинский корпус
© Архитектурное бюро «А.Лен» / предоставлено пресс-слжбой КГА
Санаторный комплекс. Медицинский корпус
© Архитектурное бюро «А.Лен» / предоставлено пресс-слжбой КГА
Санаторный комплекс. Административно-бытовой корпус
© Архитектурное бюро «А.Лен» / предоставлено пресс-слжбой КГА
Санаторный комплекс. Административно-бытовой корпус
© Архитектурное бюро «А.Лен» / предоставлено пресс-слжбой КГА
Санаторный комплекс
© Архитектурное бюро «А.Лен» / предоставлено пресс-слжбой КГА
Санаторный комплекс. Спальный корпус
© Архитектурное бюро «А.Лен» / предоставлено пресс-слжбой КГА
Санаторный комплекс. Спальный корпус
© Архитектурное бюро «А.Лен» / предоставлено пресс-слжбой КГА
Санаторный комплекс. Спальный корпус
© Архитектурное бюро «А.Лен» / предоставлено пресс-слжбой КГА
Санаторный комплекс. Спальный корпус
© Архитектурное бюро «А.Лен» / предоставлено пресс-слжбой КГА
Санаторный комплекс. Спальный корпус
© Архитектурное бюро «А.Лен» / предоставлено пресс-слжбой КГА
Санаторный комплекс. Спальный корпус
© Архитектурное бюро «А.Лен» / предоставлено пресс-слжбой КГА
Санаторный комплекс. Спальный корпус
© Архитектурное бюро «А.Лен» / предоставлено пресс-слжбой КГА
Санаторный комплекс. Схема улично-дорожной сети и транспортной инфраструктуры
© Архитектурное бюро «А.Лен» / предоставлено пресс-слжбой КГА
Санаторный комплекс. Схема генплана
© Архитектурное бюро «А.Лен» / предоставлено пресс-слжбой КГА
Санаторный комплекс. Схема транспортного обеспечения территории
© Архитектурное бюро «А.Лен» / предоставлено пресс-слжбой КГА
Санаторный комплекс. Схема благоустройства территории. Летний сезон
© Архитектурное бюро «А.Лен» / предоставлено пресс-слжбой КГА
Санаторный комплекс. Административный корпус со столовой. План 1 этажа
© Архитектурное бюро «А.Лен» / предоставлено пресс-слжбой КГА
Санаторный комплекс. Административный корпус со столовой. Схема разреза
© Архитектурное бюро «А.Лен» / предоставлено пресс-слжбой КГА
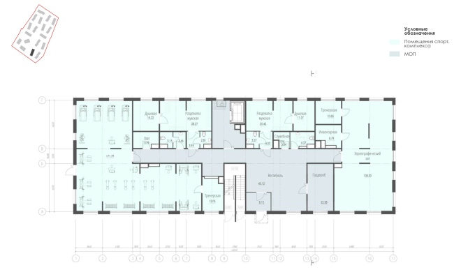
Санаторный комплекс. СПА-комплекс. План 1 этажа
© Архитектурное бюро «А.Лен» / предоставлено пресс-слжбой КГА
Санаторный комплекс. СПА-комплекс. Схема разреза
© Архитектурное бюро «А.Лен» / предоставлено пресс-слжбой КГА
Санаторный комплекс. Административно-бытовой корпус. План 1 этажа
© Архитектурное бюро «А.Лен» / предоставлено пресс-слжбой КГА
Санаторный комплекс. Культурно-досуговый корпус. План 1 этажа
© Архитектурное бюро «А.Лен» / предоставлено пресс-слжбой КГА
Санаторный комплекс. Культурно-досуговый корпус. Схема разреза
© Архитектурное бюро «А.Лен» / предоставлено пресс-слжбой КГА
Санаторный комплекс. Спальные корпуса 9, 10, 12, 15, 17. План 1 этажа
© Архитектурное бюро «А.Лен» / предоставлено пресс-слжбой КГА
Санаторный комплекс. Спальные корпуса 9, 10, 12, 15, 17. План 3 этажа
© Архитектурное бюро «А.Лен» / предоставлено пресс-слжбой КГА
Санаторный комплекс. Спальные корпуса 13, 14, 18. План 1 этажа
© Архитектурное бюро «А.Лен» / предоставлено пресс-слжбой КГА
Санаторный комплекс. Спальные корпуса 13, 14, 18. План 1 этажа
© Архитектурное бюро «А.Лен» / предоставлено пресс-слжбой КГА
Архитекторы – партнеры Архи.ру:
Проект из каталога (случайный выбор)
Постройки и проекты (новые записи):
Новости российской архитектуры:
13.10.2025
Два московских ЖК включены в сборник лучших жилых комплексов мира.
Николоз Джапаридзе, Антон Хмельницкий, Анна Андреева13.10.2025
Сила линий
Владимир Плоткин13.10.2025
Зеленая гостиная
13.10.2025