Музей Русского Поля. Вход
© Архитектура и культурная политика ПНКБ
Музей Русского Поля
информация:
-
статус
проект -
даты
09.2022 — 12.2023 -
место
Монастырщино -
координаты
53.663888, 38.648146 -
функция
Культурный / Музей -
теги
send.project -
общая площадь
4 500 м2 -
высота
7 500 -
этажность
1 -
строительный объем
54 000 м3 - Соавторы: CARTONgroup

Антон Любимкин
Россия
Сергей Гнедовский
Sergey Gnedovskiy / РоссияАрхитектура и культурная политика ПНКБ
Россияавторский коллектив
партнеры, заказчики, смежники
награды:
- Зодчество 2024 Диплом Союза Архитекторов России. Регионы России развитие территорий градостроительные решения
Музей Русского Поля. Вид с дороги, с севера
© Архитектура и культурная политика ПНКБ
Архи.ру об этом объекте:
Илья Мукосей. Поле жизни
Новый проект от бюро ПНКБ Сергея Гнедовского и Антона Любимкина для Музея-заповедника «Куликово поле» посвящен Полю как таковому, самому по себе. Его исследование давно, тщательно и успешно ведет музей. Соответственно, снаружи форма нового музейного здания мягче, чем у предыдущего, тоже от ПНКБ, посвящённого исторической битве. Но внутри оно уверенно ведет посетителя от светового колодца по спирали – к полю, которое в данном случае трактовано не как поле битвы, а как поле жизни.
Вот всех я по местам расставил <...> А снизу поле предоставил Для битвы поле предоставил Его деревьями уставил Дубами-елями уставил Кустами кое-где обставил Травою мягкой застелил Букашкой мелкой населил Дмитрий Пригов, Куликово поле В школ... читать дальшеМузей Русского Поля. Вид с северо-востока, от парковки
© Архитектура и культурная политика ПНКБ
история проекта:
Наше бюро ПНКБ уже долгие годы, совместно с командой Музея-заповедника «Куликово поле» создаёт проекты различного масштаба в рамках развития территории заповедника. В 2017 году по нашему проекту был построен Музей «Куликовской Битвы». Создание концепции музея «Русского Поля» стало следующей крупной вехой взаимодействия нашего бюро и музея.
описание:
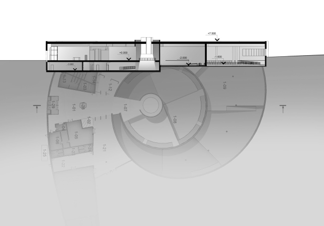
- Задача архитектуры – создание гармоничных условий для диалога человека и поля. В этом диалоге нельзя не учитывать особенности места возведения музея, отношение музея, среды вокруг и поля. Одна из наиболее важных составляющих концепции – это путь. В бескрайности поля важно эмоционально разомкнуть начало и завершение маршрута, ввести сценарий и развитие архитектуры в движении.
- Применение дуги и круга в архитектуре создают бескрайнее пространство с минимальными прерываниями поверхностей. Спиралевидная форма – шаг к размыканию пути и созданию непрерывно-развивающегося пространства.
- Создание ощущения бескрайности в ограниченном пространстве требует, среди прочего, минимизации видимости узнаваемых архитектурно-бытовых элементов здания.
- Преподнесение экспозиции Русского поле – задача требующая переключения посетителя от суеты к свежему взгляду на, казалось бы, простые вещи. Посетители долгое время едут по полю для того чтобы попасть в одноимённый музей. Это требует особого внимания к процессу подготовки посетителя к восприятию экспозиции.
- Вертикаль и горизонталь в образе поля играют особое значение в формировании Философии и, как следствие, объёмно-пространственной композиции. Формируют сценарий пути посетителя.
- Архитектура и экспозиция объединяются для создания события и знакового места-притяжения гармонично вписанного в природу. Выраженный характер архитектуры экстерьера и интерьера должен обеспечить универсальность пространства и творческую свободу для формирования, а в последствии, и трансформации экспозиции.
- Образ фасада призван выполнять в чём-то противоречивые функции привлечения внимания и, в тоже время, деликатности к окружающей природе. Именно этим обусловлено сочетание природных образов с геометрически-обоснованными решениями. Это попытка представить природное явление через призму сформировавшейся культуры.