Дом для переселения в Шатуре
© ALEV
Дом для переселения в Шатуре
информация:
-
статус
проект -
даты
— 2023 -
место
Шатура ул. Школьная -
координаты
55.578472, 39.529735 -
функция
Жилой / многоквартирный дом -
теги
send.project -
площадь застройки
1 520,40 м2 -
общая площадь
9 204,04 м2 -
площадь жилая
6 569,12 м2 -
этажность
7 -
кол-во машиномест
88

Константин Гандрабур
РоссияALEV
Россияавторский коллектив
ГАП: Константин Гандрабур
Архитекторы: Иван Михайлов, Никита Обжерин, Ясмин Пронченко
Визуализаторы: Евгения Погосова, Энкира Уланкиева
Архитекторы: Иван Михайлов, Никита Обжерин, Ясмин Пронченко
Визуализаторы: Евгения Погосова, Энкира Уланкиева
партнеры, заказчики, смежники
Заказчик: Стройкомплекс
Дом для переселения в Шатуре
© ALEV
Архи.ру об этом объекте:
05.11.2024
Наталья Коряковская. Жилые проекты Московской области:
12 примеров
Мособлархитектура постоянно работает над новыми нормативами, цель которых – сделать проекты качественными, в том числе визуально. Следите за обновлениями! О них, в числе прочего, рассказали на региональном Форуме проектировщиков. Там же показали позитивные примеры жилых проектов: 4 от «Лабва» Станислава Кулиша, 3 от арх-подразделения ГК «Самолет», которым руководит Андрей Перлич, 5 переселенческих малоэтажек от «Алев Груп».
В этом году у форума была особенно насыщенная повестка. Четыре круглых стола и три лекции посвященные ключевым изменениям в согласовании градостроительной документации, вступившим в силу в текущем году. Судя по огромному наплыву участников, разбор ... читать дальшеДом для переселения в Шатуре
© ALEV
описание:
Комитетом по архитектуре и градостроительству Московской области согласован облик многоквартирного жилого дома, планируемого к реализации в рамках программы по переселению граждан из аварийного жилищного фонда в Московской области. Новое жилье появится в городе Шатура, на улице Школьная.
«В новом семиэтажном жилом доме, который планируется к реализации в Шатуре предусмотрено 132 квартиры для переселенцев. Строительство объекта площадью порядка 9200 квадратных метров планируется начать в этом году и завершить в 2024. Реализация проекта ведется по Стандартам жилищного строительства Московской области», – рассказал министр Правительства Московской области по архитектуре и градостроительству Владислав Гордиенко.
Новый объект жилого назначения представляет собой Г-образное здание в плане. Архитектурное решение дома позволяет гармонично вписать его в существующую застройку и обеспечить связь с окружающей средой. В оформлении фасадов преобладают натуральные оттенки: на первом, шестом и седьмом этажах – серо-коричневая бетонная плитка под кирпич. Кирпичный «пояс» придает дому законченный образ. В отделке со второго по пятые этажи преобладает белая фоновая штукатурка. Акцентными элементами в облике выступают цветные вставки около оконных проемов, с растяжкой от этажа к этажу в теплых тонах: от красного цвета до бледно-желтого.
Завершают образ входные группы с ажурными боковыми стенками в виде арабесок, что придает легкости нижней части здания, а также вносит элемент дизайна в экстерьер привычной входной группы. Для удобства жильцов, входы в каждый в подъезд организован без ступеней, лестниц и пандусов. Также устанавливаются прозрачные входные двери, что обеспечивает комфорт и безопасность.
Г-образная форма здания позволяет организовать полузакрытый внутренний двор. В рамках проекта запланировано благоустройство территории двора, организация детской площадки, зона для отдыха, пешеходных дорожек, парковочных мест.
«В новом семиэтажном жилом доме, который планируется к реализации в Шатуре предусмотрено 132 квартиры для переселенцев. Строительство объекта площадью порядка 9200 квадратных метров планируется начать в этом году и завершить в 2024. Реализация проекта ведется по Стандартам жилищного строительства Московской области», – рассказал министр Правительства Московской области по архитектуре и градостроительству Владислав Гордиенко.
Новый объект жилого назначения представляет собой Г-образное здание в плане. Архитектурное решение дома позволяет гармонично вписать его в существующую застройку и обеспечить связь с окружающей средой. В оформлении фасадов преобладают натуральные оттенки: на первом, шестом и седьмом этажах – серо-коричневая бетонная плитка под кирпич. Кирпичный «пояс» придает дому законченный образ. В отделке со второго по пятые этажи преобладает белая фоновая штукатурка. Акцентными элементами в облике выступают цветные вставки около оконных проемов, с растяжкой от этажа к этажу в теплых тонах: от красного цвета до бледно-желтого.
Завершают образ входные группы с ажурными боковыми стенками в виде арабесок, что придает легкости нижней части здания, а также вносит элемент дизайна в экстерьер привычной входной группы. Для удобства жильцов, входы в каждый в подъезд организован без ступеней, лестниц и пандусов. Также устанавливаются прозрачные входные двери, что обеспечивает комфорт и безопасность.
Г-образная форма здания позволяет организовать полузакрытый внутренний двор. В рамках проекта запланировано благоустройство территории двора, организация детской площадки, зона для отдыха, пешеходных дорожек, парковочных мест.
Дом для переселения в Шатуре
© ALEV
Дом для переселения в Шатуре. Ситуационный план
© ALEV
Дом для переселения в Шатуре. Генпалн
© ALEV
Дом для переселения в Шатуре. План подземного этажа
© ALEV
Дом для переселения в Шатуре. План типового этажа
© ALEV
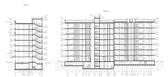
Дом для переселения в Шатуре. Разрез
© ALEV
Архитекторы – партнеры Архи.ру:
Проект из каталога (случайный выбор)

Владимир Биндеман, 2012 – 2012
Концепция застройки территории малоэтажного жилого комплекса в Сестрорецке
Постройки и проекты (новые записи):
Новости российской архитектуры:
14.10.2025
Живопись и графика
Ксения Караваева, Мурат Гукетлов14.10.2025
Осмысление фьорда
14.10.2025
Архитектура дипломатии
Евгений Леонов13.10.2025