МФК «ЯР ПАРК» 1
© Сергей Скуратов ARCHITECTS
МФК «ЯР ПАРК» 1 версия
информация:
-
статус
проект -
даты
09.2021 — 02.2022 -
место
Казань береговая линия реки Казанка -
координаты
55.815170, 49.124777 -
функция
Многофункциональный комплекс / Многофункциональный комплекс -
площадь участка
11,1 га -
общая площадь
289 620 м2 -
Ритейл – 10 501 м2
Гостиница – 19 870 тм2
Конгресс-центр – 5 050 м2
Офисы – 17 620 м2
Фитнес центр – 4 410 м2
ДОУ – 2 740 м2
Апартаменты – 97 740 м2
Количество апартаментов – 1 021
-
кол-во машиномест
1

Сергей Скуратов
Sergey Skuratov / РоссияСергей Скуратов ARCHITECTS
Sergey Skuratov architects / Россияавторский коллектив
Главные архитекторы проекта, авторы: А. Барклянский, А. Незнамов, С. Безверхий
Архитекторы, авторы проекта: М. Бежков, И. Индралиев, А. Нагорная, Ю. Парфёнова, А. Скилягина, А. Смирнов, П. Стрельцова, Р. Тарасов, С. Третьякова, Т. Хабурзания, А. Шайбакова, А. Шевченко
Визуализация: Я. Акимов, И. Индралиев, С. Морозов, А. Незнамов
Макет: В. Козицкий, Д. Кагдин, Ф. Михайлов
МФК «ЯР ПАРК» 1
© Сергей Скуратов ARCHITECTS
МФК «ЯР ПАРК» 1
© Сергей Скуратов ARCHITECTS
описание:
Прежде всего хочу поблагодарить всех участников и энтузиастов этого большого и важного проекта. Проектировать новый городской квартал в таком уникальном для Казани месте – сложная, почетная и ответственная задача. У этой площадки длинная и непростая история, было много идей и этапов, однако финального, сколько-нибудь единодушно одобренного решения до сих пор не нашлось. Мы представляем проект, в который вложен наш профессионализм, немалый градостроительный опыт и наш авторский метод, в соответствии с которым мы стараемся проанализировать и собрать все проблемы, все вопросы и вызовы, на которые возможно ответить именно здесь и сейчас, в это время и в этом пространстве. Мы не сужаем, а расширяем круг задач, предлагаем сильное масштабное решение, считая современную архитектуру наиболее достойным и ярким, самым универсальным способом реализации самых смелых ожиданий и амбиций жителей и властей города.
АКТУАЛЬНОСТЬ ПРОЕКТА
Все исторические города меняются. Одни – медленно и постепенно, другие – стремительно и радикально. Казань во второй половине 20-го века пережила огромные изменения. Численность населения с довоенных лет увеличилась втрое, даже в 1990-е годы Казань, в отличие от большинства российских городов, не переживала процессов депопуляции. В результате строительства водохранилища город получил гигантское зеркало воды на месте небольшой когда-то реки Казанки, а противоположный от Кремля берег, еще до войны представлявший собой идиллический сельский пейзаж, превратился в огромный район городской многоэтажной застройки. Бурный горизонтальный рост, фактическое расползание города требует серьезных структурных изменений. И даже успешное решение текущих жилищных, транспортных, социальных проблем само по себе не создает современный город, а порождает новые задачи, требует новых городских решений средствами современной архитектуры – новых значимых общественных объектов, озелененных и насыщенных новыми функциями публичных пространств, открытых и доступных рекреационных территорий, вертикальных и архитектурных доминант, новых крупных городских культурных символов. В последние годы столица Татарстана демонстрирует не только ясное осознание стоящих перед городом задач, но и активную плодотворную работу по подготовке и реализации решений. Мы надеемся, что предлагаемый проект даст современный, технологичный и яркий ответ на многие из поставленных задач и станет архитектурным событием новой Казани 21-го века.
НОВИЗНА И УНИКАЛЬНОСТЬ
Среди главных особенностей участка следует отметить его уникальные видовые характеристики. Очевидно, что здесь нужна крупная тема, четкая композиция, сильный, запоминающийся образ. Застройка должна быть разряженной, разновысокой и создавать эффектный узнаваемый силуэт. Надо стремиться к уменьшению количества зданий для увеличения свободных озелененных пространств, сохранить парковый характер территории, придать ей образ рекреационной зоны. Важной остается задача преодоления ограничений существующего высотного регламента, а также соблюдение высоких требований к жилой архитектуре такого класса – планировочный комфорт, доступность, безопасность, грамотное современное функциональное зонирование, видовые характеристики квартир – на воду, парк и Кремль. Принципиально важным для проекта стал отказ от устаревшей стандартной парадигмы городского квартала: улица (как правило, перегруженная транспортная магистраль) – двор (как правило, закрытый от города и охраняемый) – дом (как правило, лишенная общественных функций стена между улицей и двором). Наш проект демонстрирует принципиально новую философию современной городской жизни – он становится общественным, рекреационным, культурным центром для окружающих жилых кварталов и города в целом. Он проницаем и доступен, он насыщен полезными общественными функциями, он комфортен и красив. Он взаимодействует с парком, примыкающим к западной границе участка, с городом и его застройкой на севере. Он не просто сохраняет общественный доступ к воде, он организует и эстетически переосмысливает новые пространства набережных, террас и площадок, создавая множество прекрасных возможностей для публичной городской жизни. Проект в целом и во всех своих составляющих реализует идею двух масштабов – дальнего, обеспечивая мощную высотную и силуэтную доминанту в перекличку к главным доминантам Кремля и старого города, и ближнего, организуя новую уникальную городскую среду, новую философию и практику современного урбанизма.
СОСЕДНЯЯ ТЕРРИТОРИЯ
В процессе работы над проектом мы совместно с Заказчиком и Главным архитектором города пришли к выводу, что включение соседнего участка, расположенного с восточной стороны, в общую композицию даст колоссальное преимущество перед вариантами, которые делались в рамках только одной территории. Заказчик подтвердил свои намерения осваивать оба участка, и в дальнейшем рассказе мы будем обозначать эту территорию как вторую очередь проекта. Функционально на ней могут разместиться апартаменты, торговые площади и развлекательный комплекс с аквапарком с и бассейном. В ходе этих консультаций также была затронута тема будущей возможной реконструкции территории, занимаемой сейчас магазином «Леруа Мерлен». Магазин может остаться в стилобате, к нему добавятся парковки. Сверху, на отметке 8.4 м может разместиться открытая общественная площадь с амфитеатром. Эта площадь, выходящая сразу на три улицы, получит и свое вертикальное завершение, которой может стать 245-метровая доминанта – башня второй очереди. С этой площади по пешеходному мосту можно будет беспрепятственно попасть в торгово-развлекательную зону нашего комплекса и выйти к воде. На кровле стилобата можно свободно разместить офисно-коммерческий центр с универсальным концертным залом на 1500-2000 мест.
УЧАСТОК ЗАСТРОЙКИ
Территория видится нам хорошо озелененной, как естественное продолжения парка по концепции Мишеля Пена. Парк, имеющий ярко выраженную линейно-векторную структуру, не упирается в нашу застройку, а плавно проникает в нее, разделяясь на несколько отдельных векторов. Поскольку наш квартал имеет трехчастную структуру, сформированную горизонтальным объемом общественно-торгового центра – «молла», то парк соответственно разделяется на три направления: северное, вдоль улицы Сибгата Хакима; центральное – внутри молла, в теплом общественном пространстве; и южное, вдоль берега Казанки. Помимо этого, мы позволили себе немного переосмыслить часть парка, примыкающего к нашей территории и визуально продлить пространство молла на запад, организовав в этом пятне, свободном от высоких деревьев, активную парковую жизнь – аттракционы, детские и спортивные площадки, кафе и туалеты. Таким планировочным приемом мы объединяем парк и наш участок. Сосновую аллею на севере парка мы доводим до главной площади с прудом у входа в молл. Мы также слегка изменили рисунок дорожек парка, приблизив его к рисунку дорожек на нашей территории, что, впрочем, является отнюдь не обязательным. Озеленение – один из важнейших элементов проекта. Помимо газонов и кустарников, мы предлагаем посадку вечнозеленых крупномеров: сосен, елей, пихт, кедров, туй и можжевельников. Мы также предлагаем озеленить улицу Сибгата Хакима с двух сторон на всем ее протяжении вдоль парка и наших двух участков.
СТРУКТУРА ЗАСТРОЙКИ
По нашей концепции застройка состоит из отдельных разновысоких зданий, расположенных в определенном ритме, позволяющем видеть все здания с воды, окруженных с трех сторон открытыми озелененными пространствами и соединенных теплыми переходами с общественным моллом. Здания с жилыми апартаментами расположены либо в точно широтной, либо точно в меридиональной ориентации. Здание пятизвездочного отеля фланкирует композицию и имеет меридиональную ориентацию номеров. Кроме того, расположение домов на участке учитывает возможность их максимального раскрытия на воду. Ни один дом не закрывает вид на воду другому. Все квартиры имеют вид на воду или на парк. Мало того, постановка домов сделана с расчетом максимального увеличения количества квартир с видом на Кремль. Это условие накладывает серьезный отпечаток на высотность и конфигурацию домов в плане. Общественный комплекс расположился вдоль длинной стороны участка с запада на восток ближе к реке Казанка враспор его границ. На трех его этажах разместились (слева – направо): входная зона, торговые площади, фитнес центр, супермаркет, конгресс центр, общественный форум с выходом в город и к реке, офисный центр, ритейл, рестораны, кафе. Большая часть офисных площадей и небольшая часть конгресс центра разместилась в связях (крыльях) между апартаментами и моллом. Поперечная ось комплекса связывает застройку вдоль улицы Сибгата Хакима с главным входом в зону форума. В зоне площади на улице располагаются автобусные остановки и пешеходный переход. На дублере – стоянка такси и автобусов. В центре площади – водоем. На нем установлена современная скульптура по мотивам архитектурной композиции комплекса, выполненная из кортена. Справа от нее крытая подсвеченная аллея, ведущая в зону общественного форума. Приближаясь к форуму, посетители увидят сквозь стеклянную стену большое многосветное пространство и за ним, за второй стеклянной стеной – историческую панораму Казани с Кремлем на фоне сияющего зеркала воды. Под всем участком разместилась подземная стоянка, обслуживающая весь комплекс. Два въезда на нее организованы на дублере, который расположен в северной части участка, примыкающей к улице Сибгата Хакима. В подземном этаже разместились: парковка для жильцов апартаментов, отеля, фитнес центра, конгресс центра, офисов, детского сада, ритейла и ресторанов. Здесь же мойки машин, мусорокамеры, загрузки для всех функций комплекса, технические помещения. Основное рекреационное общественно-деловое и развлекательное пространство «молл» располагается непосредственно над парковкой. Его основной уровень приподнят на 60 см относительно отметки улицы Сибгата Хакима в зоне участка. Эта отметка принята за ноль проекта. Молл состоит из двух частей: основного многосветного, трехуровневого объема высотой 18 и шириной 42 метра и связей-крыльев, через которые происходит стыковка с отдельностоящими объемами отеля и апартаментов. Люди, находящиеся в отеле и живущие в апартаментах могут попасть в пространство молла по теплым переходам, «в тапочках». Эта круглогодичная комфортная связь серьезно повышает статус и улучшает качество жизни в этом квартале. В молл можно попасть со всех четырех его сторон: с двух торцов и центре с севера и с юга, можно пройти его насквозь в обоих направлениях. Над многосветными пространствами для увеличения освещенности интерьеров устроены фонари верхнего света, которые в солнечную погоду дают интереснейшую игру света и тени на полу и стенах форума и молла. Для усиления эффекта прозрачности и проницаемости центральной зоны комплекса фасады молла облицовываются крупноразмерным стеклом повышенной прозрачности с максимально пониженным коэффициентом зеркальности. В самом центре молла расположены помещения конгресс-центра. Он состоит из нескольких универсальных залов и подсобно-рекреационных помещений. Универсальные залы разной вместимости могут быть трансформированы и приспособлены для разного формата совещаний, театральных представлений, лекций, концертов, занятий спортом и танцами. Входы в конгресс-центр (обычный и vip) организованы со стороны северного фасада молла.
Центральная часть конгресс-центра представляет собой многосветное универсальное пространство с постоянным амфитеатром для проведения форумов, массовых праздников, выставок и ярмарок, ориентированное на реку, с видами на историческую часть Казани. Рядом с большим пространством форума на отметке паркинга расположены помещения для его обслуживания: сервисные, кладовые мебели и инвентаря, гримерные, кафе, гардеробные и санузлы. Пространство форума имеет уличное развитие в сторону города и продолжение в сторону берега Казанки с устройством театральной площади и стационарного амфитеатра. Отсюда также открываются виды на Кремль и противоположную сторону реки. Вдоль берега организуются пляжи, общественные пространства для проведения праздников, прогулочные аллеи, велосипедные дорожки, площадки для игр и занятий спортом на свежем воздухе. Прогулочная дорожка в сочетании с велосипедной проходит по южной границе участка, образуя его береговую линию и продолжается по всей длине берегов Казанки в центральной части города. Соединяя парки и рекреационные зоны, эта дорожка образует замкнутую пешеходную систему длиной в несколько километров. В районе расположения пятизвездочного отеля мы предлагаем разместить яхтклуб и причал для катамаранов, плоскодонных лодок, катеров и яхт, рассчитанных на небольшую глубину воды (не более 1.5 м). В подземной парковке рядом с яхтклубом для них предусмотрена сезонная парковка. Восточнее причала запроектирована летняя деревянная платформа с открытым бассейном, раздевалкой и детским бассейном. Зимой бассейн может переоборудоваться в каток. На крыше молла мы предлагаем разместить озелененные площадки для отдыха, игр и занятий спортом для жильцов апартаментов. Эта приватная территория и будет тем самым безопасным пространством, которое в обычных кварталах располагается во дворе между высоких домов. И там, как правило, почти всегда мало солнца и тень. Здесь же мы имеем много света, естественное проветривание и прекрасные виды.
ВЫСОТНЫЙ РЕГЛАМЕНТ
Мы отдаем себе отчет, что есть ограничения по высоте в 100 м, вызванные серьезными причинами. Тем не менее мы все- таки позволили себе его немного нарушить. От нас ждут яркого решения и эмоциональной композиции, но композиция без вертикальных акцентов никогда не будет яркой, а будет лишь однообразной и монотонной. Посмотрите на панораму Кремля, на которую мы смотрели почти каждый день, работая над этим проектом. Башни Сююмбике и Спасская, мечеть Кул Шариф и православный Благовещенский собор, стены и башни Кремля, рядовая застройка и правительственные здания, все они имеют разную высоту и силуэт. В каком-то смысле мы повторяем этот классический прием формирования ансамбля. У нас есть низкий протяженный объем, который объединяет все элементы комплекса, есть дома с высотой, укладывающейся в регламент, и есть две башни в первой очереди строительства за пределами регламента. Башня высотой 135 м, узкая, стройная, с квартирой на этаж и с общественной функцией наверху. Самая высокая башня первой очереди строительства запроектирована высотой 170 метров. Это башня «маяк», реперная точка панорамы, пластически самая эмоциональная и выразительная. На втором участке, где сейчас располагается гостиница и аквапарк Ривьера мы предлагаем обсудить постановку самой высокой доминанты на этой территории города высотой 245 метров. Она будет замыкать всю композицию комплекса и служить своего рода вертикальным продолжением мола.
НАЦИОНАЛЬНАЯ ИДЕНТИЧНОСТЬ
В мире, где все или почти все подчинено глобализму, где архитектура под сильнейшим влиянием технологий и новых материалов теряет свою самобытность, сохранение и предъявление национальной идентичности становится неотъемлемой частью профессиональной деятельности. В нашей работе мы опираемся на понятие «естественной идентичности», которая, в отличие от специально организуемой и придумываемой искусственной идентичности новых корпораций, брендов или сообществ, воплощает в себе все существенное, что свойственно местному ландшафту, пространству языка, искусства и культуры, национальным традициям. Мы опираемся на естественную идентичность во всем – в выборе композиции, во взаимодействии с местным ландшафтом, в трактовке фасадов, в рисунке благоустройства, в отдельных элементах интерьера. Мы работаем над этой темой, консультируясь с самыми талантливыми художниками Татарстана. Мы используем в проекте пластические интерпретации древнетатарских текстов, стихов, национального орнамента. Перед зданиями, у воды и в парке на открытых пространствах и в самых важных интерьерах появятся произведения скульптуры, живописи и современного искусства с привлечением на конкурсной основе самых ярких современных мастеров Республики.
МФК «ЯР ПАРК» 1
© Сергей Скуратов ARCHITECTS
МФК «ЯР ПАРК» 1
© Сергей Скуратов ARCHITECTS
МФК «ЯР ПАРК» 1
© Сергей Скуратов ARCHITECTS
МФК «ЯР ПАРК» 1
© Сергей Скуратов ARCHITECTS
МФК «ЯР ПАРК» 1
© Сергей Скуратов ARCHITECTS
МФК «ЯР ПАРК» 1
© Сергей Скуратов ARCHITECTS
МФК «ЯР ПАРК» 1
© Сергей Скуратов ARCHITECTS
МФК «ЯР ПАРК» 1
© Сергей Скуратов ARCHITECTS
МФК «ЯР ПАРК» 1
© Сергей Скуратов ARCHITECTS
МФК «ЯР ПАРК» 1
© Сергей Скуратов ARCHITECTS
МФК «ЯР ПАРК» 1
© Сергей Скуратов ARCHITECTS
МФК «ЯР ПАРК» 1
© Сергей Скуратов ARCHITECTS
МФК «ЯР ПАРК» 1
© Сергей Скуратов ARCHITECTS
МФК «ЯР ПАРК» 1
© Сергей Скуратов ARCHITECTS
МФК «ЯР ПАРК» 1
© Сергей Скуратов ARCHITECTS
Вид от «залива» из северной части на юг. В перспективе – Национальная библиотека Татарстана, бывший Музей Ленина. МФК «ЯР ПАРК» 1
© Сергей Скуратов ARCHITECTS
МФК «ЯР ПАРК» 1
© Сергей Скуратов ARCHITECTS
МФК «ЯР ПАРК» 1
© Сергей Скуратов ARCHITECTS
МФК «ЯР ПАРК» 1
© Сергей Скуратов ARCHITECTS
МФК «ЯР ПАРК» 1
© Сергей Скуратов ARCHITECTS
МФК «ЯР ПАРК» 1
© Сергей Скуратов ARCHITECTS
Вид с востока на запад, северная часть комплекса. МФК «ЯР ПАРК» 1
© Сергей Скуратов ARCHITECTS
МФК «ЯР ПАРК» 1
© Сергей Скуратов ARCHITECTS
МФК «ЯР ПАРК» 1
© Сергей Скуратов ARCHITECTS
МФК «ЯР ПАРК» 1
© Сергей Скуратов ARCHITECTS
МФК «ЯР ПАРК» 1
© Сергей Скуратов ARCHITECTS
МФК «ЯР ПАРК» 1
© Сергей Скуратов ARCHITECTS
МФК «ЯР ПАРК» 1
© Сергей Скуратов ARCHITECTS
МФК «ЯР ПАРК» 1
© Сергей Скуратов ARCHITECTS
МФК «ЯР ПАРК» 1. Ситуационный план
© Сергей Скуратов ARCHITECTS
МФК «ЯР ПАРК» 1
© Сергей Скуратов ARCHITECTS
МФК «ЯР ПАРК» 1
© Сергей Скуратов ARCHITECTS
МФК «ЯР ПАРК» 1. Участок проектирования
© Сергей Скуратов ARCHITECTS
МФК «ЯР ПАРК» 1. Техническое задание
© Сергей Скуратов ARCHITECTS
МФК «ЯР ПАРК» 1. Формирование главных общественных пространств
© Сергей Скуратов ARCHITECTS
МФК «ЯР ПАРК» 1. Гостиница
© Сергей Скуратов ARCHITECTS
МФК «ЯР ПАРК» 1. Офисы
© Сергей Скуратов ARCHITECTS
МФК «ЯР ПАРК» 1. Ритэйл
© Сергей Скуратов ARCHITECTS
МФК «ЯР ПАРК» 1. Апартаменты
© Сергей Скуратов ARCHITECTS
МФК «ЯР ПАРК» 1. Детский сад
© Сергей Скуратов ARCHITECTS
МФК «ЯР ПАРК» 1. Функциональная схема подземной автостоянки
© Сергей Скуратов ARCHITECTS
МФК «ЯР ПАРК» 1. Функциональная схема строений
© Сергей Скуратов ARCHITECTS
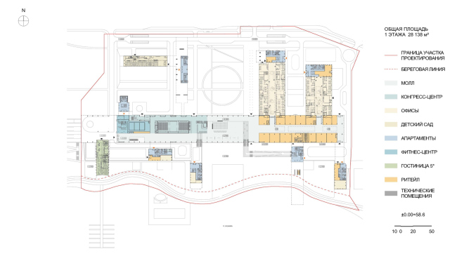
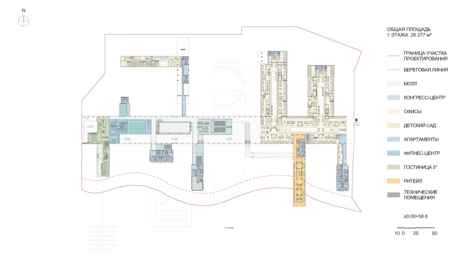
МФК «ЯР ПАРК» 1. Генеральный план
© Сергей Скуратов ARCHITECTS
МФК «ЯР ПАРК» 1. Генеральный план с территорией перспективного развития
© Сергей Скуратов ARCHITECTS
МФК «ЯР ПАРК» 1. Схема озеленения территории
© Сергей Скуратов ARCHITECTS
МФК «ЯР ПАРК» 1. Схема озеленения кровли молла
© Сергей Скуратов ARCHITECTS
МФК «ЯР ПАРК» 1. Генеральный план
© Сергей Скуратов ARCHITECTS
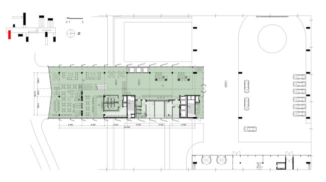
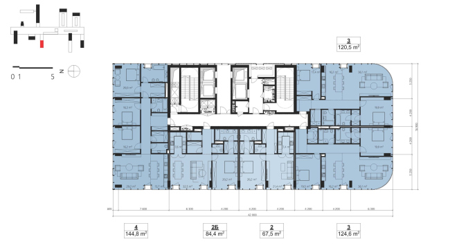
МФК «ЯР ПАРК» 1. План -1 этажа
© Сергей Скуратов ARCHITECTS
МФК «ЯР ПАРК» 1. План 1 этажа
© Сергей Скуратов ARCHITECTS
МФК «ЯР ПАРК» 1
© Сергей Скуратов ARCHITECTS
МФК «ЯР ПАРК» 1
© Сергей Скуратов ARCHITECTS
МФК «ЯР ПАРК» 1
© Сергей Скуратов ARCHITECTS
МФК «ЯР ПАРК» 1
© Сергей Скуратов ARCHITECTS
МФК «ЯР ПАРК» 1. Корпус 2. Гостиница. План 1 этажа
© Сергей Скуратов ARCHITECTS
МФК «ЯР ПАРК» 1. Корпус 2. Гостиница. план 2 этажа
© Сергей Скуратов ARCHITECTS
МФК «ЯР ПАРК» 1. Корпус 2. Гостиница. План 4 этажа
© Сергей Скуратов ARCHITECTS
МФК «ЯР ПАРК» 1. Корпус 2. Гостиница. План типового этажа
© Сергей Скуратов ARCHITECTS
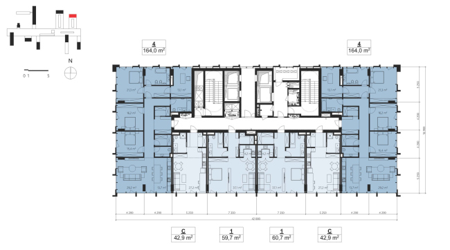
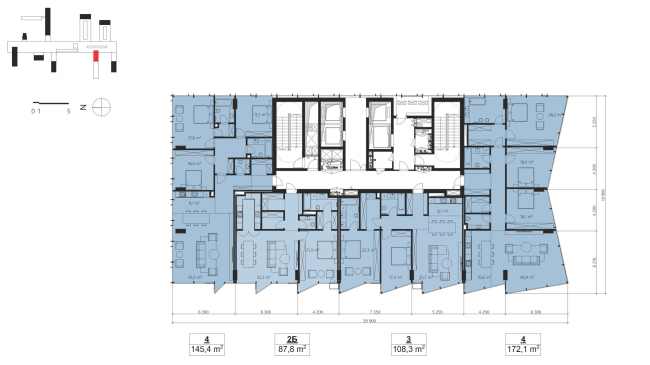
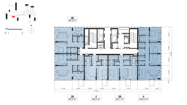
МФК «ЯР ПАРК» 1. Корпус 3. Планировочные решения
© Сергей Скуратов ARCHITECTS
МФК «ЯР ПАРК» 1. Корпус 4. Планировочные решения
© Сергей Скуратов ARCHITECTS
МФК «ЯР ПАРК» 1. Корпус 5. Планировочные решения
© Сергей Скуратов ARCHITECTS
МФК «ЯР ПАРК» 1. Корпус 6. Планировочные решения
© Сергей Скуратов ARCHITECTS
МФК «ЯР ПАРК» 1. Корпус 7. Планировочные решения
© Сергей Скуратов ARCHITECTS
МФК «ЯР ПАРК» 1. Корпус 8. Планировочные решения
© Сергей Скуратов ARCHITECTS
МФК «ЯР ПАРК» 1. Корпус 9. Планировочные решения
© Сергей Скуратов ARCHITECTS
МФК «ЯР ПАРК» 1. Корпус 10. Планировочные решения
© Сергей Скуратов ARCHITECTS
МФК «ЯР ПАРК» 1. Схема трансформации зала конгресс-центра
© Сергей Скуратов ARCHITECTS
МФК «ЯР ПАРК» 1. Разрез
© Сергей Скуратов ARCHITECTS
МФК «ЯР ПАРК» 1. Развертка со стороный реки
© Сергей Скуратов ARCHITECTS
МФК «ЯР ПАРК» 1. Развертка со стороный реки
© Сергей Скуратов ARCHITECTS
МФК «ЯР ПАРК» 1. Развертка со стороны улицы Сибгата Хакима
© Сергей Скуратов ARCHITECTS
МФК «ЯР ПАРК» 1. Сценарий организации пространства форума. Театр
© Сергей Скуратов ARCHITECTS
МФК «ЯР ПАРК» 1. Сценарий организации пространства форума. Маркет
© Сергей Скуратов ARCHITECTS
МФК «ЯР ПАРК» 1. Сценарий организации пространства форума. Образовательный центр
© Сергей Скуратов ARCHITECTS
МФК «ЯР ПАРК» 1. Сценарий организации пространства форума. Кинотеатр
© Сергей Скуратов ARCHITECTS
МФК «ЯР ПАРК» 1. Сценарий организации пространства форума. Выставочное пространство
© Сергей Скуратов ARCHITECTS
МФК «ЯР ПАРК» 1. Схема зала конгресс центра. Трансформация зала
© Сергей Скуратов ARCHITECTS
МФК «ЯР ПАРК» 1. Возможные скульптуры татарстанских авторов
© Сергей Скуратов ARCHITECTS
Архитекторы – партнеры Архи.ру:
Проект из каталога (случайный выбор)
