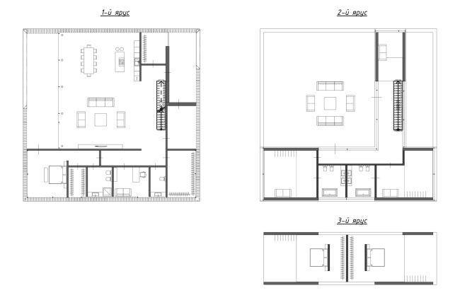
Планы этажей. Черный куб в Карелии
© METAarchitects
Черный куб в Карелии
информация:
METAarchitects
РоссияЧерный куб в Карелии
© METAarchitects
Черный куб в Карелии
© METAarchitects
описание:
Первый этаж полностью остеклен, но остекление скрыто бетонными рейками (лицевой бетон). Второй этаж двухъярусный, частично остеклен и частично облицован темным фальцем.
 
          
          
          
          
         