It will be constructed in the center of the Vasilyevsky Island, between the Maly and Sredny Avenues, surrounded by houses built during the historicism period: with bay windows in the dress circles, abundance of fine plastique, and with characteristic colors of St. Petersburg, alternating with inclusions of Soviet and post-Soviet times.
The Bremme house as symbolic capital
The “Amo” residential complex fills in the lacuna left after the demolition of several buildings that belonged to the factory of essential oils and paints, built by the Bremme brothers in 1897–1898. During the entire XX century, the factory produced vitamins and all sorts of medications; the factory was torn down only in 2006. The wooden mansion is older - it was built in the early XIX century, and reconstructed twice - in 1851 and 1906 - then its facades got ceramic panels, which are now kept in the museum belonging to the ceramics studio “Keramax”. During the siege of Leningrad, there was a city-famous vitamin store working in this mansion.
A few years ago, there was a lot of public concern about the prospects of demolishing the wooden house and making up for it by recreating its facade as a part of the residential complex. Then the project got a new investor and a new architect, while the mansion, which by the beginning of the XXI century fell into decay, got a status of a monument of architecture of federal importance. Currently, there are plans for restoring it and making it a part of the local identity. The future function of the building is still to be defined - expectedly, it will house a private school or will be rented out for an office. The new house embraces the mansion with its wings, not really coming close to it. Just like “Little France”, the new house will get a courtyard, yet here it is interpreted differently - the central place on the redline is occupied by the restored mansion.
The birds-eye view from the south. Amo residential complex
Copyright: © Liphart Architects
The master plan of the plot. Amo residential complex
Copyright: © Liphart Architects
Infrastructure of happiness
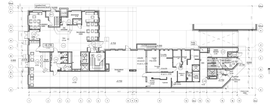
The second difference from the project on the 20th line is the fact that the southern unit of “Amo” is a hotel. The land owner already has a “Nash Otel” (“Our Hotel”) property nearby, on the 11th line, and this same operator will run the new hotel. The hotel is also allotted a portion of the yard; it will have a restaurant on the first floor and a fitness club on the top floor, which will also be accessible to the permanent residents. This way, in addition to the unique mansion, the residents will get the “infrastructure of happiness” - sports, food, and a place for rendezvous (not mentioning the French windows reaching to the floors and such “New York” housing formats as two-floor city-houses with individual entrances; patios and mansards - in a word, this is a great place to live in).
The hotel adjoins the existing building of the hospital with its southern wall, its windows facing the western and northern sides. On the other side of the complex, there is a green yard with a separately standing two-story Stalin building that once used to be a kindergarten.
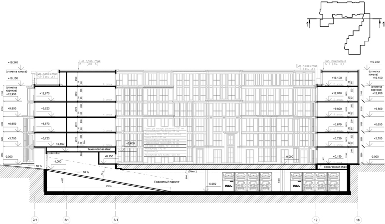
The style of the new building can be defined as Art Deco, the street-side five-story facades being closer to the scale of the historical surroundings - they are meticulously drawn, decorated with cornices above the hotel entrance and above the pilastered frontons above the restaurant entrance, the line of the cornices continuing the cornices of the existing hospital building.
The organic St. Petersburg: a combination of natural and man-made
Houses on the medieval square
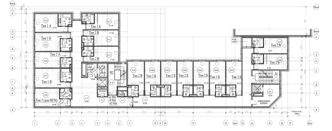
The yards of St. Petersburg have rather wayward shapes. Although a part of the city’s mythology, the famous well courtyards are not particularly beautiful, for the rare exception of some of them, such as the Lidval Tauria House on the Rubinsheina Street. The “Amo” house is by no means of the “well courtyard” type - it is rather spacious, but the inside walls stand in a zigzag pattern. Which, among other things, makes it possible to better expose the southern wall to the sunlight, providing sufficient insolation. On the other hand, the jagged contour of the yard-side facades serves to diversify the rhythm and the composition: each fragment is subjected to the common concept, yet has a face of its own - as if what we are seeing is a group of small houses with narrow facades, structured by moldings and cornices, bay windows, and tiers with shifted axes. In addition, each of the volumes has its painting pattern, which makes navigation easier, making the perception of the housing anything but trivial: instead of the number of the hallway entrance, one will be able to speak about the facade with a floral or maritime pattern.
It’s hard for a person to perceive a monotonous facade with a length of one hundred meters, the ideal length being 20-30 m, as in a historical city. This, specifically, was mentioned by Allan Jacobs in his book “Great Streets”. Back in his time, Mikhail Filippov used in his “Italian Quarter” the technique of designing the composition of a big house as consisting of several constructions of various epochs, with facades of three to five axes, thus recreating the humanistic principle of historical construction. In the case of “Amo”, however, a slightly different principle is proposed: placing a few several houses around a small square, yet the purpose is, by and large, the same.
Unlike the grand courtyard of “Little France”, the in-block square of “Amo” has an irregular shape. Generally speaking, landscaping the yard is a virtue nowadays. Therefore, the type of the yard is important. The Moscow yards, in which the Russian village can still be discerned, no longer satisfy us because they tend to eventually turn into a wasteland. Neither do the well courtyards of St. Petersburg - dramatic, yet pretty somber. As for the yard as a medieval square, however, which makes it possible to single out private, semi-private, and public spaces - this is quite a different matter. In his book “City Planning According to Artistic Principles”, Camillo Sitte claims that the irregular character of medieval squares makes them look all the more picturesque, and full of harmony. However irregular, they still look very tidy because of the main “hero” - the cathedral. And in the complex on the Vasilyevsky Island, the role of the “cathedral” is played by the Bremme mansion.
The ornamental style: a union of art and technology
The ornamental facades - a few types of patterns for panels with paradise flowers and trees, drawn by the graduate of the St. Petersburg Academy or Fine Arts, Anastasia Direktorenko - are essentially a reference to the “Openwork” house designed by Andrey Burov on the Leningrad Avenue and another house of his, Tverskaya, 25, with scratch-work decor executed by Favorsky’s design. He had an ability to combine technology and art, and was actually going to mass-produce his “Openwork House”, which we are now considering to be unique.
As for the colors, Stepan Liphart proposed the reserved and modern kind, suitable for a house that is already rich in decor: emerald, ashen, chocolate, and milk-and-coffee.
Yet another task was implementing the scratch-work technique, so loved by the architects of Renaissance and their devotees of the mid-XX century and the present day. From the XV to XX century, scratch-work was done on several layers of stucco. In “Amo”, the architects decided to simulate the renaissance technique by using volumetric threaded ceramic panels, where the first layer of paint conceals another one, more contrastive, which is more durable and more dependable than stucco, and, therefore, better meets the requirements for the modern facade. The cornices will be fully made of fibrous concrete. Chances are, this technology has a brilliant future. Dissected into rectangles, the walls refer us not only to the Art Deco and Art Nouveau painted panels, but also to quattrocento marble intarsia. The degree of flatness and relief of the facades is observed due to the cornices designed by the architects. What is also important is the small scale of the yard facades - small and private, literally two panels wide - often coinciding with the size of the apartments. Another this that is aligned with the scale of the apartments is the street facades, which means that the building has human-friendly proportions - the main prerequisite for a long and happy life in a historical city.
