Три жилых корпуса в секторе E Олимпийской деревни-2024 под Парижем
Фотография © Cédric Colin / предоставлена CoBe Architecture et Paysage
Три жилых корпуса в секторе E Олимпийской деревни-2024 под Парижем
Фотография © Cédric Colin / предоставлена CoBe Architecture et Paysage
Свою работу архитекторы сравнивают с подготовкой ингредиентов для коллег, которые смогут приготовить из них собственный вариант «блюда». В результате возведенные здания, как члены одной семьи, будут похожи друг на друга, но с индивидуальными чертами. В основу положена общая конструктивная схема, представляющая собой стоечно-балочную систему с активным использованием дерева и бетона с низким углеродным следом. Сектор Е поделен на две части: более низкие «виллы» (в их отделке больше дерева и штукатурки) отвечают за связь с существующей застройкой, а обращенные на главную улицу более высокие «бельведеры» (металл и терракота) демонстрируют новые принципы развития территории. Все объекты также получат общее, тщательно продуманное колористическое решение.
Три жилых корпуса в секторе E Олимпийской деревни-2024 под Парижем
Фотография © Cédric Colin / предоставлена CoBe Architecture et Paysage
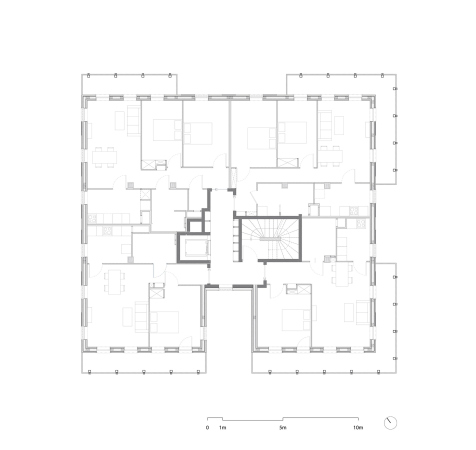
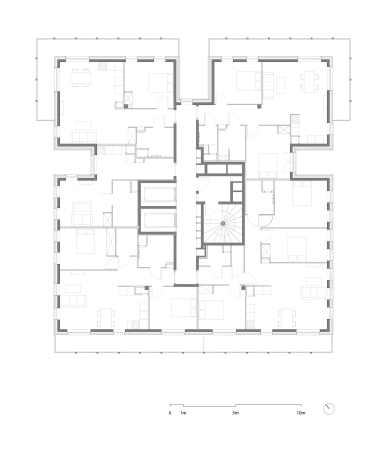
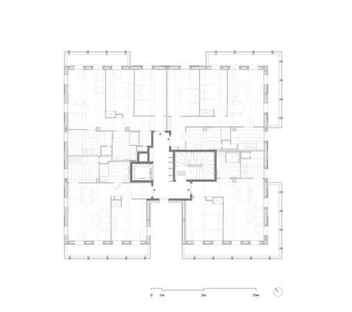
Чтобы как можно точнее задать коллегам, которым предстояло работать над соседними корпусами, направление поисков, архитекторы разработали и реализовали проект трех соединенных подиумом жилых корпусов в начале променада. Они обращены на главную площадь и являются по сути воротами всего сектора. На время соревнований здесь разместят 23 одноместных «номера» для спортсменов и 145 двухместных. В дальнейшем в первом корпусе сделают 45 жилых ячеек размером от одной до четырех комнат; второй будет предназначен для совместного проживания и получит 33 ячейки от двух до шести комнат каждая и 288 м2 общественных пространств; а в третьем разместят 20 двух- и трехкомнатных квартир; кроме этого, запланированы семь магазинов и не менее шести зон совместного пользования.
Три жилых корпуса в секторе E Олимпийской деревни-2024 под Парижем
Фотография © Cédric Colin / предоставлена CoBe Architecture et Paysage
Гибкость планировки и возможность будущих изменений изначально заложены в проекте, как в общей конструктивной схеме, позволяющей менять планировку, в том числе объединяя прежде раздельные помещения, так и в конкретных решениях: например, архитекторы предусмотрели особые ванные-модули заводского производства, которые легко перемещаются.
Три жилых корпуса в секторе E Олимпийской деревни-2024 под Парижем
Фотография © Cédric Colin / предоставлена CoBe Architecture et Paysage
Металлические профили задают вертикальное членение фасадов всех трех корпусов и превращаются в перголы на крыше, несущие солнечные батареи. Эти же профили позволили создать просторные балконы, обеспечивающие связь интерьера с окружением. Особый эффект дают стойки ограждений, угол установки которых варьируется от 45º до -45º. Каждый из трех корпусов получил свою отделку фасада: рифленый металл для первого, тоже рифленые, но терракотовые панели для второго и штукатурка для третьего. А вот цветовое решение у объемов общее – архитекторы выбрали теплые песчаные оттенки.
Три жилых корпуса в секторе E Олимпийской деревни-2024 под Парижем
Фотография © Cédric Colin / предоставлена CoBe Architecture et Paysage
Три жилых корпуса в секторе E Олимпийской деревни-2024 под Парижем
Фотография © Cédric Colin / предоставлена CoBe Architecture et Paysage
Три жилых корпуса в секторе E Олимпийской деревни-2024 под Парижем
Фотография © Cédric Colin / предоставлена CoBe Architecture et Paysage
Три жилых корпуса в секторе E Олимпийской деревни-2024 под Парижем
Фотография © Cédric Colin / предоставлена CoBe Architecture et Paysage
Три жилых корпуса в секторе E Олимпийской деревни-2024 под Парижем
Фотография © Cédric Colin / предоставлена CoBe Architecture et Paysage
