Здание отделения финансовой полиции
                Фото © Iwan Baan
        В Болонье, центре региона Эмилия-Романья, финансовая полиция занимает, помимо прочего, исторические казармы Бертарини к северо-западу от центра города. Старые корпуса были дополнены в конце прошлого века комплексом в русле постмодернизма. Теперь же к ним добавилось еще одно здание – по проекту архитекторов DEMOGO.
Здание отделения финансовой полиции
                Фото © Iwan Baan
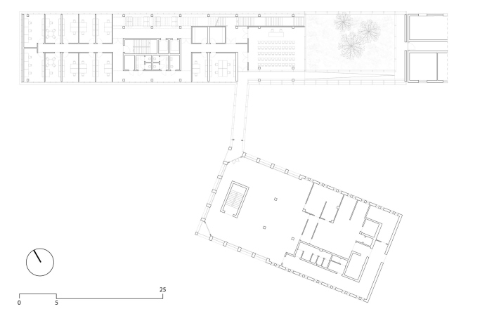
        Оно восстанавливает границы квартала, продолжая линию исторических корпусов, и связано надземными переходами с ними и с частью конца XX века. Прямоугольное в плане, оно получило ступенчатый силуэт: каждый из этажей по площади чуть меньше предыдущего, и на получившихся террасах архитекторы планируют создать сады (пока в окружении из железнодорожных путей и занятой культурными и развлекательными заведениями бывшей сортировочной станции с одной стороны и с регулярной жилой застройкой с другой – зелени не так много).
Здание отделения финансовой полиции
                Фото © Iwan Baan
        Окрашенные в темно-красный цвет стальные фасады напоминают тоном традиционные кварталы Болоньи. В интерьере главную роль играет лестница, пронизывающая здание сверху донизу – параллельно его «лестничному» росту высоты. В интерьере, кроме красного металла, ключевую роль играет архитектурный бетон, которым также оформлен снаружи первый этаж постройки.
Здание отделения финансовой полиции
                Фото © Iwan Baan
        Здание отделения финансовой полиции
                © DEMOGO
        
 
                         
            
            
         
                            
 
                             
                             
                             
                                         
                                         
                                         
                                         
                                         
                                         
                                         
                             
                                         
                                         
                                         
                                         
                                         
                                         
                                         
                                         
                                         
                                         
                                         
                     
                                                                        
                                                                     
                                                                        
                                                                     
                                                                        
                                                                     
                                                                        
                                                                     
                                                                        
                                                                     
                                                                        
                                                                     
                                                                        
                                                                     
                                                                        
                                                                     
                                                                        
                                                                     
                                                                        
                                                                     
                                                                        
                                                                     
                                                                        
                                                                     
                                                                        
                                                                     
                                                                        
                                                                     
                                                                        
                                                                     
                                                                        
                                                                     
                                                                        
                                                                     
                                                                        
                                                                     
                                                                        
                                                                     
                                                                        
                                                                     
                                                                        
                                                                     
                                                                        
                                                                     
                                                                        
                                                                     
                                                                        
                                                                     
                                                                        
                                                                     
                                                                        
                                                                     
                                                                        
                                                                     
                                                                        
                                                                     
                                                                        
                                                                     
                                                                        
                                                                     
                                                                        
                                                                     
                                                                        
                                                                     
                                                                        
                                                                     
                                                                        
                                                                     
                                                                        
                                                                     
                                                                        
                                                                     
                                                                        
                                                                     
                                                                        
                                                                     
                                                                        
                                                                     
                                                                        
                                                                     
                                                                        
                                                                     
                                                                        
                                                                     
                                                                        
                                                                     
                                                                        
                                                                     
                                                                        
                                                                     
                                                                        
                                                                     
                                                                        
                                                                     
                                                                        
                                                                     
                                                                        
                                                                     
                                                                        
                                                                     
                                                                        
                                                                     
                                                                        
                                                                     
                                                                        
                                                                     
                                                                        
                                                                     
                                                                        
                                                                     
                                                                        
                                                                     
                                                                        
                                                                     
                                                                        
                                                                     
                                                                        
                                                                     
                                                                        
                                                                     
                                                                        
                                                                     
                                                                        
                                                                     
                                                                        
                                                                     
                                                                        
                                                                     
                                                                        
                                                                     
                                                                        
                                                                     
                                                                        
                                                                     
                                                                        
                                                                     
                                                                        
                                                                     
                                                                        
                                                                     
                                                                        
                                                                     
                                                                        
                                                                     
                                                                        
                                                                     
                                        