Офисное здание AIA East Gateway
Фото © W Workspace
Офисное здание AIA East Gateway
Фото © W Workspace
Вдоль Бангна-Трат на большом расстоянии друг от друга стоят высотные здания, к которым теперь и присоединилось AIA East Gateway. Предполагается, что его строительство станет еще одним шагом к превращению Бангна в новый деловой центр Бангкока – соответственно потенциалу этой территории.
Офисное здание AIA East Gateway
Фото © W Workspace
Архитекторы подкрепляют эти амбиции производящей впечатление издалека композицией башни. Та трактована как серия больших и малых блоков, различия между которыми подчеркнуты разными по ширине и цвету солнцезащитными ламелями. В ниши вставлены подсвечиваемые в темное время суток «сады на высоте».
Офисное здание AIA East Gateway
Фото © W Workspace
Озелененная территория рассчитана не только на сотрудников и их ментальное самочувствие: расположенные там биоболотца, как и зеленые кровли, фильтруют и удерживают дождевую воду, а пруд предназначен для сбора ее излишков. Все это актуально, так как округ Бангна расположен ниже уровня моря и в сезон дождей часто страдает от затопления.
Офисное здание AIA East Gateway
Фото © W Workspace
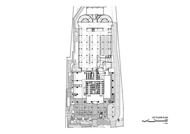
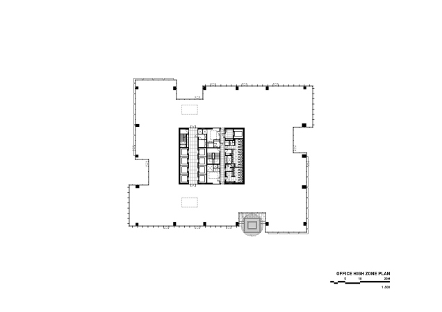
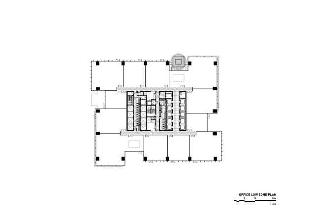
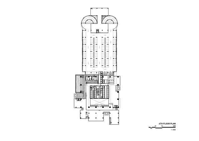
Для сотрудников, которых требуется убедить в преимуществах работы в офисе по сравнению с удаленным вариантом, на кровле подиума предусмотрены беговая дорожка, плавательный бассейн, зоны для занятий фитнесом. Рабочие совещания можно проводить там же, среди зелени, включающей огороды: прогуливаясь или отдыхая на ступенях-сидениях. Общая площадь здания составляет 135 тыс. м2, а офисов – около 70 тыс. м2.
Офисное здание AIA East Gateway
Фото © W Workspace
Офисное здание AIA East Gateway
Фото © W Workspace
