База технических служб района Лисолае в Праге
                Фото © Alex Shoots Buildings
        База технических служб района Лисолае в Праге
                Фото © Alex Shoots Buildings
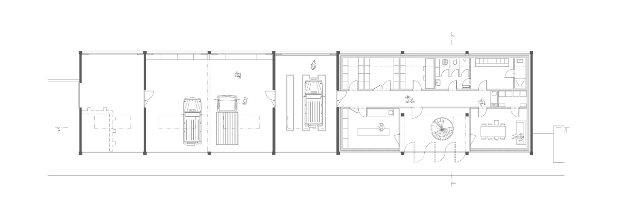
        Поэтому при работе архитекторы сосредоточились на темах контекста, функциональности, «устойчивости», честности материалов и архитектуры в целом. Основой проекта стала модульная бетонная система, которая позволит поменять назначение той или иной части здания в будущем, обеспечив ему функциональную «устойчивость». Постройка вписана в склон холма, что обеспечивает в неотапливаемой части стабильную температуру выше нуля. К улице и городу за ней она обращена деревянными фасадами-воротами: когда их поднимают или опускают для въезда и выезда техники, облик базы динамично меняется. Для узкой полоски, выступающей наружу со стороны холма, использован стеклопрофилит, обеспечивающий естественное освещение помещений.
База технических служб района Лисолае в Праге
                Фото © Alex Shoots Buildings
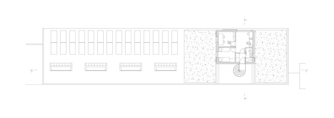
        Помещения для персонала – раздевалка с санузлом, офис, отапливаемый склад и общая комната, которая также служит для отдыха сотрудников во время экстренных ночных смен (то есть когда в Праге случаются сильные снегопады) – размещены в легком стальном блоке, вписанном в структуру базы. Здесь широко использован стеклопрофилит. Второй этаж занят квартирой менеджера, также с облегченной конструкцией. Он пока охватывает лишь малую часть площади первого этажа и может быть при необходимости расширен.
За главными воротами скрывается атриум, главное коммуникационное пространство базы. Оно открыто солнцу и дождю, здесь растет трава, а еще можно устроить огород в вазонах.
Среди «зеленых» компонентов проекта помимо уже упомянутых – соблюденный стандарт PassivHaus для жилых помещений и их отопление с помощью теплового насоса, солнечные батареи на кровле, ее озеленение, сбор и использование дождевой воды.
База технических служб района Лисолае в Праге
                Фото © Alex Shoots Buildings
        База технических служб района Лисолае в Праге
                Фото © Alex Shoots Buildings
        База технических служб района Лисолае в Праге
                Фото © Alex Shoots Buildings
        База технических служб района Лисолае в Праге
                Фото © Alex Shoots Buildings
        База технических служб района Лисолае в Праге
                © Progres architekti
        
                        
            
            
        
                            