Красная церковь – реконструкция
Фото © BoysPlayNice
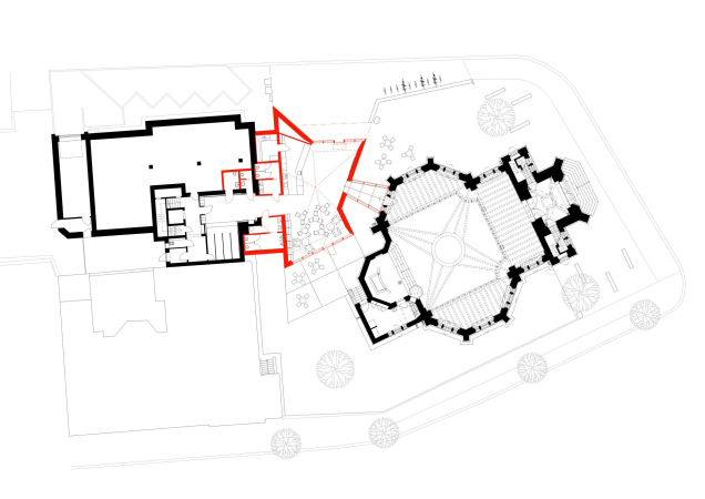
Было решено превратить ее в культурный центр для концертов и конференций, которые будет проводить здесь также и библиотека. Рядом находится ее дирекция, и в ходе реконструкции ее и церковь связал новый корпус – из стекла и матовых черных алюминиевых панелей. В нем размещены необходимые для новой роли культового здания стойка администратора, кафе и гардероб. За символическую связь с библиотекой отвечает «книжная стена». Новая часть постройки позаимствовала у старой план и объем (по сути это фрагмент церкви, повторенный архитекторами), став современной интерпретацией неоготической архитектуры.
Красная церковь – реконструкция
Фото © BoysPlayNice
Проект включал в себя тщательную реставрацию Красной церкви, находившейся в плохом состоянии. Был укреплен фундамент, кладка стен излечена от воздействия влажности и соляной коррозии, восстановлена облицовка фасадов, полностью заменены полы, обновлены штукатурка и стукко. Перекрытия грозили обрушиться и потому были полностью реконструированы, включив по возможности старые части. Покрытие кровли, как и прежнее, выполнено из квадратных листов меди. Декоративные детали не подлежали восстановлению, поэтому оломоуцкий скульптор Ян Досталь изготовил современные, но напоминающие о старых.
Красная церковь – реконструкция
Фото © BoysPlayNice
Оформлением интерьера, где значительную роль играет розовый цвет, atelier-r занимались совместно с Denisa Strmisková Studio. Надписи, указатели, логотип библиотеки разработали графические дизайнеры из Studio KOSATKO.
Материал представлен агентством Linka.
Красная церковь – реконструкция
Фото © BoysPlayNice
Красная церковь – реконструкция
Фото © BoysPlayNice
Красная церковь – реконструкция
Фото © BoysPlayNice
Красная церковь – реконструкция
Фото © BoysPlayNice
Красная церковь – реконструкция
Фото © BoysPlayNice
Красная церковь – реконструкция
Фото © BoysPlayNice
Красная церковь – реконструкция
© atelier-r
