Городская теплица на крыше Agrotopia; Руселаре, Бельгия
Фотография © Filip Dujardin / предоставлена бюро META и van Bergen Kolpa
Городская теплица на крыше Agrotopia; Руселаре, Бельгия
Фотография © Filip Dujardin / предоставлена бюро META и van Bergen Kolpa
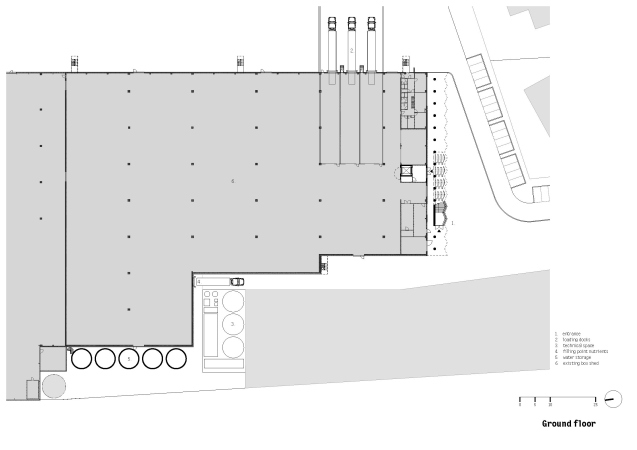
За основу взяли хорошо известную и наиболее популярную в Скандинавии типологию теплиц Venlo с застекленными металлическими конструкциями и характерной зубчатой кровлей, но установили ее на крыше бетонного «цоколя». В нем расположены склады, технические помещения и зона загрузки фур. Легкие стальные конструкции верхней части покрыты специальным светорассеивающим стеклом, но на фасадах использованы прозрачные панели. На южном фасаде, куда выходят рабочие зоны, они имеют вертикальные выступы и оборудованы солнцезащитными системами, а на западном эти складки наоборот горизонтальные, что обеспечивает хорошее естественное освещение для растений и позволяет избежать лишних бликов.
Городская теплица на крыше Agrotopia; Руселаре, Бельгия
Фотография © Filip Dujardin / предоставлена бюро META и van Bergen Kolpa
Городская теплица на крыше Agrotopia; Руселаре, Бельгия
Фотография © Filip Dujardin / предоставлена бюро META и van Bergen Kolpa
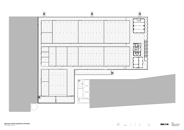
Торжественная протяженная лестница вдоль южного фасада ведет в светлый холл с рабочей зоной и многофункциональной аудиторией. За ним расположены сами теплицы, в которых выращивают помидоры, салат, различные виды перца, клубнику. Они окружены специальными коридорами, благодаря которым любой посетитель может наблюдать за происходящими внутри процессами. В каждой из четырех теплиц можно независимо поддерживать оптимальные для растений влажность и температуру. Общественные и рабочие зоны решены при этом как отдельные объемы, что позволяет сохранять в них прохладную, комфортную для людей атмосферу. Для охлаждения используются в частности туманообразующие форсунки.
Городская теплица на крыше Agrotopia; Руселаре, Бельгия
Фотография © Filip Dujardin / предоставлена бюро META и van Bergen Kolpa
Городская теплица на крыше Agrotopia; Руселаре, Бельгия
Фотография © Filip Dujardin / предоставлена бюро META и van Bergen Kolpa
Конечно же, архитекторы и инженеры активно применяли технологии устойчивого строительства. Прежде всего это система сбора дождевой воды, которая затем используется для полива растений и поддержания необходимого микроклимата. Авторы проекта утверждают, что не теряется буквально ни капли, излишки от полива опять же используются вторично. Кроме этого, теплица задействует избыточное тепло, выделяемое мусоросжигательным заводом MIROM, расположенным почти через дорогу.
Городская теплица на крыше Agrotopia; Руселаре, Бельгия
Фотография © Filip Dujardin / предоставлена бюро META и van Bergen Kolpa
Agrotopia стала пилотным проектом государственной программы развития городских ферм, нацеленной на формирование новых связей и путей эффективного взаимодействия как внутри города, так и между городской и сельской инфраструктурами.
Городская теплица на крыше Agrotopia; Руселаре, Бельгия
Фотография © Filip Dujardin / предоставлена бюро META и van Bergen Kolpa
Городская теплица на крыше Agrotopia; Руселаре, Бельгия
© META architectuurbureau и van Bergen Kolpa Architecten
Городская теплица на крыше Agrotopia; Руселаре, Бельгия
© META architectuurbureau и van Bergen Kolpa Architecten
Городская теплица на крыше Agrotopia; Руселаре, Бельгия
© META architectuurbureau и van Bergen Kolpa Architecten
Городская теплица на крыше Agrotopia; Руселаре, Бельгия
© META architectuurbureau и van Bergen Kolpa Architecten
Городская теплица на крыше Agrotopia; Руселаре, Бельгия
© META architectuurbureau и van Bergen Kolpa Architecten
Городская теплица на крыше Agrotopia; Руселаре, Бельгия
© META architectuurbureau и van Bergen Kolpa Architecten
