Общественный центр Agora
Фото © Luc Boegly
Общественный центр Agora
Фото © Luc Boegly
Однако открытость здания варьируется в зависимости от контекста: с севера участок граничит с железной дорогой, и здесь постройка заимствует соответствующий «формальный словарь». Так, напоминающие о вагонах окна при взгляде изнутри кадрируют пролетающие составы – около 230 в день. Но, конечно, вопрос акустики был здесь самым важным. Фасад с минимумом проемов и дополнительной защитой не дает шуму проникнуть внутрь. Архитекторы подумали не только о стуке колес, но и об отражении этого звука от стены «Агоры», поэтому фасад здесь сделан наклонным, чтобы свести эффект эха к минимуму.
Общественный центр Agora
Фото © Luc Boegly
Общественный центр Agora
Фото © Luc Boegly
С южной стороны, напротив, комплекс раскрывается наружу просторным двором с экраном на самой заметной его части – ярко-красном кубе. Тут можно устраивать кинопоказы, трансляции спортивных событий и концертов. Фасады с этой стороны остеклены, вдоль них идут галереи, а сильный вынос кровли защищает от солнца и помещения, и общественное пространство рядом. Любой дефицит естественного освещения в интерьере ликвидируют световые колодцы.
Общественный центр Agora
Фото © Luc Boegly
Общественный центр Agora
Фото © Luc Boegly
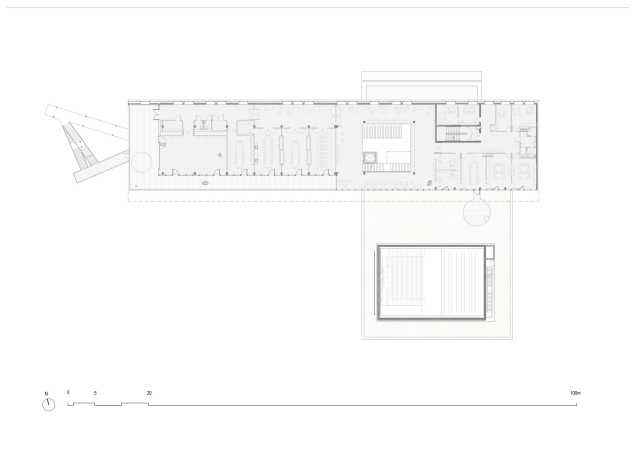
На первом этаже расположены кафе для собраний соседских организаций, зоны для чтения и учебы, столовая и кулинарная мастерская. Атриум объединяет все ярусы; там есть и панорамный лифт, и лестницы. В красном кубе скрывается зрительный зал с широким функционалом. Выше находятся фитнес-центр, читальная зона, пространства для работы с мультимедийными технологиями, мастерская типа Fab-Lab и художественная галерея. На самом верху помещен читальный зал для взрослых, а соседствующая с ним кровля превращена в экспериментальный сад. Внешние лестницы и мостики дополняют здание как «атракцион» для прогулки среди крон деревьев.
Среди использованных материалов особое место занимает дерево – как в натуральном цвете, так и окрашенное, как упомянутый выше красный куб. Agora сертифицирована по системе оценки ресурсоэффективности Certivéa.
Общественный центр Agora
Фото © Luc Boegly
Общественный центр Agora
Фото © Luc Boegly
Общественный центр Agora
Фото © Luc Boegly
Общественный центр Agora
Фото © Luc Boegly
Общественный центр Agora
Фото © Luc Boegly
Общественный центр Agora
© Ropa & Associés Architectes
Общественный центр Agora
© Ropa & Associés Architectes
Общественный центр Agora
© Ropa & Associés Architectes
Общественный центр Agora
© Ropa & Associés Architectes
