Жилой комплекс Max Towers
Фото © Stefan Müller
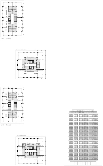
В основе проекта – идея соединения городского стиля жизни и принципа вертикальной плотности с полусельским окружением: из квартир открываются виды долин и гор, которыми можно любоваться из огибающих 40-метровые здания по периметру лоджий. Их полуоткрытый, полуприватный характер призван дать жителям ощущение если собственного сада, то своей террасы – как в частном доме.
Жилой комплекс Max Towers
Фото © Stefan Müller
Гибко спланированные интерьеры ориентированы наружу – к панорамному остеклению и лоджиям; квартиры выходят на две стороны.
Жилой комплекс Max Towers
Фото © Stefan Müller
Образ башен основан на решетке из круглых колонн и межэтажных карнизов, выполненных из искусственного камня. Эту четкость смягчают орнаментальные балюстрады из золотистого металла. Такую же фактуру имеют фасадные панели, а также оформление общественных зон.
Жилой комплекс Max Towers
Фото © Stefan Müller
Жилой комплекс Max Towers
Фото © Stefan Müller
