Корпус CuBo Римского биомедицинского университета
Фотография © Aldo Amoretti / предоставлена агентством The Architecture Curator
Корпус CuBo Римского биомедицинского университета
Фотография © Aldo Amoretti / предоставлена агентством The Architecture Curator
Корпус CuBo Римского биомедицинского университета
Фотография © Aldo Amoretti / предоставлена агентством The Architecture Curator
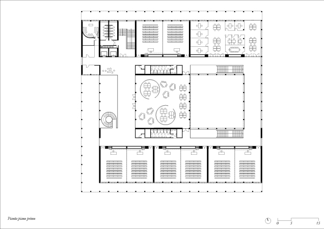
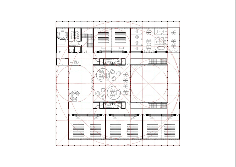
Как и положено, новый объем представляет собой почти идеальную ячейку разработанной архитекторами матрицы: квадратный в плане, он имеет сторону 66 м и разбит на 10 пролетов по 6,6 м каждый (подобную структуру имеет и соседнее здание университетской больницы). В результате минимальный модуль планировочной сетки составляет всего 3,3 на 3,3 м, а все пространства и помещения имеют кратные ему размеры – 1, 2, 4, 6 модулей. Основным материалом внутри и снаружи стал архитектурный бетон.
Корпус CuBo Римского биомедицинского университета
Фотография © Aldo Amoretti / предоставлена агентством The Architecture Curator
Корпус CuBo Римского биомедицинского университета
Фотография © Aldo Amoretti / предоставлена агентством The Architecture Curator
Корпус CuBo Римского биомедицинского университета
Фотография © Aldo Amoretti / предоставлена агентством The Architecture Curator
Корпус CuBo Римского биомедицинского университета
Фотография © Aldo Amoretti / предоставлена агентством The Architecture Curator
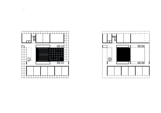
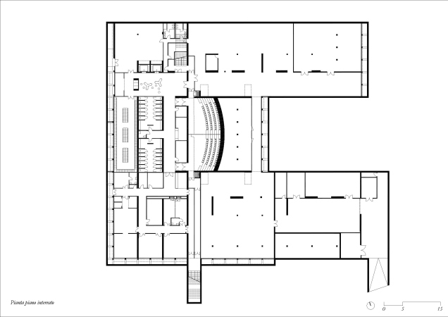
Площадь корпуса составляет 10 500 м2. Благодаря внешним галереям и остеклению он максимально открыт в окружение (например, виды на соседний живописный холм архитекторы буквально обрамили и включили в общее решение). Внутри, на трех уровнях, один из которых подземный, размещены 8 аудиторий на 176 слушателей каждая, и одна большая аудитория на 330 человек. Каждая, поддерживая общую идею, легко делится при необходимости на две равные самостоятельные части. Интересно, что прострельные виды на окружающий парк открываются даже изнутри аудиторий. Также предусмотрены: большая свободная учебная зона, где организованы места как для индивидуальной работы, так и для небольших групп и более масштабных командных задач, кафетерий, административная часть с переговорными, центр моделирования, архив и небольшая часовня.
Корпус CuBo Римского биомедицинского университета
Фотография © Aldo Amoretti / предоставлена агентством The Architecture Curator
Корпус CuBo Римского биомедицинского университета
Фотография © Aldo Amoretti / предоставлена агентством The Architecture Curator
Корпус CuBo Римского биомедицинского университета
Фотография © Aldo Amoretti / предоставлена агентством The Architecture Curator
Корпус CuBo Римского биомедицинского университета
Фотография © Aldo Amoretti / предоставлена агентством The Architecture Curator
Корпус CuBo Римского биомедицинского университета
Фотография © Aldo Amoretti / предоставлена агентством The Architecture Curator
Но и при такой жесткой геометрии общая планировка с двусветными пространствами, небольшим внутренним двором и пешеходным мостиком решена по ландшафтному принципу и в целом довольно сложна. Различные общественные пространства для разного рода взаимодействия совмещены со связующими транзитными зонами и занимают в общей сложности около 50 % всех площадей. Образовательный процесс быстро меняется, учебные аудитории любого размера давно перестали быть основой его функциональной организации, так что гибкость инфраструктуры и ее нацеленность на свободное взаимодействие являются, по мнению архитекторов, ключевыми для успеха всего проекта.
Корпус CuBo Римского биомедицинского университета
© Labics и Topotek 1 / предоставлена агентством The Architecture Curator
Корпус CuBo Римского биомедицинского университета
© Labics и Topotek 1 / предоставлена агентством The Architecture Curator
Корпус CuBo Римского биомедицинского университета
© Labics и Topotek 1 / предоставлена агентством The Architecture Curator
Корпус CuBo Римского биомедицинского университета
© Labics и Topotek 1 / предоставлена агентством The Architecture Curator
Корпус CuBo Римского биомедицинского университета
© Labics и Topotek 1 / предоставлена агентством The Architecture Curator
Корпус CuBo Римского биомедицинского университета
© Labics и Topotek 1 / предоставлена агентством The Architecture Curator
Корпус CuBo Римского биомедицинского университета
© Labics и Topotek 1 / предоставлена агентством The Architecture Curator
