Описание предоставлено архитекторами
Стоматологическая клиника переехала в здание 1910 года постройки, в котором раньше находился банк. В отделке предыдущего помещения использовались дерево и синий цвет, перед архитекторами стояла задача сохранить преемственность и перенести ее в новый масштаб. Рустэм Уразметов посчитал возможным вывести дизайн на уровень выше: отказавшись от части привычных элементов создать максимально аскетичный интерьер, но без потери опорных визуальных точек – эффект «усложнения за счет упрощения».
Клиника на Таганской
Фотография © Инна Каблукова / предоставлена UR Bureau
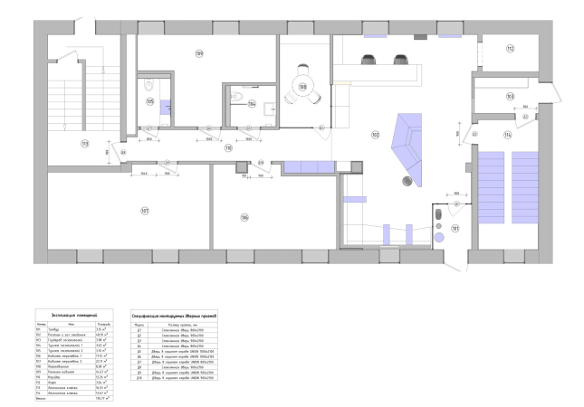
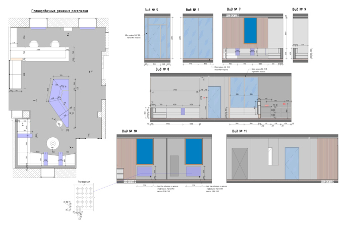
В качестве фона был выбран серо-белый монохром, а акценты выделены насыщенным синим цветом. На первом этаже расположилась стойка ресепшн, кофейная зона, переговорная и зона ожидания, где одновременно могут находиться 15-20 человек. Притягивающий внимание элемент в зоне ожидания – центральная «колонна» с цветовым градиентом, которая совмещает несколько функций: это и диван для посетителей, и стойка администратора, и кофейный стол с системой хранения.
Клиника на Таганской
Фотография © Инна Каблукова / предоставлена UR Bureau
На первом этаже также располагается уборная для клиентов – было необходимо сделать ее продолжением основного интерьера, поэтому в этом пространстве используются общие для проекта цвета. Столешница сделана из бетона, чаша раковины – из металла. Двухуровневое зеркало акцентное: круглая часть выступает над поверхностью прямоугольника, закрытого синей пленкой.
Клиника на Таганской
Фотография © Инна Каблукова / предоставлена UR Bureau
Сняв старую отделку, под слоями гипсокартона и керамогранита архитекторы обнаружили чугунную лестницу с рельефными ступеньками и резными опорами перил. Чугун почистили, лестницу выкрасили синим цветом, чтобы бережно интегрировать ее в современный интерьер.
На пятом этаже располагается лекторий – пространство для обучения и отдыха, интерьер которого перекликается с оформлением первого этажа клиники: монохромный серый фон с акцентами синего и голубого, линейная подсветка, перфорированные экраны радиаторов, градиентная растяжка на обивке дивана. Стенки на рабочих столах выполнены из оргстекла, покрытого цветной пленкой.
Клиника на Таганской
Фотография © Инна Каблукова / предоставлена UR Bureau
Клиника на Таганской
Фотография © Инна Каблукова / предоставлена UR Bureau
Стена с телевизором, облицованная композитными металлическими панелями, отделяет зону лектория от помещения с мини-кухней и столовой. В перерывах между лекциями там получится устраивать обеды, а по завершению курса – выпускные вечера. Для сотрудников центра это место может стать пространством корпоративных событий.
В различных элементах интерьера можно заметить повторяющийся графический паттерн – крест, который Рустэм Уразметов часто использую в своих проектах, поскольку эта фигура обладает сильной визуальной энергией и является отсылкой к трем первичным формам Казимира Малевича.
