The REACH – расширение Центра исполнительских искусств Дж.Ф. Кеннеди
Фотография © Richard Barnes
Как справедливо замечает Стивен Холл в своих эскизах, место здесь такое, что куда ни глянь – памятник американской истории. Сам Кеннеди-центр – такой памятник, южнее, в автомобильной развязке к другому мосту – неоклассический периптер, мемориал Линкольна, еще южнее – «пантеон» Джефферсона.
The Reach: расширение Кеннеди-центра, акварельный эскиз
© Steven Holl architects
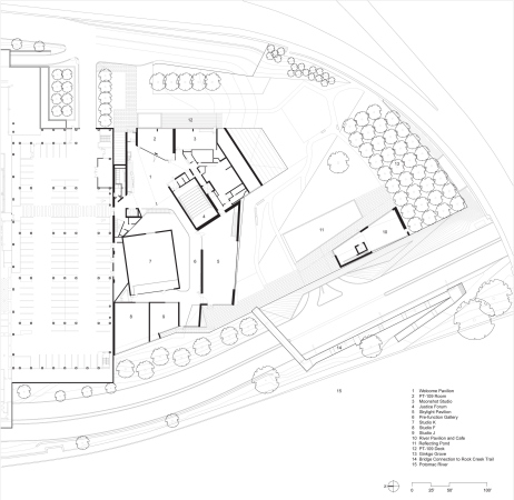
Словом, в таком устоявшемся окружении следовало действовать как можно более деликатно, и ответвление Кеннеди-центра общей площадью порядка 6 800 м2 превратилось в зеленый холм, на склонах которого возвышаются лишь три небольших павильона. Все остальное спрятано под землей и раскрыто одновременно в автомобильной трассе и к Потомаку – особенно к Потомаку, к воде которого обращены остекленные части фасадов многих помещений. Здание, по словам автора, реализует одну из утраченных в процессе реализации идей Стоуна, прямо связывая Кеннеди-центр с рекой. Над автомобильной набережной также появился пешеходный мост, который позволяет спокойно пересечь развязку и пройти к парку Рок-Крик и мемориалу Линкольна.
Павильоны, один из которых служит входным, другой – световым фонарем, а третий получил определение речного, «растворены в ландшафте» и расположены так, чтобы раскрывать и оформлять виды на знаменитые монументы. Бетонные стены сохраняют отпечатки опалубки из 4-дюймовых досок Дугласовой пихты, поэтому издали объемы кажутся цельными, а при рассмотрении вблизи приобретают характерную бруталистскую фактуру, напоминающую о процессе строительства, интересную для рассматривания и соразмеримую с человеком, – уточняют архитекторы.
Геометрически чистая форма павильонов состоит из плоскостей и параболических выкружек. Она не только разрезает и формирует пространство снаружи, но и способствует дисперсии звука внутри. На северную стену самого крупного объема будут проецироваться видео представлений Кеннеди-центра в реальном времени.
Стекла, в том числе гнутые, подвергнуты травлению и между слоями стекла вставлена прозрачная белая пленка, что позволяет рассеивать дневной свет, позволяя ему при этом проникать глубоко внутрь, а также создавать свечение ночью.
The REACH – расширение Центра исполнительских искусств Дж.Ф. Кеннеди
Фотография © Richard Barnes
«Морщинистая» поверхность несущих стен из монолитного бетона в интерьере за счет сложной формы играет роль акустических панелей.
На холме высажено 35 деревьев гинкго – по номеру президентства Кеннеди. Рядом с третьим павильоном, обращенным к воде, устроен зеркальный бассейн с «палубой» из красного дерева. Их размеры и использование такой древесины призваны напоминать о торпедном катере RT 109, которым командовал Кеннеди во время Второй мировой войны.
The REACH – расширение Центра исполнительских искусств Дж.Ф. Кеннеди
Фотография © Richard Barnes
