ЖК SIDNEY PRIME
Фотография © Даниил Анненков / предоставлена Artel architects
ЖК SIDNEY PRIME
информация:
-
статус
реализовано -
даты
07.2021 — 09.2023 / 2023 — 2025 -
место
Москва ул. Шеногина вл.2 -
координаты
55.766620, 37.500439 -
функция
Жилой / жилой комплекс -
теги
send.project -
площадь участка
0,3784 га -
площадь застройки
2 992,60 м2 -
общая площадь
20 034,80 м2 -
площадь жилая
8 335,50 м2 -
этажность
1-9 -
другие объекты
2022Сидней Сити. Центральный квартал2021Офис продаж ЖК «Сидней Сити»

Ким Ен Гир
РоссияArtel architects
Россияавторский коллектив
Ким Ен Гир, Юрий Фролов, Александр Трофимов, Лия Климова, Мария Белянина, Татьяна Сейкина, Игорь Карасев, Лев Поляков
партнеры, заказчики, смежники
Заказчик: ФСК Девелопмент
ЖК SIDNEY PRIME
Фотография © Даниил Анненков / предоставлена Artel architects
Архи.ру об этом объекте:
20.08.2025
Ласточкин хвост
Бюро Artel architects спроектировало для московского жилого комплекса «Сидней Сити» квартал, который сочетает застройку башенного и секционного типа. Любопытны фасады: клинкерный кирпич сочетается с полимербетоном и латунью, пилоны в виде хвоста ласточки формируют ритм и глубокие оконные откосы, аттик выделен белым цветом.
Описание предоставлено архитекторами Участок расположен на улице Шеногина и входит в комплексную застройку с коммерческим названием Сидней Сити . С севера к нему примыкает территория ЖК Фридом и проходит Звенигородское шоссе, с юга Москва-река ... читать дальшеЖК SIDNEY PRIME
Фотография © Даниил Анненков / предоставлена Artel architects
описание:
Расположение
Участок расположен в Северо-Западном административном округе на улице Шеногина и входит в комплексную застройку с коммерческим названием «Сидней Сити», фиксируя её западную границу. С севера примыкает территория соседнего ЖК «Фридом», с юга пролегает русло Москвы-реки и примыкает Шелепихинская набережная. Севернее от участка проходит Звенигородское шоссе. Ближайшая станция внеуличного транспорта – «Шелепиха», является пересадочной станцией МЦК и Большого кольца метрополитена и находится в 1300 метрах от улицы Шеногина в направлении на юго-восток. Участок представляет собой две близкие к прямоугольнику площадки, разделённые внутриквартальным проездом. Расположение участка на первой береговой линии и действующие градостроительные ограничения определяют объёмно-пространственные решения будущей застройки.
Массинг
Основополагающие принципы при формировании массинга:
Различная типология: секционный и башенный тип корпусов Обеспечивает большую гибкость и возможности планировочных решений для выполнения заданной квартирографии.
Все квартиры с видом на реку. Исключён эффект «окна в окна» Конфигурация корпусов и их взаимное расположение обеспечивает вид на реку из окон всех квартир. Дома не перекрывают друг друга и расставлены на максимально возможном удалении. Это исключает просматриваемость «окна в окна».
Приватный внутренний двор, связанный с общественным пространством набережной Благодаря квартальному принципу застройки сформирован внутренний двор для жителей, визуально связанный с набережной через пространственное окно.
На обоих участках применён одинаковый принцип застройки, зеркальный относительно проезда, их разделяющего. Благодаря этому застройка воспринимается целостно как единый комплекс, где расставленные по краям башни фиксируют углы, а расположенные между ними корпуса с одноэтажными пристроенными коммерческими помещениями визуально связывают (скрепляют) отдельно стоящие корпуса в один объём, как бы помещая его на общее основание. Два верхних этажа имеют подсечку в плане и образуют аттик. Образовавшийся уступ занимают индивидуальные террасы для двухуровневых квартир, расположенных на верхних этажах. Все террасы сориентированы на воду.
Фасады
Стилистически фасады решены в современном модернистском стиле, актуальном для архитектуры подобного класса. Применены современные материалы и технологии. В качестве материала облицовки используется клинкерный кирпич премиальных брендов и панели декоративного бетона (полимербетон) с отделкой под белый камень. Также в отделке фасада применены металлические панели с фактурой латуни. Они добавляют декоративность фасадам. Из них выполнены вставки в виде «чешуи», закрывающие межэтажные пояса и декоративный венчающий фриз, опоясывающий здания. Форма вертикальных чередующихся пилонов в плане напоминает букву М или «ласточкин хвост». Пилоны формируют глубокие оконные откосы. Это придаёт фасадам скульптурную выразительность и пластику. Фасады получают респектабельное звучание. Для придания более стройного вида и укрупнения масштаба восприятия применено горизонтальное членение через два этажа изящными карнизами из «белого камня».
СПК
Остекление в квартирах выполнено в пол. Все окна имеют высокие распашные створки – французские балконы. Для соблюдения требований по обеспечению безопасной эксплуатации перед окнами со стороны фасада устанавливается защитный стеклянный экран. При высоте этажа в свету 3.6 м высота окон составляет 3.3 м, а открывающихся створок – 2.7 м.
Планировочные решения
Автостоянка. На двух подземных уровнях запроектирована автостоянка манежного типа с группой технических помещений и блоком индивидуальных кладовых для хранения имущества жителей. Также на первом подземном предусмотрена мойка. Въезд-выезд осуществляется по изолированным однопутным рампам. Высота проезда в рампах, а также первого подземного этажа составляет 3 м в свету до низа коммуникаций, для обеспечения возможности заезда грузового транспорта и осуществления погрузки-разгрузки строительных материалов и крупногабаритных грузов. Для этого предусмотрены выделенные зоны разгрузки. Сообщение с наземной частью осуществляется с помощью лифтов. Все лифты спускаются в автостоянку. Для эвакуации предусмотрены лестничные клетки, ведущие наружу.
Первые этажи. На первых этажах располагаются входные группы в жилую часть, а также помещения коммерческого назначения. В состав входных групп входят следующие помещения: вестибюль с рецепшеном с зоной ожидания, почтовая, колясочная, ПУИ и санузел. Также предусмотрены помещения с дополнительным функциональным назначением, такие как переговорная, детская зона, зал для тренировок и активного отдыха. Вестибюли запроектированы проходными «улица – двор», просторными и светлыми. Для трёх секций предусмотрена единая входная группа с проходом через общий рецепшен ко всем лестнично-лифтовым узлам разных секций. В отдельно стоящем корпусе применены аналогичные решения.
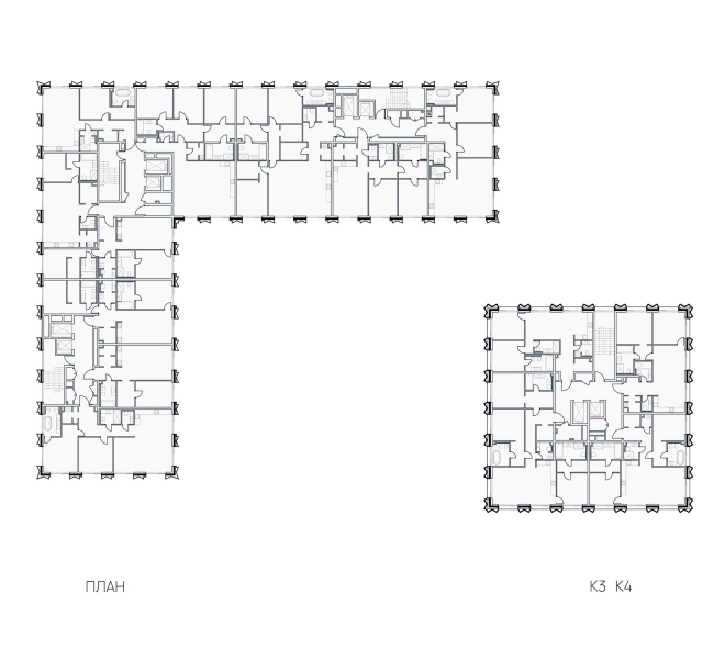
Жилые этажи. Начиная со второго этажа размещаются квартиры, состав и площади которых продиктованы квартирографией и коммерческим заданием. Квартиры скомпонованы по принципу: квартиры большей площади имеют лучшие виды и двух- или трёхстороннюю ориентацию. По форме пятна квартиры максимально простые и прямоугольные. Все коммуникационные шахты прижаты к внутренним стенам, а вертикальные несущие конструкции расставлены по периметру, так чтобы не ограничивать будущих владельцев в вариантах возможных планировок. На верхних этажах расположены двухуровневые квартиры с антресолями, имеющие собственные террасы. В квартирах предусмотрены двухсветные гостиные и зоны антресоли со спальными комнатами и санузлами.
Коротко о концепции дома: Расположение участка на первой береговой линии и факторы влияния окружающей застройки определили объёмно-пространственные решения проектируемых домов. Конфигурация корпусов и их взаимное расположение обеспечивает вид на реку из окон всех квартир и приватный внутренний двор-сад. Фасады, нейтральные композиционно, акцентированы аттиком в верхней части зданий. Выразительность фасадам придают вертикальные пилоны в форме галочки, выполненные из красного кирпича и белых панелей декоративного бетона, и образующие спокойный, повторяющийся ритмичный ряд оконных простенков.
Участок расположен в Северо-Западном административном округе на улице Шеногина и входит в комплексную застройку с коммерческим названием «Сидней Сити», фиксируя её западную границу. С севера примыкает территория соседнего ЖК «Фридом», с юга пролегает русло Москвы-реки и примыкает Шелепихинская набережная. Севернее от участка проходит Звенигородское шоссе. Ближайшая станция внеуличного транспорта – «Шелепиха», является пересадочной станцией МЦК и Большого кольца метрополитена и находится в 1300 метрах от улицы Шеногина в направлении на юго-восток. Участок представляет собой две близкие к прямоугольнику площадки, разделённые внутриквартальным проездом. Расположение участка на первой береговой линии и действующие градостроительные ограничения определяют объёмно-пространственные решения будущей застройки.
Массинг
Основополагающие принципы при формировании массинга:
Различная типология: секционный и башенный тип корпусов Обеспечивает большую гибкость и возможности планировочных решений для выполнения заданной квартирографии.
Все квартиры с видом на реку. Исключён эффект «окна в окна» Конфигурация корпусов и их взаимное расположение обеспечивает вид на реку из окон всех квартир. Дома не перекрывают друг друга и расставлены на максимально возможном удалении. Это исключает просматриваемость «окна в окна».
Приватный внутренний двор, связанный с общественным пространством набережной Благодаря квартальному принципу застройки сформирован внутренний двор для жителей, визуально связанный с набережной через пространственное окно.
На обоих участках применён одинаковый принцип застройки, зеркальный относительно проезда, их разделяющего. Благодаря этому застройка воспринимается целостно как единый комплекс, где расставленные по краям башни фиксируют углы, а расположенные между ними корпуса с одноэтажными пристроенными коммерческими помещениями визуально связывают (скрепляют) отдельно стоящие корпуса в один объём, как бы помещая его на общее основание. Два верхних этажа имеют подсечку в плане и образуют аттик. Образовавшийся уступ занимают индивидуальные террасы для двухуровневых квартир, расположенных на верхних этажах. Все террасы сориентированы на воду.
Фасады
Стилистически фасады решены в современном модернистском стиле, актуальном для архитектуры подобного класса. Применены современные материалы и технологии. В качестве материала облицовки используется клинкерный кирпич премиальных брендов и панели декоративного бетона (полимербетон) с отделкой под белый камень. Также в отделке фасада применены металлические панели с фактурой латуни. Они добавляют декоративность фасадам. Из них выполнены вставки в виде «чешуи», закрывающие межэтажные пояса и декоративный венчающий фриз, опоясывающий здания. Форма вертикальных чередующихся пилонов в плане напоминает букву М или «ласточкин хвост». Пилоны формируют глубокие оконные откосы. Это придаёт фасадам скульптурную выразительность и пластику. Фасады получают респектабельное звучание. Для придания более стройного вида и укрупнения масштаба восприятия применено горизонтальное членение через два этажа изящными карнизами из «белого камня».
СПК
Остекление в квартирах выполнено в пол. Все окна имеют высокие распашные створки – французские балконы. Для соблюдения требований по обеспечению безопасной эксплуатации перед окнами со стороны фасада устанавливается защитный стеклянный экран. При высоте этажа в свету 3.6 м высота окон составляет 3.3 м, а открывающихся створок – 2.7 м.
Планировочные решения
Автостоянка. На двух подземных уровнях запроектирована автостоянка манежного типа с группой технических помещений и блоком индивидуальных кладовых для хранения имущества жителей. Также на первом подземном предусмотрена мойка. Въезд-выезд осуществляется по изолированным однопутным рампам. Высота проезда в рампах, а также первого подземного этажа составляет 3 м в свету до низа коммуникаций, для обеспечения возможности заезда грузового транспорта и осуществления погрузки-разгрузки строительных материалов и крупногабаритных грузов. Для этого предусмотрены выделенные зоны разгрузки. Сообщение с наземной частью осуществляется с помощью лифтов. Все лифты спускаются в автостоянку. Для эвакуации предусмотрены лестничные клетки, ведущие наружу.
Первые этажи. На первых этажах располагаются входные группы в жилую часть, а также помещения коммерческого назначения. В состав входных групп входят следующие помещения: вестибюль с рецепшеном с зоной ожидания, почтовая, колясочная, ПУИ и санузел. Также предусмотрены помещения с дополнительным функциональным назначением, такие как переговорная, детская зона, зал для тренировок и активного отдыха. Вестибюли запроектированы проходными «улица – двор», просторными и светлыми. Для трёх секций предусмотрена единая входная группа с проходом через общий рецепшен ко всем лестнично-лифтовым узлам разных секций. В отдельно стоящем корпусе применены аналогичные решения.
Жилые этажи. Начиная со второго этажа размещаются квартиры, состав и площади которых продиктованы квартирографией и коммерческим заданием. Квартиры скомпонованы по принципу: квартиры большей площади имеют лучшие виды и двух- или трёхстороннюю ориентацию. По форме пятна квартиры максимально простые и прямоугольные. Все коммуникационные шахты прижаты к внутренним стенам, а вертикальные несущие конструкции расставлены по периметру, так чтобы не ограничивать будущих владельцев в вариантах возможных планировок. На верхних этажах расположены двухуровневые квартиры с антресолями, имеющие собственные террасы. В квартирах предусмотрены двухсветные гостиные и зоны антресоли со спальными комнатами и санузлами.
Коротко о концепции дома: Расположение участка на первой береговой линии и факторы влияния окружающей застройки определили объёмно-пространственные решения проектируемых домов. Конфигурация корпусов и их взаимное расположение обеспечивает вид на реку из окон всех квартир и приватный внутренний двор-сад. Фасады, нейтральные композиционно, акцентированы аттиком в верхней части зданий. Выразительность фасадам придают вертикальные пилоны в форме галочки, выполненные из красного кирпича и белых панелей декоративного бетона, и образующие спокойный, повторяющийся ритмичный ряд оконных простенков.
ЖК SIDNEY PRIME
Фотография © Даниил Анненков / предоставлена Artel architects
ЖК SIDNEY PRIME
Фотография © Даниил Анненков / предоставлена Artel architects
ЖК SIDNEY PRIME
Фотография © Даниил Анненков / предоставлена Artel architects
ЖК SIDNEY PRIME
Фотография © Даниил Анненков / предоставлена Artel architects
ЖК SIDNEY PRIME
Фотография © Даниил Анненков / предоставлена Artel architects
ЖК SIDNEY PRIME
Фотография © Даниил Анненков / предоставлена Artel architects
ЖК SIDNEY PRIME
Фотография © Даниил Анненков / предоставлена Artel architects
ЖК SIDNEY PRIME
Фотография © Даниил Анненков / предоставлена Artel architects
ЖК SIDNEY PRIME
Фотография © Даниил Анненков / предоставлена Artel architects
ЖК SIDNEY PRIME
Фотография © Даниил Анненков / предоставлена Artel architects
ЖК SIDNEY PRIME
Фотография © Даниил Анненков / предоставлена Artel architects
ЖК SIDNEY PRIME
Фотография © Даниил Анненков / предоставлена Artel architects
ЖК SIDNEY PRIME
© Artel architects
ЖК SIDNEY PRIME
© Artel architects
ЖК SIDNEY PRIME
© Artel architects
ЖК SIDNEY PRIME
© Artel architects
ЖК SIDNEY PRIME
© Artel architects
ЖК SIDNEY PRIME
© Artel architects
ЖК SIDNEY PRIME
© Artel architects
ЖК SIDNEY PRIME
© Artel architects
ЖК SIDNEY PRIME
© Artel architects
ЖК SIDNEY PRIME
© Artel architects
ЖК SIDNEY PRIME
© Artel architects
ЖК SIDNEY PRIME
© Artel architects
ЖК SIDNEY PRIME
© Artel architects
ЖК SIDNEY PRIME
© Artel architects
ЖК SIDNEY PRIME
© Artel architects
ЖК SIDNEY PRIME
© Artel architects
ЖК SIDNEY PRIME
© Artel architects
ЖК SIDNEY PRIME
© Artel architects
ЖК SIDNEY PRIME
© Artel architects
ЖК SIDNEY PRIME
© Artel architects
ЖК SIDNEY PRIME
© Artel architects
ЖК SIDNEY PRIME
© Artel architects
ЖК SIDNEY PRIME
© Artel architects
Архитекторы – партнеры Архи.ру:
Проект из каталога (случайный выбор)
Постройки и проекты (новые записи):
Новости российской архитектуры:
21.10.2025
Кто в Сити, кто в горы?
Сергей Скуратов21.10.2025
На династической тропе
Сергей Никешкин20.10.2025
Крылья Маяковского
Алексей Гуров20.10.2025