Реконструкция дома Бобринских
Реконструкция дома Бобринских
информация:
-
статус
реализовано -
даты
2012 — 2019 / 2017 — 2023 -
место
Москва ул. Малая Никитская, д.12, стр. 1,2,7,12 -
координаты
55.758742, 37.593489 -
функция
Культурный / Общественный центр
Филиал Ельцин Центра в Москве -
площадь участка
0,7266 га -
площадь подземная
1 954,6 м2 -
общая площадь
6 725,5 м2 -
высота
7,1 -
этажность
1-3 -
кол-во машиномест
86

Олег Шурыгин
Oleg Shurygin / Россия
Дмитрий Шурыгин
Shurygin Dmitriy / РоссияМВ-ПРОЕКТ
MW-PROJECT / Россияавторский коллектив
партнеры, заказчики, смежники
Заказчик: Управление делами Президента Российской Федерации
другие названия проекта
награды:
- Диплом лауреата конкурса «Московская реставрация-2022» за лучший проект реставрации и приспособления объекта культурного наследия «Городская усадьба (дом Бобринских), кон. XVIII в. Интерьеры и живописные плафоны нач. XIXв. Два боковых флигеля и закругление стены с балюстрадой. Ограда с воротами» по адресу: ул. Малая Никитская, д.12, стр.1,2,7,12. Награда Мэра Москвы С.С. Собянина
Диплом правительства Москвы о признании финалистом конкурса «Лучший реализованный проект в области строительства» в номинации «Реставрация и приспособление объектов культурного наследия для современного использования» за объект Городская усадьба (дом Бобринских), кон. XVIII в. (ЦАО, ул. М. Никитская, д.12, стр.1,2,7,12), 2023 год
Реконструкция дома Бобринских
Реконструкция дома Бобринских
описание:
Здание является объектом культурного наследия федерального значения «Городская усадьба (дом Бобринских), конец XVIII века. Интерьеры и живописные плафоны начала XIX века. Два боковых флигеля и закругленные стены с балюстрадой. Ограда с воротами». Усадьба называется по последнему (перед 1917 годом) владельцу – графу Бобринскому.
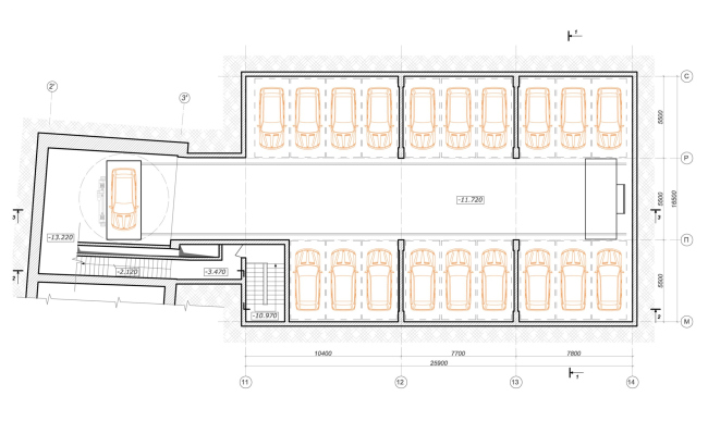
Особенность проекта реставрации и приспособления заключается не только в воссоздании уникальных по своей красоте интерьеров главного дома с живописными плафонами потолка второго этажа, но и в решениях освоения подземного пространства под всей территорией для обеспечения максимальной эффективности использования участка здания. В подземном пространстве размещены все инженерные и вспомогательные помещения, подземная автоматизированная автостоянка, кухня предприятия питания, архивы и хранилища.
За последние 200 лет здание многократно перестраивалось и ремонтировалось. И поэтому сохранение этого объекта – это совмещение разнообразных реставрационных методик и проектных решений по приспособлению.
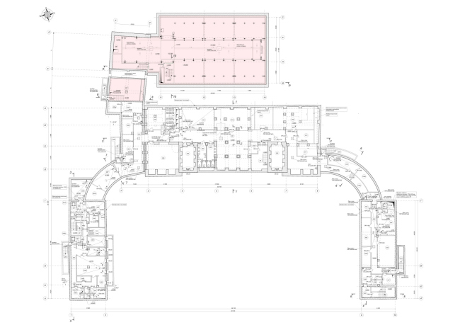
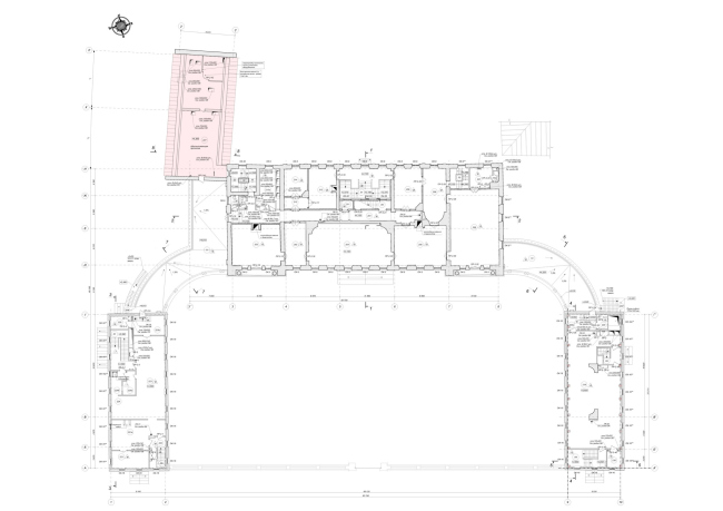
Здание расположено по улице Малая Никитская, недалеко от церкви Большого Вознесения. Парадным фасадом (южный фасад) главное здание обращено на улицу Малая Никитская, во внутренний двор-сад с цветочными клумбами, газонами, декоративным кустарником и малыми архитектурными формами – скульптурами «Парис» и «Елена». Со стороны парадного фасада вдоль улицы Малая Никитская проходит парадная ограда с въездными воротами, состоящая из кирпичных столбов и художественной ковки. Дворовый (северный) фасад главного дома обращён на Гранатный переулок. Вдоль переулка проходит ограда. Здесь, во внутреннем дворе, к главному зданию примыкают каретный сарай и хозяйственная пристройка. С востока и с запада территорию усадьбы ограничивают прилегающие к главному зданию флигели. Они соединены с главным зданием галереями с балюстрадами.
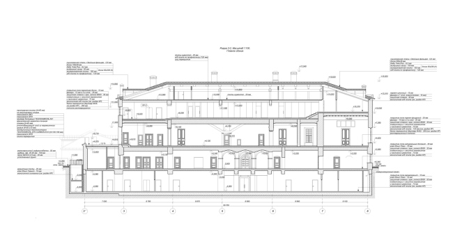
Фасады всех строений отреставрированы. Работы проводились с учётом дополнительных исследований и анализа кирпичной кладки после раскрытия штукатурных наслоений. При этом, например, северный фасад главного дома приобрёл первоначальный вид с более богатой пластикой, проявились парадные декоративные элементы обрамлений окон. Сохранялись все исторические материалы фасадов. Отреставрирован и докомпанован белый камень на кровельном карнизе и цоколе. Декоративные гипсовые элементы главного здания подлинные (докомпанованы только незначительные утраты). Все столярные заполнения воссозданы по историческим фотографиям (в советское время все они были заменены). Фасады выкрашены в цвет, который был определён как самый первый после послойных исследований всех исторических наслоений.
Первый этаж главного дома – это реставрация кирпичных сводов разных форм. Второй этаж главного дома – это парадные интерьеры с потолочной живописью и карнизами, каминами, декоративными тканевыми штофами, барочными люстрами, художественным паркетом, парадными дверьми и золочением. Третий этаж – это современные решения, но при этом с сохранением в интерьерах изразцовых печей.
В западном и восточном флигеле сохранены деревянные внешние стены второго этажа. Отреставрированы печные трубы, заменена кровля с окраской в исторический цвет. Оригинальные ограждения балконов и козырьки главного дома отреставрированы и возвращены на историческое место. Найдены и раскрыты световые приямки двух подвальных помещений (в рамках приспособления они закрыты стеклом). Ввиду освоения подземного пространства под зданием (для размещения технических и инженерных помещений) и необходимости обеспечения технологических и пожарных выходов на боковых неосновных фасадах появились аккуратно интегрированные лестницы из подвалов.
Наличие вновь выполненного по очень сложной технологии подвального этажа позволило не задействовать помещения наземных этажей под размещение инженерного оборудования и тем самым сохранить исторический вид и интерьеры этих помещений. Особенно это касается, конечно, главного дома с его уникальными интерьерами. Это и помещения первого этажа с кирпичными сводами, печами, полами из натурального камня, и парадные залы второго этажа с богатой лепниной, живописью, художественными полами, каминами, печами, осилковым мрамором, люстрами, штофами, золочёными дверями.
В ранее утраченных интерьерах западного и восточного флигелей предполагается размещение современного музейного пространства, книжного магазина, кафе и ресторана. А строение каретного сарая продолжит выполнять свою роль по хранению, но только уже современных автомобилей вместо старинных карет. Там установлена система автоматизированной трёхъярусной парковки (53 машиноместа) с использованием подземного пространства, реализованного во внутреннем дворе со стороны Гранатного переулка. А территория усадьбы после реставрации сохранила историческое зонирование, озеленена, выполнена ландшафтная подсветка и архитектурная подсветка фасадов. Историческая ограда с воротами отреставрирована.