Гостиничный комплекс Ильинка 3/8. Вид с Богоявленского переулка
© Kleinewelt Architekten, МВ-ПРОЕКТ / предоставлено Sminex
Гостиничный комплекс Ильинка 3/8
информация:
-
статус
проект -
даты
02.2022 -
место
Москва ул. Ильинка, д. 3/8, стр.3,4, Богоявленский пер., д. 6, стр. 1 -
координаты
55.754841, 37.623241 -
функция
Туризм/здравоохранение / Гостиничный комплекс -
площадь участка
0,4212 га -
площадь подземная
3 340,7 м2 -
общая площадь
12 265,5 м2 -
высота
23,35 -
этажность
3-5 -
строительный объем
60 730,9 м3 - Количество помещений временного прибывания – 61
-
кол-во машиномест
40

Дмитрий Шурыгин
Shurygin Dmitriy / Россия
Олег Шурыгин
Oleg Shurygin / РоссияМВ-ПРОЕКТ
MW-PROJECT / Россияавторский коллектив
Корректировки проектных решений: МВ-ПРОЕКТ
Руководители авторского коллектива: Д.М. Шурыгин, О.А. Шурыгин
ГАП: Д.А. Куваев
ГИП: С.А. Акинфиев
Е.С. Клюсова, Е.И. Петухова, В.А. Попова, А.А. Свиридов, А.Е. Косилина, Е.Н. Жуков, А.А. Муромский, С.Ф. Тертичный
партнеры, заказчики, смежники
другие названия проекта
Гостиничный комплекс Ильинка 3/8. Вид с Богоявленского переулка
© Kleinewelt Architekten, МВ-ПРОЕКТ / предоставлено Sminex
Гостиничный комплекс Ильинка 3/8. Новые корпуса
© Kleinewelt Architekten, МВ-ПРОЕКТ / предоставлено Sminex
описание:
Теплые торговые ряды – один из самых крупных торговых комплексов дореволюционного Китай-города. В 1860-е – 1870-е годы участки Певческой слободы, Новгородского подворья и Богоявленского монастыря арендовали московские предприниматели Николай Азанчевский и Александр Пороховщиков для постройки торговых рядов. Проект был поручен архитектору Александру Никитину, который возвел здесь самый настоящий город с узкими переулками и кварталами, которые оплели церковь Ильи Пророка, перестроив и включив ее в свой лабиринт.
К лабиринту корпусов добавлялся лабиринт чугунных галерей и переходов, которые опутывали здания почти на всем протяжении.
После революции 1917 года ряды превратились в лабиринт коммунального жилья и контор. В 1920 году Ильинскую церковь закрыли, здание ее стало конторой. В 1930-х в один из корпусов, выходящих на Ильинку, вселилась контора «Метростроя». Так ряды достояли до 1996 года, когда появились планы по устройству элитного гаража. Первыми были разрушены Теплые ряды, выходящие на Ильинку (дом 3, строение 2). К 2008 году были разрушены все строения Теплых рядов, кроме крошечных корпусов, выходящих фасадами в Богоявленский переулок.
Приспособление существующих зданий в границах участка выполняется в рамках специальных мер, направленных на сохранение и регенерацию историко-градостроительной среды, в два этапа. Первый этап – новое строительство в режиме регенерации. Второй этап – приспособление и реставрация.
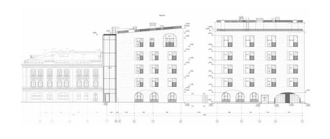
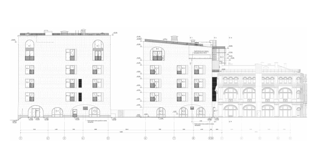
Проект регенерации на участке продолжает историческую застройку существовавших строений. Архитектура новой части гостиничного комплекса продиктована образной интерпретацией древних московских белокаменных палат, подворий. Новый гостиничный комплекс расположением и масштабом своих компактных объемов органично вписывается в участок и его окрестности, продолжая исторически сложившиеся контуры застройки. Лапидарная пластика архитектурного решения новых строений подчеркивает уникальность и богатство эклектики исторических фасадов.
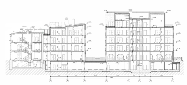
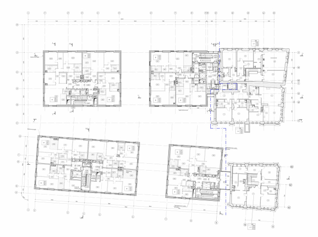
Надземная часть нового комплекса представляет собой четыре объема разной этажности – от четырех до пяти этажей. В наземной части всех корпусов сосредоточены помещения временного пребывания – гостиничные номера.
Главный вход в гостиничный комплекс организован со стороны Богоявленского переулка, между сохранившимися историческими строениями третьего и четвертого комплекса Теплых торговых рядов (ул. Ильинка, д. 8, стр. 3 и стр. 4), с возможностью сквозного прохода к входным группам остальных блоков через внутренний двор. Проектом предусматривается благоустройство территории с использованием долговечных материалов для покрытия подъездов и тротуаров, а также озеленение внутридворовой территории.
Входные группы для ПВП на первом этаже находятся на одной отметке с прилегающей территорией. Предусматривается безбарьерный доступ на территорию комплекса.
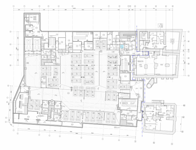
Новые корпуса и исторические здания объединены общей подземной частью, которая включает в себя паркинг на 40 машиномест, технические и служебные помещения, помещения управляющей компании. Новые корпуса связаны с историческими посредством остекленных переходов. На первом этаже строения 3 расположен вестибюль с зоной ресепшен для резидентов комплекса. В другой его части размещено кафе с обособленным входом со стороны Богоявленского переулка. Подвальные помещения имеют естественное освещение через световые приямки с чугунными остекленными решетками Люксфер в исторической конфигурации, воссозданными по сохранившемуся аналогу.
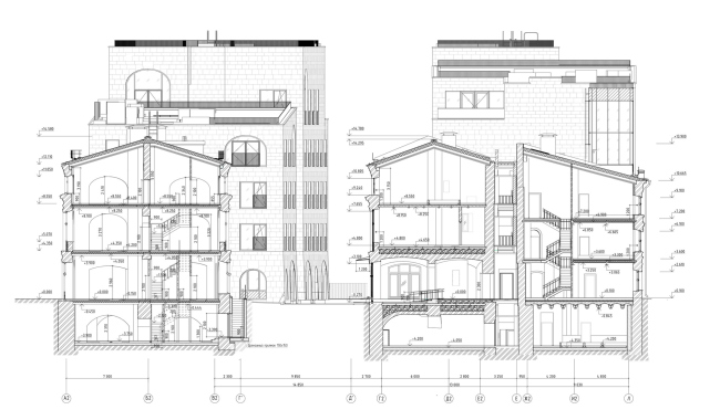
Два других исторических корпуса (строение 1 и строение 4) представляют собой многоэтажные гостиничные номера (в наземной части) и блок санитарно-бытовых помещений обслуживающего персонала (в подземной части). Вертикальная связь между этажами обеспечивается лестницами с верхним освещением. Для обеспечения эвакуации из подземной части строения 4 предусмотрен приямок с наружной лестницей.
Проект демонстрирует успешный пример современной регенерации исторической застройки, где удалось сохранить историческую идентичность места при адаптации к современным функциональным требованиям.
архитектурно-планировочные решения:
Для новых корпусов: НФС с использованием плит из натурального камня «Геналдон» и гранита Ivory Fantasy (Arcmann), матовый, RAL9002.
Для отделки исторических фасадов: слой известково-песчаной штукатурки с окрашиванием силиконовой краской в 2 слоя, цвет RAL9010 (NSC-S 0500-N).
Кровля
Для новых корпусов: скатная неэксплуатируемая с водоизоляционным слоем из битумосодержащих рулонных материалов.
Для исторических зданий: скатная, оцинкованная стальная с двойным вертикальным фальцем, окрашенная в темно-серый цвет по RAL7024.
Оконные системы
Для новых корпусов: индивидуальное изготовление деревометаллических оконных блоков (дуб, снаружи накладки из латуни).
Для исторических корпусов: индивидуальное изготовление двухкамерных стеклопакетов в деревянной раме из дуба с сохранением исторических габаритов и расстекловки.
Специальные конструкции
Шумозащитные экраны на кровле в зоне примыкания новой застройки к исторической части выполнены из матового стекла триплекс на опорах «СНХ», завод-изготовитель «Агпайп», Россия
Интерьер
Пол
В местах общего пользования: Мрамор №1 Calacatta Greco/Fusion.
В лестничных клетках и ПУИ: Керамогранит LA FABVRICA AVA STATUARIO 1200х600х8,8мм.
В паркинге: наливной пол на базе эпоксидных смол.
Стены
Штукатурка декоративная Derufa N2430 Mg5991
Матовая интерьерная краска, цвет S 3005-y50R
Керамогранит LA FABVRICA AVA STATUARIO 1200х600мм
Керамогранит Caesar Join Candle Soft 600х1200мм
Матовая интерьерная краска Mka Paint S 1002-y50R
Потолок
Матовая интерьерная краска Mka Paint S 1002-y50R
Декоративная штукатурка Derufa 2430 Mg 5991
Оригинальные элементы интерьера. Проектирование, изготовление
Арочные лифтовые порталы из мрамора Calacatta Greco-Fusion
Подвесные потолки из ГКЛ на подсистеме КНАУФ сводчатой конфигурации с отделкой декоративной штукатуркой Derufa 2430 Mg 5991