Севастопольский театр юного зрителя
© МВ-ПРОЕКТ
Севастопольский театр юного зрителя
информация:
-
статус
проект -
даты
2018 -
координаты
44.591307, 33.489976 -
функция
Культурный / Театр -
площадь участка
0,6658 га -
площадь подземная
3 043 м2 -
общая площадь
11 976 м2 -
высота
23 -
этажность
5 -
строительный объем
69 615 м3 -
кол-во машиномест
27

Дмитрий Шурыгин
Shurygin Dmitriy / Россия
Олег Шурыгин
Oleg Shurygin / РоссияМВ-ПРОЕКТ
MW-PROJECT / Россияавторский коллектив
партнеры, заказчики, смежники
награды:
- Диплом 1 степени за 1-е место в конкурсе «Лучшие объекты социальной инфраструктуры» в номинации «Проекты. Учреждения культуры и досуга». Ассоциация проектировщиков Московской области, 2018 г.
Севастопольский театр юного зрителя
© МВ-ПРОЕКТ
Архи.ру об этом объекте:
Полина Садова. От школы до стадиона
В конце прошлого года были подведены итоги профессионального конкурса лучших объектов социальной инфраструктуры. Публикуем полный список победителей и о некоторых проектах рассказываем подробнее.
Премия Лучший объект социальной инфраструктуры организована Ассоциацией проектировщиков Московской области, чтобы отметить наиболее удачные архитектурные и интерьерные проекты школ, детских садов, поликлиник, больниц, спортивных комплексов и други... читать дальшеСевастопольский театр юного зрителя
© МВ-ПРОЕКТ
описание:
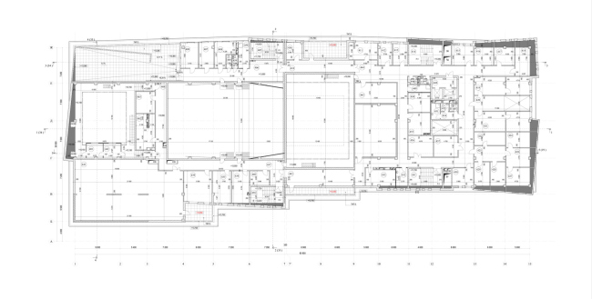
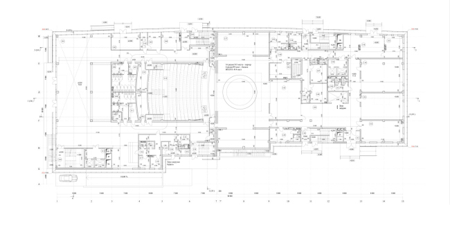
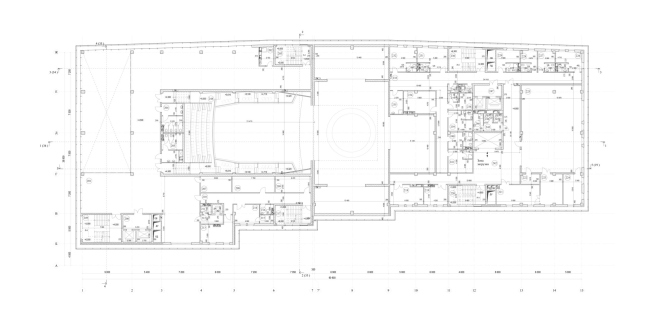
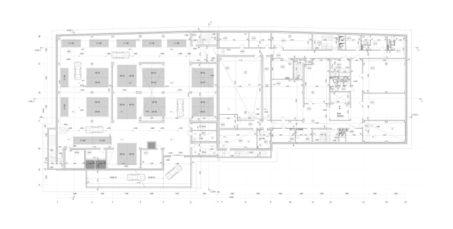
Участок, отведенный под строительство нового здания театра юного зрителя в Севастополе, примыкает к участку театра танца имени Валерия Елизарова. Здания двух театров формируют комплексную застройку вдоль улицы Руднева, композиционно вступая в архитектурное противостояние друг другу по принципу контраста. Экспрессивным линиям фасада театра танца противопоставляется строго линейный фасад театра юного зрителя.
Основной идеей фасада стал образ большой коробки–песочницы со стеклянным декоративным внешним фасадом, «наполненной» сверху выступающими из нее коробочками-игрушками, каждая из которых имеет свой индивидуальный дизайн (за счет формы, материала, фактуры и цвета). Здание гармонично вписывается в городскую среду и, наравне со зданием театра танца, забирает на себя основной городской архитектурный акцент.
Особенностями архитектурно-планировочных решений театральных зданий являются сложные технологические взаимосвязи помещений, разделение людских потоков и запоминающийся дизайн. Все это с успехом реализовано в здании театра юного зрителя.
Большой зрительный зал выполнен в виде классической сцены, имеющей прекрасную видимость и акустику. Малый зал – это зал-трансформер («black box»), в современном театре уже ставший необходимостью. Он позволяет реализовывать любые актуальные сценографические идеи.