Красивский психоневрологический интернат на 240 мест
Фотография предоставлена МВ-ПРОЕКТ
Красивский психоневрологический интернат на 240 мест
информация:
-
статус
реализовано -
даты
2017 — 2019 / 2021 — 2023 -
место
Красивка Тульская область ул. Центральная, д.1 -
координаты
53.435475, 36.989821 -
функция
Туризм/здравоохранение / Медицинский центр -
площадь участка
16,7296 га -
общая площадь
19 330,29 м2 -
высота
15,8 -
этажность
2-3 -
строительный объем
96 754,48 м3

Дмитрий Шурыгин
Shurygin Dmitriy / Россия
Олег Шурыгин
Oleg Shurygin / РоссияМВ-ПРОЕКТ
MW-PROJECT / Россияавторский коллектив
партнеры, заказчики, смежники
Заказчик: государственное учреждение капитального строительства «ТулоблУКС»
награды:
- Диплом 3 степени за проект Красивского психоневрологического интерната в Тульской области, в конкурсе «Лучшие объекты социальной инфраструктуры» в номинации «Проекты. Медицинские учреждения». Ассоциация проектировщиков Московской области, 2018 г.
Красивский психоневрологический интернат на 240 мест
Фотография предоставлена МВ-ПРОЕКТ
Красивский психоневрологический интернат на 240 мест
Фотография предоставлена МВ-ПРОЕКТ
описание:
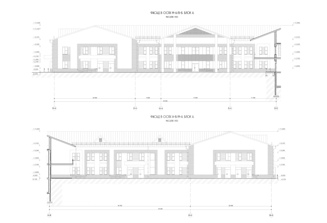
Красивский психоневрологический интернат представляет собой современный комплекс зданий, предназначенных для стационарного проживания лиц, нуждающихся в социальной защите и медицинском уходе. Объект расположен в Чернском районе Тульской области, в деревне Красивка. Интернат размещён на земельном участке площадью 16.73 га. Комплекс органично вписан в окружающую природную среду, а рельефные особенности местности использованы для формирования различных уровней застройки.
Архитектурное решение направлено на создание комфортного и безопасного пространства, способствующего психологическому благополучию проживающих.
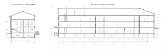
Комплекс включает в себя единый общественно‑жилой корпус, объединяющий четыре жилых секции и административно‑общественные помещения. Основное объемно‑пространственное решение позволяет избежать типичной казарменной монотонности за счет сложной композиции с уютными внутренними двориками и разнообразием визуальных ракурсов. Высотность зданий варьируется от 2 до 3 этажей, что обусловлено рельефом местности. При этом уровень кровли остается единым, а дополнительный нижний этаж формируется за счет естественного перепада высот. Такое решение способствует интеграции объекта в природный ландшафт и повышению архитектурной выразительности комплекса.
Внутренняя структура комплекса предусматривает свободный доступ к ключевым функциональным зонам, включая столовую, административные помещения, зрительный зал, медицинский блок и кружковые комнаты. Размещение жилых корпусов ориентировано таким образом, чтобы обеспечить достаточную инсоляцию помещений, а также удобный доступ к рекреационным и прогулочным зонам. Общая площадь комплекса составляет 19 330.29 кв. м, рассчитанная вместимость – 240 мест.
Конструкции
Фасадные конструкции. Наружные стены – из газосиликатных блоков толщиной 500 мм
Кровля – фальцевая двухскатная, из оцинкованных окрашенных листов.
Оконные системы. Витражи внутренние из алюминиевого профиля, окна – ПВХ профиль с заполнением двухкамерными стеклопакетами и фурнитурой. Оконные блоки с приточным клапаном air-box и москитными сетками (столовая, жилые комнаты, медицинские кабинеты и процедурные). Нижняя часть витражей выполняется из прозрачного травмобезопасного стеклопакета.