Новое здание Московского музыкального театра в саду «Эрмитаж»
© ТПО «Резерв», МВ-ПРОЕКТ
Новое здание Московского музыкального театра в саду «Эрмитаж»
информация:
-
статус
проект -
даты
10.2023 -
место
Москва ул. Каретный ряд, вл. 3, стр. 7 -
координаты
55.770372, 37.609353 -
функция
Культурный / Театр -
площадь участка
0,173 га -
площадь подземная
2 947,4 м2 -
общая площадь
10 427,3 м2 -
высота
35,8 -
этажность
8 -
строительный объем
63 915 м3

Владимир Плоткин
Vladimir Plotkin / Россия
Дмитрий Шурыгин
Shurygin Dmitriy / Россия
Олег Шурыгин
Oleg Shurygin / РоссияТПО «Резерв»
Creative Union ‘Reserve’ / РоссияМВ-ПРОЕКТ
MW-PROJECT / Россияавторский коллектив
Руководитель авторского коллектива: В.И. Плоткин
С.А. Гусарев, Ю.Н. Фадеев, Н.В. Ромишевская, А.А. Набеев
Проектные решения: МВ-ПРОЕКТ
Д.М. Шурыгин, О.А. Шурыгин, Д.А. Куваев, Е.И. Петухова, С.А. Акинфиев (ГИП), Е.В. Андреева, Е.С. Клюсова, Т.А. Алексеева, В.А. Попова
партнеры, заказчики, смежники
Технический заказчик: ГПБ-ИС
Новое здание Московского музыкального театра в саду «Эрмитаж»
© ТПО «Резерв», МВ-ПРОЕКТ
Новое здание Московского музыкального театра в саду «Эрмитаж»
© ТПО «Резерв», МВ-ПРОЕКТ
описание:
Участок для проектирования и строительства здания Московского музыкального театра расположен в юго-восточной части Сада «Эрмитаж» на месте разобранной в 2023 году сценической коробки так называемой «Щукинской сцены». С западной стороны участок граничит со зданием театра «Сфера», с северной – со зданием театра «Эрмитаж». Земельный участок полностью находится в границах зоны строгого регулирования застройки и охраняемого культурного слоя.
Проектируемое здание дополнит сложившийся на территории сада театральный кластер, включающий три театра: «Новая опера», «Эрмитаж» и «Сфера».
Учитывая небольшую площадь участка проектирования и его затенённость (расстояния до соседних существующих зданий – 6.3 м и 7.7 м), функциональное зонирование и объемно-планировочное решение здания формируется по вертикали. Это соответствует центральному расположению здания в саду «Эрмитаж», учитывая, что существовавшая на этом месте «Щукинская сцена» являлась вертикальной градостроительной доминантой не только самого сада «Эрмитаж», но и всего квартала, сформированного улицами Садовая-Каретная, Каретный Ряд, Малая Дмитровка и Успенским переулком.
Фасады запроектированы в современном стиле, а силуэт проектируемого здания повторяет исторический силуэт «Щукинской сцены», ранее стоявшей на участке.
архитектурно-планировочные решения:
На наружном триплекс-стекле светопрозрачных стеклопакетов и стеклопакетов со стемалитом методом керамической печати наносится рисунок белой краской. Графическая композиция основана на ассоциациях, связанных с музыкальными инструментами и нотной грамотой.
Ритм декоративных ламелей в сочетании с рисунком на прозрачных и непрозрачных стеклопакетах создает единую мерцающую при движении зрителя плоскость, отдалённо напоминающую театральный занавес. Глухие части фасада выполнены из алюминиевых кассет с порошковым покрытием, а также из стеклофибробетонных (СФБ) панелей: гладких белых, рифлёных по вертикали белого и тёмно-серого цвета. Заполнение витражей первого этажа в зоне зрительского вестибюля и театрального буфета (кафе) выполнено двухкамерными крупноразмерными стеклопакетами в алюминиевых переплётах, окрашенных в серый цвет.
Наружные стены (в том числе витражные конструкции) в местах примыкания двух соседних зданий («Сфера» и «Эрмитаж») являются противопожарными.
Класс пожарной опасности фасадных конструкций – К0. Отделочные материалы фасадов – негорючие.
На кровлю 8 этажа запроектированы четыре выхода через противопожарные двери из лестничных клеток. Подъём на кровли над лестничными клетками и помещениями 8 этажа обеспечен по закреплённым стальным стремянкам.
Высота ограждений неэксплуатируемых кровель – 600 мм, эксплуатируемых – 1200 мм.
Оконные системы. Окна выполняются из двухкамерных стеклопакетов в алюминиевом профиле окрашенным в серый цвет с верхнеподвесными фрамугами шириной 1,2 м.
Специальные конструкции. На верхних участках фасада устанавливается система обслуживания фасада (СОФ) – жёсткие анкерные линии для выполнения работ с применением канатного доступа.
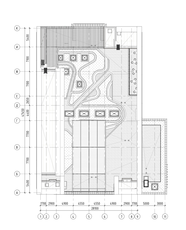
На эксплуатируемой кровле 8 этажа устанавливается пергола с автоматическим управлением Pergola Decolife Solo Basic & Pro New. Заполнением является тент: Sattler (Австрия). Для доступа на сцену маломобильных групп населения устанавливается подъемная платформа наклонного перемещения.
Инженерия
Вентиляция и кондиционирование. Приточно-вытяжная вентиляция с механическим побуждением, рассчитанная на поддержание допустимых параметром микроклимата помещений. Системы кондиционирования на базе мультизональных VRF-систем используются для помещений зрительного комплекса, ресторана, а также помещений с постоянным пребыванием людей.
Электрика, освещение. Обеспечение электроэнергией электроприемников проектируемого объекта в нормальном режиме предусмотрено от двух независимых взаиморезервируемых источников электроснабжения. Выполнен проект Архитектурно-художественной подсветки (АХП).
Лифты. Лифтовое оборудование DOPLER для транспортировки пассажиров, и подъёмное оборудование ООО «УТК» для транспортировки театральных декораций и прочих грузов. В зоне загрузки пищеблока предусмотрена подъёмная платформа ножничного типа DOORHAN.
Энергосберегающие технологии. Для экономии электроэнергии предусматриваются следующие мероприятия:
- применение автоматизированной системы контроля и управления здания для регулирования, дистанционного управления;
- применение системы учета потребляемой электроэнергии;
- применение частотных преобразователей на электродвигателях насосов и вентиляторов;
- использование светодиодного освещения;
Используются эффективные теплоизоляционные материалы – экструзионный пенополистирол и плиты из минеральной ваты.
Утепленные наружные оконные блоки в алюминиевом профиле, с двухкамерным стеклопакетом с энергосберегающем покрытием и заполнением камер аргоном.
Утеплитель наружных стен здания (в составе НФС и за непрозрачным заполнением из СПО в фасадных витражах) применяются плиты из минеральной ваты толщиной 150 мм
Интерьер
Пол.
В зрительских вестибюлях, фойе, кулуарах и лифтовых холлах предусматривается модульный пол по индивидуальному рисунку из керамогранитной плитки Atlas Concorde 60×60 трёх оттенков.
В зрительном зале – дизайн-плитка ПВХ.
Покрытие сцены – деревянный брус с пропиткой антипиренами.
Покрытие в оркестровой яме – ковровое тафтинговое покрытие Forbo Tessera.
В артистических уборных и административных помещениях для отделки полов применяется ПВХ-покрытие (линолеум) Forbo.
В кабинетах руководителей – паркетная доска или массивная доска Austriawood.
Для отделки полов в репетиционном и хореографическом залах предусмотрен танцевальный линолеум Harlequin Fiesta.
В зале ресторана предусмотрена отделка полов керамогранитной плиткой Atlas Concorde.
В служебных коридорах, складах, технических помещениях и на лестницах покрытие полов выполняется из керамогранитной плитки Atlas Concorde 60×60.
В уборных, санузлах, душевых, ПУИ, производственных и моечных помещениях пищеблока предусматриваются полы с гидроизоляцией и отделкой неполированным керамогранитом Atlas Concorde 30×30.
Дополнительно, для звукоизоляции полов, под стяжкой устраивается звукоизоляционная прокладка, обеспечивающая снижение приведённого уровня ударного шума.
Стены.
В дизайн-проекте используются следующие составы финишных слоёв:
а) шпаклевка, грунтовка, краска /декоративная штукатурка;
б) цементный клей, керамогранитная плитка/поливная керамика;
в) акустическая отделка с применением стекло-магниевых листов (СМЛ) с декоративным покрытием;
г) декоративные фибробетонные панели.
д) перегородки и обшивки из ГКЛ по стальному каркасу – шпаклевка, грунтовка, покраска.
- для создания правильной акустической среды в зале на стенах применяются стекло-магниевые перфорированные акустические панели с декоративным покрытием. Отделка стен имитирует деревянный шпон и выполняется в светлых тонах.
- на сцене, вестибюлях, лестничных клетках, лифтовых холлах, пожаробезопасных зонах – силикатная негорючая краска Zeropaint или силикатная негорючая фактурная штукатурка Zeroplaster;
- в коридорах, фойе, кулуарах, зрительских уборных, монтажном цехе – водно-дисперсионная краска Асти Велюр Матовый;
- в помещениях венткамеры, водомерного узла, ИТП, КНС, перед окраской выполняется звукоизоляционная отделка;
- в артистических уборных, административных помещениях, помещениях персонала, уборных персонала, ПУИ, помещениях пищеблока, инженерных помещениях, складах – водно-дисперсионная краска Finch Pro;
в обеденном зале ресторана – декоративная штукатурка и водно-дисперсионная краска Finch Pro.
Потолок.
- в вестибюле, фойе, на сцене, лестничных клетках, лифтовых холлах выполняются подвесные потолки из 1 слоя негорючих листов по стальному каркасу окрашенные силикатной негорючей краской Zeropaint;
- в зрительном зале – фрагментарный подвесной потолок из 2х слоёв негорючих листов Bonacoustic UFR NG Perfo Point Block 8/16 по стальному каркасу. Цвет темно-серый RAL7024;
- в репетиционном и хореографическом залах – подвесные потолки из 1 слоя гипсокартонных листов и стекло-магниевых листов Саундлюкс Техно Потолок по стальному каркасу и акустические звукопоглощающие свободновисящие панели Акустик Групп Акуфон Пролайн Соло;
- в санузлах, душевых, – подвесные металлические реечные потолки;
- в служебных коридорах, тамбур-шлюзах – подвесные потолки грильято, подвесные потолки из 1 слоя гипсокартонных листов по стальному каркасу, окрашенных водно-дисперсионной краской Асти Велюр Матовый;
- в складах, помещениях пищеблока, инженерных помещениях низ перекрытия штукатурится, шпаклюется и окрашивается водно-дисперсионной краской Finch Pro;
- в помещениях венткамеры, водомерного узла, ИТП, КНС, перед окраской выполняется звукоизоляционная отделка;
- в артистических уборных, административных помещениях, помещениях персонала, уборных персонала, ПУИ, помещениях пищеблока, инженерных помещениях, складах – водно-дисперсионная краска Finch Pro;
- в обеденном зале ресторана – водно-дисперсионная краска Finch Pro.
Светильники.
- люстра вестибюля, цвет: Латунь/Янтарь, производитель: компания The Light;
- светильник Инсталяция в фойе, производитель: компания The Light;
- светильник входного вестибюля, цвет: Белый, производитель: компания The Light
- освещение экстерьера разрабатывается компанией The Light
- Обливная керамика глазурированная, полуматовая индивидуального изготовления. Цвет NCS S 3050-B20G
- Озеленение эксплуатируемой кровли. Зеленые насаждения: Ковыль мексиканский, Населла тончайшая, Овсяница, Вейник коротковолосистый.
- Ограждение парадной лестницы из СФБ на металлическом каркасе, цвет: белый и металлических листов ornamita, цвет: бронза.