Сибирская высшая школа музыкального и театрального искусства в Кемерово. Главный фасад
Фотография © Дмитрий Ярощук, источник – сайт ВШМТИ / предоставлена МВ-ПРОЕКТ
Сибирская высшая школа музыкального и театрального искусства в Кемерово
информация:
-
статус
реализовано -
даты
10.2019 — 06.2022 / 03.2020 — 05.2023 -
место
Кемерово ул. Ворошилова, 15 -
координаты
55.337650, 86.161830 -
функция
Образование и наука / Образовательный комплекс -
площадь участка
2, 35 га -
площадь подземная
1 303 м2 -
общая площадь
12 850 м2 -
высота
25 -
этажность
3-4 -
строительный объем
87 965 м3

Дмитрий Шурыгин
Shurygin Dmitriy / Россия
Олег Шурыгин
Oleg Shurygin / РоссияМВ-ПРОЕКТ
MW-PROJECT / Россияавторский коллектив
Шурыгин Д.М., Шурыгин О.А.
ГИП: Акинфиев С.А.
ГАП: Андреева Е.В. (П), Куваев Д.А. (Р)
Рязанов Д.А., Попова В.А.
Главный конструктор: Цаплин А.А.
партнеры, заказчики, смежники
Заказчик: Фонд «Национальное культурное наследие»
Сибирская высшая школа музыкального и театрального искусства в Кемерово. Вид на главный вход в здание
Фотография © Дмитрий Ярощук, источник – сайт ВШМТИ / предоставлена МВ-ПРОЕКТ
Сибирская высшая школа музыкального и театрального искусства в Кемерово. Декоративная скульптура перед главным входом
Фотография © Дмитрий Ярощук, источник – сайт ВШМТИ / предоставлена МВ-ПРОЕКТ
описание:
Здание Высшей школы – это воплощение театральной игры пространства, где каждый ракурс, каждый фасад и интерьер создают эффектную смену декораций. Монументальность форм сочетается с лаконичностью линий, а каждый элемент подчинен концепции визуального и смыслового взаимодействия.
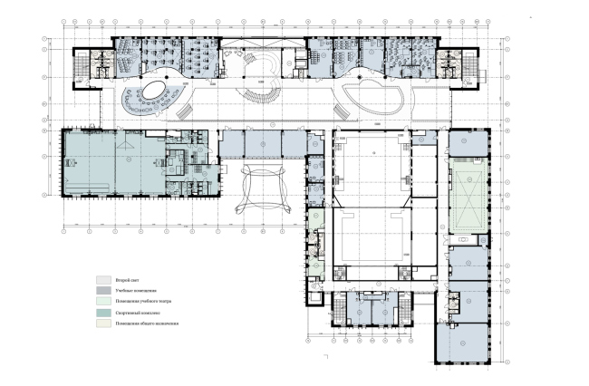
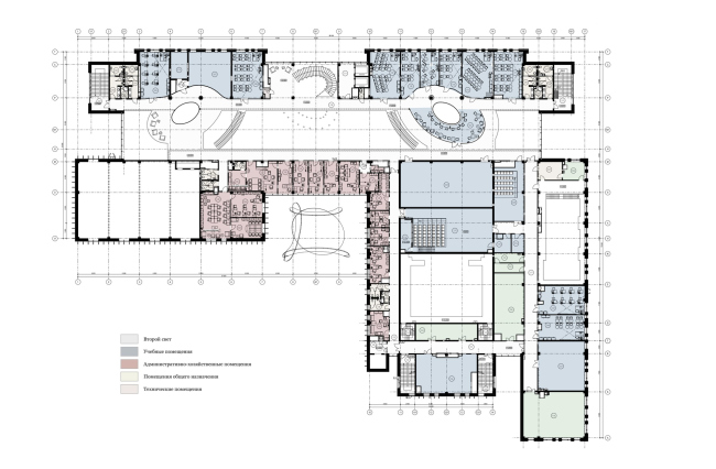
Основа композиции здания – атриум, организующий внутреннее зонирование и обеспечивающий насыщение интерьеров естественным светом. Атриум – динамичная ось здания, пространство пересечений и встреч. Переплетение мостиков, переходов и лестниц в атриуме создает бесконечное количество зрительных перспектив, усиливая впечатление переменчивости и глубины пространства.
Для отделки фасадов использован крупноформатный керамогранит толщиной 3.5–5.6 мм на навесной системе. Панели размером до 3000×1000 мм формируют строгий ритм фасадного членения, подчеркивая монолитность и статичность архитектурной композиции. Такое решение обеспечивает долговечность и минимальные эксплуатационные затраты, сочетая эстетику с технологической надежностью.
Дополнительный объем и пластичность фасадам придают крупноформатные алюминиевые ламели с выносом до 500 мм, изготовленные по индивидуальному заказу. Их отделка имитирует текстуру керамогранита, создавая гармоничный переход между материалами. Ламели не только служат декоративным элементом, но и формируют сложную игру света и тени, придавая фасадам выразительность.
Интерьеры строятся на принципах открытости и визуальной многослойности. Внутренние перегородки выполнены из моллированного стекла, что позволяет интегрировать учебные пространства в общую композицию, сохраняя ощущение легкости и прозрачности. Такое решение обеспечивает баланс между приватностью и открытостью, создавая комфортную среду для учебного процесса.
На участке перед зданием Высшей школы расположена площадка для отдыха и выступлений. Здесь находится амфитеатр, вписанный в круглую форму радиусом 10 м. Нижняя часть площадки – плоская, на уровне земли, и может использоваться для выступлений.
Конструкци
Фасадные конструкции. НФС с отделкой керамическими крупноформатные плиты Laminаm, алюминиевые ламели, алюминиевые кассеты фасадные SIBALUX с покрытием SL-138 травертин, 2000х1000 мм, стемалит в составе СПО.
Кровля здания – плоская неэксплуатируемая с внутренним водостоком
Оконные системы. Окна из энергоэффективных алюминиевых профилей заполненные двухкамерными стеклопакетами. Витражная алюминиевая стоечно-ригельная система, из энергоэффективных профилей, заполненная двухкамерными стеклопакетами из закалённого низкоэмисионного стекла.
Специальные конструкции.
1. Скульптурная композиция трапециевидной в плане формой, высотой – 16,7 м. Скульптурная композиция выполена из стальных пересекающихся рам. Четыре вертикальные рамы расположены под углом к вертикали, связаны между собой и с горизонтальной рамой в верхнем уровне.
2. Марши главной центральной парадной лестницы криволинейной формы подвешены на вантовых конструкциях, за счет чего создается эффект «парения в воздухе».
Инженерия
Вентиляция и кондиционирование. Вытяжные и приточные системы базируются на основе оборудования фирмы «Ned» (производства РФ)
Лифты группы компаний «Калининград Лифт»
Интерьер
Пол. Основные общие зоны – мармолеум; лифтовые холлы, лестницы и санитарные помещения – керамогранит; зрительный зал – инженерная доска.
Штукатурка. Штукатурка декоративная, в зрительном зале – акустические панели МДФ ТAGinterio
Потолок. Подвесной потолок Ecophon Solo Baffle; в зрительном зале и лифтовых холлах – потолок из плиты типа Кнауф Файерборд (КМ0)
Светильники индивидуального изготовления
Оригинальные элементы интерьера. Проектирование, изготовление. Внутренние перегородки из моллированного стекла. Витражные перегородки + шпонированные порталы и двери