
Объект культурного наследия федерального значения «Гербарий и библиотека». Историческая фотография помещения хранения коллекций гербария 1913г.
© Штейнберг Яков Владимирович. Дата съёмки: 1913 г. // Источник: ЦГАКФФД СПб Д 19301.
Объект культурного наследия федерального значения «Гербарий и библиотека»
информация:
-
статус
проект -
даты
12.2023 — 11.2024 -
место
Санкт-Петербург ул. Профессора Попова, дом 2, лит. А -
координаты
59.968731, 30.319887 -
функция
Образование и наука / Библиотека -
площадь участка
0,1726 га -
площадь подземная
985,81 м2 -
общая площадь
6 176,4 м2 -
высота
23,39 -
этажность
1-3-4 -
строительный объем
30 645,25 м3

Дмитрий Шурыгин
Shurygin Dmitriy / Россия
Олег Шурыгин
Oleg Shurygin / РоссияМВ-ПРОЕКТ
MW-PROJECT / Россияавторский коллектив
ГИП: М.В. Астафьева
В.М. Богданова, П.Ю. Тюрина, А.Н. Осипова, С.И. Страуме, Е.А. Кущенко
СевЗап ПБ
Е.В. Венслаускене, П.С. Вакулин, А.А. Кондратенко, И.Ф. Таскаева, М.В. Сидорова
партнеры, заказчики, смежники
Объект культурного наследия федерального значения «Гербарий и библиотека». Историческая фотография фасадов 1915г.
Автор съёмки неизвестен. Дата съёмки: 1915 г. // Источник: Архив БИН РАН

Объект культурного наследия федерального значения «Гербарий и библиотека». Историческая фотография 1916г. Балюстрада дворового фасада
ЕОАХ. Вып. 11, 1916 (Из рекламы услуг Черноморского строительного общества) // Источник: https://www.citywalls.ru/house18160.html
описание:
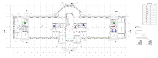
Здание является объектом культурного наследия федерального значения «Гербарий и библиотека» и располагается по адресу: Санкт-Петербург, улица Профессора Попова, дом 2, литера А.
Построено по проекту архитектора Александра Дитриха (1866–1933). Год постройки – 1912. Архитектурный стиль – неоклассика с элементами модерна. С момента постройки в здании размещается Федеральное государственное бюджетное учреждение науки Ботанический институт имени Владимира Комарова Российской академии наук (БИН РАН). Основное назначение – хранение гербарной коллекции и научной библиотеки.
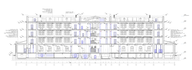
Фасады
Здание представляет собой кирпичное четырехэтажное сооружение с подвалом и чердаком, а также одноэтажными секциями на торцах. Оно возведено на бутовых ленточных фундаментах. Первый этаж имеет сложную форму – прямоугольник с выступающими объемами в центре. Отделка фасада – окрашенная штукатурка; на уровне первого этажа он рустован.
Декор фасада выполнен в белом цвете и включает:
-
замковые камни с маскаронами льва,
-
треугольные сандрики,
-
фальш-балясники с тумбами и декоративными пиками,
-
орнаментальные композиции в виде венков,
-
панно с растительным рельефом, лентами и маскароном,
-
каннелированные пилястры и трехчетвертные колонны на боковых фасадах и ризалите.
Плоскость главного и боковых фасадов расчленена штукатурными пилястрами, завершающимися пьедесталами с драпировками и барельефами ваз. Центральный ризалит выделен псевдопортиком с колоннадой из сдвоенных каннелированных колонн-пилястр.
Входная группа с ротондой сохранила историческую отделку пола в технике терраццо, выполненную из мраморных элементов различных цветов и сортов. Цоколь облицован гранитным камнем с фактурной обработкой.
Кровля – сложная, двухскатная, со щипцами, фальцевая, окрашенная в красно-кирпичный цвет. В центре двускатной кровли расположен кубический объем, на который опирается башня-купол – доминанта здания.
Металлические ограждения балконов украшены простым геометрическим рисунком с розеттами и растительными гирляндами. Окна – преимущественно прямоугольные, но встречаются и арочные, полуциркульные, овальные формы. В некоторых из них сохранились исторические переплеты в виде овала и ромба. Частично уцелели оригинальные дверные и оконные заполнения с латунной фурнитурой.
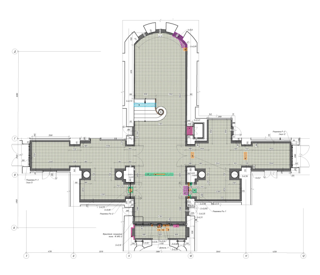
Интерьеры
Планировочное решение практически полностью соответствует авторскому замыслу и предназначено для хранения ботанических коллекций.
При входе посетители попадают в тамбур, отделенный от вестибюля с парадной лестницей исторической полуостекленной деревянной перегородкой. В тамбуре и вестибюле сохранилось оригинальное покрытие пола из метлахской плитки.
Главная лестница выполнена из сааремского известняка. Для вертикальной связи также используется исторический лифт с кабиной из красного дерева и латунным декором. В боковых частях здания расположены двухмаршевые лестницы.
Стиль интерьеров – строгий классический. Отделка стен – окрашенная штукатурка. У подножия главной лестницы сохранился постамент с мраморной вазой, украшенной рельефом на античный сюжет.
Ограждения лестниц – из черного металла, с геометрическим узором и розетками. Лепнина представлена овальными розетками с венками из бутонов.
Особый интерес вызывают парадные залы второго этажа, где сохранились:
-
лепные розетки на потолках,
-
люстры,
-
триглифы и гирлянды на стенах,
-
арочные наличники окон,
-
сандрики над дверными проемами,
-
каннелированные полуколонны,
-
паркетные полы.
Описание проектных решений
Цель проекта – приспособление здания под библиотеку, хранилище гербарной коллекции и рабочие помещения научных сотрудников.
Фасады
Проектом предусмотрена реставрация фасадов, так как на их поверхности имеются участки разрушения отделочных слоев и декоративных элементов. Запланированы работы по восстановлению входной группы, каменные блоки которой имеют утраты и щели.
Основные причины разрушений – нарушение целостности отмостки, ошибки в технологии ремонтных работ, применение цементных растворов в ходе предыдущих реставраций.
Предусмотренные мероприятия:
-
Очистка гранитного цоколя от загрязнений и биопоражений.
-
Реставрация декоративных металлических элементов.
-
Восстановление заложенных оконных проемов в подвале дворового фасада.
-
Реконструкция утраченного парапетного завершения ризалита дворового фасада по архивным материалам и зондажам.
Парапет с балясинами зафиксирован на фотографии 1916 года, но в настоящее время сохранились только угловые тумбы. Вероятно, разрушение произошло из-за намокания и недостаточного водоотведения. При восстановлении предусмотрено устройство сквозных водоотливов, предотвращающих скопление влаги.
Реставрационные работы будут выполняться с соблюдением методических рекомендаций технологов-реставраторов.
Цветовое решение фасадов разработано на основе стратиграфического анализа, проведенного в марте 2024 года.
Оконные заполнения
Проект предусматривает реставрацию окон и дверей с сохранением оригинальной расстекловки и профилей, а также латунной фурнитуры (шпингалеты, петлевидные ручки, ручки-скобы, задвижки).
Интерьеры
Будут отреставрированы зоны с исторической отделкой:
-
парадные и боковые лестницы,
-
залы второго этажа,
-
входной тамбур,
-
кабина лифта.
Киносъемки
В этом здании снимался фильм «Капитан Волконогов бежал» (2021, Россия) о Ленинграде 1938 года. В кадрах запечатлены интерьеры гербария.
архитектурно-планировочные решения:
Кровля: двускатная, с куполом, по деревянным стропильным конструкциям. Материал: металлическая, фальцевая.
Оконные системы: индивидуальное изготовление деревянных стеклопакетов с сохранением исторических профилей и рисунка расстекловки.
Специальные конструкции: купол с деревянной стропильной системой
Инженерия
Электрика, освещение имеется.
Лифты: сохранилась историческая кабина нач.XX в. Предусмотрены реставрационные работы
Стены: штукатурка окрашенная, исторические интерьеры с сохранением материалов отделки и облика.
Потолок: штукатурка окрашенная, исторические интерьеры с сохранением материала отделки и облика.
Частично сохранились исторические светильники.
Оригинальные элементы интерьера. Проектирование, изготовление:
исторические лепные детали – на фасадах, в интерьерах – на стенах, потолках, лестницы с историческими ограждениями и ступенями, светильники, окна с запорной фурнитурой из латуни, покрытие терраццо из мрамора на входном крыльце, метлахская плитка, краснодеревная отделка лифта с накладным декором