RSS
Жилой дом Эстет
Фотография © Аскар Кабжан / предоставлена План Б

Жилой дом Эстет

информация:

  • статус
    реализовано
  • даты
    20172021 / — 2022
  • region= area= address=пер. Переходный, 3А country_t=Россия city_t=Екатеринбург
    место
    Екатеринбург пер. Переходный, 3А
  • координаты
    56.804130, 60.629158
  • функция
    Жилой / многоквартирный дом
  • общая площадь
    16 472 м2
  • высота
    48
  • этажность
    14
  • строительный объем
    59 600 м3
Ксения Серебрякова
Елизавета Швердина
Россия

авторский коллектив

Руководители авторского коллектива: Ксения Серебрякова, Антонина Савилова 
Главный архитектор, решения генерального плана: Елизавета Швердина 
Главный инженер: Владимир Матвеев 
Архитекторы: Елена Кудрина, Михаил Княжев 
Конструкторы: Евгений Редикульцев, Роман Барышников 
Руководитель инженерной группы: Василий Зорин 

партнеры, заказчики, смежники

Проектирование железобетонного каркаса: Эффективное проектирование

Заказчик: Астра-Девелопмент
Жилой дом Эстет
Фотография © Аскар Кабжан / предоставлена План Б
Жилой дом Эстет
Фотография © Аскар Кабжан / предоставлена План Б

история проекта:

Участок для проектирования находится в середине квартала, ограниченного улицей Белинского и переулком Переходным, в уже сложившейся жилой застройке.

Перед нами стояла задача вписать жилой дом в центр существующего квартала. Особенности его местоположения определили архитектурный облик здания: оно не имеет фасадов, выходящих на городские магистрали. На него никогда не будут смотреть пассажиры проезжающих автомобилей или пешеходы, спешащие по улице.

Такому дому не подходят крупный масштаб членений и контрастные детали – элементы, которые работают на восприятие с большого расстояния или на высокой скорости. Его «зрители» – жители этого и соседних домов.

Мы стремились создать дом, который выдержит неспешное ежедневное рассматривание. Его архитектура продумана так, чтобы люди могли наблюдать за ним из окон соседних домов, из двора, каждый раз открывая новые детали. Поэтому у здания появился сложный фасад, который воспринимается по-разному в зависимости от угла обзора и времени суток.

описание:

Мы разделили дом, как торт, на три «слоя» – серый, белый и розовый, выбрав мягкие, природные оттенки, приятные глазу. Каждый слой имеет свою конфигурацию лоджий, форму и размер окон, а также уникальное планировочное решение.

Выступающие лоджии создают замысловатый рисунок, который воспринимается по-разному под разными углами. Дом меняет облик в зависимости от точки обзора. Поскольку он расположен не на улице, а внутри квартала, его архитектура приобретает немного курортный характер.

Четкое деление на три «слоя» делает здание более соразмерным окружающей низко- и среднеэтажной застройке.

Жилой дом Эстет
Фотография © Аскар Кабжан / предоставлена План Б
Жилой дом Эстет
Фотография © Аскар Кабжан / предоставлена План Б
Жилой дом Эстет
Фотография © Аскар Кабжан / предоставлена План Б
Жилой дом Эстет
Фотография © Аскар Кабжан / предоставлена План Б
Жилой дом Эстет
Фотография © Аскар Кабжан / предоставлена План Б
Жилой дом Эстет
Фотография © Аскар Кабжан / предоставлена План Б
Жилой дом Эстет
Фотография © Аскар Кабжан / предоставлена План Б
Жилой дом Эстет
Фотография © Аскар Кабжан / предоставлена План Б
Жилой дом Эстет
Фотография © Аскар Кабжан / предоставлена План Б
Жилой дом Эстет
Фотография © Аскар Кабжан / предоставлена План Б
Жилой дом Эстет
Фотография © Аскар Кабжан / предоставлена План Б
Жилой дом Эстет
Фотография © Аскар Кабжан / предоставлена План Б
Жилой дом Эстет
Фотография © Аскар Кабжан / предоставлена План Б
Жилой дом Эстет
Фотография © Аскар Кабжан / предоставлена План Б
Жилой дом Эстет
Фотография © Аскар Кабжан / предоставлена План Б
Жилой дом Эстет
Фотография © Аскар Кабжан / предоставлена План Б
Жилой дом Эстет
Фотография © Аскар Кабжан / предоставлена План Б
Жилой дом Эстет. Генплан
© План Б
Жилой дом Эстет. Фасад
© План Б
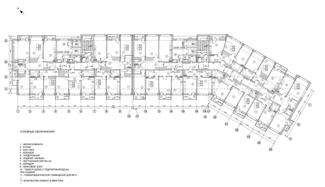
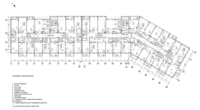
Жилой дом Эстет. План 2-4 этажа
© План Б
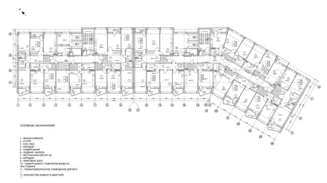
Жилой дом Эстет. План 5-10 этажа
© План Б
Жилой дом Эстет
© План Б

Архитекторы – партнеры Архи.ру:

  • Николай Кикава
  • Наталия Шилова
  • Елена Пучкова
  • Алексей Орлов
  • Всеволод Медведев
  • Владимир Плоткин
  • Наталья Сидорова
  • Георгий Трофимов
  • Татьяна Зульхарнеева
  • Дмитрий Остроумов
  • Сергей Скуратов
  • Василий Крапивин
  • Степан Липгарт
  • Игорь Членов
  • Андрей Гнездилов
  • Антон Надточий
  • Дмитрий Сухов
  • Юлия Тряскина
  • Григориос Гавалидис
  • Илья Машков
  • Михаил Канунников
  • Дмитрий Ликин
  • Сергей Чобан
  • Юлия Солдатенкова
  • Александр Скокан
  • Андрей Романов
  • Алексей Гинзбург
  • Сергей Кузнецов
  • Андрей Асадов
  • Евгений Зеленов
  • Никита Явейн
  • Сергей Труханов
  • Юлий Борисов
  • Константин Ходнев
  • Анастасия Абашева
  • Александр Асадов
  • Владислав Андреев
  • Олег Мединский
  • Дмитрий Буш
  • Андрей Михайлов
  • Олег Шапиро
  • Александра Кузьмина
  • Михаил Давыдов
  • Сергей Никешкин
  • Ерлан Бекмухамедов
  • Игорь Шварцман
  • Екатерина Кузнецова
  • Энди Сноу
  • Григорий Мустафин
  • Александр Котенков
  • Марина Егорова
  • Виталий Лутц
  • Ростислав Цайзер
  • Анна Иванова
  • Даниил Лоренц
  • Иван Кожин
  • Сергей Переслегин
  • Николай Переслегин
  • Валерий Каняшин
  • Полина Воеводина
  • Александр Самарин
  • Вера Бутко
  • Роман Леонидов
  • Андрей Чуйков
  • Евгений Новосадюк
  • Раис Баишев
  • Зураб Басария
  • Евгений Подгорнов
  • Станислав Белых
  • Антон Яр-Скрябин
  • Павел Андреев
  • Юлиана Княжевская
  • Тимур Абдуллаев
  • Екатерина Абдуллаева
  • Маргарита Авдышева
  • Левон Айрапетов
  • Александр Аношкин
  • Алексей Афоничкин
  • Владислав Бек-Булатов
  • Антон Белов
  • Татьяна Бузулукова
  • Петр Васильев
  • Алина Георгиевская
  • Павел Гордеев
  • Илья Гринберг
  • Никита Демидов
  • Никита Дергунов
  • Наталья Жилкина
  • Алексей Зародов
  • Екатерина Зырина
  • Алексей Ильин
  • Дарья Ильина
  • Олег Карлсон
  • Алексей Кибкало
  • Денис Кувшинников
  • Анна Куликова
  • Алексей Курков
  • Алексей Курков
  • Данил Куров
  • Евгений Кутай
  • Мария Кутай
  • Антон Ладыгин
  • Антон Ладыгин
  • Дмитрий Лапин
  • Борис Левянт
  • Катерина Левянт
  • Илья Левянт
  • Антон Лукомский
  • Валерий Лукомский
  • Екатерина Ляпунова
  • Сергей Марков
  • Николай Миловидов
  • Станислав Михаловский
  • Олеся Могилевская
  • Мария Николаева
  • Виктор Перов
  • Алексей Полищук
  • Роман Пономарёв
  • Валерия Преображенская
  • Виктория Раубо
  • Николай Рыбаков
  • Василий Рыбаков
  • Мария Салех
  • Александр Стариков
  • Илья Уткин
  • Дмитрий Шурыгин
  • Олег Шурыгин

Проект из каталога (случайный выбор)

Индивидуальный жилой дом, Антоновка
Арсений Леонович, Никита Токарев, 2007 – 2007
Индивидуальный жилой дом, Антоновка

Постройки и проекты (новые записи):

  • ЖК Лесное ожерелье
  • Клубный дом «Хамовники 12»
  • Усадьба «Павлово»
  • Проект общественно-делового комплекса у станции метро «Ботанический Сад» / Genpro
  • Проект общественно-делового комплекса у станции метро «Ботанический Сад» / UNK
  • Бизнес-центр «Триград»
  • БЦ в Раменках
  • Бизнес-центр (на месте ТЦ «Старт»)
  • DELO HOUSE 3.2 с флигелем

Новости российской архитектуры:

Форма радости
07.03.2026

Форма радости

Марат Мазур
Вторая жизнь гидроузла
07.03.2026

Вторая жизнь гидроузла

Эльвира Гришечкина
Орел или решка
05.03.2026

Орел или решка

Ксения Караваева, Мурат Гукетлов
Стены помогают
04.03.2026

Стены помогают

Андрей Михайлов, Сергей Никешкин