Архитектурно-планировочная концепция этнографического комплекса «Караван-Сарай». Визит-центр
© КБ-11
Архитектурно-планировочная концепция этнографического комплекса «Караван-Сарай»
информация:
-
статус
проект -
даты
01.2021 -
место
Новые Каратавлы Республика Башкортостан Салаватский район -
координаты
55.137276, 58.141876 -
функция
Ландшафт / Благоустройство территории
этнографический комплекс -
теги
send.project -
общая площадь
91 066 м2

Лейсян Азнабаева
РоссияКБ-11
Россияавторский коллектив
Лейсян Азнабаева,
ведущие архитекторы: Екатерина Кондрова, Элина Сахаутдинова
Визуализатор: Юлия Федяева
ведущие архитекторы: Екатерина Кондрова, Элина Сахаутдинова
Визуализатор: Юлия Федяева
партнеры, заказчики, смежники
Заказчик: Геопарк Янгантау
Архитектурно-планировочная концепция этнографического комплекса «Караван-Сарай». Визит-центр
© КБ-11
Архи.ру об этом объекте:
02.07.2025
Ворота в геопарк
Бюро «КБ-11» разработало концепцию этнографического комплекса для геопарка «Янган-Тау», расположенного в Республике Башкортостан. Природные объекты и ландшафты этой территории имеют международное геологическое значение и включены в список ЮНЕСКО, не менее значительны расположенные здесь памятники истории и культуры. Комплекс должен сделать место более привлекательным для туристов, местного населения и ученых.
Описание предоставлено архитекторами Заказчиком архитектурно-планировочной концепции этнографического комплекса Караван-Сарай выступил Геопарк Янгантау в Республике Башкортостан. На его территории расположены объекты международного значения: геоло... читать дальшеАрхитектурно-планировочная концепция этнографического комплекса «Караван-Сарай». Визит-центр
© КБ-11
история проекта:
Геопарк Янгантау. Этнографический комплекс один из объектов в системе объектов притяжения геопарка
описание:
Заказчиком проекта Архитектурно-планировочной концепции этнографического комплекса «Караван-Сарай» выступил Геопарк Янгантау, который представляет собой комплекс объектов геологического, биологического, исторического и культурного наследия, расположенный на территории Салаватского района Республики Башкортостан в Российской Федерации. На территории геопарка расположены геологические объекты международного значения: геологические разрезы Мечетлино, Большая Лука, Лаклы и гора Янгантау.
Для заказчика было важно сформировать на своей территории объекты привлекательные не только научной общественности, но и для туристов, местного населения. Объектом-аттрактором в мастер-плане Геопарка становится этнографический комплекс «Караван-Сарай», который включает в себя следующие локации: визит-центр, этнопарк и жилую зону.
По словам архитектора Элины Сахаутдиновой: “Концепция планировочного решения этнографического комплекса продолжает планировочную структуру деревни Новые Каратавлы. Таким образом, комплекс становится органическим продолжением уже сложившегося поселения.” Функциональные зоны четко выделяются, но при этом взаимно увязаны.
Архитектурная концепция визит-центра геопарка Янгантау
В архитектурной концепции визит-центра рассмотрены три основных слоя:
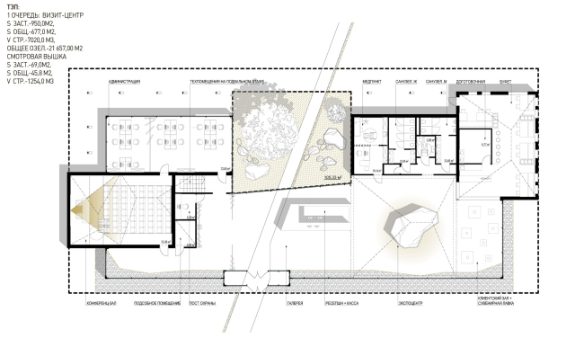
“Многообразие маршрутов геопарка отражено в сложной, но при этом открытой во все стороны света, планировочной структуре визит-центра. Этнические мотивы включены в отделку поверхностей стен. В планировочной организации центра можно также прочитать характерное устройство деревенских дворов.”- говорит архитектор Кондрова Екатерина. Арт-сооружение в виде смотровой вышки, организуемое поблизости со зданием визит-центра, станет одним из знаковых объектов этнопарка. Оно воплотит в себе образ горы Караул-Тау, соседствующей с хребтом Каратау. В старину местное население использовало ее для предупреждения жителей близлежащих деревень о приближении опасности, для этого на вершине горы разжигались костры. По этой же причине одна из скал самого хребта неслучайно называется Маяком». Функциональное наполнение визит-центра включает несколько основных зон: галерея, конференц-зал, буфет с доготовочной зоной, санузлы, медпункт, административный офис, внутренний двор, технические помещения. На территории визит-центра также располагаются: автостоянка, пункт проката (вело-роллеры, турснаряжение и т.п.), смотровая вышка Караул-Тау является архитектурной доминантой комплекса и делает его заметным со стороны дороги.
Архитектурно-планировочная концепция этнопарка
Из внутреннего двора визит-центра посетители попадают в зону этнопарка. Мир истории, легенд и сказаний, быта башкирского народа. В буферной зоне размещены: детская площадка, зона отдыха для родителей, напротив, инсталляция, изображающая пасущийся табун лошадей.
Тематическая детская площадка разыгрывается как мини-версия всего геопарка: здесь есть и имитация природного ландшафта с разными тактильными поверхностями (различные географические зоны), есть и зона раскопок, где дети могут в игре изучить археологические находки геопарка (аммониты и другие окаменелости в увеличенном размере), есть и этнографический слой, рассказывающий легенду об племени Айле. Род Айле делится на две группы именуемые Алтмыш-Колак и Кумый. Легенда о происхождении двух ветвей гласит, что один из внуков Айле которого звали Сайдаш как-то подстрелил на охоте тридцать оленей, а его сын Тиниш похитил уши этих оленей и спрятал. Поэтому Тиниша и его потомков стали называть «айлинец – Алтмыш-Колак (айлинец– шестьдесят ушей)» (Султангареева Р.А.). На площадке будут установлены коряги-лазалки в виде оленьих рогов, интерактивный, природный игровой элемент для средней возрастной группы. Для детей младшего возраста на площадке предусмотрен навес с песочницей.
Вход в следующую зону этнопарка обозначается в виде металлических ворот, на них вырезаны тамги родов: «Род – Ырыу, Клич – Оран, Птица -Ҡош, Агас – Дерево”.
Ворота – символическая граница между миром обыденным и миром истории, преданий, народного фольклора. Посетитель попадает на торгово-ремесленную улицу, которая состоит из ресторана национальной кухни; музея истории ремесел (ремесленные мастерские и лавки); музей башкирской национальной культуры и быта; променада с ярмарочной площадью, на завершении оси улицы располагается музей Истории религии (мечеть).
Музей истории ремесел – это музей под открытым небом. По обеим сторонам улицы располагаются стилизованные деревянные павильоны, в которых размещаются различные ремесленные мастерские. Для архитектора Сахаутдиновой Элины в этом объекте было важно совместить традиционные черты национальной архитектуры и модернистские принципы формообразования, современные элементы и материалы. Так в деревянном каркасе появляются стеклянные двери в алюминиевой раме, а кровля представляет собой пространственную конструкцию из отесанных бревен и монолитного поликарбоната.
Музей национальной башкирской культуры и быта помещается сразу после ремесленных мастерских по левой стороне улицы. Представляет собой традиционное башкирское подворье, которое включает в себя: дом с кумысодельней, двор, сарай с кроликами и овцами, конюшня с манежем. Комплекс подворья повторяет традиционную деревянную архитектуру Салаватского района, дает возможность посетителям окунуться в традиционный уклад башкирской семьи. Строение кузни выполняется из камня.
Архитектурно-планировочная концепция «жилой зоны»
На основе комплексного анализа данных о жилищах башкир, а также натурных исследований строения 18-го века (дом 1759 г. в Салаватском районе) сформирована планировочная ячейка – подворье, которая включает два типа гостевых домов. Дома рассчитаны на 2-х и 4-х местное размещение. “Композиция дома – собирательный образ традиционного башкирского деревянного дома, композиционных элементов юрты и современных модернистских включений. Необычная кровля, состоящая из двух частей аппелирует к характерной для Салаватского района 4-х скатной кровле, а с другой стороны метафорически изображает горные вершины диалогичные кровле визит-центра.” – рассказывает архитектор Сахаутдинова Элина.
Альтернативным видом проживания должен стать гостиничный блок «этнохостел». Его архитектурная композиция также продиктована сельской утилитарной архитектурой. В основу образа объемно-пространственного решения положена коровья ферма. Ее базиликальная форма архетипична, такой тип постройки можно встретить в культовой архитектуре Древнего Египта, средневековой Западной Европы и т.д. Базиликальную форму часто используют для утилитарных построек, так как она дает возможность расширить внутреннее пространства, не лишая его естественного освещения.
Важным аспектом проектирования является – экологическая устойчивость. В покрытиях применяются гравийные отсевы различных фракций, дощатые настилы из лиственницы, отсыпки, мульча и т.д. Материалы архитектурных объектов также соответствуют экологическим требованиям. Основной материал отделки – дерево, возобновляемый и вернакулярный, также используется металл и стекло.
Большое значение в проекте уделяется озеленению, на территории этнопарка и визит-центра предполагается размещение садов, с плодово-ягодными и декоративными культурами, характерными для этой садовых участков Салаватского района.
Фирменная навигация может служить дополнительным средством привлечения посетителей, проезжающих или проходящих мимо. Приветственная стела и остальные навигационные знаки могут стать фоном или объектом для фотографирования или видеосъемки и послужить распространению брендированного контента о территории.
Для заказчика было важно сформировать на своей территории объекты привлекательные не только научной общественности, но и для туристов, местного населения. Объектом-аттрактором в мастер-плане Геопарка становится этнографический комплекс «Караван-Сарай», который включает в себя следующие локации: визит-центр, этнопарк и жилую зону.
По словам архитектора Элины Сахаутдиновой: “Концепция планировочного решения этнографического комплекса продолжает планировочную структуру деревни Новые Каратавлы. Таким образом, комплекс становится органическим продолжением уже сложившегося поселения.” Функциональные зоны четко выделяются, но при этом взаимно увязаны.
Архитектурная концепция визит-центра геопарка Янгантау
В архитектурной концепции визит-центра рассмотрены три основных слоя:
- природные богатства геопарка;
- маршруты и направления геопарка;
- этнические особенности народа, исторически населяющего Салаватский район.
“Многообразие маршрутов геопарка отражено в сложной, но при этом открытой во все стороны света, планировочной структуре визит-центра. Этнические мотивы включены в отделку поверхностей стен. В планировочной организации центра можно также прочитать характерное устройство деревенских дворов.”- говорит архитектор Кондрова Екатерина. Арт-сооружение в виде смотровой вышки, организуемое поблизости со зданием визит-центра, станет одним из знаковых объектов этнопарка. Оно воплотит в себе образ горы Караул-Тау, соседствующей с хребтом Каратау. В старину местное население использовало ее для предупреждения жителей близлежащих деревень о приближении опасности, для этого на вершине горы разжигались костры. По этой же причине одна из скал самого хребта неслучайно называется Маяком». Функциональное наполнение визит-центра включает несколько основных зон: галерея, конференц-зал, буфет с доготовочной зоной, санузлы, медпункт, административный офис, внутренний двор, технические помещения. На территории визит-центра также располагаются: автостоянка, пункт проката (вело-роллеры, турснаряжение и т.п.), смотровая вышка Караул-Тау является архитектурной доминантой комплекса и делает его заметным со стороны дороги.
Архитектурно-планировочная концепция этнопарка
Из внутреннего двора визит-центра посетители попадают в зону этнопарка. Мир истории, легенд и сказаний, быта башкирского народа. В буферной зоне размещены: детская площадка, зона отдыха для родителей, напротив, инсталляция, изображающая пасущийся табун лошадей.
Тематическая детская площадка разыгрывается как мини-версия всего геопарка: здесь есть и имитация природного ландшафта с разными тактильными поверхностями (различные географические зоны), есть и зона раскопок, где дети могут в игре изучить археологические находки геопарка (аммониты и другие окаменелости в увеличенном размере), есть и этнографический слой, рассказывающий легенду об племени Айле. Род Айле делится на две группы именуемые Алтмыш-Колак и Кумый. Легенда о происхождении двух ветвей гласит, что один из внуков Айле которого звали Сайдаш как-то подстрелил на охоте тридцать оленей, а его сын Тиниш похитил уши этих оленей и спрятал. Поэтому Тиниша и его потомков стали называть «айлинец – Алтмыш-Колак (айлинец– шестьдесят ушей)» (Султангареева Р.А.). На площадке будут установлены коряги-лазалки в виде оленьих рогов, интерактивный, природный игровой элемент для средней возрастной группы. Для детей младшего возраста на площадке предусмотрен навес с песочницей.
Вход в следующую зону этнопарка обозначается в виде металлических ворот, на них вырезаны тамги родов: «Род – Ырыу, Клич – Оран, Птица -Ҡош, Агас – Дерево”.
Ворота – символическая граница между миром обыденным и миром истории, преданий, народного фольклора. Посетитель попадает на торгово-ремесленную улицу, которая состоит из ресторана национальной кухни; музея истории ремесел (ремесленные мастерские и лавки); музей башкирской национальной культуры и быта; променада с ярмарочной площадью, на завершении оси улицы располагается музей Истории религии (мечеть).
Музей истории ремесел – это музей под открытым небом. По обеим сторонам улицы располагаются стилизованные деревянные павильоны, в которых размещаются различные ремесленные мастерские. Для архитектора Сахаутдиновой Элины в этом объекте было важно совместить традиционные черты национальной архитектуры и модернистские принципы формообразования, современные элементы и материалы. Так в деревянном каркасе появляются стеклянные двери в алюминиевой раме, а кровля представляет собой пространственную конструкцию из отесанных бревен и монолитного поликарбоната.
Музей национальной башкирской культуры и быта помещается сразу после ремесленных мастерских по левой стороне улицы. Представляет собой традиционное башкирское подворье, которое включает в себя: дом с кумысодельней, двор, сарай с кроликами и овцами, конюшня с манежем. Комплекс подворья повторяет традиционную деревянную архитектуру Салаватского района, дает возможность посетителям окунуться в традиционный уклад башкирской семьи. Строение кузни выполняется из камня.
Архитектурно-планировочная концепция «жилой зоны»
На основе комплексного анализа данных о жилищах башкир, а также натурных исследований строения 18-го века (дом 1759 г. в Салаватском районе) сформирована планировочная ячейка – подворье, которая включает два типа гостевых домов. Дома рассчитаны на 2-х и 4-х местное размещение. “Композиция дома – собирательный образ традиционного башкирского деревянного дома, композиционных элементов юрты и современных модернистских включений. Необычная кровля, состоящая из двух частей аппелирует к характерной для Салаватского района 4-х скатной кровле, а с другой стороны метафорически изображает горные вершины диалогичные кровле визит-центра.” – рассказывает архитектор Сахаутдинова Элина.
Альтернативным видом проживания должен стать гостиничный блок «этнохостел». Его архитектурная композиция также продиктована сельской утилитарной архитектурой. В основу образа объемно-пространственного решения положена коровья ферма. Ее базиликальная форма архетипична, такой тип постройки можно встретить в культовой архитектуре Древнего Египта, средневековой Западной Европы и т.д. Базиликальную форму часто используют для утилитарных построек, так как она дает возможность расширить внутреннее пространства, не лишая его естественного освещения.
Важным аспектом проектирования является – экологическая устойчивость. В покрытиях применяются гравийные отсевы различных фракций, дощатые настилы из лиственницы, отсыпки, мульча и т.д. Материалы архитектурных объектов также соответствуют экологическим требованиям. Основной материал отделки – дерево, возобновляемый и вернакулярный, также используется металл и стекло.
Большое значение в проекте уделяется озеленению, на территории этнопарка и визит-центра предполагается размещение садов, с плодово-ягодными и декоративными культурами, характерными для этой садовых участков Салаватского района.
Фирменная навигация может служить дополнительным средством привлечения посетителей, проезжающих или проходящих мимо. Приветственная стела и остальные навигационные знаки могут стать фоном или объектом для фотографирования или видеосъемки и послужить распространению брендированного контента о территории.
Архитектурно-планировочная концепция этнографического комплекса «Караван-Сарай». Визит-центр. Визуализация внутреннего двора
© КБ-11
Архитектурно-планировочная концепция этнографического комплекса «Караван-Сарай». Визит-центр
© КБ-11
Архитектурно-планировочная концепция этнографического комплекса «Караван-Сарай». Визит-центр. Визуализация смотровой вышки
© КБ-11
Архитектурно-планировочная концепция этнографического комплекса «Караван-Сарай». Ворота
© КБ-11
Архитектурно-планировочная концепция этнографического комплекса «Караван-Сарай». Этнопарк. Гостевые дома
© КБ-11
Архитектурно-планировочная концепция этнографического комплекса «Караван-Сарай». Детская площадка Олень
© КБ-11
Архитектурно-планировочная концепция этнографического комплекса «Караван-Сарай». Музей истории ремесел
© КБ-11
Архитектурно-планировочная концепция этнографического комплекса «Караван-Сарай». Фестивальная зона
© КБ-11
Архитектурно-планировочная концепция этнографического комплекса «Караван-Сарай». Этнохостел
© КБ-11
Архитектурно-планировочная концепция этнографического комплекса «Караван-Сарай». Этнохостел
© КБ-11
Архитектурно-планировочная концепция этнографического комплекса «Караван-Сарай». Концепция формирования визит-центра
© КБ-11
Архитектурно-планировочная концепция этнографического комплекса «Караван-Сарай». Концепция формирования этнопарка. варианты планировок
© КБ-11
Архитектурно-планировочная концепция этнографического комплекса «Караван-Сарай». Концепция формирования этнопарка. Визуальные образы
© КБ-11
Архитектурно-планировочная концепция этнографического комплекса «Караван-Сарай». Выявление идентичности. Исторические образы
© КБ-11
Архитектурно-планировочная концепция этнографического комплекса «Караван-Сарай». Концепция формирования этнопарка. Навигация
© КБ-11
Архитектурно-планировочная концепция этнографического комплекса «Караван-Сарай». Генплан
© КБ-11
Архитектурно-планировочная концепция этнографического комплекса «Караван-Сарай». Функциональная схема
© КБ-11
Архитектурно-планировочная концепция этнографического комплекса «Караван-Сарай». Транспортно-пешеходная схема
© КБ-11
Архитектурно-планировочная концепция этнографического комплекса «Караван-Сарай». Визит-центр. Аксонометрия
© КБ-11
Архитектурно-планировочная концепция этнографического комплекса «Караван-Сарай». Визит-центр. План
© КБ-11
Архитектурно-планировочная концепция этнографического комплекса «Караван-Сарай». Инсталляция Табун лошадей. Концепция
© КБ-11
Архитектурно-планировочная концепция этнографического комплекса «Караван-Сарай». Гостевые дома. Аксонометрия
© КБ-11
Архитектурно-планировочная концепция этнографического комплекса «Караван-Сарай». Гостевой дом. Схема
© КБ-11
Архитектурно-планировочная концепция этнографического комплекса «Караван-Сарай». Детская площадка Олень. Концепция
© КБ-11
Архитектурно-планировочная концепция этнографического комплекса «Караван-Сарай». Музей истории ремесел. Аксонометрия
© КБ-11
Архитектурно-планировочная концепция этнографического комплекса «Караван-Сарай». Ремесленная мастерская. Схема
© КБ-11
Архитектурно-планировочная концепция этнографического комплекса «Караван-Сарай». Этнопарк. Гостевые дома
© КБ-11
Архитектурно-планировочная концепция этнографического комплекса «Караван-Сарай». Этнохостел. Аксонометрия
© КБ-11
Архитектурно-планировочная концепция этнографического комплекса «Караван-Сарай». Этнохостел. Планы
© КБ-11
Архитекторы – партнеры Архи.ру:
Проект из каталога (случайный выбор)

Наринэ Тютчева, 2017 – 2021
Музей Павла и Сергея Третьяковых в 1-м Голутвинском переулке: реставрация, приспособление и дизайн экспозиции
Постройки и проекты (новые записи):
Новости российской архитектуры:
22.10.2025
Острова и ножки
21.10.2025
Кто в Сити, кто в горы?
Сергей Скуратов21.10.2025