RSS
Пермская государственная художественная галерея
Фотография © Андрей Белимов-Гущин / предоставлена СПИЧ

Пермская государственная художественная галерея

скачать все изображения одним архивом

информация:

  • статус
    реализовано
  • даты
    20192020 / 03. 2021 — 12. 2025
  • место
    Пермь
    ул. Ленина, д. 64
  • функция
    Культурный / Музей
  • общая площадь
    21 639,14 м2
  • этажность
    5
  • Площадь экспозиционных залов – 4 600 м2
     
Сергей Чобан

Сергей Чобан

Sergei Tchoban / Россия
Игорь Членов

Игорь Членов

Igor Chlenov / Россия
Алексей Шубкин

Алексей Шубкин

Россия
СПИЧ

СПИЧ

SPEECH / Россия

Project Eleven

Project Eleven / Россия

авторский коллектив

Сергей Чобан, Игорь Членов, Алексей Шубкин

партнеры, заказчики, смежники

Интерьеры и экспозиции - Project Eleven
Пермская государственная художественная галерея
Фотография © Андрей Белимов-Гущин / предоставлена СПИЧ

Архи.ру об этом объекте:

17.04.2026

Алёна Кузнецова. Сокровища Пармы

Бюро СПИЧ Пермская художественная галерея

Рассказывая о Пермской художественной галерее Сергей Чобан подчеркивает, как важно для крупного культурного центра выглядеть уместным здания-иконы давно перестали работать, гораздо важнее обеспечить институцию и музейные объекты удобным пространств...   читать дальше
Пермская государственная художественная галерея
Фотография © Андрей Белимов-Гущин / предоставлена СПИЧ

описание:

Уникальность проекта, архитектура, технологические особенности:
Впервые за все время существования города Перми построено специальное здание для музея!

Проект создан архитектурным бюро СПИЧ, автор проекта – архитектор с мировым именем Сергей Чобан, который много работал с различными музеями – от Третьяковской галереи до музеев Берлина и Рима. Дизайном внутренних интерьеров и новых экспозиций занимались специалисты бюро Project Eleven.

Важно, что работа архитекторов и дизайнеров велась в соответствии с музейными требованиями и пожеланиями музейных специалистов, вплоть до расположения соседствующих помещений, всех конструктивных особенностей и тонкостей хранения различных материалов.

Внешний вид здания спроектирован с учетом индустриальной специфики места: архитектура сочетается с сохранившимися заводскими постройками, фасады из патинированной меди ассоциируются с историей медеплавильных заводов Перми, а разный уровень высотности здания перекликается с линией Уральских гор.

Архитектурный комплекс Пермской художественной галереи включает в себя новое здание и три восстановленные исторические постройки, объединенные крытыми переходами в композиционный ансамбль.

Благодаря проведенным восстановительным работам сохранен внешний облик исторических объектов – в одном из них разместится ресторан, во втором – административные помещения, в третьем – образовательный центр.

Новое здание галереи содержит 5 надземных этажей и 1 подземный. Этажи соединяют 9 лифтов, два из них панорамные.

Площадь нового здания составляет 21.6 тыс. кв. метров (в семь раз больше, чем было в Спасо-Преображенском соборе). Площадь экспозиционных залов – 4600 кв. м (в три раза больше, чем было в Спасо-Преображенском соборе).

Новое здание галереи оборудовано современной системой климат-контроля, обеспечивающей нормативную температуру и влажность; системой вентиляции и отопления; экспозиционные залы оснащены современным световым и выставочным оборудованием. Фойе, холлы и общественные пространства имеют панорамное остекление, через которое можно видеть набережную и реку Каму. В новом здании также созданы условия для посетителей с ограниченными возможностями здоровья.

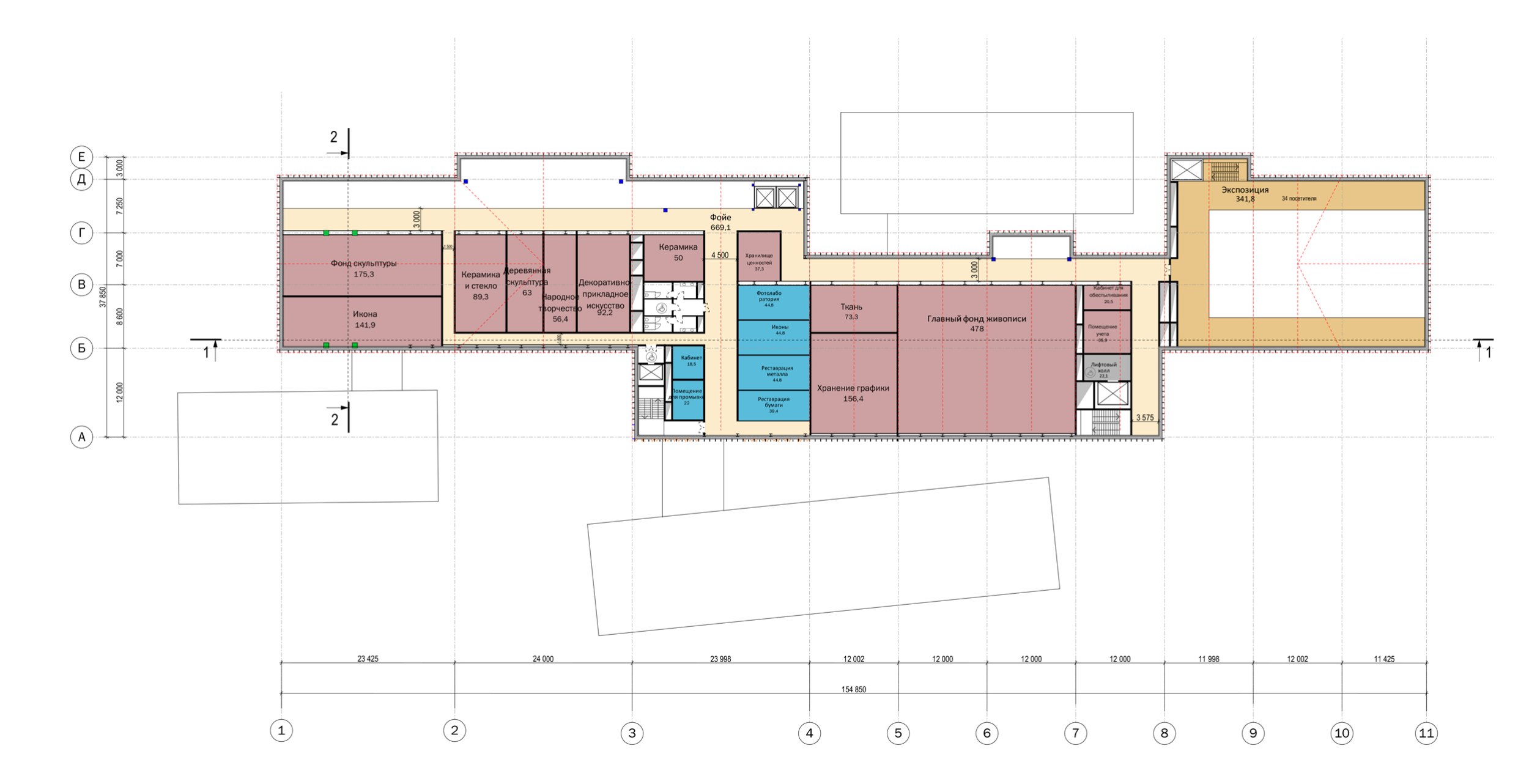
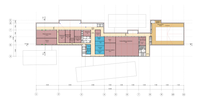
Функциональный состав нового здания:

Подземный этаж
Технические службы; помещения для инженерного оборудования

1 этаж
Фойе, гардероб, касса, музейный магазин, кофе-поинт, библиотека, архив, читальный зал, образовательный центр, зал временных выставок, лекционный зал, зоны доставки и разгрузки материалов и экспонатов, офисные помещения

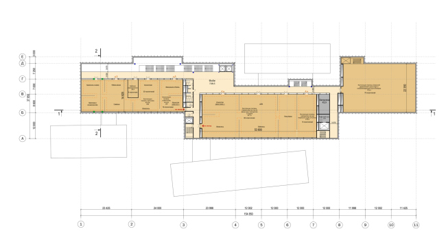
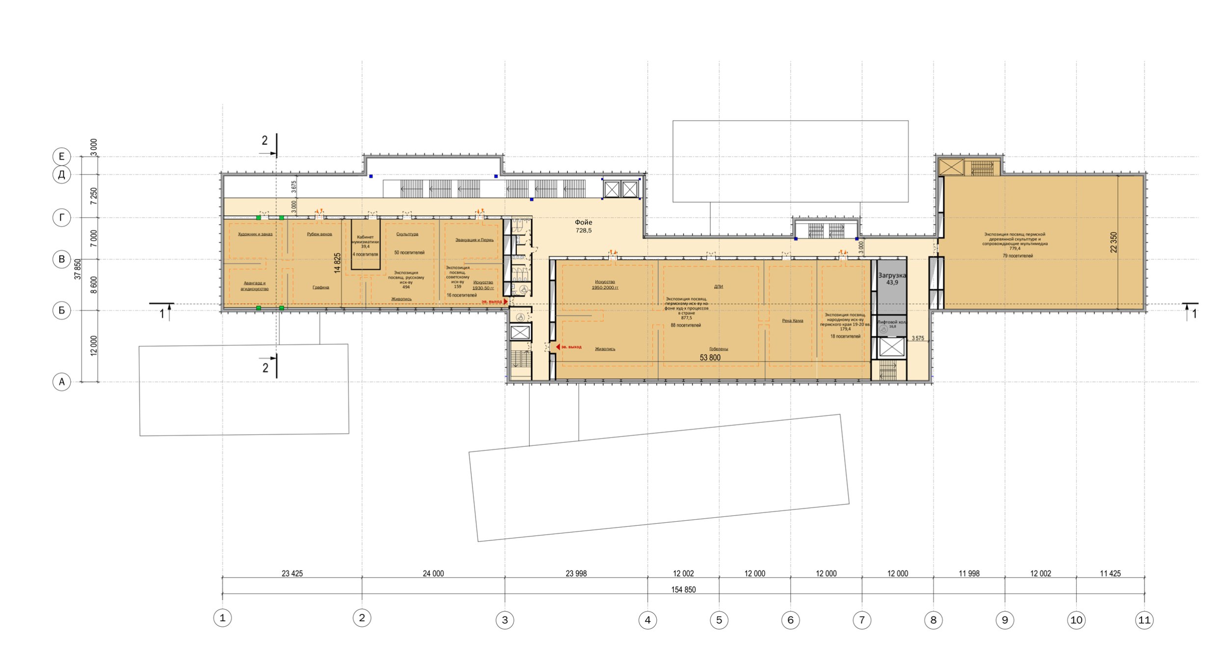
2 этаж
Залы постоянных экспозиций

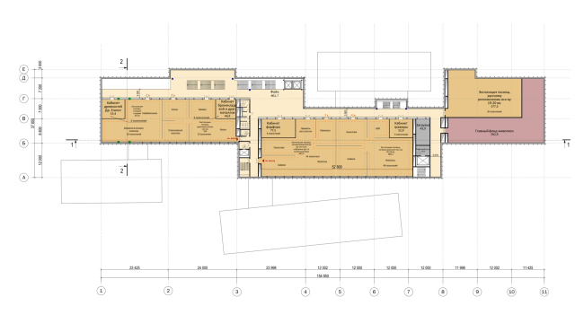
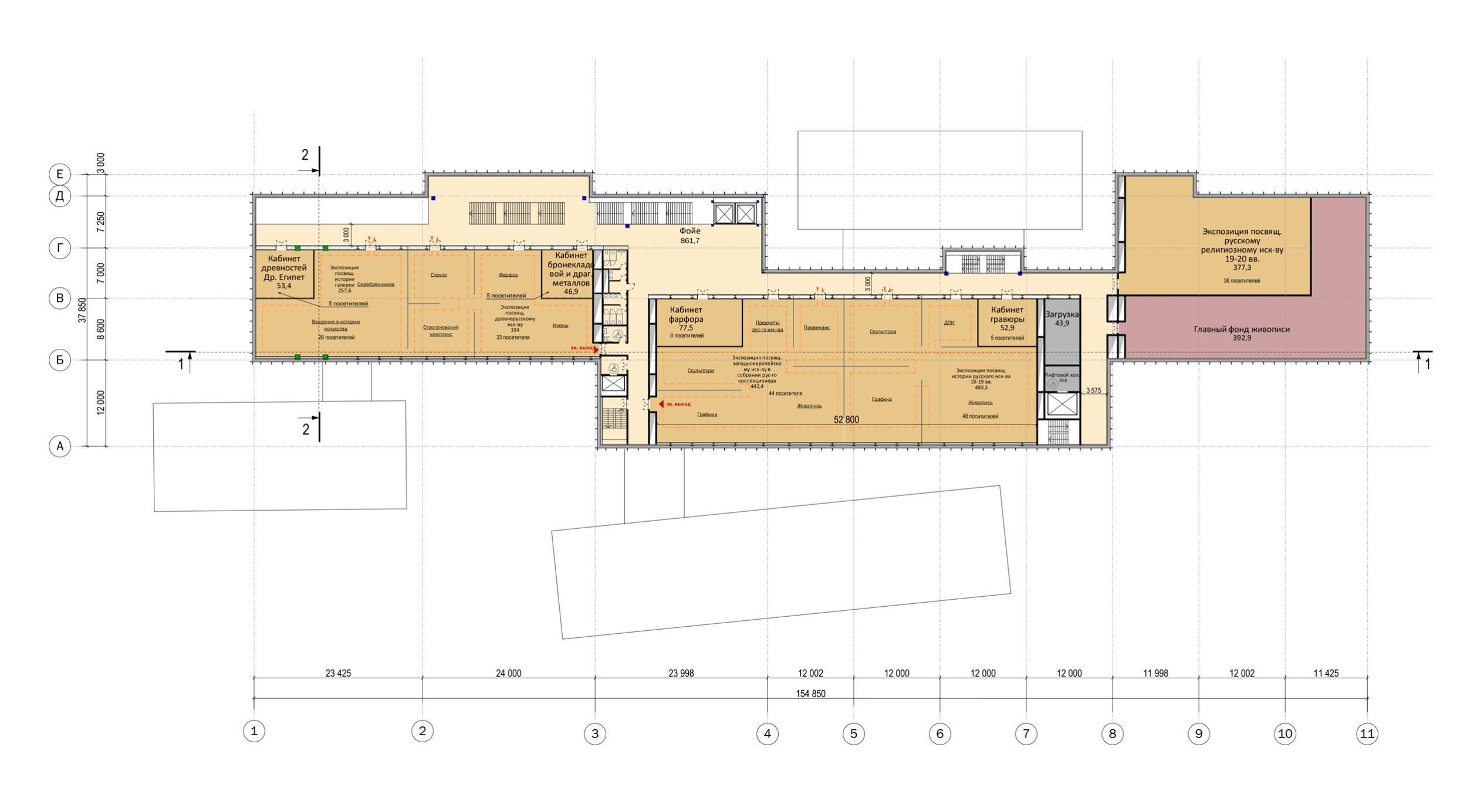
3 этаж
Залы постоянных экспозиций

4 этаж
Помещения хранения экспонатов, реставрационная мастерская

5 этаж (мансардный)
Реставрационная мастерская, фотолаборатория

О дизайне помещений:
Дизайнеры бюро Project Eleven для каждой экспозиции нашли интересные решения – с одной стороны, сохраняющие представление о классическом музее, с другой стороны, каждый отдел сделан по-своему, архитектурные, дизайнерские, интерьерные решения соответствуют тематике этого отдела.

В целом дизайнеры сохранили классическое анфиладное строение помещений, но «поиграли» с деталями – цветом, контурами, дверными проемами. Например, в отделе древнерусского искусства – купольные своды, полукруглые дверные проемы, отделка деревом. Залы искусства начала XX века оформлены с отсылкой к модернизму.

Архитектурные, дизайнерские, интерьерные решения зала для пермской деревянной скульптуры будто переносят зрителя в трехнефное храмовое пространство под купол собора. В просторном зале есть «выход в небо» – потолок из деревянных конструкций и стекла пропускает дневной свет и солнечные лучи. Поэтому там возможен почти театральный световой сценарий.

Новая экспозиция пермской деревянной скульптуры включает в себя более 150 экспонатов (примерно 30 % коллекции пермской деревянной скульптуры), что в 2 раза больше, чем в здании собора. Новая экспозиция представляет все этапы развития пермской храмовой резьбы – от ранних памятников конца XVII столетия до произведений рубежа XIX–XX веков. Также она полноценно представляет круг сюжетов православной скульптуры и ее стилистическое разнообразие.

В экспозицию включены не только широко известные экспонаты, но и произведения, которые находились в фондохранении и долгое время не были представлены публике.

В новом здании представлены следующие постоянные экспозиции:

  1. История галереи (сейчас стоит выставка «История строительства нового здания», позднее будет дополнена другими фактами из истории галереи)
  2. Русское православное искусство XV – начала XX веков. Строгановы и Пермский край
  3. Кабинет древностей
  4. Бронекладовая
  5. Западноевропейское искусство конца XV–XIX веков
  6. Галерея фарфора и стекла
  7. Отечественное искусство XVIII–XIX веков
  8. Отечественное искусство рубежа XIX–XX веков. Авангард
  9. Кабинет графики
  10. Отечественное искусство. 1917–1950-е (будет открыта к лету, сейчас идет проект «Распаковка»)
  11. Отечественное искусство. 1960–2000-е (будет открыта к лету, сейчас идет проект «Распаковка»)
  12. Народное искусство Прикамья (будет открыта к лету, сейчас идет выставка «Пермяк и Парма» – творчество Петра Субботина-Пермяка)
  13. Пермская деревянная скульптура
  14. Кабинет нумизматики
Пермская государственная художественная галерея
Фотография © Андрей Белимов-Гущин / предоставлена СПИЧ
Пермская государственная художественная галерея
Фотография © Андрей Белимов-Гущин / предоставлена СПИЧ
Пермская государственная художественная галерея
Фотография © Андрей Белимов-Гущин / предоставлена СПИЧ
Пермская государственная художественная галерея
Фотография © Андрей Белимов-Гущин / предоставлена СПИЧ
Пермская государственная художественная галерея
Фотография © Андрей Белимов-Гущин / предоставлена СПИЧ
Пермская государственная художественная галерея
Фотография © Андрей Белимов-Гущин / предоставлена СПИЧ
Пермская государственная художественная галерея
Фотография © Андрей Белимов-Гущин / предоставлена СПИЧ
Пермская государственная художественная галерея
Фотография © Андрей Белимов-Гущин / предоставлена СПИЧ
Пермская государственная художественная галерея
Фотография © Андрей Белимов-Гущин / предоставлена СПИЧ
Пермская государственная художественная галерея
Фотография © Андрей Белимов-Гущин / предоставлена СПИЧ
Пермская государственная художественная галерея
Фотография © Андрей Белимов-Гущин / предоставлена СПИЧ
Пермская государственная художественная галерея
Фотография © Андрей Белимов-Гущин / предоставлена СПИЧ
Пермская государственная художественная галерея
Фотография © Андрей Белимов-Гущин / предоставлена СПИЧ
Пермская государственная художественная галерея
Фотография © Андрей Белимов-Гущин / предоставлена СПИЧ
Пермская государственная художественная галерея
Фотография © Андрей Белимов-Гущин / предоставлена СПИЧ
Пермская государственная художественная галерея
Фотография © Андрей Белимов-Гущин / предоставлена СПИЧ
Пермская государственная художественная галерея
Фотография © Андрей Белимов-Гущин / предоставлена СПИЧ
Пермская государственная художественная галерея
Фотография © Андрей Белимов-Гущин / предоставлена СПИЧ
Пермская государственная художественная галерея
Фотография © Андрей Белимов-Гущин / предоставлена СПИЧ
Пермская государственная художественная галерея
Фотография © Андрей Белимов-Гущин / предоставлена СПИЧ
Пермская государственная художественная галерея
Фотография © Андрей Белимов-Гущин / предоставлена СПИЧ
Пермская государственная художественная галерея
Фотография © Андрей Белимов-Гущин / предоставлена СПИЧ
Пермская государственная художественная галерея
Фотография © Андрей Белимов-Гущин / предоставлена СПИЧ
Пермская государственная художественная галерея
Фотография © Андрей Белимов-Гущин / предоставлена СПИЧ
Пермская государственная художественная галерея
Фотография © Андрей Белимов-Гущин / предоставлена СПИЧ
Пермская государственная художественная галерея
Фотография © Андрей Белимов-Гущин / предоставлена СПИЧ
Пермская государственная художественная галерея
Фотография © Андрей Белимов-Гущин / предоставлена СПИЧ
Пермская государственная художественная галерея
Фотография © Андрей Белимов-Гущин / предоставлена СПИЧ
Пермская государственная художественная галерея
Фотография © Андрей Белимов-Гущин / предоставлена СПИЧ
Пермская государственная художественная галерея
Фотография © Андрей Белимов-Гущин / предоставлена СПИЧ
Пермская государственная художественная галерея
Фотография © Андрей Белимов-Гущин / предоставлена СПИЧ
Пермская государственная художественная галерея
Фотография © Андрей Белимов-Гущин / предоставлена СПИЧ
Пермская государственная художественная галерея
Фотография © Андрей Белимов-Гущин / предоставлена СПИЧ
Пермская государственная художественная галерея
Фотография © Андрей Белимов-Гущин / предоставлена СПИЧ
Пермская государственная художественная галерея
Фотография © Андрей Белимов-Гущин / предоставлена СПИЧ
Пермская государственная художественная галерея
Фотография © Андрей Белимов-Гущин / предоставлена СПИЧ
Пермская государственная художественная галерея
Фотография © Андрей Белимов-Гущин / предоставлена СПИЧ
Пермская государственная художественная галерея
Фотография © Андрей Белимов-Гущин / предоставлена СПИЧ
Пермская государственная художественная галерея
Фотография © Андрей Белимов-Гущин / предоставлена СПИЧ
Пермская государственная художественная галерея
Фотография © Андрей Белимов-Гущин / предоставлена СПИЧ
Пермская государственная художественная галерея
Фотография © Андрей Белимов-Гущин / предоставлена СПИЧ
Пермская государственная художественная галерея
Фотография © Андрей Белимов-Гущин / предоставлена СПИЧ
Пермская государственная художественная галерея
Фотография © Андрей Белимов-Гущин / предоставлена СПИЧ
Пермская государственная художественная галерея
Фотография © Андрей Белимов-Гущин / предоставлена СПИЧ
Пермская государственная художественная галерея
Фотография © Андрей Белимов-Гущин / предоставлена СПИЧ
Пермская государственная художественная галерея
Фотография © Андрей Белимов-Гущин / предоставлена СПИЧ
Пермская государственная художественная галерея
Фотография © Андрей Белимов-Гущин / предоставлена СПИЧ
Пермская государственная художественная галерея
Фотография © Андрей Белимов-Гущин / предоставлена СПИЧ
Пермская государственная художественная галерея
Фотография © Андрей Белимов-Гущин / предоставлена СПИЧ
Пермская государственная художественная галерея
Фотография © Андрей Белимов-Гущин / предоставлена СПИЧ
Пермская государственная художественная галерея
Фотография © Андрей Белимов-Гущин / предоставлена СПИЧ
Пермская государственная художественная галерея
Фотография © Андрей Белимов-Гущин / предоставлена СПИЧ
Пермская государственная художественная галерея
Фотография © Андрей Белимов-Гущин / предоставлена СПИЧ
Пермская государственная художественная галерея
Фотография © Андрей Белимов-Гущин / предоставлена СПИЧ
Пермская государственная художественная галерея
Фотография © Андрей Белимов-Гущин / предоставлена СПИЧ
Пермская государственная художественная галерея
Фотография © Андрей Белимов-Гущин / предоставлена СПИЧ
Пермская государственная художественная галерея
Фотография © Андрей Белимов-Гущин / предоставлена СПИЧ
Пермская государственная художественная галерея
Фотография © Андрей Белимов-Гущин / предоставлена СПИЧ
Пермская государственная художественная галерея
Фотография © Андрей Белимов-Гущин / предоставлена СПИЧ
Пермская государственная художественная галерея
Фотография © Андрей Белимов-Гущин / предоставлена СПИЧ
Пермская государственная художественная галерея
Фотография © Андрей Белимов-Гущин / предоставлена СПИЧ
Пермская государственная художественная галерея
Фотография © Андрей Белимов-Гущин / предоставлена СПИЧ
Пермская государственная художественная галерея
Фотография © Андрей Белимов-Гущин / предоставлена СПИЧ
Пермская государственная художественная галерея
Фотография © Андрей Белимов-Гущин / предоставлена СПИЧ
Пермская государственная художественная галерея
© СПИЧ
Пермская государственная художественная галерея
© СПИЧ
Пермская государственная художественная галерея
© СПИЧ
Пермская государственная художественная галерея. План 1 этажа
© СПИЧ
Пермская государственная художественная галерея. План 2 этажа
© СПИЧ
Пермская государственная художественная галерея. План 3 этажа
© СПИЧ
Пермская государственная художественная галерея
© СПИЧ
Пермская государственная художественная галерея
Фотография предоставлена пресс-службой Пермской галереи
Пермская государственная художественная галерея
Фотография предоставлена пресс-службой Пермской галереи
Пермская государственная художественная галерея
Фотография предоставлена пресс-службой Пермской галереи
Пермская государственная художественная галерея
Фотография предоставлена пресс-службой Пермской галереи
Пермская государственная художественная галерея
Фотография предоставлена пресс-службой Пермской галереи
Пермская государственная художественная галерея
Фотография предоставлена пресс-службой Пермской галереи

Сергей Чобан,

другие постройки:
  • Административный и общественно-деловой комплекс «Невская ратуша», Санкт-Петербург
  • ЖК City Bay. Квартал Atlantic, Москва
  • Музей «ЗИЛАРТ», Москва
  • ЖК Мангазея в Богородском, Москва
  • ЖК Монблан, Москва
  • Музейный комплекс в Басманном районе, Москва
  • МФК на Вишневой, Москва
  • Фасады нового здания Государственной Третьяковской галереи, Москва
  • DM Tower, Москва

Архитекторы – партнеры Архи.ру:

  • Татьяна Зульхарнеева
  • Николай Кикава
  • Николай Переслегин
  • Анастасия Абашева
  • Дмитрий Сухов
  • Юлия Солдатенкова
  • Владимир Плоткин
  • Михаил Давыдов
  • Александр Асадов
  • Юлиана Княжевская
  • Павел Андреев
  • Александр Скокан
  • Александр Котенков
  • Юлия Тряскина
  • Антон Яр-Скрябин
  • Наталия Шилова
  • Евгений Подгорнов
  • Владислав Андреев
  • Полина Воеводина
  • Юлий Борисов
  • Константин Ходнев
  • Михаил Канунников
  • Олег Мединский
  • Сергей Переслегин
  • Евгений Новосадюк
  • Дмитрий Остроумов
  • Андрей Михайлов
  • Сергей Скуратов
  • Андрей Романов
  • Андрей Асадов
  • Александра Кузьмина
  • Никита Явейн
  • Всеволод Медведев
  • Василий Крапивин
  • Георгий Трофимов
  • Марина Егорова
  • Олег Шапиро
  • Андрей Гнездилов
  • Елена Пучкова
  • Григорий Мустафин
  • Даниил Лоренц
  • Сергей Чобан
  • Сергей Кузнецов
  • Александр Самарин
  • Евгений Зеленов
  • Алексей Орлов
  • Раис Баишев
  • Антон Надточий
  • Илья Машков
  • Виталий Лутц
  • Игорь Шварцман
  • Дмитрий Буш
  • Зураб Басария
  • Валерий Каняшин
  • Дмитрий Ликин
  • Иван Кожин
  • Энди Сноу
  • Наталья Сидорова
  • Ерлан Бекмухамедов
  • Сергей Никешкин
  • Григориос Гавалидис
  • Вера Бутко
  • Степан Липгарт
  • Станислав Белых
  • Екатерина Кузнецова
  • Ростислав Цайзер
  • Игорь Членов
  • Сергей Труханов
  • Тимур Абдуллаев
  • Екатерина Абдуллаева
  • Маргарита Авдышева
  • Левон Айрапетов
  • Александр Аношкин
  • Алексей Афоничкин
  • Владислав Бек-Булатов
  • Антон Белов
  • Татьяна Бузулукова
  • Петр Васильев
  • Данило Вукосавлевич
  • Алина Георгиевская
  • Павел Гордеев
  • Илья Гринберг
  • Никита Демидов
  • Никита Дергунов
  • Наталья Жилкина
  • Алексей Зародов
  • Екатерина Зырина
  • Алексей Ильин
  • Дарья Ильина
  • Олег Карлсон
  • Алексей Кибкало
  • Денис Кувшинников
  • Анна Куликова
  • Алексей Курков
  • Данил Куров
  • Мария Кутай
  • Евгений Кутай
  • Иван Кычкин
  • Антон Ладыгин
  • Дмитрий Лапин
  • Борис Левянт
  • Илья Левянт
  • Катерина Левянт
  • Валерий Лукомский
  • Антон Лукомский
  • Екатерина Ляпунова
  • Сергей Марков
  • Елена Мерцалова
  • Николай Миловидов
  • Станислав Михаловский
  • Сергей Мичурин
  • Олеся Могилевская
  • Мария Николаева
  • Дмитрий Овчаров
  • Сергей Пергаев
  • Виктор Перов
  • Алексей Полищук
  • Роман Пономарёв
  • Валерия Преображенская
  • Виктория Раубо
  • Василий Рыбаков
  • Николай Рыбаков
  • Мария Салех
  • Александр Стариков
  • Илья Уткин
  • Елисей Чакан
  • Бориша Чорович
  • Олег Шурыгин
  • Дмитрий Шурыгин

Проект из каталога (случайный выбор)

Реконструкция здания бывшей фабрики-кухни на ул. Новокузнецкая
Георгий Трофимов, Николай Переслегин, Сергей Переслегин, 2014 – 2015
Реконструкция здания бывшей фабрики-кухни на ул. Новокузнецкая

Постройки и проекты (новые записи):

  • ЖК Ленинский проспект 59
  • Офис компании АльфаСтрахование
  • MIDITI
  • Офис компании Kept
  • Дом Спорта
  • Ежон Алтай
  • Freeform Home Design Challenge
  • Навесы Ленинградского вокзала
  • МФК Лотус

Новости российской архитектуры:

Маяк славы
16.04.2026

Маяк славы

Евгений Подгорнов
Теплый берег
15.04.2026

Теплый берег

Надежда Снигирёва
Жизнерадостный декаданс
14.04.2026

Жизнерадостный декаданс

Валерий Лизунов, Екатерина Агеева, Елизавета Трушина
Я в домике
14.04.2026

Я в домике

Юлий Борисов
Под знаком красного
14.04.2026

Под знаком красного

Дмитрий Овчаров, Елена Мерцалова

Технологии:

15.04.2026

Зеленые полимеры: эволюция фасадной теплоизоляции

Современная «зеленая архитектура» – это не только про озеленение крыш и солнечные батареи. В первую очередь, это про технологии, снижающие углеродный след здания. Ключевую роль здесь играют теплоизоляционные материалы (ТИМ), позволяющие радикально сократить потребление энергии. Пенополистирол, PIR и другие материалы, которые принято называть «зелеными полимерами» за их вклад в энергоэффективность, сегодня превратились в стандарт индустрии.
ПАО "СИБУР Холдинг"
15.04.2026

Пищевые производства: логистика и температура

Будучи одними из самых сложных объектов с точки зрения внутренней организации, пищевые производства требуют не просто размещения холодильных камер и цехов, а создания системы «климатических островов» внутри здания. Главная сложность возникает в зонах проемов в условиях интенсивного движения техники и персонала. Разбираем инженерные нюансы подбора оборудования, позволяющие обеспечить герметичность без потери энергоэффективности и удобства логистики.
Rotor
10.04.2026

Тепло и форма

Энергоэффективность сегодня – не враг архитектурной выразительности. Полимерные утеплители – ЭППС, ПИР, ППУ – берут на себя нагрузку, усадку и влагу, освобождая фасад от массивных наслоений. Какой материал выбрать для фундамента, фасада и кровли, чтобы сохранить и тепло, и чистоту линий – разбираем в обзоре.
01.04.2026

Угольная пыль вместо цемента

Ученые Пермского Политеха и УрФУ создали экологичный бетон с повышенной водостойкостью. В составе материала – тонкомолотые горелые породы, отравляющие экологию угледобывающих регионов.
31.03.2026

Материал с характером

За последние годы продажи металлических фасадных кассет в России выросли почти на 40 % – в сегментах бизнес и премиум всё активнее спрос на материалы, которые дают архитектору свободу работать с выразительной формой, не в ущерб безопасности и сроку службы фасада. Металлокассеты стали одним из главных ответов на этот запрос. Смотрим актуальные приёмы их применения на реализованных объектах от компании «Алкотек».
АЛКОТЕК
30.03.2026

Архитектура воздухообмена

В зданиях большого объема – от спортивных комплексов до производственных корпусов – формирование комфортного микроклимата связано с особыми инженерными задачами. Одной из ключевых становится организация циркуляции воздуха, позволяющая устранить температурное расслоение и обеспечить равномерные условия по всей высоте пространства.
Ветромастер
другие статьи