RSS
Бизнес-центр «РЕ:ПОРТ»
© KANVA Moscow

Бизнес-центр «РЕ:ПОРТ»

информация:

Андрей Волынцев
Анна Волынцева
Россия

авторский коллектив

Проектирование KANVA Moscow
Руководитель авторского коллектива – Андрей Волынцев; ГАП – Анна Волынцева; архитекторы – Сергей Павлов, Алексей Ковалев

Авторы архитектурной концепции:
А.В. Волынцев, А.Р. Асадов, С.А. Павлов, А.Л. Ковалев, А. Волынцева
 

партнеры, заказчики, смежники

Заказчик: PLUS Development

награды:

    Проект-номинант премии «Офисы Нового Поколения 2026»
Бизнес-центр «РЕ:ПОРТ»
© KANVA Moscow

Архи.ру об этом объекте:

22.05.2026

Хвост кометы

KANVA Moscow спроектировали 135-метровую башню бизнес-центра как композиционный акцент новой застройки Северного речного порта. Срезанный по всей высоте угол башни создает оригинальный образ то ли оригами, то ли пера, а может и кометы.

Северный речной порт застраивается плотно и высоко. Здесь не так важно, что ты сделал с формой башни горизонт будет закрыт соседними объёмами, а в случае с БЦ РЕ:ПОРТ хорошо считывается лишь угол. KANVA именно с этим углом и поработали серьёзно: ...   читать дальше
Бизнес-центр «РЕ:ПОРТ»
© KANVA Moscow

история проекта:

Концепция бизнес-центра класса А «РЕ:ПОРТ» была создана архитектурным бюро KANVA Moscow по заказу компании PLUS Development.

Бизнес-центр «РЕ:ПОРТ» является частью масштабного проекта по функциональной и визуальной трансформации территории Северного речного порта в Москве. В результате реализации разработанного городом мастер-плана, рассчитанного на ближайшее десятилетие, на месте этой бывшей промышленной зоны будет сформирован новый современный микрорайон с объектами жилого, коммерческого и социального назначения, а также обустроенной набережной, интегрированной в городскую ткань.
 

описание:

Бизнес-центр «РЕ:ПОРТ» задуман как визуальная и смысловая локальная доминанта. Его 135-метровая башня с устремлённым в небо «пером кометы» на фасаде станет выразительным ориентиром как со стороны акватории, так и со стороны уличной сети нового района.

Концептуальный облик здания сложился в результате анализа плотной застройки формирующегося квартала и осмысления его масштаба. В ответ на окружение с чёткой ортогональной структурой предложен объём с пластически развёрнутой геометрией. Расходящиеся по фасаду грани из стекла и металла создают эффект динамического витка.

Выразительная пластика поддержана характерным конструктивным решением. Наклонные колонны проходят по всей высоте здания, формируя непрерывный вертикальный конструктивный каркас, усиливающий динамичный силуэт башни.

«РЕ:ПОРТ» – это гибкое пространство работы и коммуникации. Панорамное остекление обеспечивает максимальную инсоляцию и визуальную связь с городом и рекой, снижая ощущение изолированности, характерное для офисных пространств.

Ключевым общественным элементом становится озеленённая терраса на покрытии стилобата над входной группой. Она формирует открытое пространство для встреч, неформального общения и отдыха, становясь «сердцем» комплекса. Таким образом, рабочая функция дополняется возможностью смены сценариев пребывания в пределах одного здания.

В результате «РЕ:ПОРТ» становится не только точкой притяжения деловой активности обновлённого района, но и архитектурным символом новой фазы развития территории Северного речного порта перехода от индустриального прошлого к открытой, динамичной и человекоориентированной городской среде. Здание объединяет в себе выразительную пластику, градостроительную значимость и продуманную функциональность, формируя современную модель офисной архитектуры, интегрированной в жизнь города.
 
Бизнес-центр «РЕ:ПОРТ»
© KANVA Moscow
Бизнес-центр «РЕ:ПОРТ»
© KANVA Moscow
Бизнес-центр «РЕ:ПОРТ»
© KANVA Moscow
Бизнес-центр «РЕ:ПОРТ»
© KANVA Moscow
Бизнес-центр «РЕ:ПОРТ»
© KANVA Moscow
Бизнес-центр «РЕ:ПОРТ»
© KANVA Moscow
Бизнес-центр «РЕ:ПОРТ»
© KANVA Moscow
Бизнес-центр «РЕ:ПОРТ»
© KANVA Moscow
Бизнес-центр «РЕ:ПОРТ»
© KANVA Moscow
Бизнес-центр «РЕ:ПОРТ»
© KANVA Moscow
Бизнес-центр «РЕ:ПОРТ»
© KANVA Moscow
Бизнес-центр «РЕ:ПОРТ»
© KANVA Moscow
Бизнес-центр «РЕ:ПОРТ»
© KANVA Moscow
Бизнес-центр «РЕ:ПОРТ»
© KANVA Moscow
Бизнес-центр «РЕ:ПОРТ»
© KANVA Moscow
Бизнес-центр «РЕ:ПОРТ»
© KANVA Moscow
Бизнес-центр «РЕ:ПОРТ»
© KANVA Moscow
Бизнес-центр «РЕ:ПОРТ»
© KANVA Moscow
Бизнес-центр «РЕ:ПОРТ»
© KANVA Moscow
Бизнес-центр «РЕ:ПОРТ»
© KANVA Moscow
Бизнес-центр «РЕ:ПОРТ»
© KANVA Moscow
Бизнес-центр «РЕ:ПОРТ»
© KANVA Moscow
Бизнес-центр «РЕ:ПОРТ»
© KANVA Moscow
Бизнес-центр «РЕ:ПОРТ»
© KANVA Moscow
Бизнес-центр «РЕ:ПОРТ»
© KANVA Moscow
Бизнес-центр «РЕ:ПОРТ». Формообразование
© KANVA Moscow
Бизнес-центр «РЕ:ПОРТ». Конструктивное решение
© KANVA Moscow
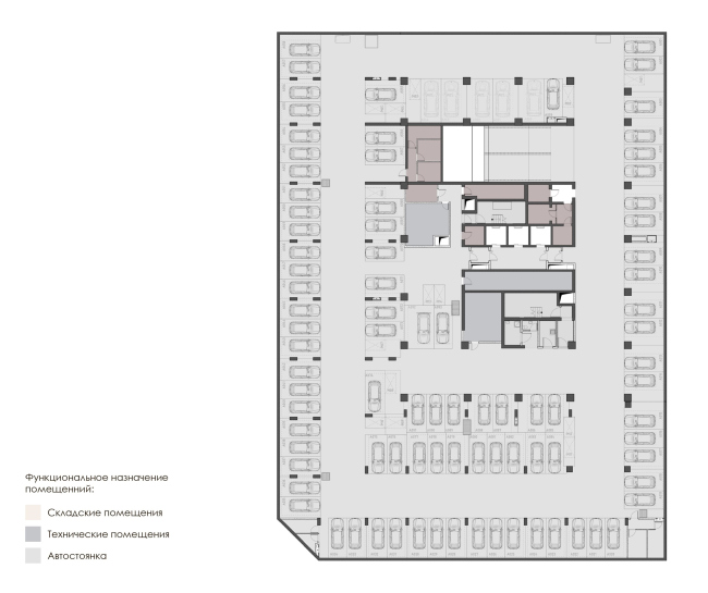
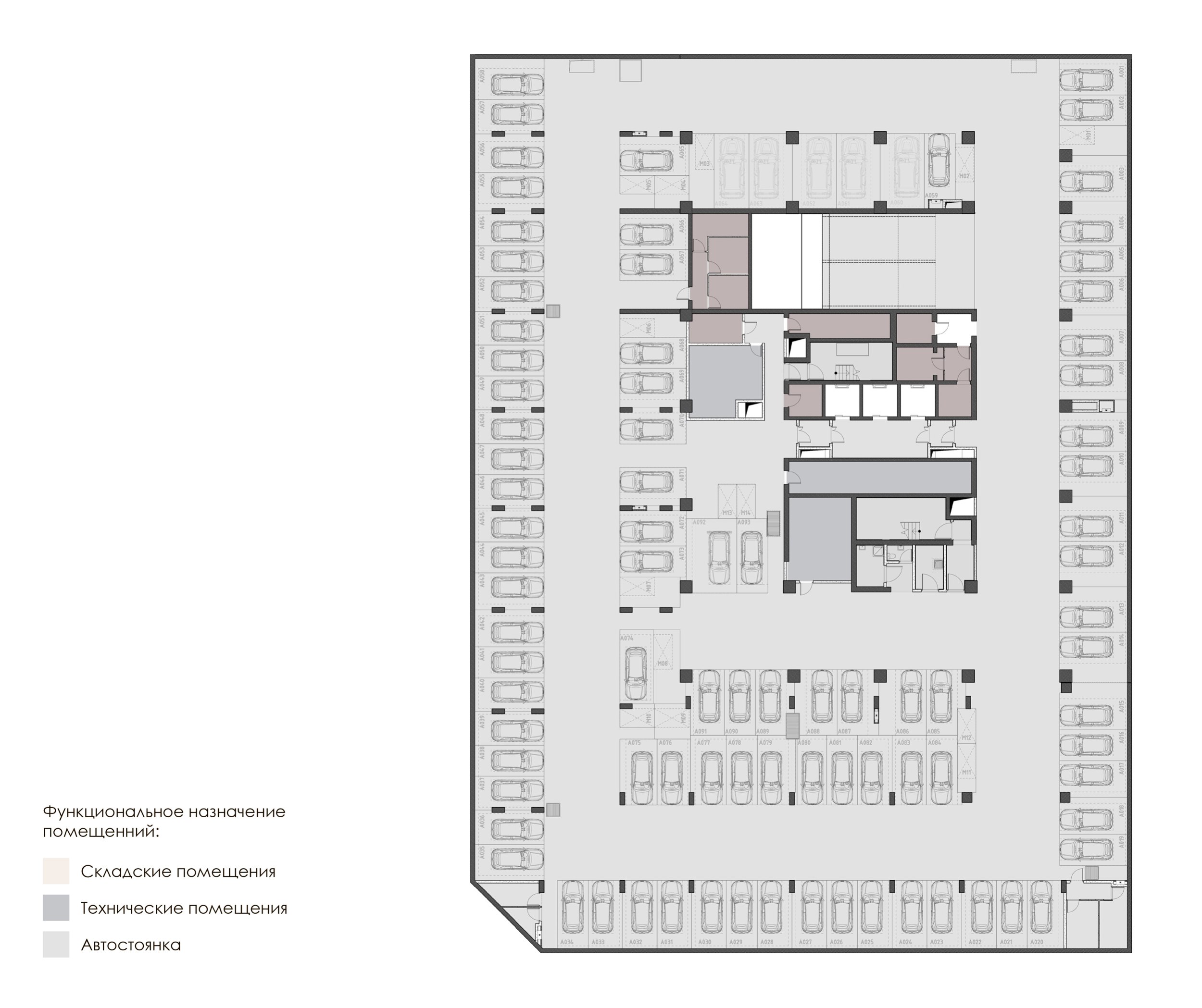
Бизнес-центр «РЕ:ПОРТ». План -3 этажа (парковка)
© KANVA Moscow
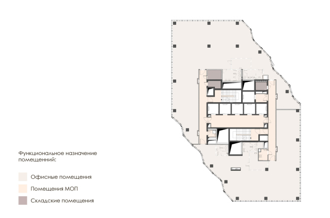
Бизнес-центр «РЕ:ПОРТ». План 1 этажа
© KANVA Moscow
Бизнес-центр «РЕ:ПОРТ». План 4 этажа
© KANVA Moscow
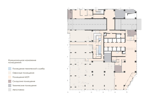
Бизнес-центр «РЕ:ПОРТ». План 17 этажа
© KANVA Moscow
Бизнес-центр «РЕ:ПОРТ». План 28 этажа
© KANVA Moscow

Архитекторы – партнеры Архи.ру:

  • Владислав Андреев
  • Сергей Труханов
  • Наталия Шилова
  • Игорь Членов
  • Татьяна Зульхарнеева
  • Григорий Мустафин
  • Григориос Гавалидис
  • Николай Кикава
  • Валерий Каняшин
  • Сергей Переслегин
  • Андрей Асадов
  • Александр Скокан
  • Павел Андреев
  • Всеволод Медведев
  • Ростислав Цайзер
  • Наталья Сидорова
  • Степан Липгарт
  • Андрей Романов
  • Сергей Кузнецов
  • Игорь Шварцман
  • Михаил Канунников
  • Дмитрий Буш
  • Андрей Михайлов
  • Андрей Гнездилов
  • Олег Мединский
  • Сергей Скуратов
  • Марина Егорова
  • Даниил Лоренц
  • Энди Сноу
  • Иван Кожин
  • Антон Надточий
  • Полина Воеводина
  • Александр Самарин
  • Зураб Басария
  • Дмитрий Ликин
  • Евгений Новосадюк
  • Никита Явейн
  • Александра Кузьмина
  • Виталий Лутц
  • Сергей Чобан
  • Александр Котенков
  • Михаил Давыдов
  • Борис Воскобойников
  • Станислав Белых
  • Константин Ходнев
  • Сергей Никешкин
  • Евгений Зеленов
  • Евгений Подгорнов
  • Георгий Трофимов
  • Юлий Борисов
  • Илья Машков
  • Антон Яр-Скрябин
  • Николай Переслегин
  • Анастасия Абашева
  • Ерлан Бекмухамедов
  • Юлия Солдатенкова
  • Юлия Тряскина
  • Александр Асадов
  • Вера Бутко
  • Елена Пучкова
  • Юлиана Княжевская
  • Владимир Плоткин
  • Мария Ахременкова
  • Екатерина Кузнецова
  • Дмитрий Сухов
  • Василий Крапивин
  • Олег Шапиро
  • Дмитрий Остроумов
  • Раис Баишев
  • Алексей Орлов
  • Тимур Абдуллаев
  • Екатерина Абдуллаева
  • Маргарита Авдышева
  • Левон Айрапетов
  • Александр Аношкин
  • Алексей Афоничкин
  • Владислав Бек-Булатов
  • Антон Белов
  • Татьяна Бузулукова
  • Петр Васильев
  • Данило Вукосавлевич
  • Андрей Вырва
  • Алина Георгиевская
  • Павел Гордеев
  • Илья Гринберг
  • Никита Демидов
  • Никита Дергунов
  • Наталья Жилкина
  • Алексей Зародов
  • Екатерина Зырина
  • Алексей Ильин
  • Дарья Ильина
  • Олег Карлсон
  • Алексей Кибкало
  • Денис Кувшинников
  • Анна Куликова
  • Алексей Курков
  • Данил Куров
  • Мария Кутай
  • Евгений Кутай
  • Иван Кычкин
  • Антон Ладыгин
  • Дмитрий Лапин
  • Илья Левянт
  • Катерина Левянт
  • Борис Левянт
  • Валерий Лукомский
  • Антон Лукомский
  • Екатерина Ляпунова
  • Иса Магомедов
  • Сергей Марков
  • Елена Мерцалова
  • Николай Миловидов
  • Станислав Михаловский
  • Сергей Мичурин
  • Олеся Могилевская
  • Филипп Никандров
  • Мария Николаева
  • Дмитрий Овчаров
  • Сергей Пергаев
  • Виктор Перов
  • Алексей Полищук
  • Роман Пономарёв
  • Валерия Преображенская
  • Виктория Раубо
  • Василий Рыбаков
  • Николай Рыбаков
  • Мария Салех
  • Александр Стариков
  • Илья Уткин
  • Елисей Чакан
  • Евгения Чернышева
  • Бориша Чорович
  • Олег Шурыгин
  • Дмитрий Шурыгин

Проект из каталога (случайный выбор)

Постройки и проекты (новые записи):

  • Павильон  Идеал
  • Флагманская кофейня Дринкит
  • Гостиница в Чите
  • ЖК Квартал 64
  • Деловое пространство «ПЛЭЙН»
  • Конкурсный проект ФИЦ / ТПО «Резерв»
  • Porta
  • Детский сад на 200 мест в Жилино-1
  • Архитектурная концепция кластера Ломоносов-2

Новости российской архитектуры: