RSS
Детский сад в ЖК Грин парк
Фотография © Серафима Тельканова / предоставлена ПИК-МЕНЕДЖЕМНТ

Детский сад в ЖК Грин парк

информация:

  • статус
    реализовано
  • даты
    20192021 / 20222025
  • region= area= address=ул. Олонецкая, д. 2А country_t=Россия city_t=Москва
    место
    Москва ул. Олонецкая, д. 2А
  • координаты
    55.851091, 37.620968
  • функция
    Образование и наука / Детский сад
  • теги
    send.project
  • площадь участка
    0,5019 га
  • площадь застройки
    1 448,5 м2
  • площадь подземная
    353,7 м2
  • общая площадь
    3 737,5 м2
  • высота
    15,23
  • этажность
    3
  • другие объекты
    2015
    ЖК Green Park
Ольга Алексакова
Юлия Бурдова
BuroMoscow / Россия

авторский коллектив

Руководители мастерской – Ольга Алексакова, Юлия Бурдова; ГИП – Тимур Магичев; Серафима Тельканова, Ольга Власенко, Наиля Сабирова, Полина Минина, Илья Некрасов, Алена Гук, Павел Бенько, Анна Ягубская

партнеры, заказчики, смежники

Заказчик: ПИК-МЕНЕДЖЕМНТ
Детский сад в ЖК Грин парк
Фотография © Серафима Тельканова / предоставлена ПИК-МЕНЕДЖЕМНТ

Архи.ру об этом объекте:

18.03.2026

Ячейка и кривуля

Детский сад, построенный по проекту BuroMoscow в столичном ЖК Грин парк, удачно балансирует между языком модернизма и эстетикой сделанного цветными карандашами рисунка. Кубический объем с регулярной фасадной сеткой отсылает к сортеру – развивающей игрушке, помогающей в числе прочего почувствовать форму. Роль объемных фигурок для сортировки играют залы, которые выбиваются из общей матрицы и делают элегантные фасады чуть менее серьезными. Яркий цвет этих залов сообщает нежный рефлекс помещениям холлов и групповых комнат, преимущественно белых. Среди других находок: отсутствие забора, встроенные в фасад скамейки и кадки для цветов, деревянные створки на панорамных окнах.

Описание предоставлено архитекторами Здание устроено по принципу сортера детской игрушки, в которую малыши помещают разноцветные детали разных форм. В центре здания расположена закрытая скульптурная лестница нежно-голубого цвета с фонарем в кровле...   читать дальше
Детский сад в ЖК Грин парк
Фотография © Серафима Тельканова / предоставлена ПИК-МЕНЕДЖЕМНТ

описание:

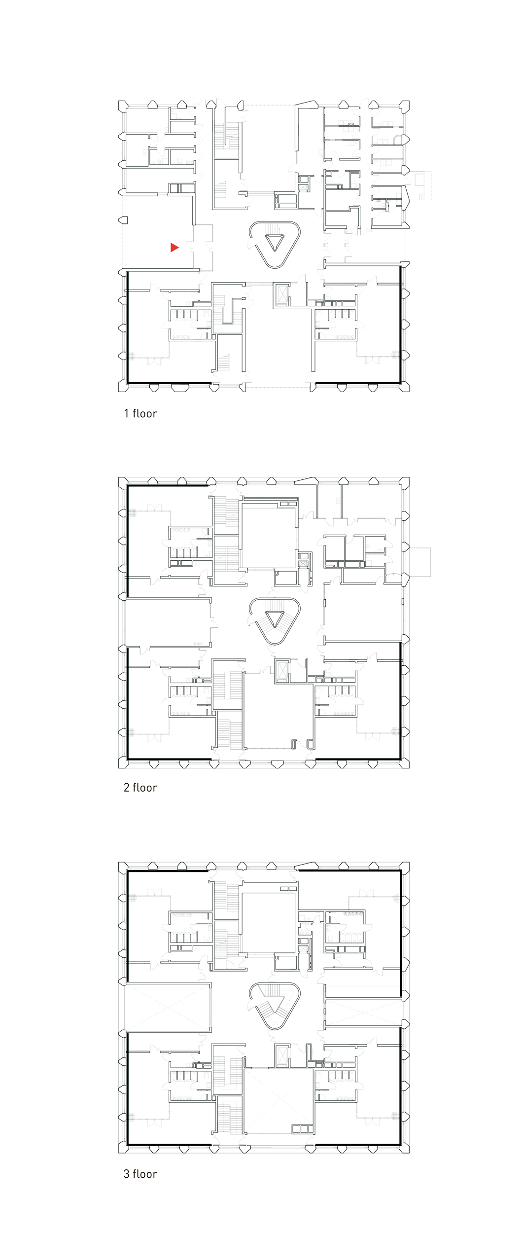
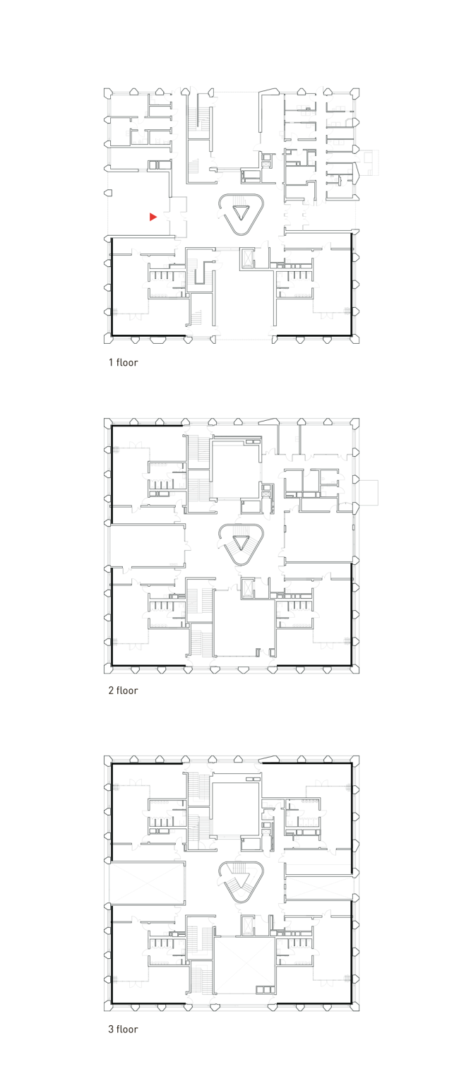
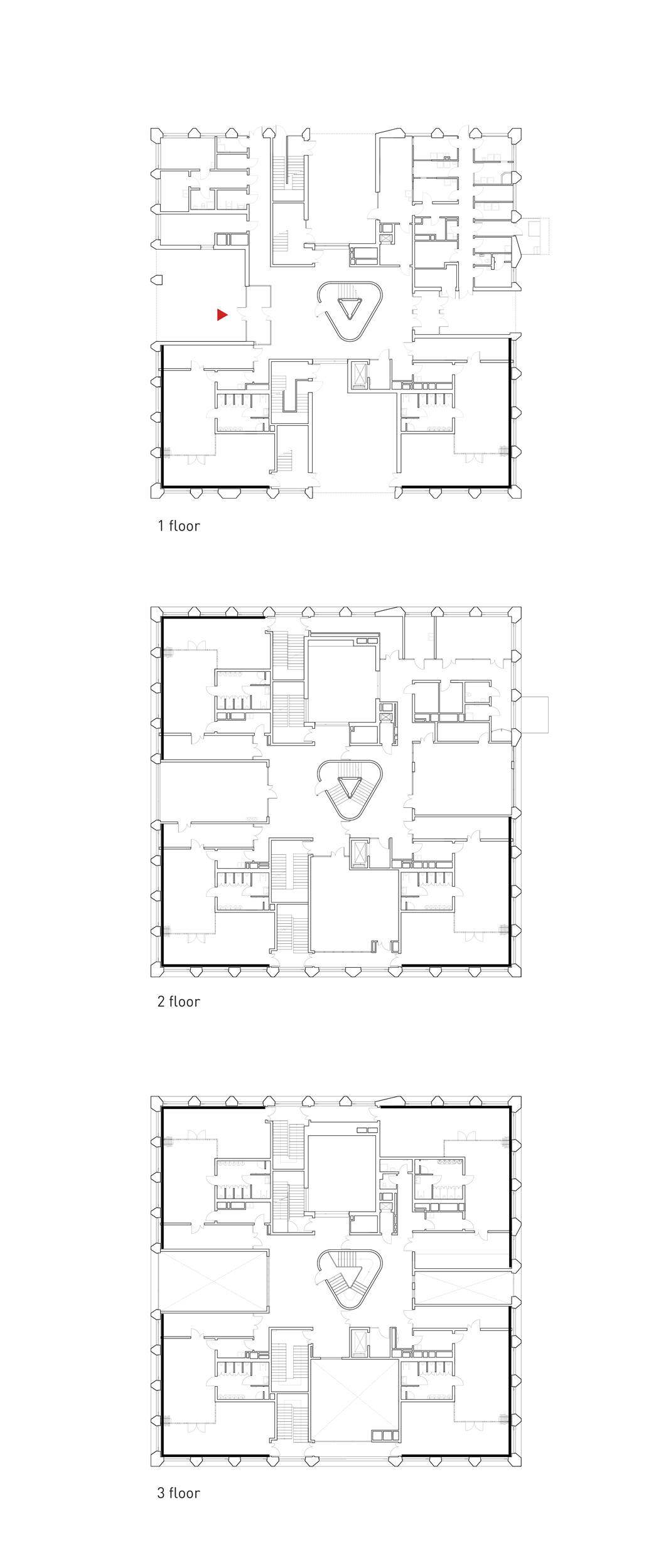
СОРТЕР
Здание как игрушка

Сортер – детская игрушка в форме куба, в который помещаются разноцветные детали разных форм.

В центре здания расположена закрытая скульптурная лестница нежно-голубого цвета с фонарем в кровле, связывающая все уровни. К лестнице примыкают двухсветные объемы залов. Это пространства с особыми функциями: желтая кружковая, зеленый театральный зал, розовый спортзал и оранжевый дворик.
Каждый зал – уникальная цветная форма.

Угловые группы + специализированные кружковые

Групповые расположены по углам здания так, чтобы у детей было максимальное количество дневного света и видов на родной район. Грин Парк воистину прекрасен: здание детского сада находится на центральном бульваре, связывающем все дома так, что практически отовсюду можно безопасно дойти до сада, не встретив ни одной машины. Спокойный белый интерьер групповых перемежается яркими объемами залов.

Сетка фасада и «кривули»

Главный вход расположен прямо на бульваре, без обычного забора перед зданием. Вход утоплен в объем здания, так что можно подождать под крышей, слезть с самоката, открыть зонтик.

Фасад здания – регулярная сетка, ритм которой нарушают формы уникальных залов: спортзал с волнообразным сводом, двусветный прямоугольник кружковой, узкое окно театрального зала.

В оранжевый дворик выходят окна общего холла – он дает дополнительный оранжевый свет внутри. За вентфасадом с перфорацией в виде крестиков-ноликов располагаются блоки кондиционирования, а в вечернее время включается подсветка.

Белый цвет органично вписывается в окружающую белую застройку района.
Фасад облицован алюминиевыми панелями Cladding Solutions цвета Nefeli Silver White 3L. Их особенность – серебристо-белый оттенок с эффектом хамелеона: он меняет цвет в зависимости от угла обзора и освещения. Строгость белого металла компенсируется теплом деревянных оконных рам – это огромные беспереплетные окна с глухими деревянными створками.

Zoom in: к скамейкам

Первый этаж по периметру используется максимально – здание мягко и функционально встречается с землей. В проемы встроены цветочные кадки на внешнем периметре, выходящем на улицу, и скамейки и лесенки на внутреннем, выходящем во двор сада.

Внутри – белое и цветное

Отсвет от залов наполняет белые пространства холлов здания и меняется в течение дня в зависимости от погоды и сезона. В групповых цветной остается лишь графика – остальное заполнят цветом дети и игрушки.

Групповые с графикой

Интерьеры – результат долгих поисков и ручной работы с коллажами и графикой.

Детский сад в ЖК Грин парк
Фотография © Серафима Тельканова / предоставлена ПИК-МЕНЕДЖЕМНТ
Детский сад в ЖК Грин парк
Фотография © Серафима Тельканова / предоставлена ПИК-МЕНЕДЖЕМНТ
Детский сад в ЖК Грин парк
Фотография © Серафима Тельканова / предоставлена ПИК-МЕНЕДЖЕМНТ
Детский сад в ЖК Грин парк
Фотография © Серафима Тельканова / предоставлена ПИК-МЕНЕДЖЕМНТ
Детский сад в ЖК Грин парк
Фотография © Серафима Тельканова / предоставлена ПИК-МЕНЕДЖЕМНТ
Детский сад в ЖК Грин парк
Фотография © Серафима Тельканова / предоставлена ПИК-МЕНЕДЖЕМНТ
Детский сад в ЖК Грин парк
Фотография © Серафима Тельканова / предоставлена ПИК-МЕНЕДЖЕМНТ
Детский сад в ЖК Грин парк
Фотография © Серафима Тельканова / предоставлена ПИК-МЕНЕДЖЕМНТ
Детский сад в ЖК Грин парк
Фотография © Серафима Тельканова / предоставлена ПИК-МЕНЕДЖЕМНТ
Детский сад в ЖК Грин парк
Фотография © Серафима Тельканова / предоставлена ПИК-МЕНЕДЖЕМНТ
Детский сад в ЖК Грин парк
Фотография © Серафима Тельканова / предоставлена ПИК-МЕНЕДЖЕМНТ
Детский сад в ЖК Грин парк
Фотография © Серафима Тельканова / предоставлена ПИК-МЕНЕДЖЕМНТ
Детский сад в ЖК Грин парк
Фотография © Серафима Тельканова / предоставлена ПИК-МЕНЕДЖЕМНТ
Детский сад в ЖК Грин парк
Фотография © Серафима Тельканова / предоставлена ПИК-МЕНЕДЖЕМНТ
Детский сад в ЖК Грин парк
Фотография © Серафима Тельканова / предоставлена ПИК-МЕНЕДЖЕМНТ
Детский сад в ЖК Грин парк
Фотография © Серафима Тельканова / предоставлена ПИК-МЕНЕДЖЕМНТ
Детский сад в ЖК Грин парк
Фотография © Серафима Тельканова / предоставлена ПИК-МЕНЕДЖЕМНТ
Детский сад в ЖК Грин парк
Фотография © Серафима Тельканова / предоставлена ПИК-МЕНЕДЖЕМНТ
Детский сад в ЖК Грин парк
Фотография © Серафима Тельканова / предоставлена ПИК-МЕНЕДЖЕМНТ
Детский сад в ЖК Грин парк
Фотография © Серафима Тельканова / предоставлена ПИК-МЕНЕДЖЕМНТ
Детский сад в ЖК Грин парк
Фотография © Серафима Тельканова / предоставлена ПИК-МЕНЕДЖЕМНТ
Детский сад в ЖК Грин парк
Фотография © Серафима Тельканова / предоставлена ПИК-МЕНЕДЖЕМНТ
Детский сад в ЖК Грин парк
Фотография © Серафима Тельканова / предоставлена ПИК-МЕНЕДЖЕМНТ
Детский сад в ЖК Грин парк
Фотография © Серафима Тельканова / предоставлена ПИК-МЕНЕДЖЕМНТ
Детский сад в ЖК Грин парк
Фотография © Серафима Тельканова / предоставлена ПИК-МЕНЕДЖЕМНТ
Детский сад в ЖК Грин парк
Фотография © Серафима Тельканова / предоставлена ПИК-МЕНЕДЖЕМНТ
Детский сад в ЖК Грин парк
Фотография © Серафима Тельканова / предоставлена ПИК-МЕНЕДЖЕМНТ
Детский сад в ЖК Грин парк
Фотография © Серафима Тельканова / предоставлена ПИК-МЕНЕДЖЕМНТ
Детский сад в ЖК Грин парк
Фотография © Серафима Тельканова / предоставлена ПИК-МЕНЕДЖЕМНТ
Детский сад в ЖК Грин парк
Фотография © Серафима Тельканова / предоставлена ПИК-МЕНЕДЖЕМНТ
Детский сад в ЖК Грин парк
Фотография © Серафима Тельканова / предоставлена ПИК-МЕНЕДЖЕМНТ
Детский сад в ЖК Грин парк
Фотография © Серафима Тельканова / предоставлена ПИК-МЕНЕДЖЕМНТ
Детский сад в ЖК Грин парк
Фотография © Серафима Тельканова / предоставлена ПИК-МЕНЕДЖЕМНТ
Детский сад в ЖК Грин парк
Фотография © Серафима Тельканова / предоставлена ПИК-МЕНЕДЖЕМНТ
Детский сад в ЖК Грин парк
Фотография © Серафима Тельканова / предоставлена ПИК-МЕНЕДЖЕМНТ
Детский сад в ЖК Грин парк
Фотография © Серафима Тельканова / предоставлена ПИК-МЕНЕДЖЕМНТ
Детский сад в ЖК Грин парк
Фотография © Серафима Тельканова / предоставлена ПИК-МЕНЕДЖЕМНТ
Детский сад в ЖК Грин парк
Фотография © Серафима Тельканова / предоставлена ПИК-МЕНЕДЖЕМНТ
Детский сад в ЖК Грин парк
Фотография © Серафима Тельканова / предоставлена ПИК-МЕНЕДЖЕМНТ
Детский сад в ЖК Грин парк
© BuroMoscow
Детский сад в ЖК Грин парк
© BuroMoscow
Детский сад в ЖК Грин парк
© BuroMoscow
Детский сад в ЖК Грин парк
© BuroMoscow
Детский сад в ЖК Грин парк
© BuroMoscow
Детский сад в ЖК Грин парк
© BuroMoscow
Детский сад в ЖК Грин парк
© BuroMoscow
Детский сад в ЖК Грин парк
© BuroMoscow
Детский сад в ЖК Грин парк
© BuroMoscow

Архитекторы – партнеры Архи.ру:

  • Андрей Гнездилов
  • Елена Пучкова
  • Иван Кожин
  • Олег Мединский
  • Александра Кузьмина
  • Владислав Андреев
  • Раис Баишев
  • Наталья Сидорова
  • Антон Яр-Скрябин
  • Вера Бутко
  • Дмитрий Остроумов
  • Игорь Членов
  • Антон Надточий
  • Марина Егорова
  • Олег Шапиро
  • Александр Скокан
  • Юлия Тряскина
  • Дмитрий Сухов
  • Всеволод Медведев
  • Андрей Асадов
  • Наталия Шилова
  • Игорь Шварцман
  • Александр Котенков
  • Михаил Давыдов
  • Евгений Новосадюк
  • Екатерина Кузнецова
  • Юлий Борисов
  • Станислав Белых
  • Энди Сноу
  • Константин Ходнев
  • Григориос Гавалидис
  • Андрей Михайлов
  • Василий Крапивин
  • Степан Липгарт
  • Александр Асадов
  • Сергей Кузнецов
  • Борис Воскобойников
  • Сергей Переслегин
  • Мария Ахременкова
  • Дмитрий Буш
  • Никита Явейн
  • Алексей Орлов
  • Михаил Канунников
  • Полина Воеводина
  • Сергей Скуратов
  • Виталий Лутц
  • Григорий Мустафин
  • Ростислав Цайзер
  • Татьяна Зульхарнеева
  • Юлиана Княжевская
  • Владимир Плоткин
  • Александр Самарин
  • Евгений Подгорнов
  • Павел Андреев
  • Сергей Чобан
  • Сергей Никешкин
  • Валерий Каняшин
  • Евгений Зеленов
  • Николай Кикава
  • Анастасия Абашева
  • Дмитрий Ликин
  • Юлия Солдатенкова
  • Илья Машков
  • Сергей Труханов
  • Георгий Трофимов
  • Андрей Романов
  • Николай Переслегин
  • Зураб Басария
  • Ерлан Бекмухамедов
  • Даниил Лоренц
  • Тимур Абдуллаев
  • Екатерина Абдуллаева
  • Маргарита Авдышева
  • Левон Айрапетов
  • Александр Аношкин
  • Алексей Афоничкин
  • Владислав Бек-Булатов
  • Антон Белов
  • Татьяна Бузулукова
  • Петр Васильев
  • Данило Вукосавлевич
  • Алина Георгиевская
  • Павел Гордеев
  • Илья Гринберг
  • Никита Демидов
  • Никита Дергунов
  • Наталья Жилкина
  • Алексей Зародов
  • Екатерина Зырина
  • Алексей Ильин
  • Дарья Ильина
  • Олег Карлсон
  • Алексей Кибкало
  • Денис Кувшинников
  • Анна Куликова
  • Алексей Курков
  • Данил Куров
  • Мария Кутай
  • Евгений Кутай
  • Иван Кычкин
  • Антон Ладыгин
  • Дмитрий Лапин
  • Борис Левянт
  • Илья Левянт
  • Катерина Левянт
  • Валерий Лукомский
  • Антон Лукомский
  • Екатерина Ляпунова
  • Иса Магомедов
  • Сергей Марков
  • Елена Мерцалова
  • Николай Миловидов
  • Станислав Михаловский
  • Сергей Мичурин
  • Олеся Могилевская
  • Филипп Никандров
  • Мария Николаева
  • Дмитрий Овчаров
  • Сергей Пергаев
  • Виктор Перов
  • Алексей Полищук
  • Роман Пономарёв
  • Валерия Преображенская
  • Виктория Раубо
  • Василий Рыбаков
  • Николай Рыбаков
  • Мария Салех
  • Александр Стариков
  • Илья Уткин
  • Елисей Чакан
  • Бориша Чорович
  • Олег Шурыгин
  • Дмитрий Шурыгин

Проект из каталога (случайный выбор)

Проект павильона России на EXPO 2010 в Шанхае
Алексей Горяинов, Михаил Крымов, 2008 – 2008
Проект павильона России на EXPO 2010 в Шанхае

Постройки и проекты (новые записи):

  • Детский сад на 200 мест в Жилино-1
  • Архитектурная концепция кластера Ломоносов-2
  • Клубный дом в 1-м Казачьем переулке
  • Частный дом в Ленинградской области
  • IT-кластер TravelLine в Йошкар-Оле
  • Гостиничный комплекс Cosmos Selection Derbent 5
  • Офис компании АльфаСтрахование
  • MIDITI
  • Офис компании Kept

Новости российской архитектуры:

Звенья одной цепи
30.04.2026

Звенья одной цепи

Александр Федотов, Глеб Кожевников, Бокейхан Камза, Евгений Волков
IAD Awards 2026
29.04.2026

IAD Awards 2026