RSS
Клубный дом в Столярном переулке
© KPLN («Крупный план»)

Клубный дом в Столярном переулке

информация:

  • статус
    проект
  • даты
    2024
  • region= area= address=Столярный переулок, 6 country_t=Россия city_t=Москва
    место
    Москва Столярный переулок, 6
  • функция
    Жилой / клубный дом
  • общая площадь
    20 432, 06 м2
  • площадь жилая
    12 205 м2
  • кол-во машиномест
    120
Андрей Михайлов
Сергей Никешкин

авторский коллектив

Сергей Никешкин, Евгений Железко, Мария Сурова, Константин Кузнецов

Клубный дом в Столярном переулке
© KPLN («Крупный план»)
Клубный дом в Столярном переулке
© KPLN («Крупный план»)

описание:

Клубный дом в Столярном переулке: переосмысление руста в историческом контексте Москвы
Архитектурное решение основано на реинтерпретации приемов сталинского ампира и псевдорусского стиля в сложном историческом окружении.

Ступенчато–пирамидальный объем с ритмичным горизонтальным рустом – ключевая тема проекта архитектурного бюро «Крупный план» (KPLN). Ключевой прием – эволюция формы: от ярко выраженной, тектоничной рустовки в нижней части к ее постепенному сглаживанию и облегчению в верхних этажах. Ритмичные горизонтальные элементы фасада с острым профилем отсылают к классической алмазной рустовке, но решены в современном, минималистичном ключе.

Объемно–пространственная композиция сформирована как реакция на контекст. Скругление угла обращено в сторону здания Государственного биологического музея имени Климента Аркадьевича Тимирязева. Смещение этажных плит по вертикали создает ритмичный силуэт, обеспечивает образование террас и визуально выделяет парадный вход.

Масштаб и пластика фасада рассчитаны на гармоничное включение в существующую линию застройки, которая включает Римско–католический собор в неоготическом стиле, здание музея, комплекс фабрики «Мюр и Мерилиз» и современный квартал «Рассвет».
Входная зона решена как полностью остекленный объем, визуально отделяющий рустованный цоколь от основного массива здания. В интерьерах общественных пространств транслируют код архитектурного окружения: рельефная символика, элементы сводов и пол из терраццо считываются как мотивы Римско–католического собора. Из лобби запланирован доступ в жилые блоки с панорамным остеклением, в приватный двор и подземный паркинг.

Материальное решение фасадов включает натуральный песчаник, стемалит и витражное бесцветное остекление.

Жилой комплекс отмечен золотым знаком Союза архитекторов России на XXXII Международном архитектурном фестивале «Зодчество» в номинации «Многоквартирные жилые здания».

Клубный дом в Столярном переулке
© KPLN («Крупный план»)
Клубный дом в Столярном переулке
© KPLN («Крупный план»)
Клубный дом в Столярном переулке
© KPLN («Крупный план»)
Клубный дом в Столярном переулке
© KPLN («Крупный план»)
Клубный дом в Столярном переулке
© KPLN («Крупный план»)
Клубный дом в Столярном переулке. Схема принципа формообразования
© KPLN («Крупный план»)
Клубный дом в Столярном переулке. Генеральный план
© KPLN («Крупный план»)
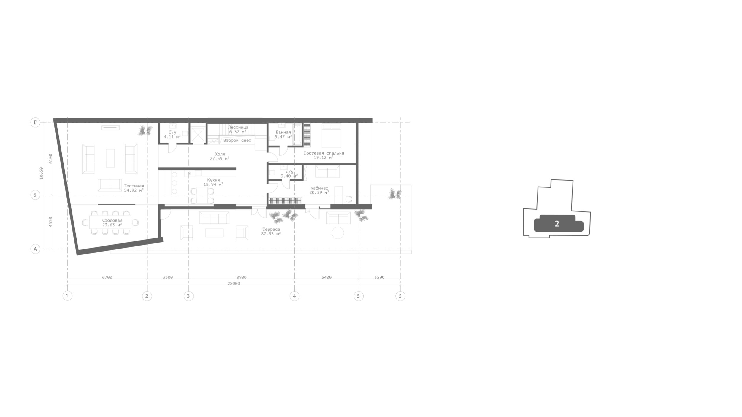
Клубный дом в Столярном переулке. План 2 этажа
© KPLN («Крупный план»)
Клубный дом в Столярном переулке. План 7 этажа
© KPLN («Крупный план»)
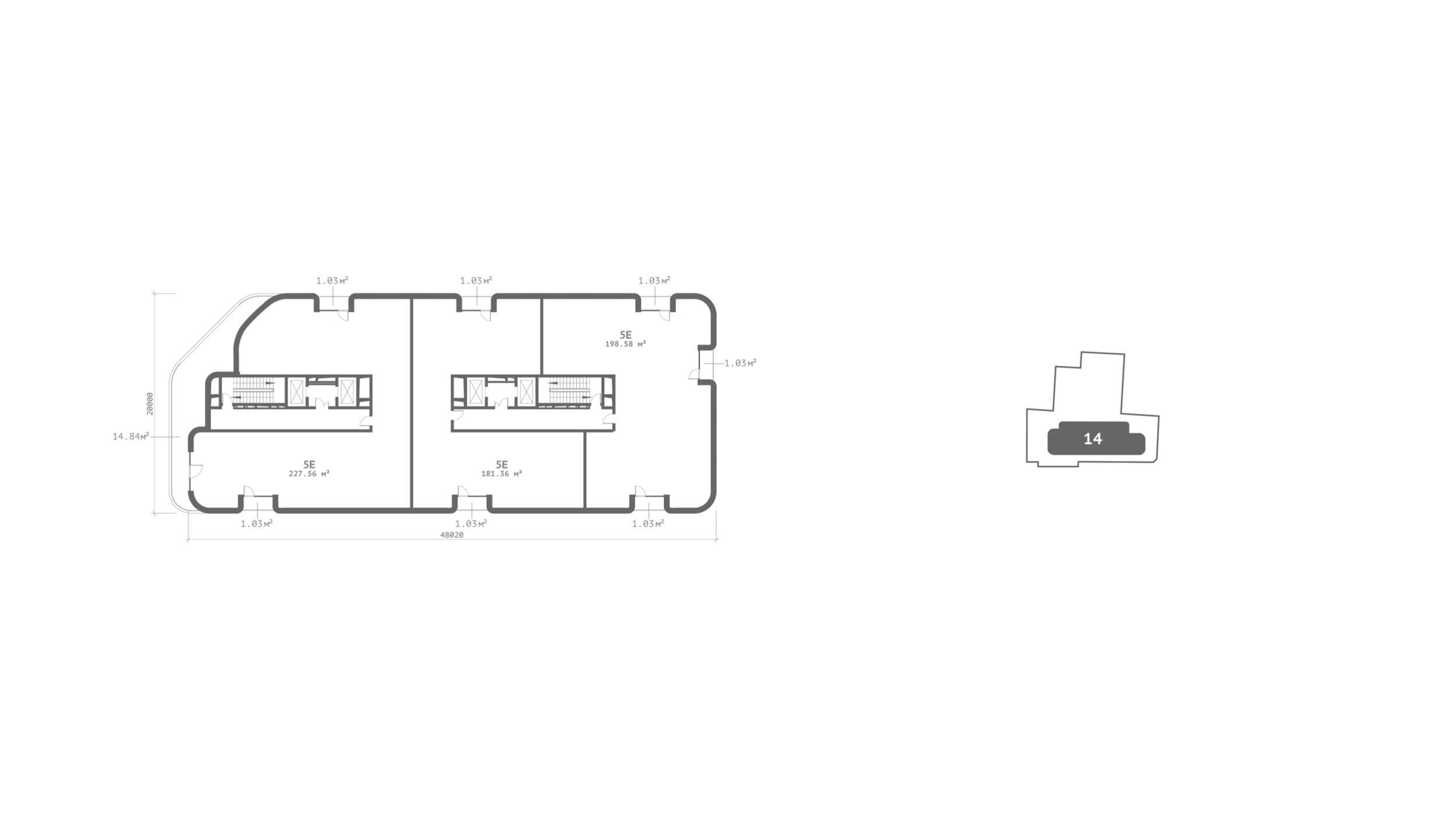
Клубный дом в Столярном переулке. План 14 этажа
© KPLN («Крупный план»)
Клубный дом в Столярном переулке. Разрез 1-1
© KPLN («Крупный план»)

Архитекторы – партнеры Архи.ру:

  • Игорь Шварцман
  • Алексей Орлов
  • Юлиана Княжевская
  • Евгений Зеленов
  • Александр Котенков
  • Павел Андреев
  • Наталья Сидорова
  • Зураб Басария
  • Марина Егорова
  • Константин Ходнев
  • Евгений Новосадюк
  • Дмитрий Остроумов
  • Михаил Канунников
  • Олег Шапиро
  • Анна Иванова
  • Ростислав Цайзер
  • Антон Надточий
  • Олег Мединский
  • Сергей Труханов
  • Сергей Чобан
  • Илья Машков
  • Станислав Белых
  • Наталия Шилова
  • Николай Переслегин
  • Александр Асадов
  • Дмитрий Буш
  • Никита Явейн
  • Михаил Давыдов
  • Алексей Гинзбург
  • Юлия Тряскина
  • Владимир Плоткин
  • Степан Липгарт
  • Сергей Скуратов
  • Юлий Борисов
  • Александр Скокан
  • Вера Бутко
  • Василий Крапивин
  • Сергей Кузнецов
  • Татьяна Зульхарнеева
  • Григориос Гавалидис
  • Юлия Солдатенкова
  • Сергей Переслегин
  • Николай Кикава
  • Андрей Асадов
  • Владислав Андреев
  • Дмитрий Сухов
  • Роман Леонидов
  • Валерий Каняшин
  • Андрей Чуйков
  • Даниил Лоренц
  • Екатерина Кузнецова
  • Всеволод Медведев
  • Сергей Никешкин
  • Григорий Мустафин
  • Иван Кожин
  • Елена Пучкова
  • Дмитрий Ликин
  • Андрей Романов
  • Энди Сноу
  • Александр Самарин
  • Евгений Подгорнов
  • Виталий Лутц
  • Раис Баишев
  • Игорь Членов
  • Ерлан Бекмухамедов
  • Георгий Трофимов
  • Андрей Михайлов
  • Андрей Гнездилов
  • Александра Кузьмина
  • Антон Яр-Скрябин
  • Полина Воеводина
  • Анастасия Абашева
  • Тимур Абдуллаев
  • Екатерина Абдуллаева
  • Маргарита Авдышева
  • Левон Айрапетов
  • Александр Аношкин
  • Алексей Афоничкин
  • Владислав Бек-Булатов
  • Антон Белов
  • Татьяна Бузулукова
  • Петр Васильев
  • Алина Георгиевская
  • Павел Гордеев
  • Илья Гринберг
  • Никита Демидов
  • Никита Дергунов
  • Наталья Жилкина
  • Алексей Зародов
  • Екатерина Зырина
  • Алексей Ильин
  • Дарья Ильина
  • Олег Карлсон
  • Алексей Кибкало
  • Денис Кувшинников
  • Анна Куликова
  • Алексей Курков
  • Алексей Курков
  • Данил Куров
  • Евгений Кутай
  • Мария Кутай
  • Антон Ладыгин
  • Антон Ладыгин
  • Дмитрий Лапин
  • Борис Левянт
  • Катерина Левянт
  • Илья Левянт
  • Антон Лукомский
  • Валерий Лукомский
  • Екатерина Ляпунова
  • Сергей Марков
  • Николай Миловидов
  • Станислав Михаловский
  • Олеся Могилевская
  • Мария Николаева
  • Виктор Перов
  • Алексей Полищук
  • Роман Пономарёв
  • Валерия Преображенская
  • Виктория Раубо
  • Василий Рыбаков
  • Мария Салех
  • Александр Стариков
  • Илья Уткин
  • Дмитрий Шурыгин
  • Олег Шурыгин

Проект из каталога (случайный выбор)

Постройки и проекты (новые записи):

  • Проект общественно-делового комплекса у станции метро «Ботанический Сад» / Genpro
  • Проект общественно-делового комплекса у станции метро «Ботанический Сад» / UNK
  • БЦ в Раменках
  • Бизнес-центр (на месте ТЦ «Старт»)
  • DELO HOUSE 3.2 с флигелем
  • Ледовый дворец Navka Arena
  • Благоустройство территории ЖК Holms Residence
  • Игровое пространство у театра им. Г.К. Камала
  • Вторая ось

Новости российской архитектуры:

Потенциальные примечательности. Обзор проектов 16–22 февраля 2026
22.02.2026

Потенциальные примечательности. Обзор проектов 16–22 февраля 2026

Евгений Зеленов, Юлий Борисов, Амир Идиатулин, Николай Гордюшин, Александр Аношкин, Мария Салех, Никита Дергунов
Визуальная чистота
20.02.2026

Визуальная чистота

Александр Жидков, Михаил Гуманков
Кирпичная вуаль
20.02.2026

Кирпичная вуаль

Айк Навасардян, Рубен Аракелян