RSS
Многофункциональный кинопавильон полного цикла
© АБ База 14

Многофункциональный кинопавильон полного цикла

информация:

  • статус
    проект
  • даты
    2023
  • region= area= address=Автодорожный округ, квартал 68 country_t=Россия city_t=Якутск
    место
    Якутск Автодорожный округ, квартал 68
  • координаты
    62.007092, 129.704385
  • функция
    Культурный / Культурный центр

    Многофункциональный кинопавильон: актерский комплекс, большой павильон для съемок, цех декоративно-технических сооружений, малый павильон, столовая-ресторан, выставка и склад съемочного реквизита, офисно-студийный комплекс, склад оборудования и аппаратуры, цех киносъемочной техники

  • теги
    send.project
  • площадь участка
    8,23 га
  • площадь застройки
    11 330 м2
  • общая площадь
    26 441,30 м2
  • этажность
    12
  • строительный объем
    235 362 м3
  • Павильонный блок – 7013,60 м2
    Основной блок – 18245,70 м2
    Инженерно-хозяйственный блок – 1182,00 м2
  • кол-во машиномест
    10
Мария Скрябина
Россия

авторский коллектив

Руководитель авторского коллектива – Мария Скрябина; архитекторы – Егор Васильев, Леонтий Туласынов, Светлана Бугаева; дизайнер – Александр Марков

партнеры, заказчики, смежники

Консультант – РПИИ Якутпроект», XO Virtual Production (XOVP), VIDAU Systems, AFLEX-VIDEO

Заказчик: Корпорация развития Республики Саха (Якутия)
Многофункциональный кинопавильон полного цикла
© АБ База 14

Архи.ру об этом объекте:

04.12.2025

Кинохолод

Концептуальный проект киностудии-фабрики в Якутске, разработанный бюро База 14, интересен и типологией, которая редко становится объектом архитектурного внимания, и экстремальной географией. Проект предлагает строгую и элегантную архитектуру, где функциональность первична, но не лишена выразительности.

Наверное, самое важное в этом проекте дать технологический ответ на вызов семимесячной зимы. Его цель создать искусственный климат для круглогодичных съемок, превратив регион в кинематографический хаб Дальнего Востока. Пару лет назад идею презе...   читать дальше
Многофункциональный кинопавильон полного цикла
© АБ База 14

описание:

Якутия – крупнейшая экономика Дальнего Востока и безусловный лидер ДФО по развитию креативных индустрий. Индустрии ИТ, кинематографа, геймдева и дизайна здесь развиты сильнее, чем в большинстве регионов макрорегиона. Якутский кинематограф уже неоднократно доказал свой уровень: документальный фильм Максима и Евгении Арбугаевых «Выход» был номинирован на премию «Оскар» в категории «Лучший короткометражный документальный фильм».

С 2011 года в республике снято более 100 фильмов, отмеченных более чем 250 наградами на российских и международных фестивалях. Доля якутского кино в местном прокате составляет около 34 %. С учётом уже сформированных компетенций регион способен стать центром кинопроизводства всего Дальнего Востока, Восточной Сибири и Арктики России. Рост технологических требований со стороны дистрибьюторов и стримингов, а также высокая конкуренция в медиасреде делают необходимым создание современного кинотехнологического центра полного цикла.

Многофункциональный кинопавильон в Якутске станет единственным подобным объектом на Дальнем Востоке. Он обеспечит индустрию современными павильонами для круглогодичных съёмок, студиями звукозаписи, перезаписи, монтажа, цветокоррекции, создания визуальных эффектов, офисными и рабочими помещениями, а также костюмерными, гримёрными, цехом декораций, реквизиторскими и парком съёмочного оборудования и спецавтотранспорта.

Ключевым элементом станет модульный XR-экран с охватом 360°, который позволит воспроизводить любые локации вне зависимости от времени года и погодных условий – актуально для климата Арктики и всего ДФО.

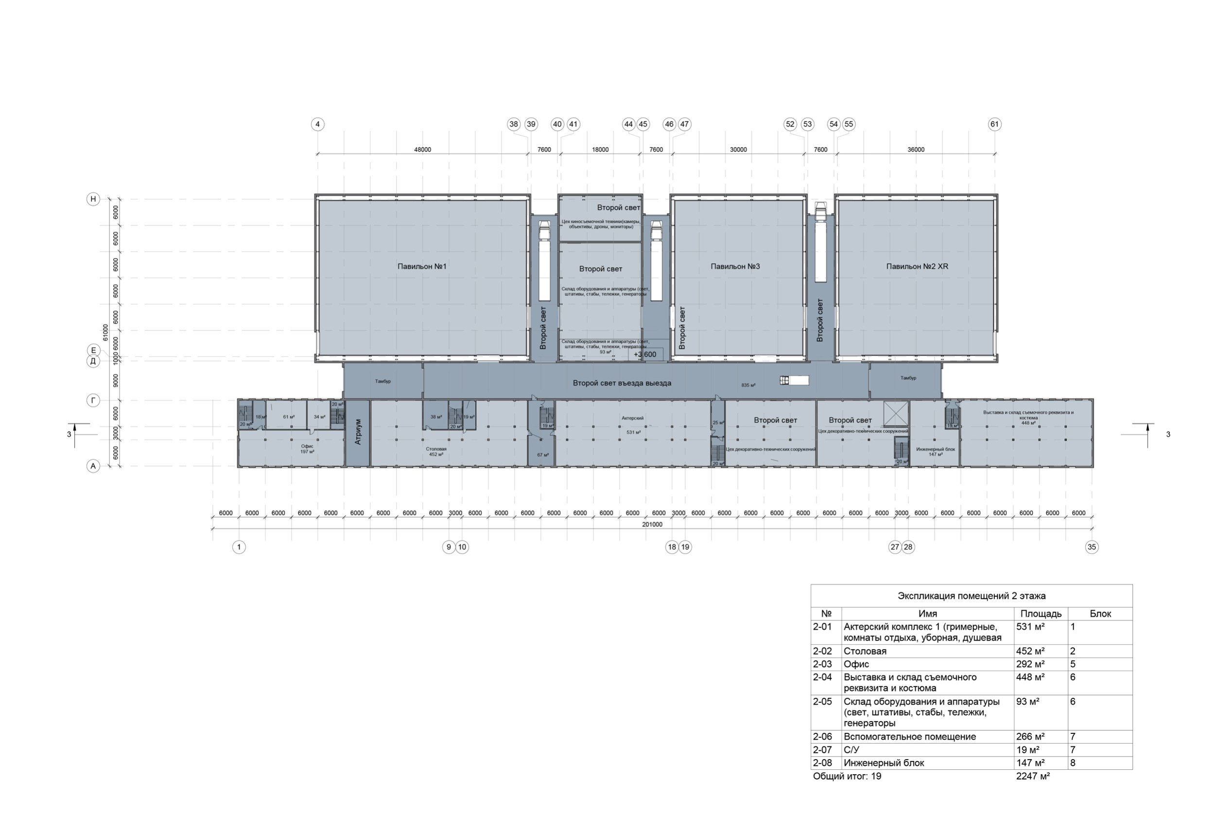
Кинопроизводственный комплекс состоит из двух основных блоков. Первый – павильонный, высотой 21,7 метра, включает три больших павильона, склад оборудования и цех киносъёмочной техники. Второй – основной блок высотой 6 и 12 этажей. В его состав входят актёрский комплекс, цех декоративно-технических сооружений, малый павильон, столовая-ресторан, выставка и склад реквизита и костюмов, офисно-студийный комплекс и инженерно-хозяйственный блок.

Новый кинопавильон создаст тысячи рабочих мест не только в сфере кино, но и в смежных областях. Он станет технологическим хабом федерального уровня, способным ежегодно обеспечивать производство до 40 фильмов. Потенциальная мощность объекта – 24 фильма и сериала в год. В комплексе будет создано более 1 500 рабочих мест. Он сформирует инфраструктуру, которая позволит привлекать крупные проекты, молодых специалистов со всей страны и дополнительный туристический поток, связанный с популяризацией культуры и ландшафтов Дальнего Востока.

Только за счёт обеспечения круглогодичных условий для съёмок количество фильмов, производимых в регионах Дальнего Востока, возрастёт с примерно 20 в 2021 году до 50 к 2030 году.

Многофункциональный кинопавильон полного цикла
© АБ База 14
Многофункциональный кинопавильон полного цикла
© АБ База 14
Многофункциональный кинопавильон полного цикла
© АБ База 14
Многофункциональный кинопавильон полного цикла. Генплан
© АБ База 14
Многофункциональный кинопавильон полного цикла. План 1 этажа
© АБ База 14
Многофункциональный кинопавильон полного цикла. План 2 этажа
© АБ База 14
Многофункциональный кинопавильон полного цикла. План 3 этажа
© АБ База 14
Многофункциональный кинопавильон полного цикла. План 4 этажа
© АБ База 14
Многофункциональный кинопавильон полного цикла. План 5-12 этажа
© АБ База 14
Многофункциональный кинопавильон полного цикла. Фасад 1-35
© АБ База 14
Многофункциональный кинопавильон полного цикла. Фасад 35-1
© АБ База 14
Многофункциональный кинопавильон полного цикла. Фасад H-A
© АБ База 14
Многофункциональный кинопавильон полного цикла. Разрезы
© АБ База 14

Архитекторы – партнеры Архи.ру:

  • Евгений Подгорнов
  • Валерий Каняшин
  • Дмитрий Буш
  • Игорь Членов
  • Александра Кузьмина
  • Энди Сноу
  • Евгений Зеленов
  • Евгений Новосадюк
  • Илья Машков
  • Павел Андреев
  • Сергей Скуратов
  • Дмитрий Ликин
  • Татьяна Зульхарнеева
  • Сергей Труханов
  • Александр Асадов
  • Сергей Переслегин
  • Елена Пучкова
  • Николай Переслегин
  • Александр Скокан
  • Андрей Романов
  • Марина Егорова
  • Дмитрий Сухов
  • Раис Баишев
  • Константин Ходнев
  • Андрей Гнездилов
  • Анастасия Абашева
  • Наталия Шилова
  • Никита Явейн
  • Антон Надточий
  • Вера Бутко
  • Юлий Борисов
  • Юлиана Княжевская
  • Александр Самарин
  • Сергей Никешкин
  • Юлия Солдатенкова
  • Андрей Михайлов
  • Олег Шапиро
  • Юлия Тряскина
  • Наталья Сидорова
  • Иван Кожин
  • Ростислав Цайзер
  • Василий Крапивин
  • Борис Воскобойников
  • Мария Ахременкова
  • Зураб Басария
  • Олег Мединский
  • Михаил Давыдов
  • Екатерина Кузнецова
  • Полина Воеводина
  • Даниил Лоренц
  • Игорь Шварцман
  • Николай Кикава
  • Михаил Канунников
  • Ерлан Бекмухамедов
  • Владислав Андреев
  • Андрей Асадов
  • Степан Липгарт
  • Григорий Мустафин
  • Григориос Гавалидис
  • Станислав Белых
  • Сергей Чобан
  • Всеволод Медведев
  • Георгий Трофимов
  • Виталий Лутц
  • Антон Яр-Скрябин
  • Сергей Кузнецов
  • Александр Котенков
  • Алексей Орлов
  • Дмитрий Остроумов
  • Владимир Плоткин
  • Тимур Абдуллаев
  • Екатерина Абдуллаева
  • Маргарита Авдышева
  • Левон Айрапетов
  • Александр Аношкин
  • Алексей Афоничкин
  • Владислав Бек-Булатов
  • Антон Белов
  • Татьяна Бузулукова
  • Петр Васильев
  • Данило Вукосавлевич
  • Алина Георгиевская
  • Павел Гордеев
  • Илья Гринберг
  • Никита Демидов
  • Никита Дергунов
  • Наталья Жилкина
  • Алексей Зародов
  • Екатерина Зырина
  • Алексей Ильин
  • Дарья Ильина
  • Олег Карлсон
  • Алексей Кибкало
  • Денис Кувшинников
  • Анна Куликова
  • Алексей Курков
  • Данил Куров
  • Мария Кутай
  • Евгений Кутай
  • Иван Кычкин
  • Антон Ладыгин
  • Дмитрий Лапин
  • Борис Левянт
  • Илья Левянт
  • Катерина Левянт
  • Валерий Лукомский
  • Антон Лукомский
  • Екатерина Ляпунова
  • Иса Магомедов
  • Сергей Марков
  • Елена Мерцалова
  • Николай Миловидов
  • Станислав Михаловский
  • Сергей Мичурин
  • Олеся Могилевская
  • Филипп Никандров
  • Мария Николаева
  • Дмитрий Овчаров
  • Сергей Пергаев
  • Виктор Перов
  • Алексей Полищук
  • Роман Пономарёв
  • Валерия Преображенская
  • Виктория Раубо
  • Василий Рыбаков
  • Николай Рыбаков
  • Мария Салех
  • Александр Стариков
  • Илья Уткин
  • Елисей Чакан
  • Бориша Чорович
  • Олег Шурыгин
  • Дмитрий Шурыгин

Проект из каталога (случайный выбор)

Винодельня «Скалистый берег»
Александр Балабин, – 2020
Винодельня «Скалистый берег»

Постройки и проекты (новые записи):

  • Архитектурная концепция кластера Ломоносов-2
  • Клубный дом в 1-м Казачьем переулке
  • Частный дом в Ленинградской области
  • IT-кластер TravelLine в Йошкар-Оле
  • Гостиничный комплекс Cosmos Selection Derbent 5
  • Офис компании АльфаСтрахование
  • MIDITI
  • Офис компании Kept
  • Дом Спорта

Новости российской архитектуры:

IAD Awards 2026
29.04.2026

IAD Awards 2026

Северный ветер
27.04.2026

Северный ветер

Дарья Белецкая
Высший уровень
24.04.2026

Высший уровень

Борис Воскобойников, Мария Ахременкова