RSS
Завод «Скорса»
Фотография © Александр Бурнатов / предоставлена ZARDECO

Завод «Скорса»

информация:

  • статус
    реализовано
  • даты
    05.2024 / 09.2024 — 03.2025
  • region=Республика Татарстан area=Зеленодольский район address=Промышленный парк М7 country_t=Россия city_t=
    место
    Республика Татарстан Зеленодольский район Промышленный парк М7
  • координаты
    55.891577, 48.966221
  • функция
    Инженерно-промышленный / Завод
  • общая площадь
    235 м2
  • этажность
    2
  • ссылки:
Россия

авторский коллектив

Зарина Гайворонская, Алина Топорова, Фарида Бикташ

партнеры, заказчики, смежники

Заказчик: ПК «ГЕО СКОРСА»

награды:

    Победитель конкурса Best Office Awards 2025 в номинации «Цена и качество»
Завод «Скорса»
Фотография © Александр Бурнатов / предоставлена ZARDECO

Архи.ру об этом объекте:

08.01.2026

Елена Петухова. Разрыв шаблона

Спроектировать интерьер завода удается мало кому. Но архитекторы бюро ZARDECO получили такой шанс и использовали его на 100%, найдя способ при помощи дизайна передать амбициозность компании и высокотехнологичность производства на заводе «Скорса».

От редакцииВы бывали на производстве? Если да, то давайте признаемся, что это впечатляет. Неудивительно, что промышленный туризм, про который еще совсем недавно никто в России не знал, набирает популярность. Увидеть своими глазами феерию плавки мета...   читать дальше
Завод «Скорса»
Фотография © Александр Бурнатов / предоставлена ZARDECO

описание:

Проектирование нового завода для компании «Скорса» стало не просто архитектурной задачей, а целой философией, воплощённой в пространстве. Перед нами стояла цель – создать не только функциональное, но и вдохновляющее место, отражающее дух самой компании: молодой, амбициозной, устремлённой в будущее и технологически продвинутой.

«Скорса» – это современное высокотехнологичное производство, одно из передовых в своей отрасли. Здесь используется сложнейшее оборудование, автоматизированные процессы, и всё построено на точности, скорости и эффективности. Поэтому и интерьер не мог быть оформлен в классическом промышленном ключе. Он должен был стать дерзким, футуристичным, визуально мощным и при этом продуманным до мелочей.

Концепция интерьера строилась на образах потока, энергии и вихря – метафорах, связанных с работой газотурбинного двигателя, который выпускается на этом заводе. Мы стремились передать ощущение движения и технического прогресса через архитектуру, пластику, свет и материалы.

Одним из самых серьёзных вызовов стали экстремально сжатые сроки. Весь проект – от разработки до запуска производства – необходимо было реализовать всего за один год. Это требовало максимальной концентрации, глубокого погружения в технические детали и плотной работы с инженерами и поставщиками. Нам пришлось изучить большой перечень оборудования, особенности его размещения, весовые и динамические нагрузки, требования к вентиляции, электрике и логистике. Несмотря на напряжённый график, нам удалось создать проект высокой сложности, полностью адаптированный под современные производственные процессы.

Особое внимание было уделено функциональному зонированию. Важно было соблюсти санитарные, пожарные и технологические нормы, организовав маршруты так, чтобы сотрудники могли свободно взаимодействовать, но не пересекались там, где это недопустимо. Мы предусмотрели специальный балкон вдоль цеха, связывающий административный блок с производственной частью. Он позволяет быстро перемещаться между кабинетами и рабочими зонами, не теряя времени на лестницы и длинные переходы.

Входная группа и фойе на первом этаже должны были сразу погружать посетителя в атмосферу, отражающую дух компании и её визуальную айдентику. Одной из главных задач было передать через интерьер ценности бренда, его философию и узнаваемость. У компании уже существовал проработанный фирменный стиль – от логотипа и цветовой палитры до характерной пластики. Поэтому мы стремились максимально органично интегрировать эти элементы в архитектурную и дизайнерскую среду.

Фойе было решено сделать двухсветным – это архитектурный прием, который визуально увеличивает пространство, наполняет его воздухом и светом. Такой масштабный жест перекликается с промышленным размахом самого производства, демонстрируя технологичность и амбициозность компании.

На первом этаже также размещена переговорная комната. Она стала логичным продолжением общей концепции: здесь используются те же цветовые и стилистические решения, что и в фойе, создавая ощущение единого, продуманного пространства.

Отдельное внимание было уделено кухонной зоне. Мы сознательно отказались от стандартного подхода к организации столовых – не хотелось создавать привычное помещение с визуальным шумом и бытовыми элементами на виду. Вместо этого кухню стилизовали под современный уютный кафетерий. Визуальная чистота достигнута благодаря скрытым системам хранения: вся утварь, техника и рабочие элементы убраны из поля зрения. Это формирует комфортное пространство для отдыха и перерывов, оставаясь при этом полностью функциональным.

Офисная зона организована с чётким соблюдением симметрии. При входе сразу считывается центральная ось, делящая интерьер на две равные части. Такое планировочное решение визуально структурирует пространство и создаёт ощущение порядка и гармонии.

Ангарная часть разделена на два крыла – мужское и женское, предназначенные для персонала. В этих зонах сотрудники могут переодеться перед началом смены и оставить личные вещи. Крылья оснащены всем необходимым: шкафчиками для хранения, удобными скамейками, а при необходимости – санитарными узлами и душевыми.

Такое разделение и организация пространства об еспечивает комфорт и приватность для всех с отрудников.

В архитектурном и дизайнерском решении ключевым источником вдохновения стал фирменный стиль компании. Мы смело и уверенно использовали фирменные цвета, создав динамичную композицию, построенную на работе с яркими цветовыми акцентами. При этом пространство оставалось визуально чистым, воздушным, без излишней нагрузки, где каждое цветовое пятно работает как элемент структуры и ритма. Мы сознательно стремились изменить традиционное
представление о заводском интерьере и показать, что производственное пространство может быть эстетически мощным и современным.

Инженерные системы также отвечают самым высоким стандартам. В здании реализована приточно-вытяжная система вентиляции с многоступенчатой фильтрацией воздуха, что особенно важно на производстве. Забота о сотрудниках стала одним из приоритетов – в проект были включены зоны отдыха, современная комната приёма пищи, стилизованная под уютный кафетерий, где вся кухонная техника скрыта в системах хранения, исключая визуальный шум.

Нам особенно важно было добавить в проект индивидуальности, поэтому в интерьере появились авторские эле менты, созданные по нашим эскизам. Центральным объектом холла стала авторская люстра, созданная специально для этого пространства. Она не просто выполняет функцию освещения, но и несёт в себе глубокий символизм. Люстра выполнена в виде каркаса газотурбинного двигателя – именно тот об ъект, который производит предприятие, стал основным источником вдохновения. Внутренняя структура люстры построена из динамично изогнутых элементов, которые визуально имитируют вращение лопастей турбины.

Другим значимым предметом стало переговорное пространство, где внима ние привлекает авторский стол, разработанный и изготовленный специально для этого проекта. В его основе лежит уникальная идея – для создания данного стола был использован настоящий советский токарный станок 1930-х годов. Это не только технический и эстетичес кий объект, но и своеобразная дань инженерной истории, мост между прошлым и настоящим. Мы не просто интегрировали станок как арт-объект – он был переосмыслен, адаптирован под современное использование. Внутри металлической конструкции мы провели скрытую электрику, а в стеклянную столешницу были аккуратно встроены розетки, что делает стол не только эффектным, но и полностью функциональным. Он стал настоящим символом слияния инженерного наследия и современной технологической культуры.

Ресепшн, встречающий посетителей в фойе, также полностью спроектирован нами и несёт в себе ту же идею динамики и энергии. Этот объём построен на округлых, обтекаемых форма х, которые символизируют вихрь, поток воздуха, движение. Это не просто функциональный элемент – это скульптурный объект, задающий тон всему пространству фойе. Его форма, свет и тактильные поверхности моментально формируют у входящего ассоциацию с технологичностью, прогрессом и современным дизайном.
Важно отметить, что завод спроектирован с учётом будущего роста. На территории предусмотрена возможность строительства дополнительного корпуса, если объёмы производства возрастут. Внутри цеха также смотрены резервы под дополнительные кабинеты для инженерно-технического персонала, что позволяет легко масштабировать пространство без необходимости полной реконструкции.

Проект завода «Скорса» – это пример того, как промышленная архитектура может быть не только функциональной, но и наполненной смыслом, эстетикой и вдохновение м. Мы создали пространство, где хочется работать, развиваться и двигаться вперёд – вместе с компанией, которая уже сегодня формирует будущее.
 
Завод «Скорса»
Фотография © Александр Бурнатов / предоставлена ZARDECO
Завод «Скорса»
Фотография © Александр Бурнатов / предоставлена ZARDECO
Завод «Скорса»
Фотография © Александр Бурнатов / предоставлена ZARDECO
Завод «Скорса»
Фотография © Александр Бурнатов / предоставлена ZARDECO
Завод «Скорса»
Фотография © Александр Бурнатов / предоставлена ZARDECO
Завод «Скорса»
Фотография © Александр Бурнатов / предоставлена ZARDECO
Завод «Скорса»
Фотография © Александр Бурнатов / предоставлена ZARDECO
Завод «Скорса»
Фотография © Александр Бурнатов / предоставлена ZARDECO
Завод «Скорса»
Фотография © Александр Бурнатов / предоставлена ZARDECO
Завод «Скорса»
Фотография © Александр Бурнатов / предоставлена ZARDECO
Завод «Скорса»
Фотография © Александр Бурнатов / предоставлена ZARDECO
Завод «Скорса»
Фотография © Александр Бурнатов / предоставлена ZARDECO
Завод «Скорса»
Фотография © Александр Бурнатов / предоставлена ZARDECO
Завод «Скорса»
Фотография © Александр Бурнатов / предоставлена ZARDECO
Завод «Скорса»
Фотография © Александр Бурнатов / предоставлена ZARDECO
Завод «Скорса»
Фотография © Александр Бурнатов / предоставлена ZARDECO
Завод «Скорса»
Фотография © Александр Бурнатов / предоставлена ZARDECO
Завод «Скорса»
Фотография © Александр Бурнатов / предоставлена ZARDECO
Завод «Скорса»
Фотография © Александр Бурнатов / предоставлена ZARDECO
Завод «Скорса»
Фотография © Александр Бурнатов / предоставлена ZARDECO
Завод «Скорса»
Фотография © Александр Бурнатов / предоставлена ZARDECO
Завод «Скорса»
Фотография © Александр Бурнатов / предоставлена ZARDECO
Завод «Скорса»
Фотография © Александр Бурнатов / предоставлена ZARDECO
Завод «Скорса»
Фотография © Александр Бурнатов / предоставлена ZARDECO
Завод «Скорса»
Фотография © Александр Бурнатов / предоставлена ZARDECO
Завод «Скорса»
Фотография © Александр Бурнатов / предоставлена ZARDECO
Завод «Скорса»
Фотография © Александр Бурнатов / предоставлена ZARDECO
Завод «Скорса»
Фотография © Александр Бурнатов / предоставлена ZARDECO
Завод «Скорса»
Фотография © Александр Бурнатов / предоставлена ZARDECO
Завод «Скорса»
Фотография © Александр Бурнатов / предоставлена ZARDECO
Завод «Скорса»
Фотография © Александр Бурнатов / предоставлена ZARDECO
Завод «Скорса»
Фотография © Александр Бурнатов / предоставлена ZARDECO
Завод «Скорса»
Фотография © Александр Бурнатов / предоставлена ZARDECO
Завод «Скорса»
Фотография © Александр Бурнатов / предоставлена ZARDECO
Завод «Скорса»
Фотография © Александр Бурнатов / предоставлена ZARDECO
Завод «Скорса»
Фотография © Александр Бурнатов / предоставлена ZARDECO
Завод «Скорса». Конструкция ресепшн
© ZARDECO
Завод «Скорса». Вестибюль. Развертки помещений
© ZARDECO
Завод «Скорса». Вестибюль
© ZARDECO
Завод «Скорса». 1 этаж. План расстановки мебели
© ZARDECO
Завод «Скорса». План 1 этажа. Расстановка мебели
© ZARDECO
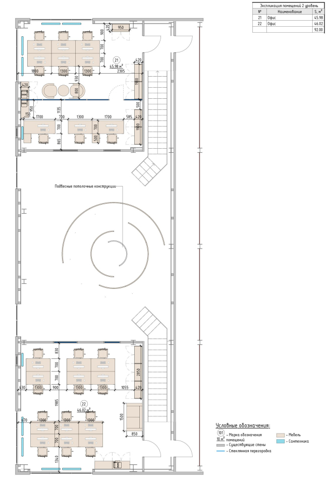
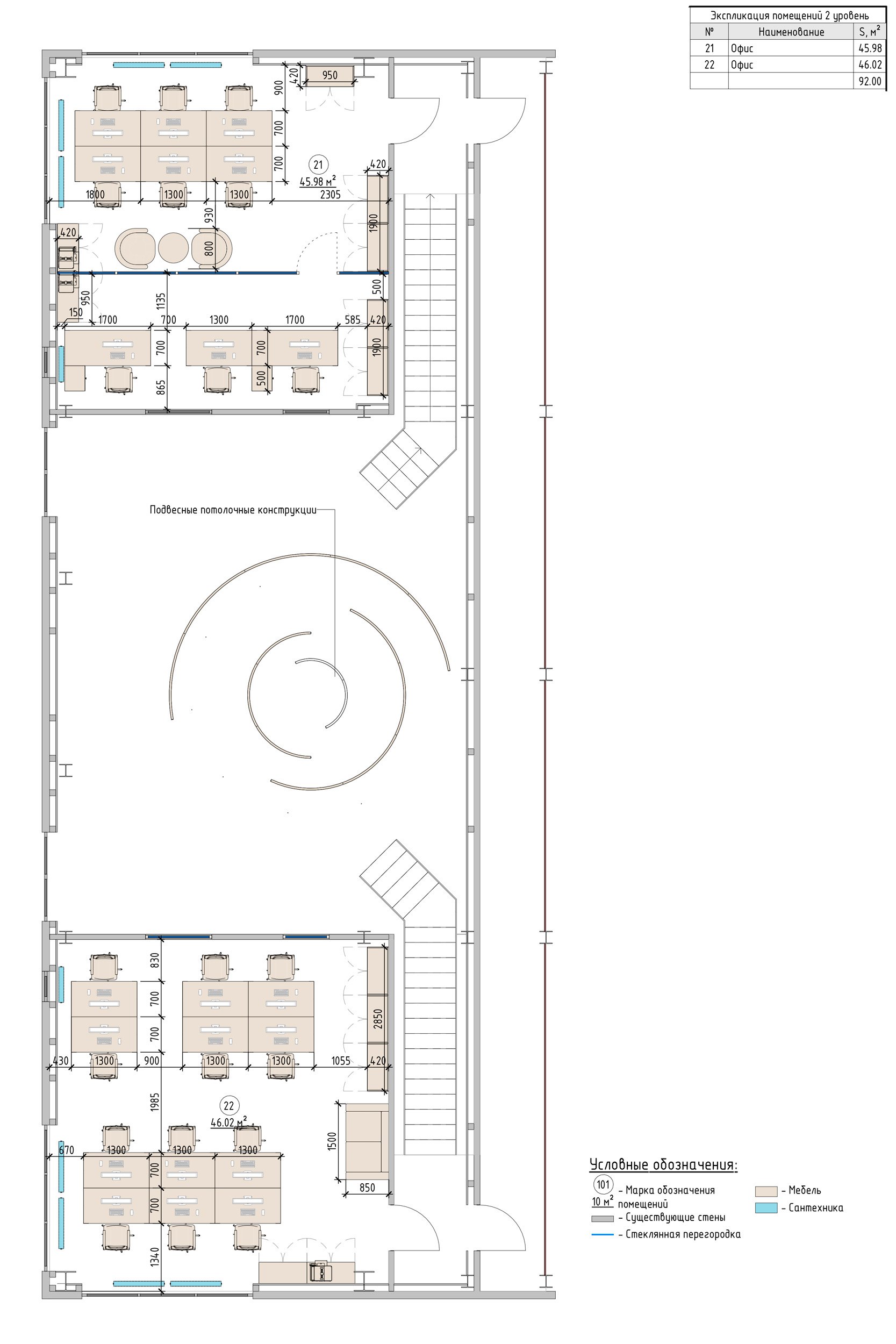
Завод «Скорса».б 2 этаж. План расстановки мебели
© ZARDECO
Завод «Скорса». План 2 этажа. Расстановка мебели
© ZARDECO

Архитекторы – партнеры Архи.ру:

  • Дмитрий Сухов
  • Сергей Переслегин
  • Анна Иванова
  • Вера Бутко
  • Владимир Плоткин
  • Сергей Скуратов
  • Ерлан Бекмухамедов
  • Михаил Давыдов
  • Сергей Чобан
  • Александр Котенков
  • Алексей Орлов
  • Наталья Сидорова
  • Евгений Подгорнов
  • Сергей Труханов
  • Анастасия Абашева
  • Всеволод Медведев
  • Энди Сноу
  • Олег Шапиро
  • Никита Явейн
  • Евгений Новосадюк
  • Степан Липгарт
  • Андрей Михайлов
  • Игорь Членов
  • Алексей Гинзбург
  • Владислав Андреев
  • Андрей Романов
  • Зураб Басария
  • Илья Машков
  • Антон Надточий
  • Олег Мединский
  • Сергей Кузнецов
  • Антон Яр-Скрябин
  • Елена Пучкова
  • Дмитрий Буш
  • Сергей Никешкин
  • Юлия Солдатенкова
  • Александр Скокан
  • Константин Ходнев
  • Александра Кузьмина
  • Станислав Белых
  • Георгий Трофимов
  • Игорь Шварцман
  • Николай Переслегин
  • Андрей Асадов
  • Ростислав Цайзер
  • Павел Андреев
  • Марина Егорова
  • Юлия Тряскина
  • Александр Асадов
  • Андрей Гнездилов
  • Григорий Мустафин
  • Григориос Гавалидис
  • Татьяна Зульхарнеева
  • Михаил Канунников
  • Виталий Лутц
  • Дмитрий Ликин
  • Даниил Лоренц
  • Александр Самарин
  • Юлиана Княжевская
  • Наталия Шилова
  • Дмитрий Остроумов
  • Раис Баишев
  • Валерий Каняшин
  • Юлий Борисов
  • Иван Кожин
  • Андрей Чуйков
  • Николай Кикава
  • Екатерина Кузнецова
  • Роман Леонидов
  • Василий Крапивин
  • Евгений Зеленов
  • Полина Воеводина
  • Тимур Абдуллаев
  • Екатерина Абдуллаева
  • Маргарита Авдышева
  • Левон Айрапетов
  • Александр Аношкин
  • Алексей Афоничкин
  • Владислав Бек-Булатов
  • Антон Белов
  • Татьяна Бузулукова
  • Петр Васильев
  • Алина Георгиевская
  • Павел Гордеев
  • Илья Гринберг
  • Никита Демидов
  • Никита Дергунов
  • Наталья Жилкина
  • Алексей Зародов
  • Екатерина Зырина
  • Алексей Ильин
  • Дарья Ильина
  • Олег Карлсон
  • Алексей Кибкало
  • Денис Кувшинников
  • Анна Куликова
  • Алексей Курков
  • Алексей Курков
  • Данил Куров
  • Евгений Кутай
  • Мария Кутай
  • Антон Ладыгин
  • Антон Ладыгин
  • Дмитрий Лапин
  • Катерина Левянт
  • Илья Левянт
  • Борис Левянт
  • Антон Лукомский
  • Валерий Лукомский
  • Екатерина Ляпунова
  • Сергей Марков
  • Николай Миловидов
  • Станислав Михаловский
  • Олеся Могилевская
  • Мария Николаева
  • Виктор Перов
  • Алексей Полищук
  • Роман Пономарёв
  • Валерия Преображенская
  • Виктория Раубо
  • Василий Рыбаков
  • Мария Салех
  • Александр Стариков
  • Илья Уткин
  • Олег Шурыгин
  • Дмитрий Шурыгин

Проект из каталога (случайный выбор)

Кировск-2042. Всесезонный спортивно-туристический центр Северной Европы
Александр Скокан, Андрей Гнездилов, Кирилл Гладкий, 2017
Кировск-2042. Всесезонный спортивно-туристический центр Северной Европы

Постройки и проекты (новые записи):

  • БЦ в Раменках
  • БЦ на Верейской улице
  • DELO HOUSE 3.2 с флигелем
  • Ледовый дворец Navka Arena
  • Благоустройство территории ЖК Holms Residence
  • Игровое пространство у театра им. Г.К. Камала
  • Вторая ось
  • Концепция проекта храмового комплекса в Куркино, Москва
  • Пять часовен

Новости российской архитектуры:

Иглы созерцания горизонта
19.02.2026

Иглы созерцания горизонта

Николай Переслегин, Георгий Трофимов, Сергей Переслегин
Отель у озера
18.02.2026

Отель у озера

Тимур Абдуллаев, Екатерина Абдуллаева
Сокровища Медной горы
17.02.2026

Сокровища Медной горы

Виктория Раубо, Роман Пономарёв