RSS
Пекарня «Лицей»
Фотография © Инна Каблукова / предоставлена MAST buro

Пекарня «Лицей»

информация:

Россия

авторский коллектив

Руководитель авторского коллектива – Владислав Гайдук; дизайнеры интерьера – Ольга Потапова, Марина Ватнеева

Пекарня «Лицей»
Фотография © Инна Каблукова / предоставлена MAST buro

Архи.ру об этом объекте:

08.10.2025

Истина в муке

Бюро Mast разработало интерьер кафе для сети кафе-пекарен «Лицей», как будто исследуя выразительные возможности самых простых, самых сдержанных дизайнерских средств, чтобы у посетителей была возможность насладиться ароматом свежеиспеченной сдобы и хлеба.

От редакцииЧеловек обладает пятью сокровищами, которые редко ценит по достоинству. Наши пять чувств зрение, слух, вкус, осязание и обоняние дарят нам бесконечные возможности для восприятия и, чего уж греха таить, наслаждения окружающим миром. В ...   читать дальше
Пекарня «Лицей»
Фотография © Инна Каблукова / предоставлена MAST buro

описание:

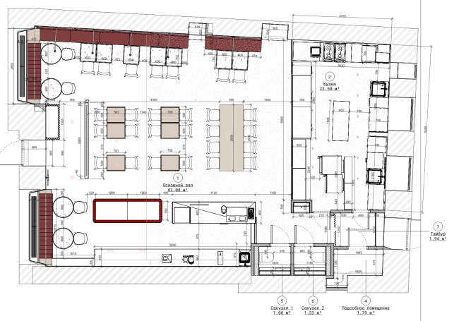
Еще одно кафе «Лицей» появилось на Остоженке, но уже в другом формате. Здесь все та же вкусная выпечка и кофе, однако более просторный зал, расширенное меню и обновленная концепция бистро. Теперь сюда можно не только забежать за капучино, но и провести неспешный вечер с друзьями за бокалом вина.

Основатели «Лицея» действительно лицеисты – дружба Дмитрия Янченко и Евгения Чечеткина началась со времен учебы в Брянске, а Никита Румянцев жил в Москве. Трех товарищей объединила любовь к кофе, благодаря которой в столице появилось уже два проекта их авторства. Первый «Лицей» открылся в Лялином переулке в формате пекарни, где особую популярность завоевали сосиски в тесте. Второй появился на Остоженке недавно и создавался в сотрудничестве с архитектурным бюро Mast уже с обновленной концепцией.

«До ремонта это было небольшое пространство, разделенное на два помещения: магазин и кофейню. После демонтажа остался неровный квадрат с кривыми стенами, но зато с высокими потолками и потенциалом для создания открытого, светлого интерьера, – вспоминают архитекторы. – Мы хотели, чтобы пространство было уютным, таким, где хочется не просто выпить кофе, а провести время».

Этому благоволят и расширенное меню, и интерьер в спокойных и теплых тонах. Исключение – ярко-красная столешница, привлекающая внимание гостей к главному элементу пространства – выпечке. «Подрядчики долго отказывались делать столешницу, сомневались, – говорят авторы проекта. – В итоге, когда увидели результат, признали, что получилось именно так, как задумывалось».

Мебель в кафе сложно соотнести с лицейской – здесь нет прямых отсылок к классическим учебным партам. Стулья были привезены из Европы, а освещение подобрано у брендов Vibia и Aledo. Остальные элементы выполнены на заказ, в том числе символичная деталь на входе – дверная ручка, созданная в форме канцелярской скрепки.

В новом «Лицее», по словам основателей, станет чуть легче получить свободный столик. Кроме того, по будням работает бронь. «Теперь ничто не помешает гостям занять заветное место у окна и провести время в компании друзей», – говорят они. Кроме того, в пространстве будет чем заняться и на свидании с собой – на стеллаже у окна можно найти коллекцию книг, подобранную галереей Гари Татинцяна.

Пекарня «Лицей»
Фотография © Инна Каблукова / предоставлена MAST buro
Пекарня «Лицей»
Фотография © Инна Каблукова / предоставлена MAST buro
Пекарня «Лицей»
Фотография © Инна Каблукова / предоставлена MAST buro
Пекарня «Лицей»
Фотография © Инна Каблукова / предоставлена MAST buro
Пекарня «Лицей»
Фотография © Инна Каблукова / предоставлена MAST buro
Пекарня «Лицей»
Фотография © Инна Каблукова / предоставлена MAST buro
Пекарня «Лицей»
Фотография © Инна Каблукова / предоставлена MAST buro
Пекарня «Лицей»
Фотография © Инна Каблукова / предоставлена MAST buro
Пекарня «Лицей»
Фотография © Инна Каблукова / предоставлена MAST buro
Пекарня «Лицей»
Фотография © Инна Каблукова / предоставлена MAST buro
Пекарня «Лицей»
Фотография © Инна Каблукова / предоставлена MAST buro
Пекарня «Лицей»
© MAST buro
Пекарня «Лицей»
© MAST buro
Пекарня «Лицей»
© MAST buro
Пекарня «Лицей»
© MAST buro

Архитекторы – партнеры Архи.ру:

  • Александр Котенков
  • Александра Кузьмина
  • Константин Ходнев
  • Василий Крапивин
  • Илья Машков
  • Сергей Труханов
  • Сергей Кузнецов
  • Андрей Асадов
  • Дмитрий Буш
  • Сергей Скуратов
  • Владислав Андреев
  • Александр Асадов
  • Ростислав Цайзер
  • Евгений Новосадюк
  • Алексей Орлов
  • Игорь Членов
  • Михаил Давыдов
  • Сергей Переслегин
  • Мария Ахременкова
  • Елена Пучкова
  • Виталий Лутц
  • Марина Егорова
  • Валерий Каняшин
  • Наталия Шилова
  • Екатерина Кузнецова
  • Раис Баишев
  • Александр Самарин
  • Анастасия Абашева
  • Сергей Никешкин
  • Дмитрий Сухов
  • Андрей Михайлов
  • Олег Мединский
  • Сергей Чобан
  • Игорь Шварцман
  • Юлиана Княжевская
  • Татьяна Зульхарнеева
  • Николай Переслегин
  • Полина Воеводина
  • Дмитрий Ликин
  • Владимир Плоткин
  • Дмитрий Остроумов
  • Антон Яр-Скрябин
  • Андрей Гнездилов
  • Борис Воскобойников
  • Юлий Борисов
  • Григориос Гавалидис
  • Андрей Романов
  • Николай Кикава
  • Никита Явейн
  • Станислав Белых
  • Олег Шапиро
  • Григорий Мустафин
  • Даниил Лоренц
  • Вера Бутко
  • Наталья Сидорова
  • Всеволод Медведев
  • Иван Кожин
  • Михаил Канунников
  • Александр Скокан
  • Юлия Тряскина
  • Юлия Солдатенкова
  • Зураб Басария
  • Антон Надточий
  • Степан Липгарт
  • Ерлан Бекмухамедов
  • Георгий Трофимов
  • Евгений Зеленов
  • Энди Сноу
  • Евгений Подгорнов
  • Павел Андреев
  • Тимур Абдуллаев
  • Екатерина Абдуллаева
  • Маргарита Авдышева
  • Левон Айрапетов
  • Александр Аношкин
  • Алексей Афоничкин
  • Владислав Бек-Булатов
  • Антон Белов
  • Татьяна Бузулукова
  • Петр Васильев
  • Данило Вукосавлевич
  • Алина Георгиевская
  • Павел Гордеев
  • Илья Гринберг
  • Никита Демидов
  • Никита Дергунов
  • Наталья Жилкина
  • Алексей Зародов
  • Екатерина Зырина
  • Алексей Ильин
  • Дарья Ильина
  • Олег Карлсон
  • Алексей Кибкало
  • Денис Кувшинников
  • Анна Куликова
  • Алексей Курков
  • Данил Куров
  • Мария Кутай
  • Евгений Кутай
  • Иван Кычкин
  • Антон Ладыгин
  • Дмитрий Лапин
  • Борис Левянт
  • Илья Левянт
  • Катерина Левянт
  • Валерий Лукомский
  • Антон Лукомский
  • Екатерина Ляпунова
  • Иса Магомедов
  • Сергей Марков
  • Елена Мерцалова
  • Николай Миловидов
  • Станислав Михаловский
  • Сергей Мичурин
  • Олеся Могилевская
  • Филипп Никандров
  • Мария Николаева
  • Дмитрий Овчаров
  • Сергей Пергаев
  • Виктор Перов
  • Алексей Полищук
  • Роман Пономарёв
  • Валерия Преображенская
  • Виктория Раубо
  • Василий Рыбаков
  • Николай Рыбаков
  • Мария Салех
  • Александр Стариков
  • Илья Уткин
  • Елисей Чакан
  • Бориша Чорович
  • Олег Шурыгин
  • Дмитрий Шурыгин

Проект из каталога (случайный выбор)

Гостиничный комплекс в городе Винница
Александр Асадов, Андрей Асадов, 2011 – 2011
Гостиничный комплекс в городе Винница

Постройки и проекты (новые записи):

  • Деловое пространство «ПЛЭЙН»
  • Porta
  • Детский сад на 200 мест в Жилино-1
  • Архитектурная концепция кластера Ломоносов-2
  • Клубный дом в 1-м Казачьем переулке
  • Частный дом в Ленинградской области
  • IT-кластер TravelLine в Йошкар-Оле
  • Гостиничный комплекс Cosmos Selection Derbent 5
  • Офис компании АльфаСтрахование

Новости российской архитектуры:

Курган памяти
08.05.2026

Курган памяти

Никита Явейн
Баня по-царски
07.05.2026

Баня по-царски

Ольга Смоленская
«Заря» над волнами
07.05.2026

«Заря» над волнами

Дарья Виноградова
Белый конгломерат
07.05.2026

Белый конгломерат

Александр Томашенко, Андрей Горелов, Василий Сошников, Иван Колманок, Николай Фугаров, Владимир Плоткин